← Broadland and South Norfolk Council

Status

Pending Consideration House extension
Received
26 Jan 2026
New homes
0

Full proposal

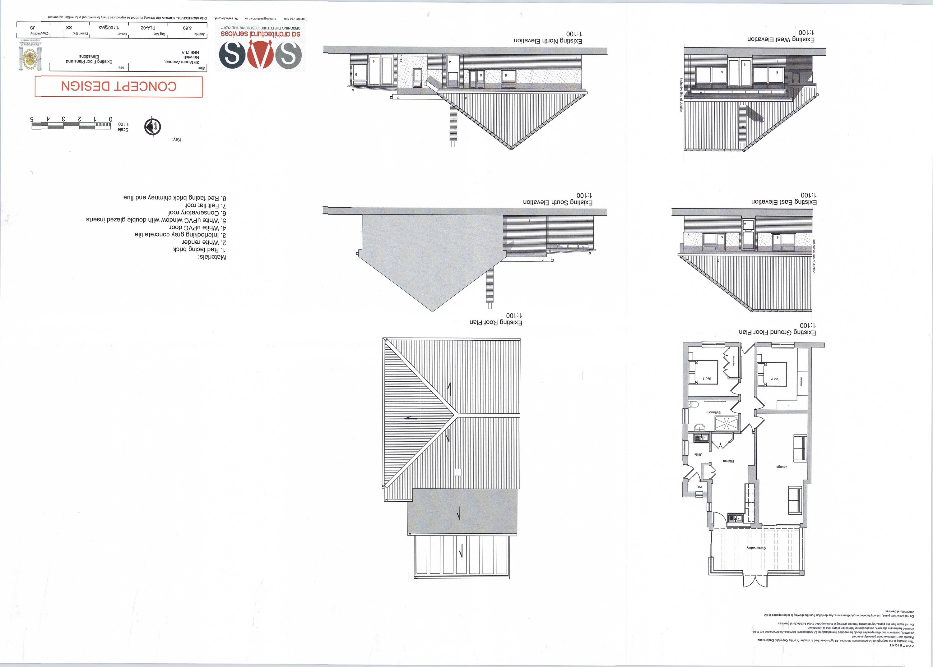
1. Gable lift (hip to gable conversion) 2. Rear dormer 3. side elevation wall to rear side of property

Documents

Application Form (K)
Archived · Original link
Drawing (K)
Archived · Original link
Drawing (K)
Archived · Original link
Drawing (K)
Archived · Original link
Drawing (K)
Archived · Original link

Have your say

Your comment matters. Councils must consider every representation that raises material planning considerations.

Write a comment