← Broadland and South Norfolk Council

Status

Pending Consideration Change of use
Received
30 Jan 2026
New homes
0

Full proposal

Change of use from educational institution (F1) to mixed use: F1, F2 and E(f)

Documents

Application Form (K)
Archived · Original link
CIL Documentation (K)
Archived · Original link
Consultee Comment (D)
Archived · Original link
Consultee Comment (D)
Archived · Original link
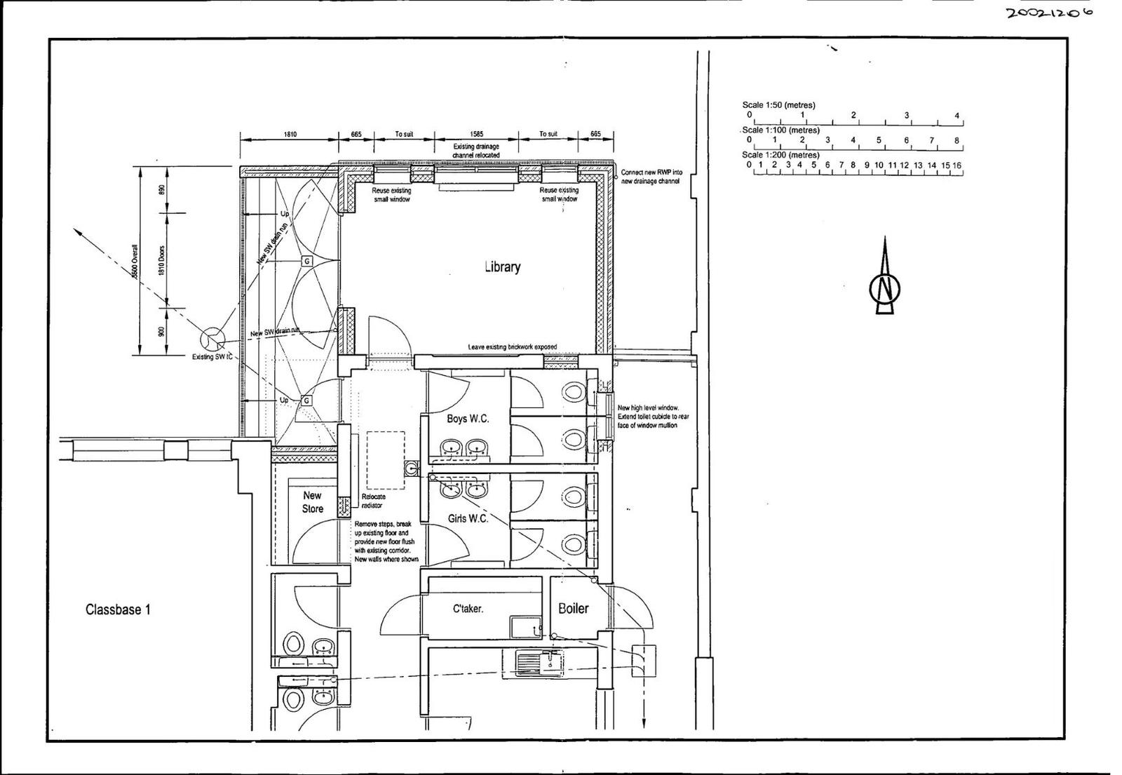
Drawing (K)
Archived · Original link
Drawing (K)
Archived · Original link
Consultee Comment (D)
Archived · Original link
BackGround Papers (K)
Archived · Original link
Drawing (K)
Archived · Original link
Photo (K)
Archived · Original link
Photo (K)
Archived · Original link
Photo (K)
Archived · Original link
Photo (K)
Archived · Original link
Photo (K)
Archived · Original link
Correspondence (D)
Archived · Original link
Drawing (K)
Archived · Original link

Have your say

Your comment matters. Councils must consider every representation that raises material planning considerations.

Write a comment