← Broadland and South Norfolk Council

Status

Pending Decision House extension
Received
02 Feb 2026
New homes
0

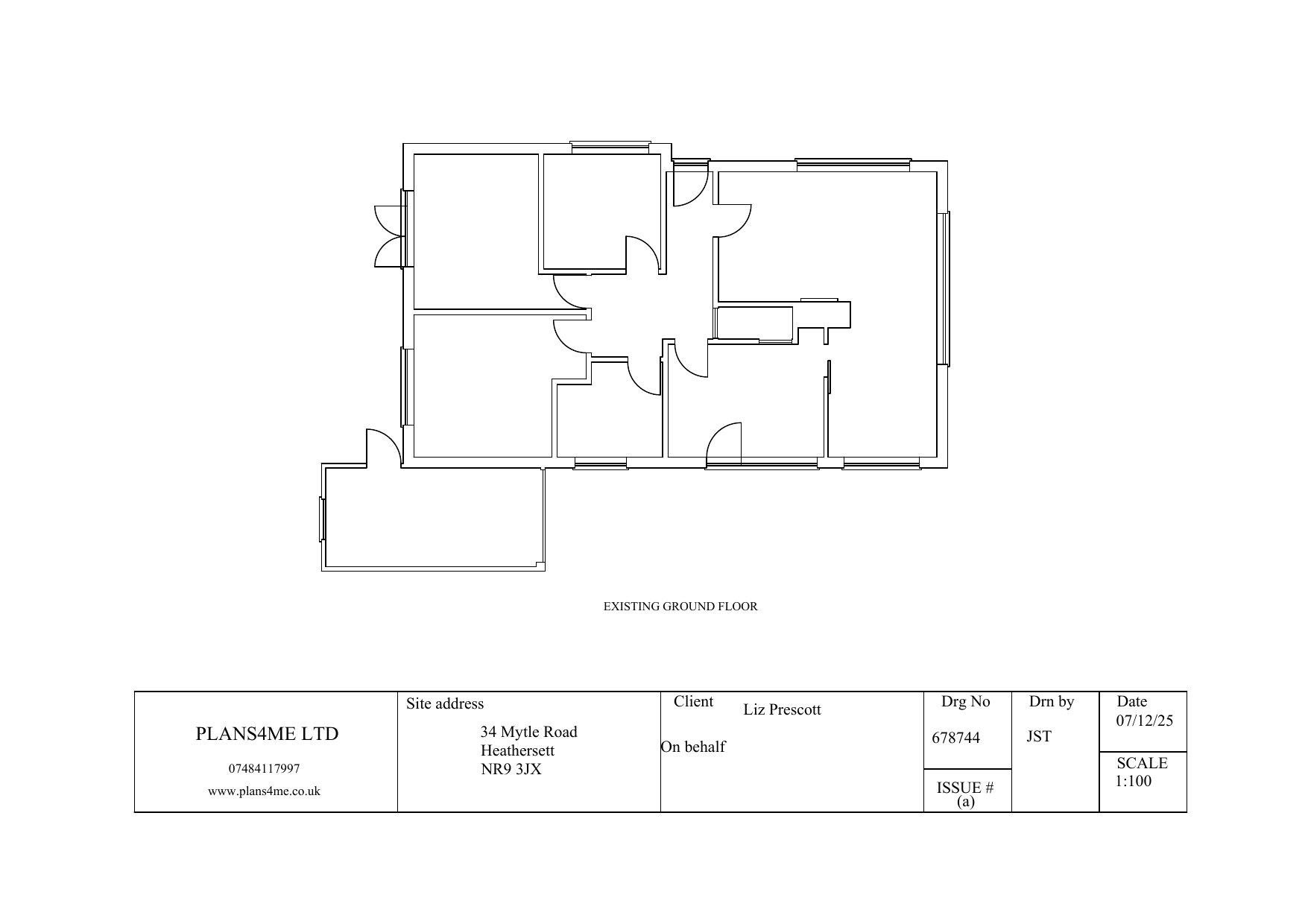
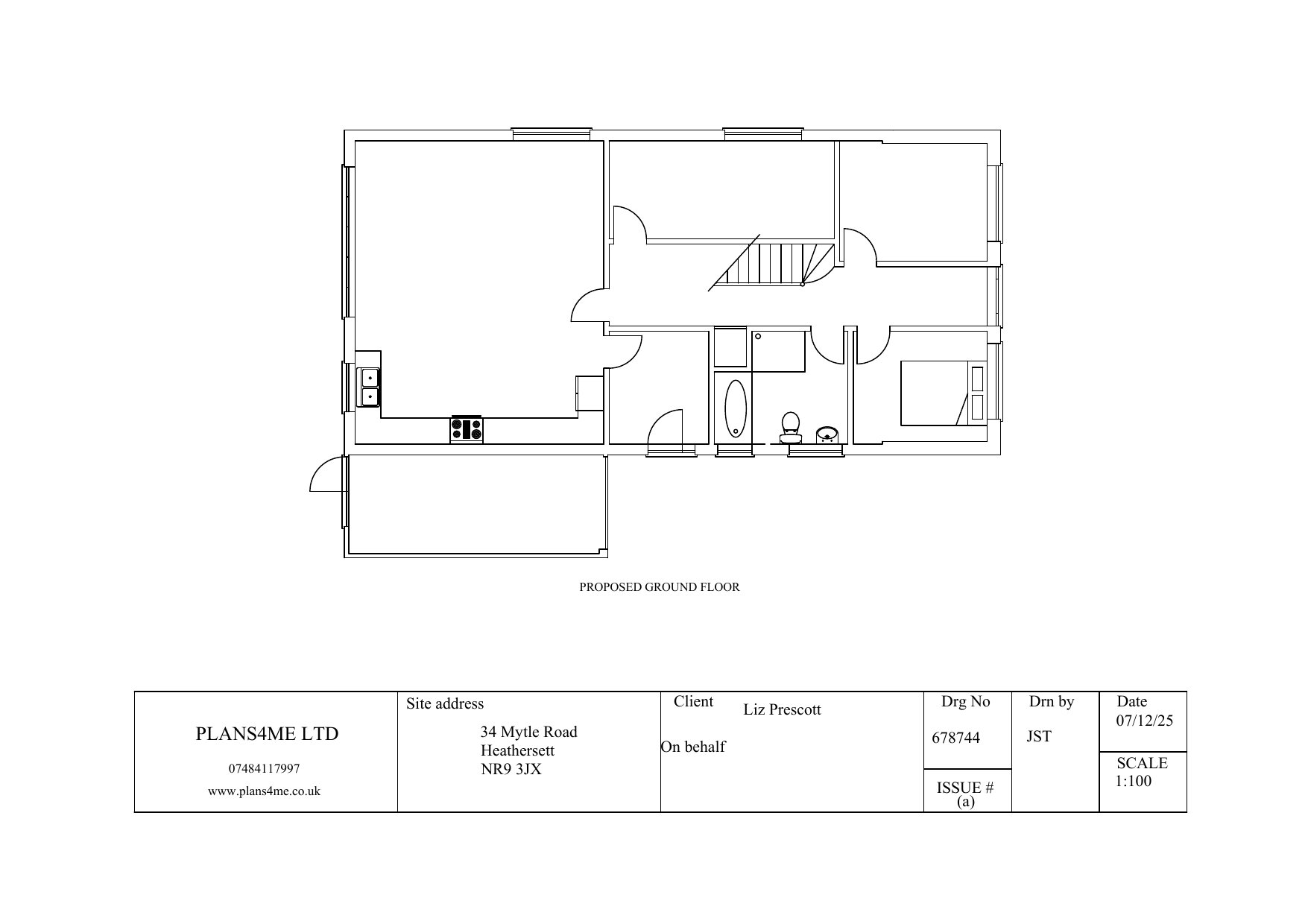
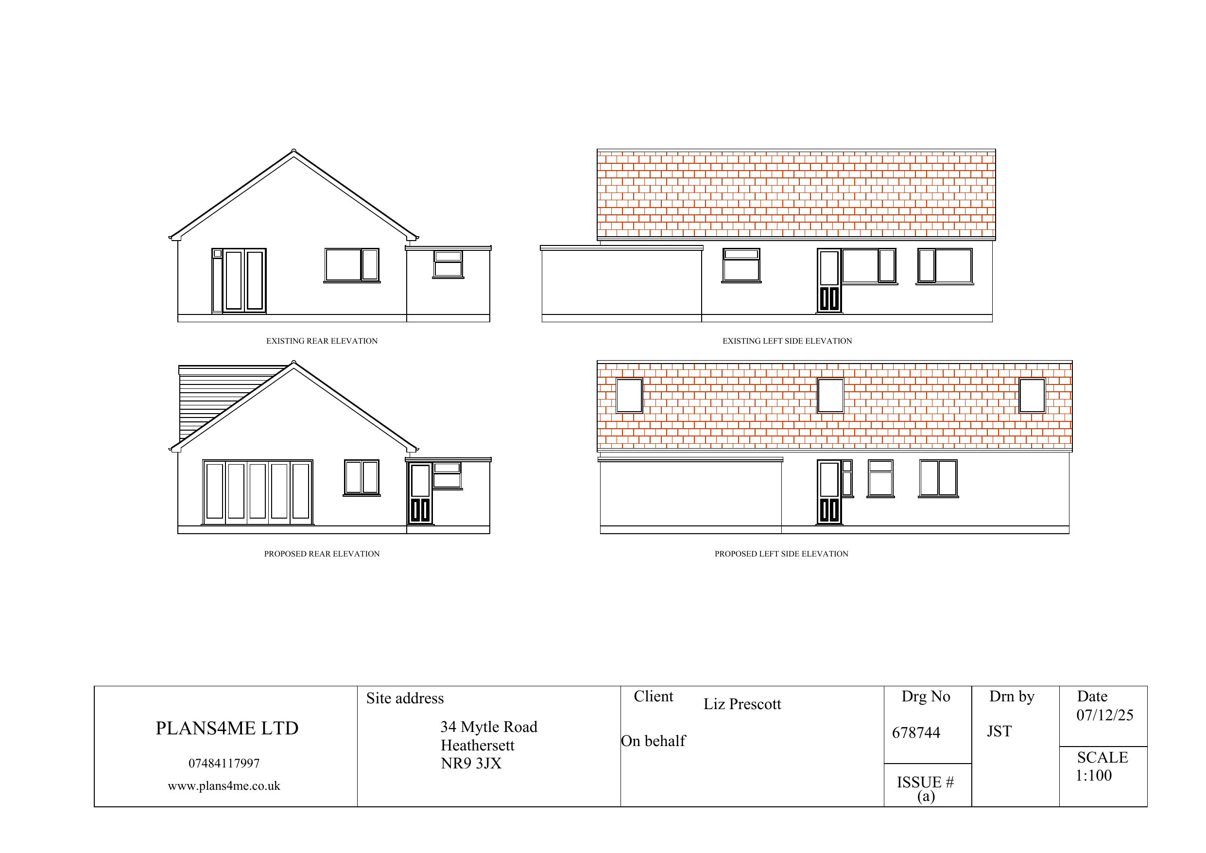
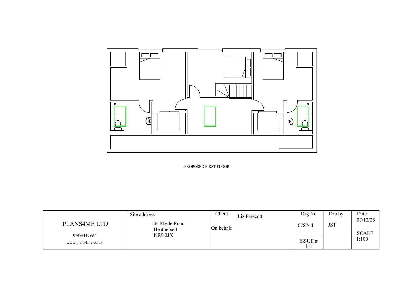
Full proposal

Front extension and side dormer

Documents

Report (K)
Archived · Original link
Application Form (K)
Archived · Original link
Drawing (K)
Archived · Original link
Drawing (K)
Archived · Original link
Consultee Comment (D)
Archived · Original link
Drawing (K)
Archived · Original link
Drawing (K)
Archived · Original link
Drawing (K)
Archived · Original link
Drawing (K)
Archived · Original link
Correspondence (D)
Archived · Original link

Have your say

Your comment matters. Councils must consider every representation that raises material planning considerations.

Write a comment