← Broadland and South Norfolk Council
2026/0385
Broadland and South Norfolk Council
Status
Pending Consideration
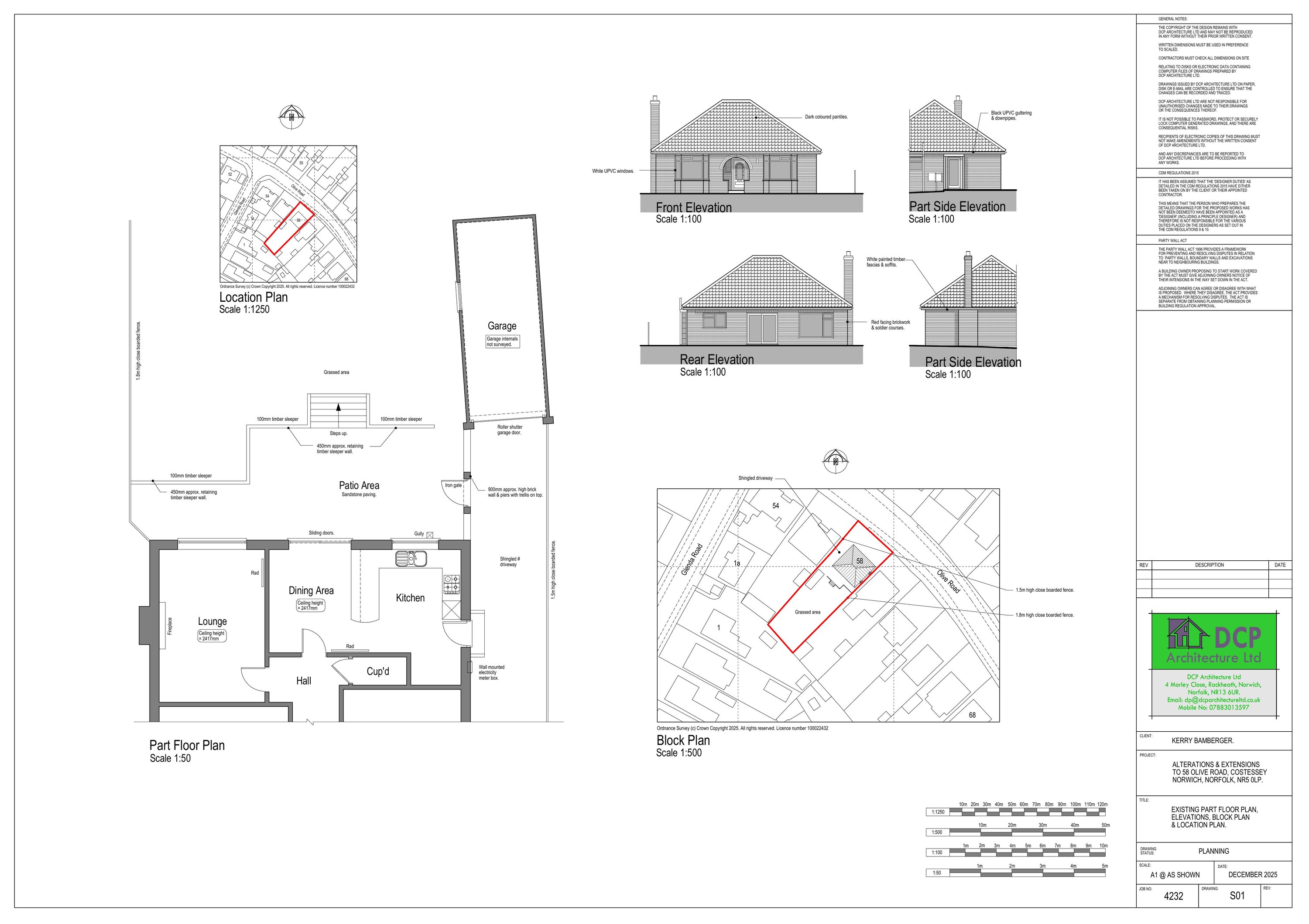
House extension
Received
Last month
New homes
0
Full proposal
Single storey flat roof side extension and single storey rear extension
Documents
Have your say
Your comment matters. Councils must consider every representation that raises material planning considerations.