← Broadland and South Norfolk Council

Status

Pending Consideration New housing
Received
Last month
New homes
0

Full proposal

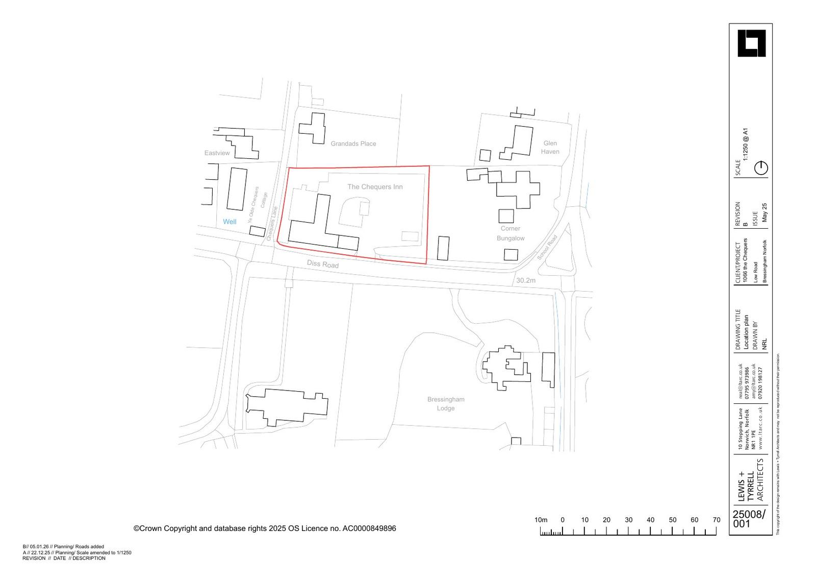
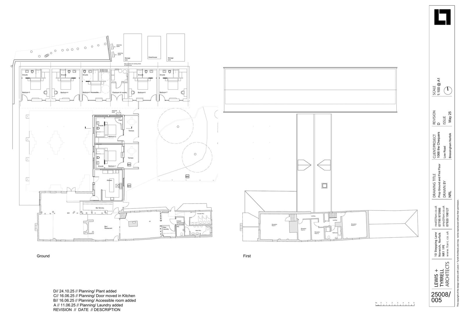
Internal and external alterations to rear extension. Erection of new building for accommodation and associated works

Documents

Application Form (K)
Archived · Original link
Drawing (K)
Archived · Original link
Drawing (K)
Archived · Original link
Bng statutory matrix
Report (K)
Not yet archived · Original link
CIL Documentation (K)
Archived · Original link
Consultee Comment (D)
Archived · Original link
Drawing (K)
Archived · Original link
Drawing (K)
Archived · Original link
BackGround Papers (K)
Archived · Original link
Drawing (K)
Archived · Original link
Drawing (K)
Archived · Original link

Have your say

Your comment matters. Councils must consider every representation that raises material planning considerations.

Write a comment