← Broadland and South Norfolk Council

Status

Pending Consideration House extension
Received
Last month
New homes
0

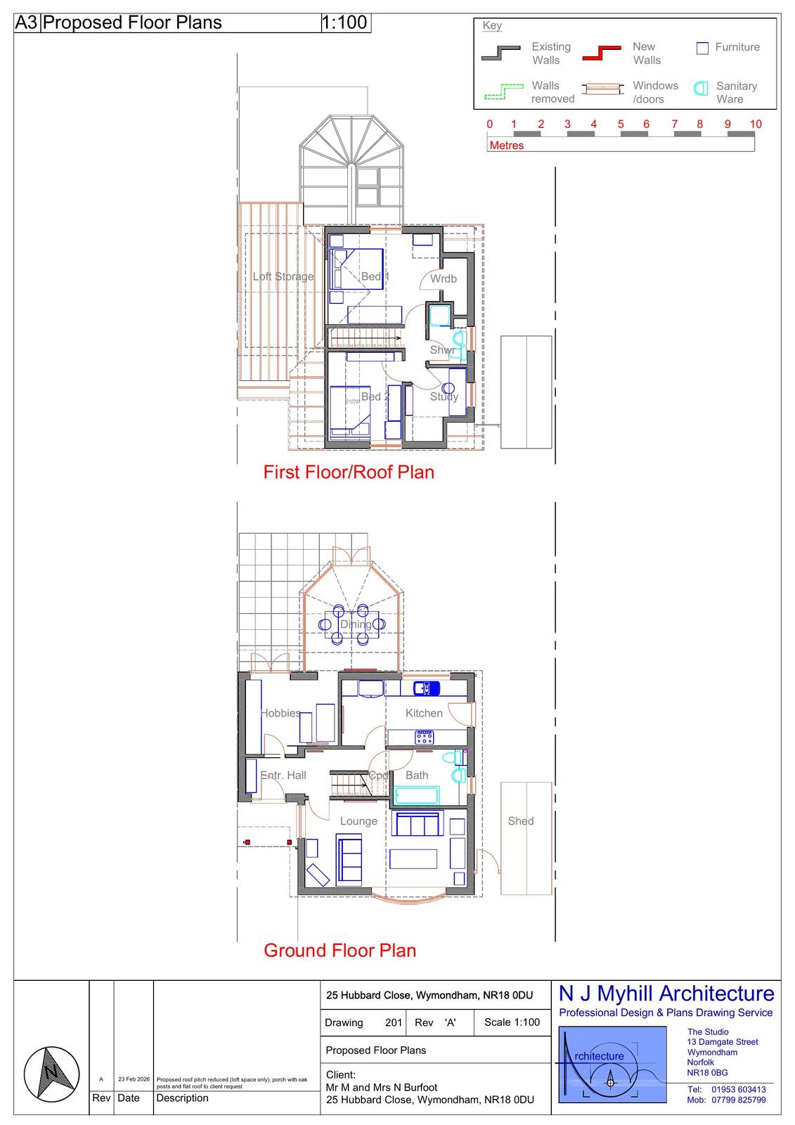
Full proposal

Replacement of flat roof with pitched roof over entrance hall/ hobbies room. Existing porch amended with oak posts and widened flat roof.

Documents

Application form
Application Form (K)
Not yet archived · Original link
Existing elevations
Drawing (K)
Not yet archived · Original link
Existing floor plans
Drawing (K)
Not yet archived · Original link
Drawing (K)
Archived · Original link
Location plan
Drawing (K)
Not yet archived · Original link
Proposed elevations
Drawing (K)
Not yet archived · Original link
Drawing (K)
Archived · Original link
Drawing (K)
Archived · Original link

Have your say

Your comment matters. Councils must consider every representation that raises material planning considerations.

Write a comment