← South Ribble Borough Council

Status

Unknown House extension
Received
22 Jan 2025
New homes
0

Full proposal

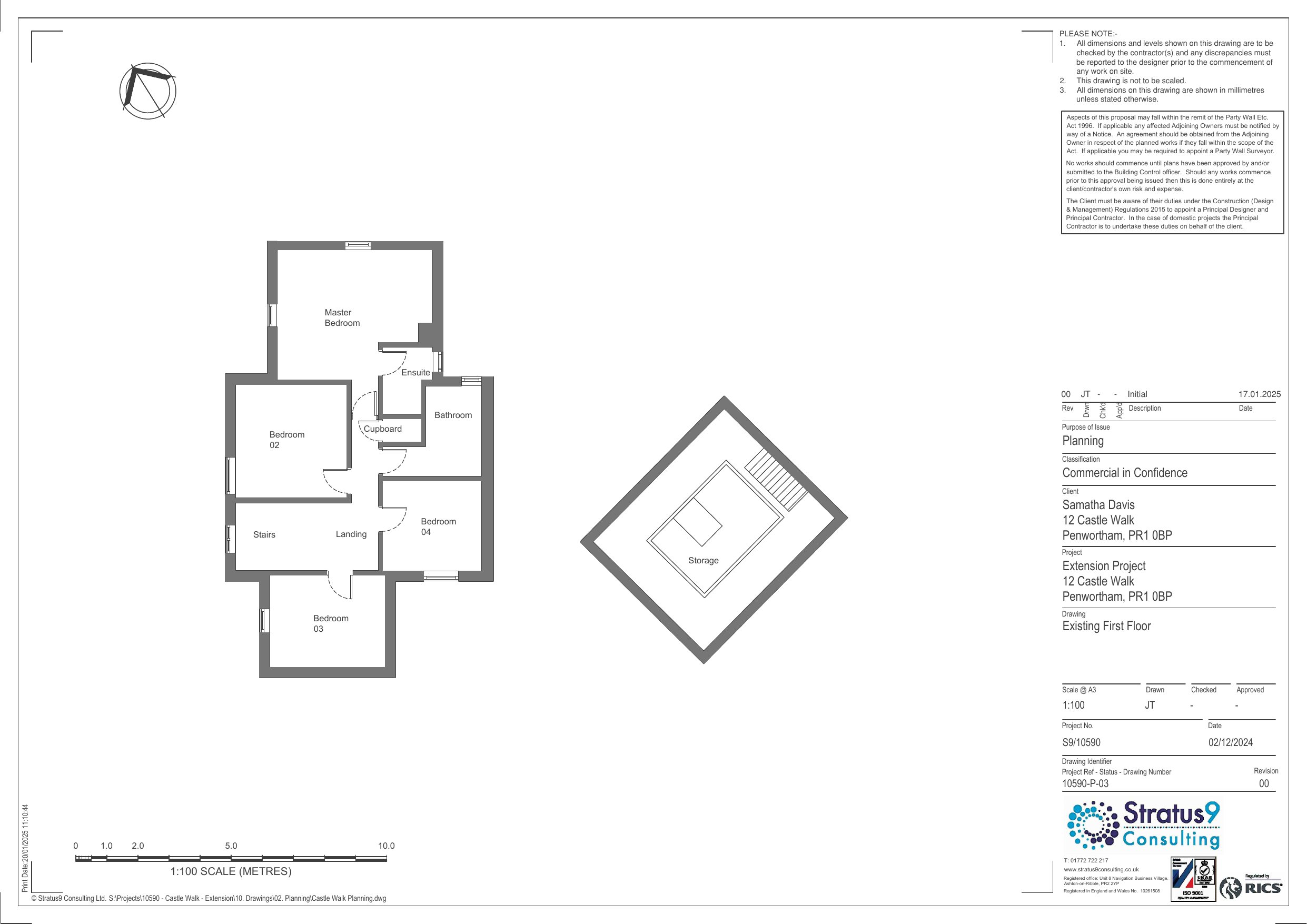
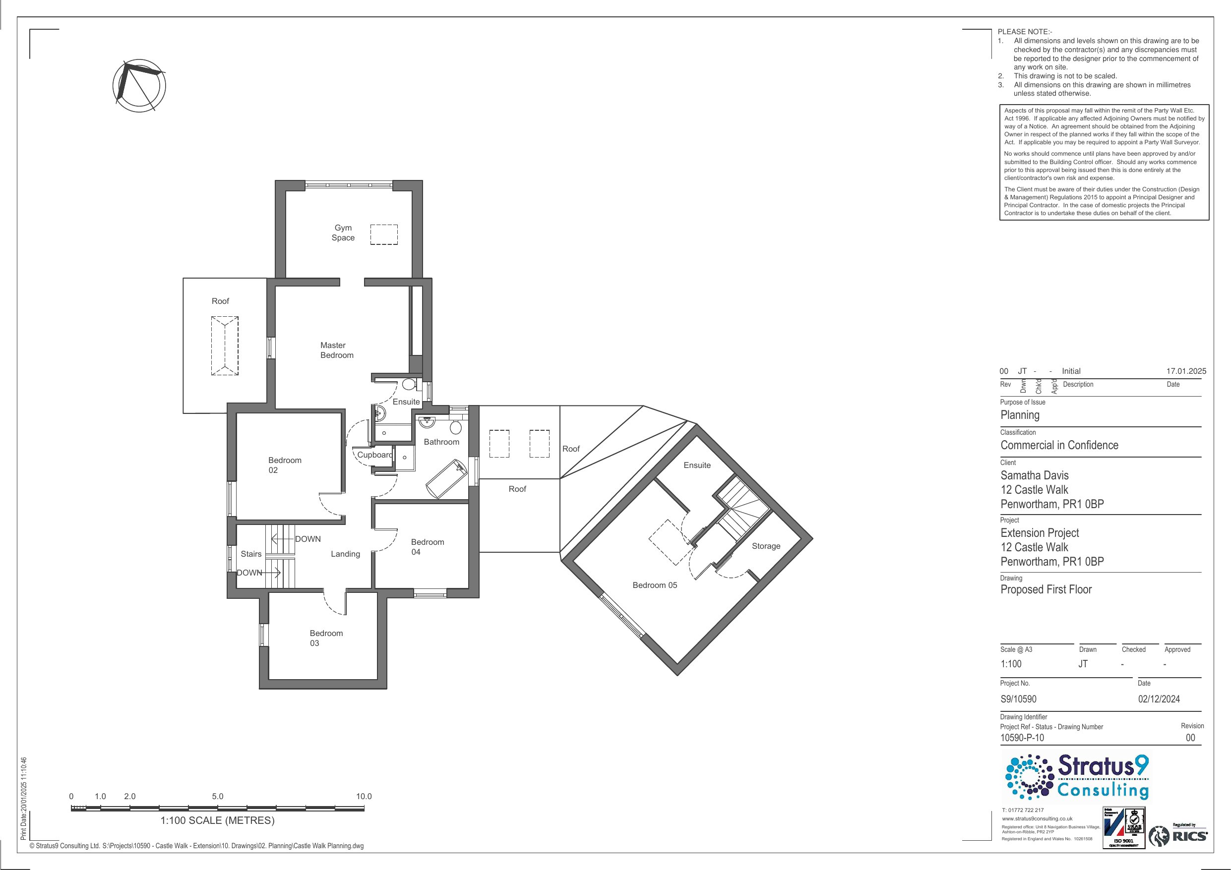
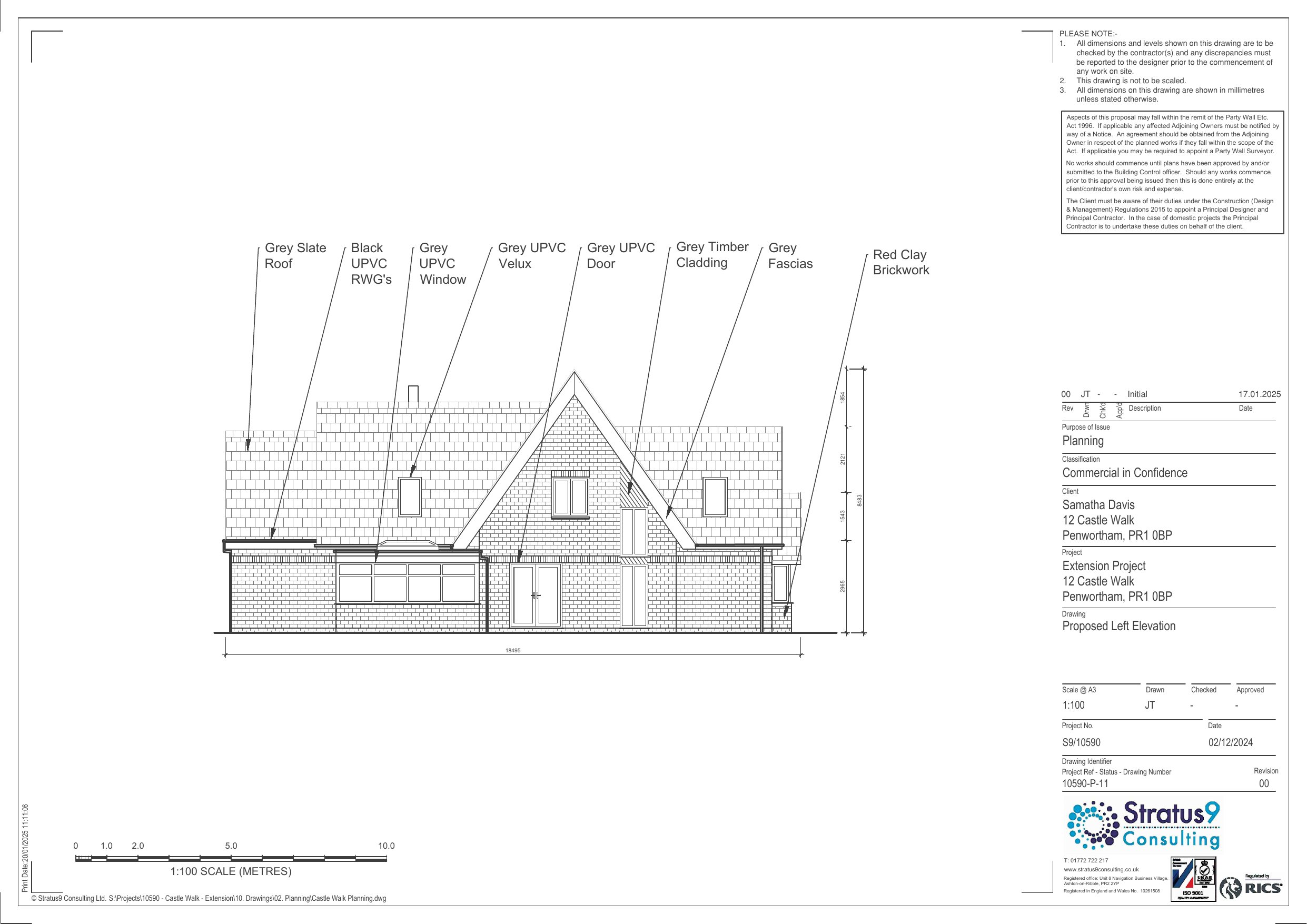
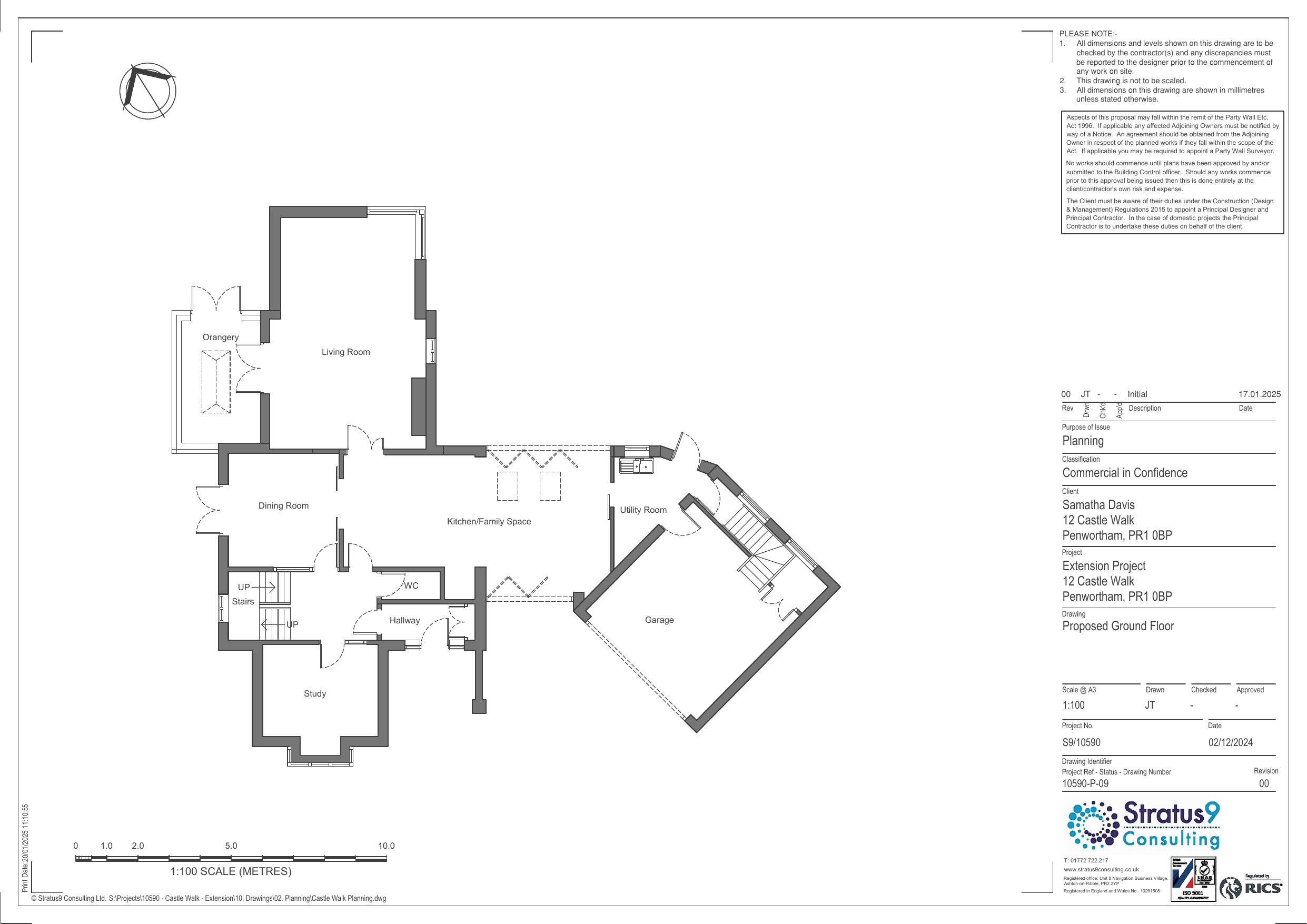
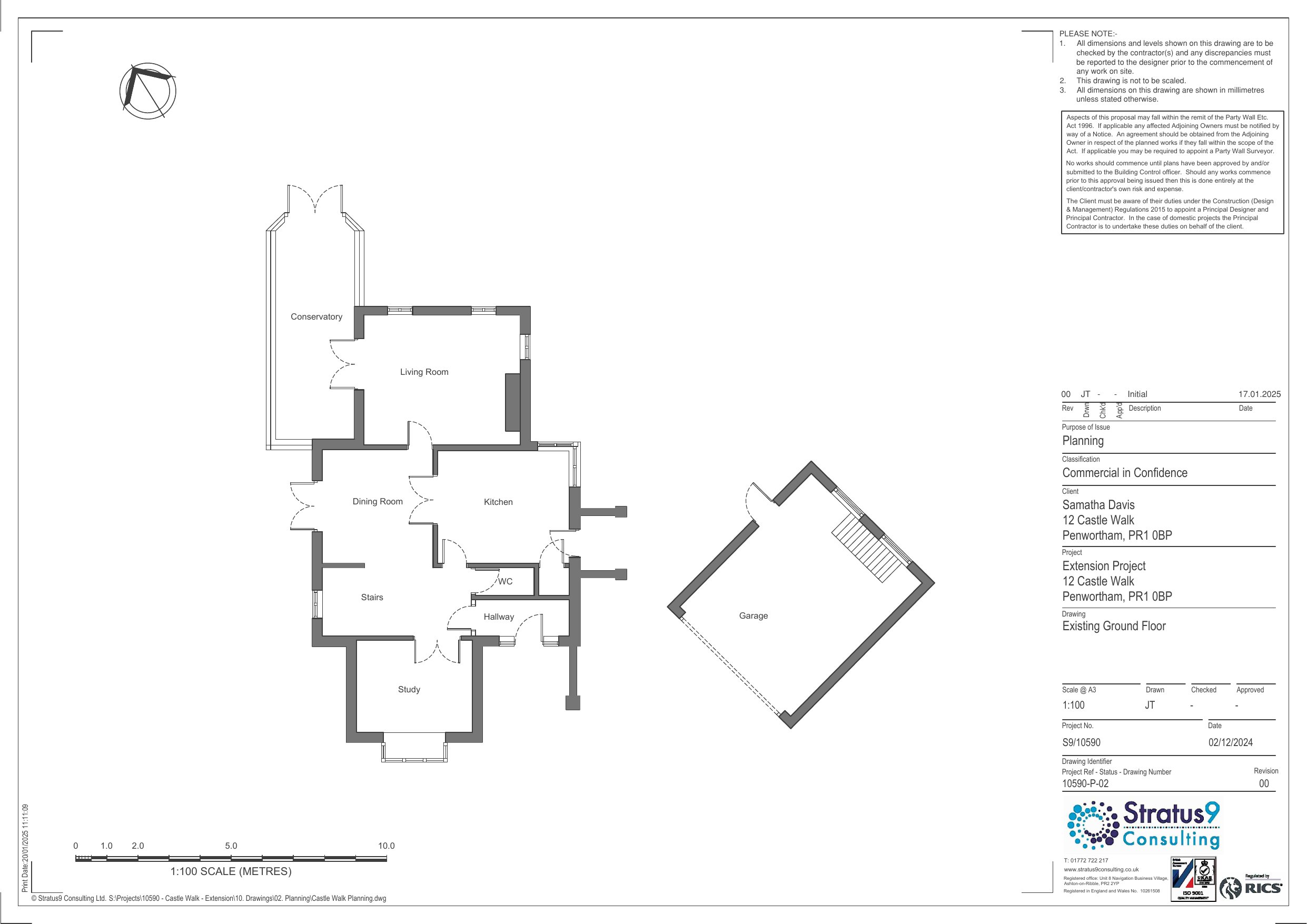
Single storey extension to side, two storey extension to rear, creation of bay window to front, and conversion of garage first floor to habitable space with proposed front dormer

Documents

Planning File
Archived · Original link
Decision
Archived · Original link
Planning File
Archived · Original link
Planning File
Archived · Original link
Consultee Response
Archived · Original link
Delegated Report
Archived · Original link
Planning File
Archived · Original link
Planning File
Archived · Original link
Planning File
Archived · Original link
Planning File
Archived · Original link
Planning File
Archived · Original link
Planning File
Archived · Original link
Planning File
Archived · Original link
Planning File
Archived · Original link
Planning File
Archived · Original link
Planning File
Archived · Original link
Planning File
Archived · Original link
Planning File
Archived · Original link
Planning File
Archived · Original link

Have your say

Your comment matters. Councils must consider every representation that raises material planning considerations.

Write a comment