← South Ribble Borough Council

Status

Unknown New housing
Received
30 Jan 2025
New homes
4

Summary

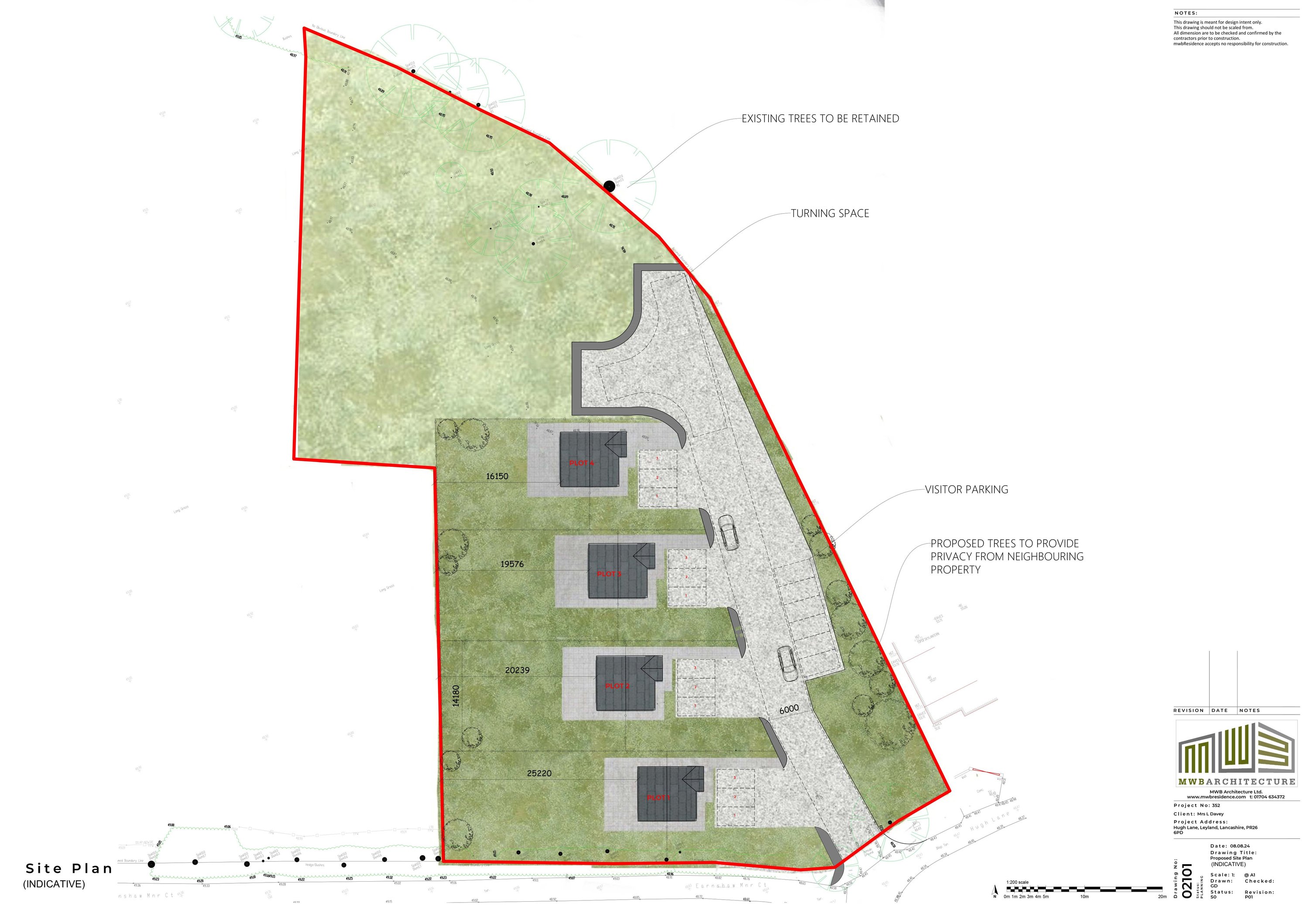
Proposal for erection of up to four dwellings.

Full proposal

Erection of up to four dwellings

Documents

APPLICATION FORM REDACTED
Planning File
Not yet archived · Original link
CIL
Consultee Response
Not yet archived · Original link
CIL FORM
Planning File
Not yet archived · Original link
Decision Notice
Decision Notice
Not yet archived · Original link
Delegated Report
Delegated Report
Not yet archived · Original link
FIRE RESPONSE
Consultee Response
Not yet archived · Original link
INDICATIVE HOUSE TYPE - FLOOR PLANS AND ELEVATIONS
Planning File
Not yet archived · Original link
Planning File
Archived · Original link
Planning File
Archived · Original link
LOCATION PLAN
Planning File
Not yet archived · Original link
PLANNING STATEMENT
Planning File
Not yet archived · Original link

Have your say

Your comment matters. Councils must consider every representation that raises material planning considerations.

Write a comment