← South Ribble Borough Council

Status

Unknown House extension
Received
24 May 2025
New homes
0

Full proposal

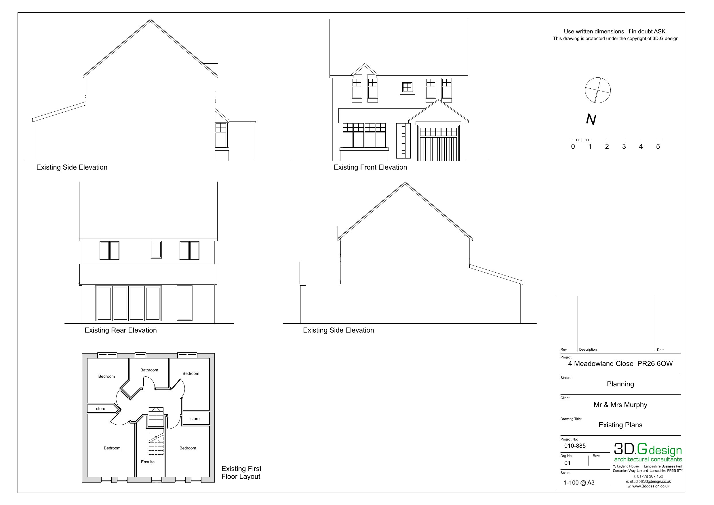
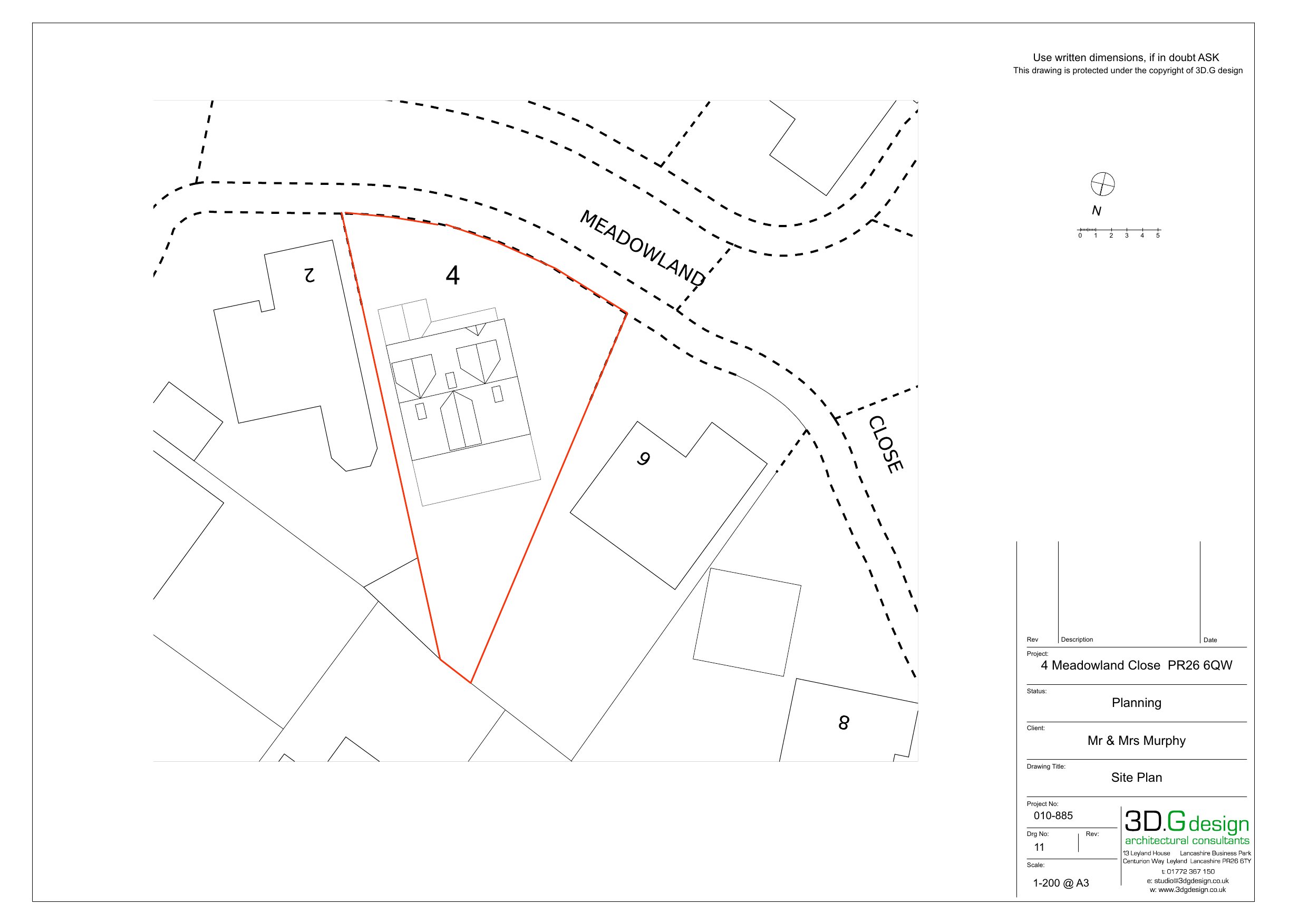
Proposed Loft Conversion with Front and Rear Dormer Windows

Documents

Planning File
Archived · Original link
Decision
Archived · Original link
CIL
Consultee Response
Archived · Original link
Delegated Report
Archived · Original link
Planning File
Archived · Original link
Planning File
Archived · Original link
Planning File
Archived · Original link
Planning File
Archived · Original link

Have your say

Your comment matters. Councils must consider every representation that raises material planning considerations.

Write a comment