← Back to South Ribble Borough Council
Application
07/2025/00849/HOH
South Ribble Borough Council · IDOX
Status
Unknown
Received
28 Oct 2025
New dwellings
n/a
What you can do
Take Action
Make your voice heard. Authorities need to hear from people who support new homes.
Full Proposal
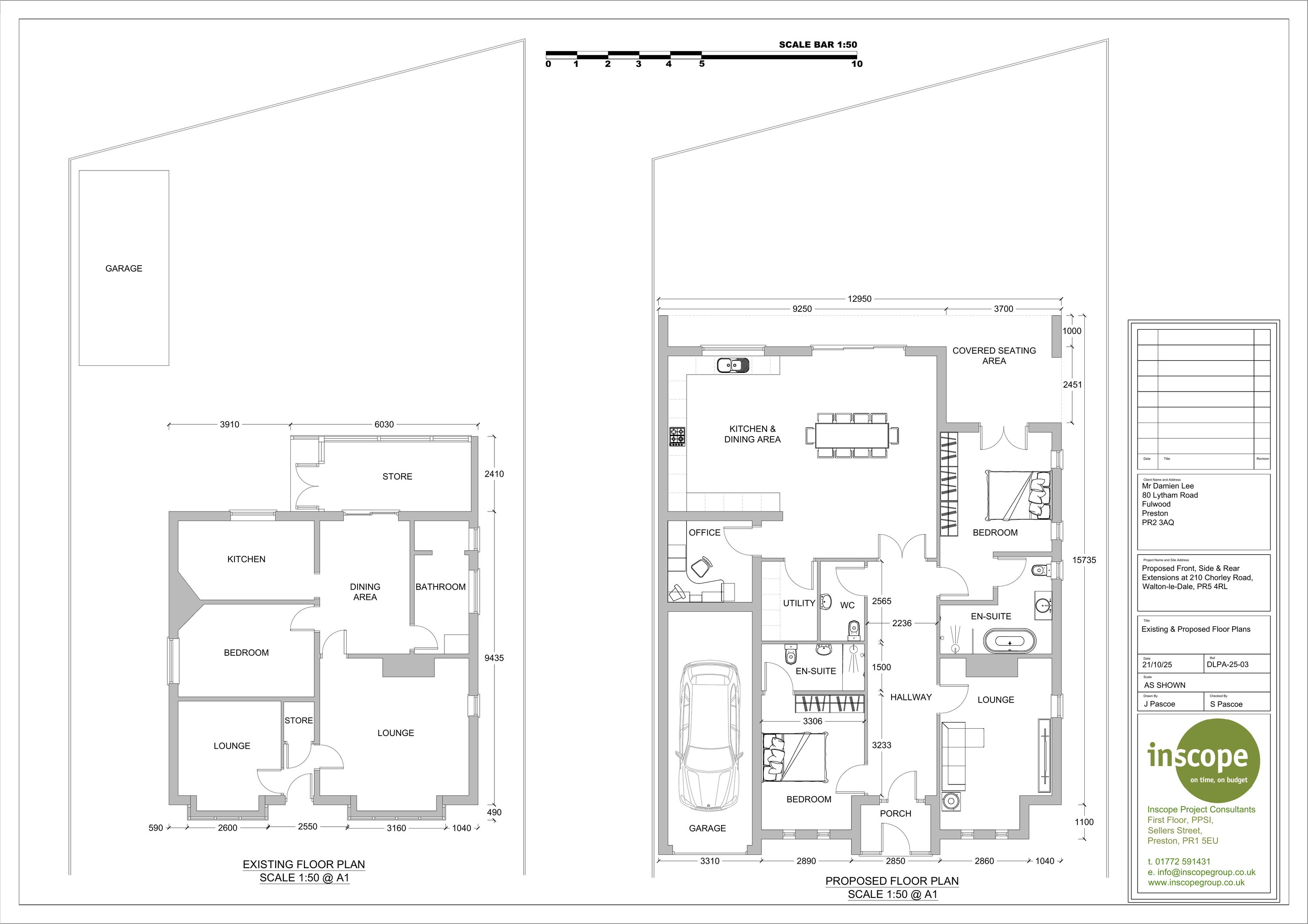
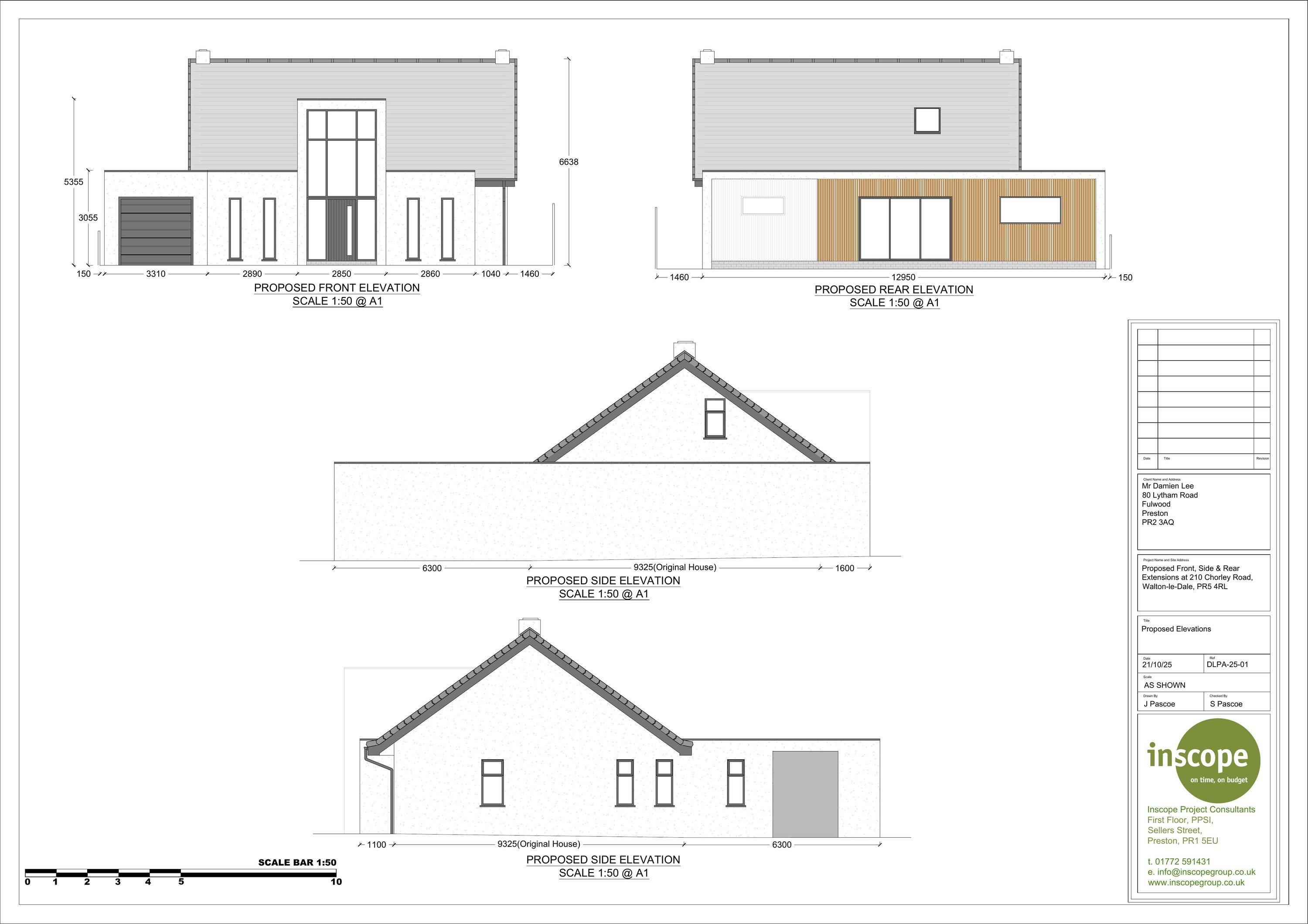
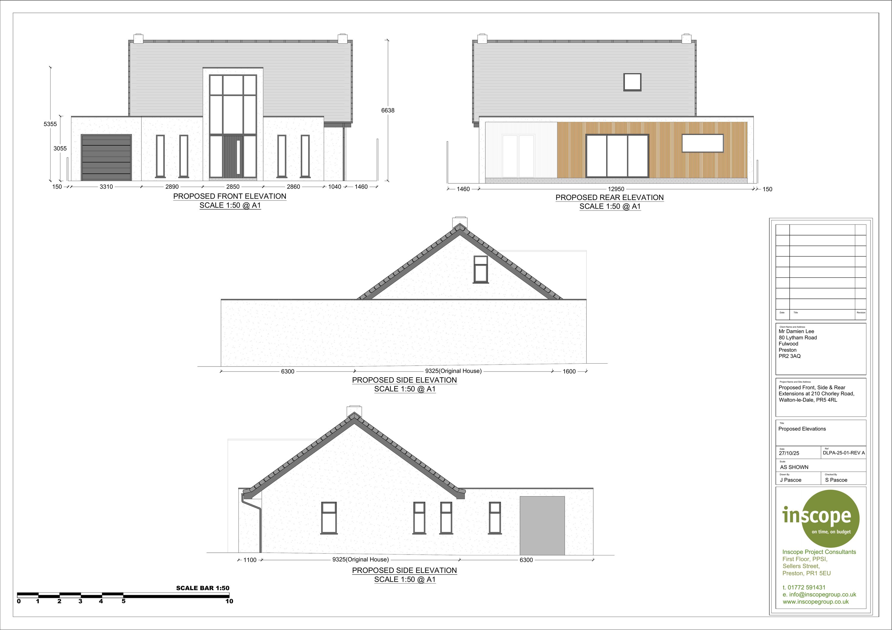
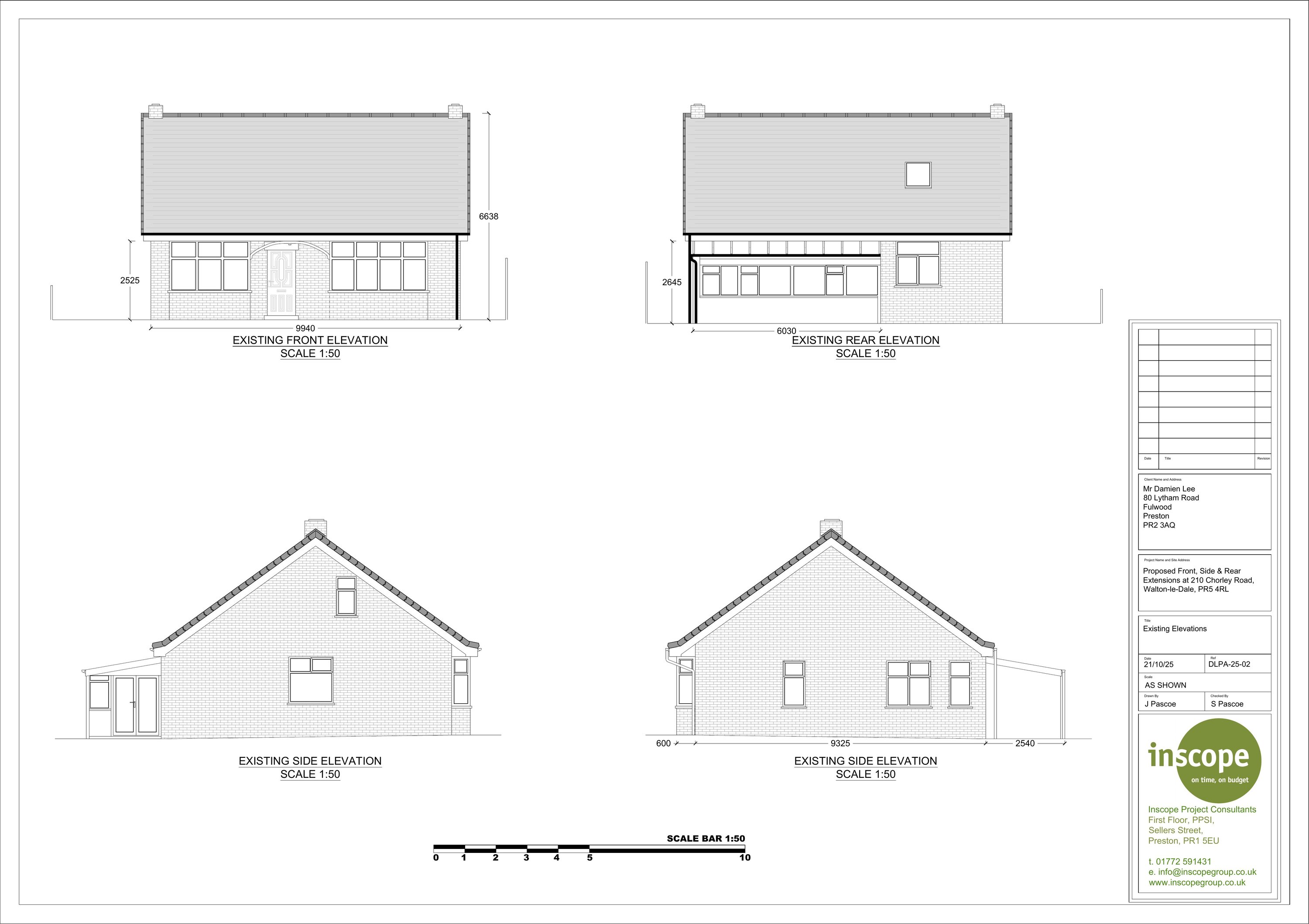
Proposed demolition of an existing rear store extension and garage. Proposed construction of a wrap around flat roof front, side/rear extension with a canopy extension roof to the rear. Changes to fenestration and addition of a flat roof dormer to create a front entrance extension with full height glazing.
Detail pages
- View live detail on council site
- No archived detail page available.
Documents
APPLICATION FORM REDACTED
Planning File
Not downloaded
· Council link
ECOLOGY REPORT
Planning File
Not downloaded
· Council link
ECOLOGY RESPONSE
Consultee Response
Not downloaded
· Council link
EXISTING AND PROPOSED LAYOUT PLAN
Planning File
Not downloaded
· Council link
EXISTING AND PROPOSED ROOF PLAN
Planning File
Not downloaded
· Council link
EXISTING ELEVATIONS
Planning File
Not downloaded
· Council link
LOCATION PLAN
Planning File
Not downloaded
· Council link
PROPOSED ELEVATIONS
Planning File
Not downloaded
· Council link
PROPOSED FRONT SIDE AND REAR EXTENSION
Planning File
Not downloaded
· Council link
SITE PLAN
Planning File
Archived copy
· Council link