← South Ribble Borough Council

Status

Unknown House extension
Received
16 Dec 2025
New homes
0

Full proposal

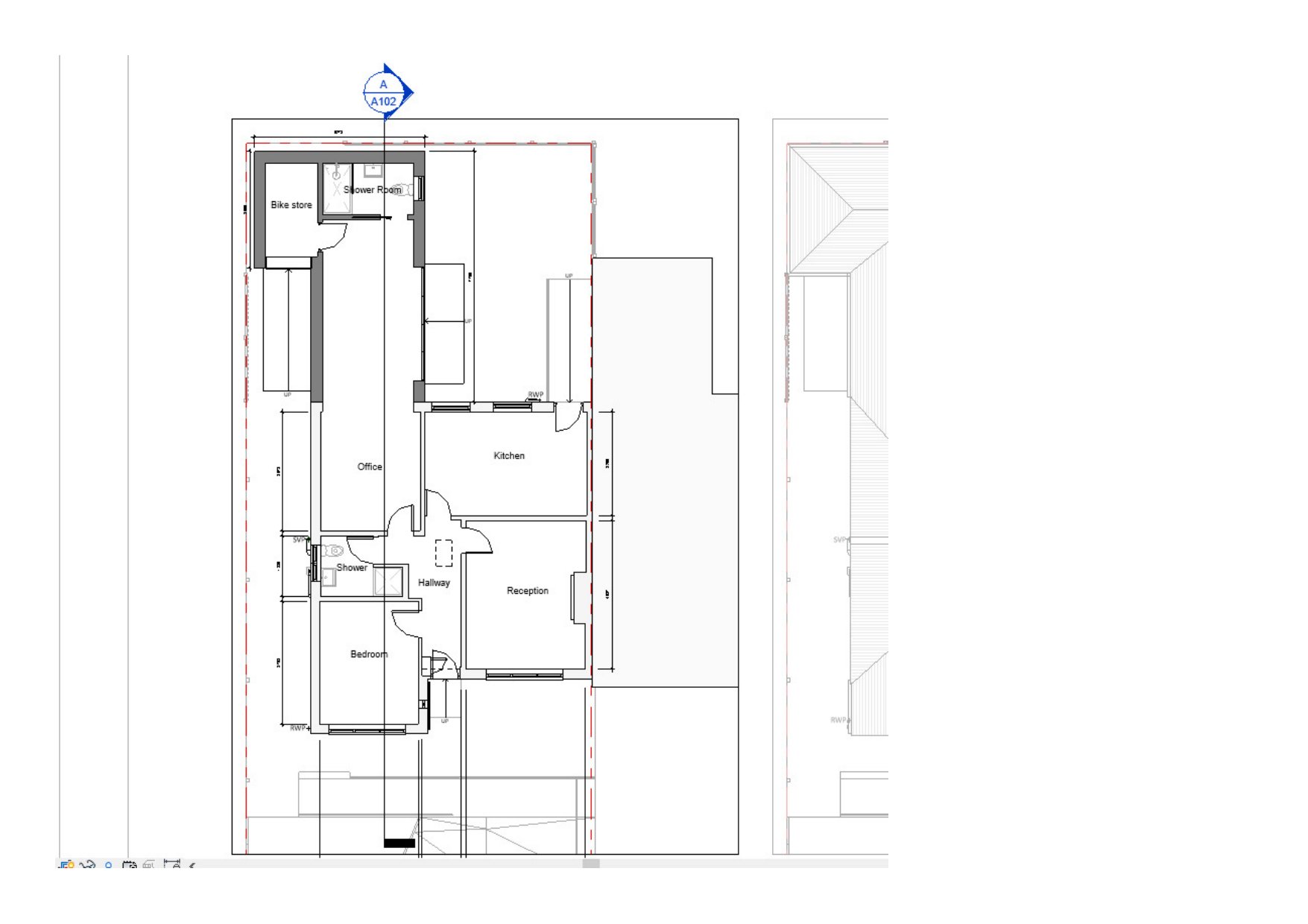
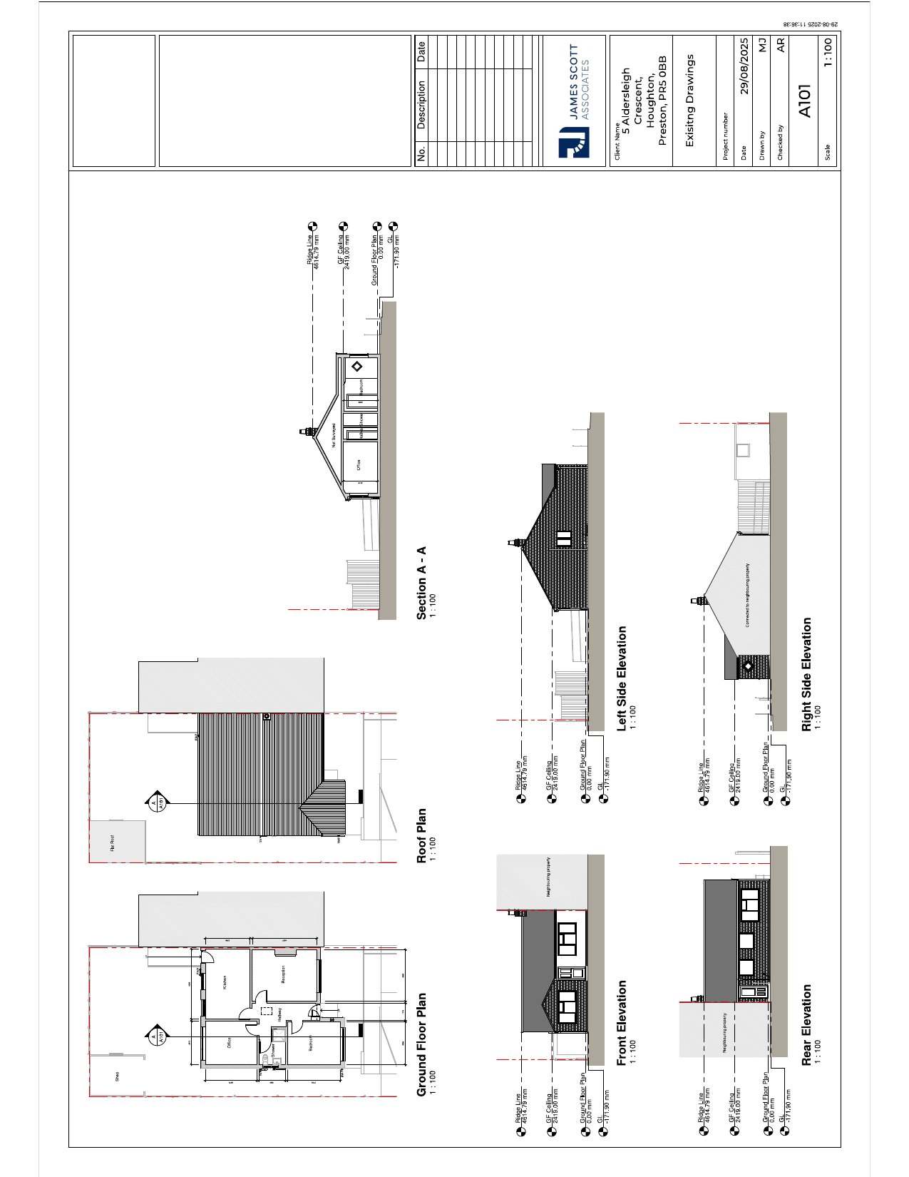
Single storey rear extension which connects existing dwelling to existing garage, with conversion of garage to additional living accomodation and store and two additional external ramps.

Documents

Planning File
Archived · Original link
CIL
Consultee Response
Archived · Original link
Planning File
Archived · Original link
Consultee Response
Archived · Original link
Planning File
Archived · Original link
Planning File
Archived · Original link
Planning File
Archived · Original link

Have your say

Your comment matters. Councils must consider every representation that raises material planning considerations.

Write a comment