← South Ribble Borough Council

Status

Unknown Commercial
Received
14 Jan 2026
New homes
2

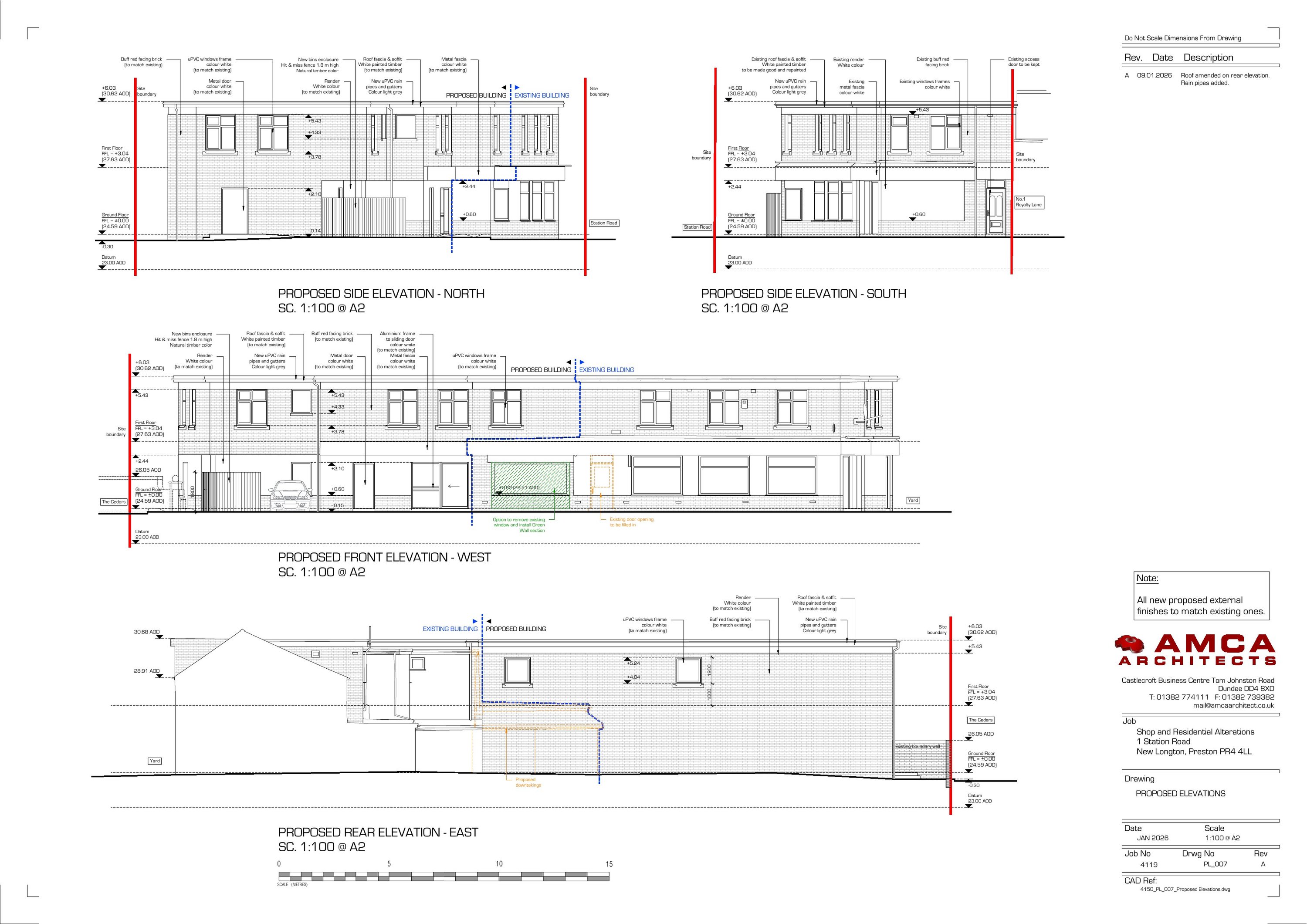
Full proposal

Extension of existing retail unit to Ground Floor (with proposed extension of opening hours Monday - Friday up to 9pm closing time) and residential building to first floor to provide 2 no residential apartments and demolition of existing garage.

Documents

Planning File
Archived · Original link
Planning File
Archived · Original link
CIL
Consultee Response
Archived · Original link
Planning File
Archived · Original link
Consultee Response
Archived · Original link
Planning File
Archived · Original link
Planning File
Archived · Original link
Planning File
Archived · Original link
Planning File
Archived · Original link
Planning File
Archived · Original link
Planning File
Archived · Original link
Consultee Response
Archived · Original link
Planning File
Archived · Original link
Planning File
Archived · Original link
Planning File
Archived · Original link
Planning File
Archived · Original link
Planning File
Archived · Original link
Planning File
Archived · Original link
Planning File
Archived · Original link
Planning File
Archived · Original link
Planning File
Archived · Original link
Planning File
Archived · Original link

Have your say

Your comment matters. Councils must consider every representation that raises material planning considerations.

Write a comment