← South Ribble Borough Council

Status

Unknown Change of use
Received
26 Jan 2026
New homes
0

Full proposal

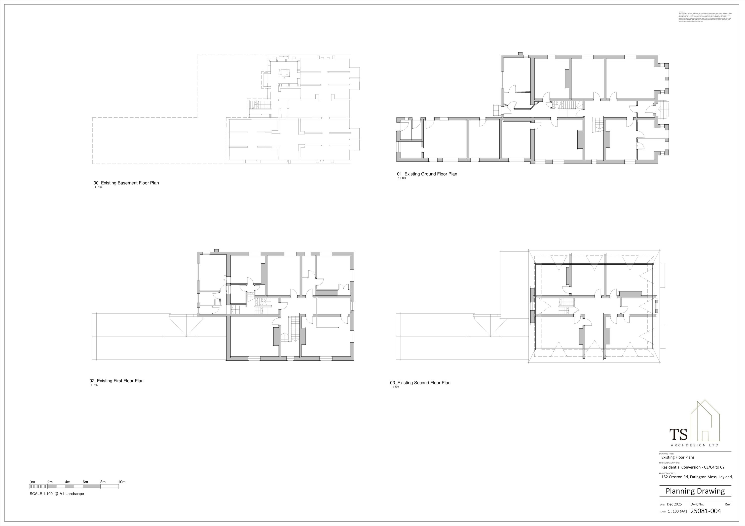
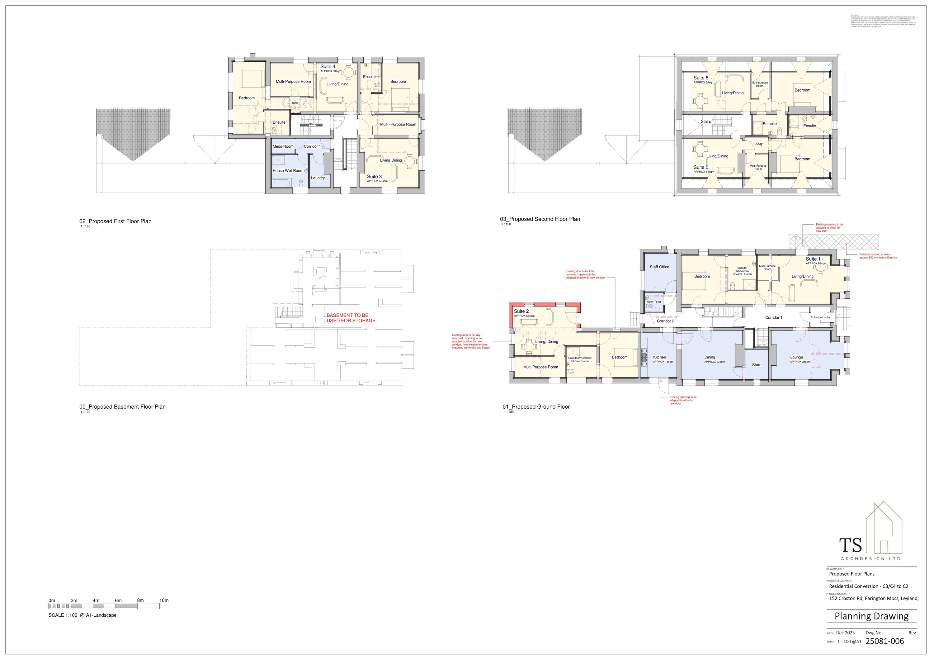
Conversion of a 14no. bedroom HMO to form 6no. supported living accommodation suites (Use Class C2) with associated communal areas, including single storey rear extension and alterations to windows and doors

Documents

Planning File
Archived · Original link
Planning File
Archived · Original link
Consultee Response
Archived · Original link
Planning File
Archived · Original link
Planning File
Archived · Original link
Planning File
Archived · Original link
Planning File
Archived · Original link
Planning File
Archived · Original link
Planning File
Archived · Original link
Planning File
Archived · Original link
Planning File
Archived · Original link
Planning File
Archived · Original link
Planning File
Archived · Original link

Have your say

Your comment matters. Councils must consider every representation that raises material planning considerations.

Write a comment