← South Ribble Borough Council

Status

Unknown House extension
Received
29 Jan 2026
New homes
0

Full proposal

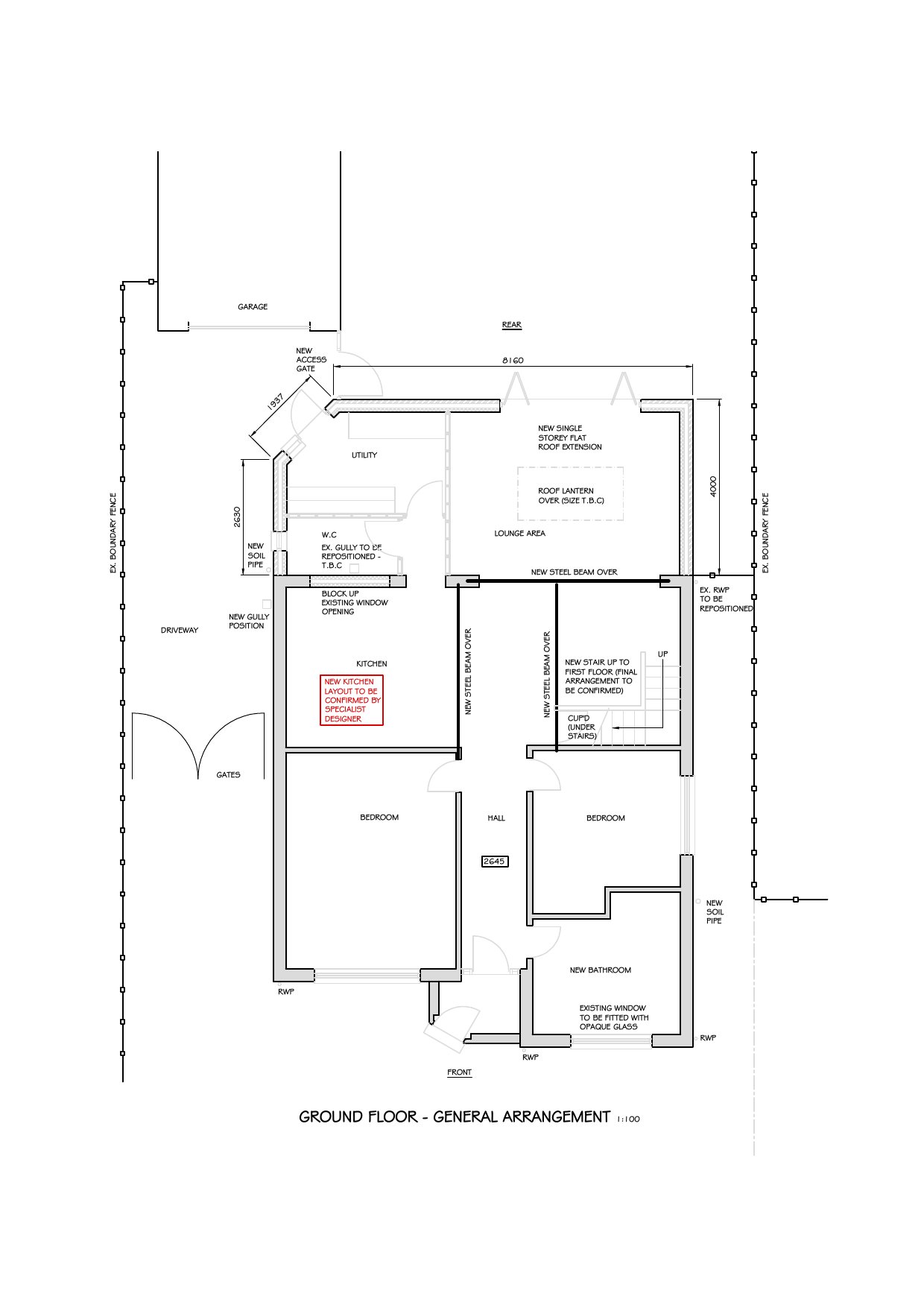
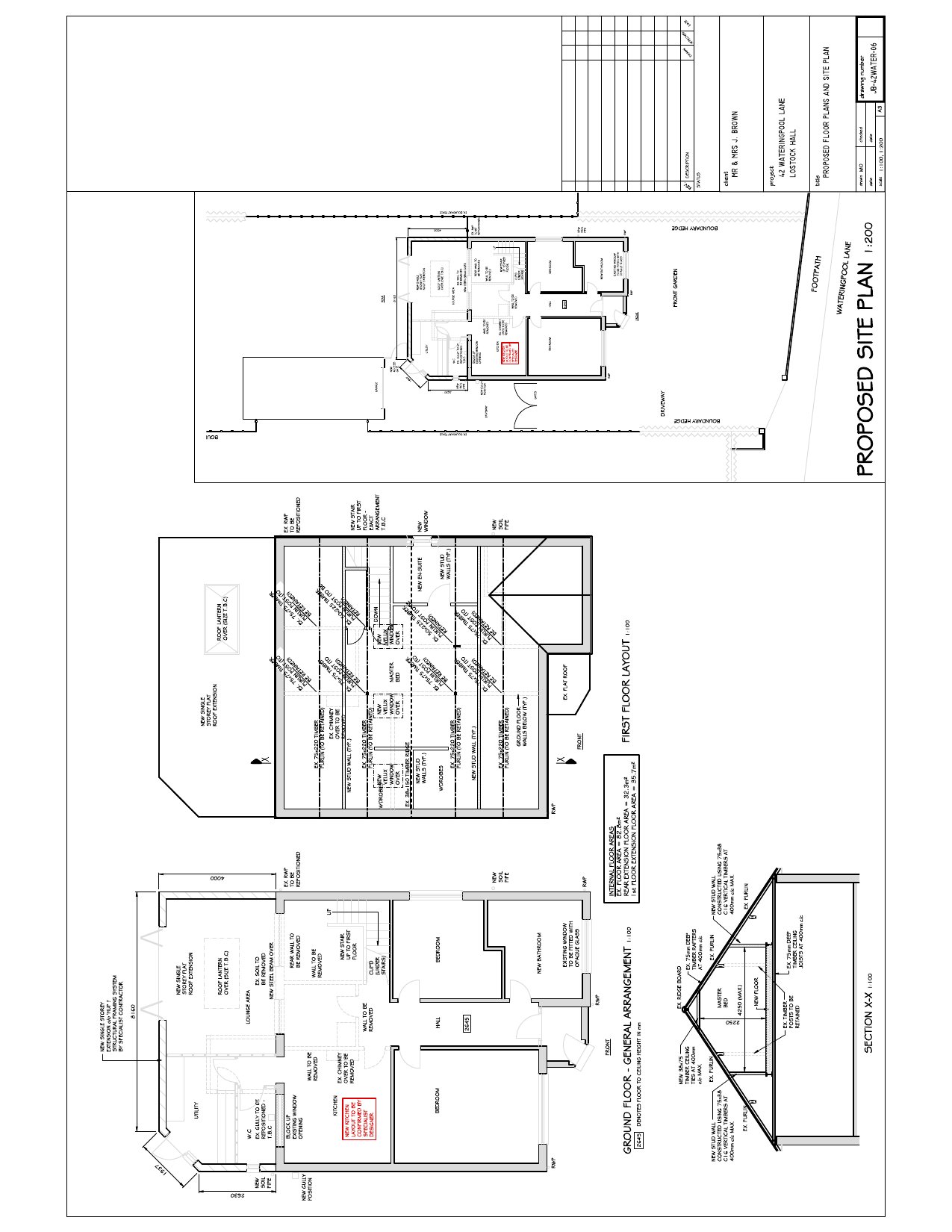
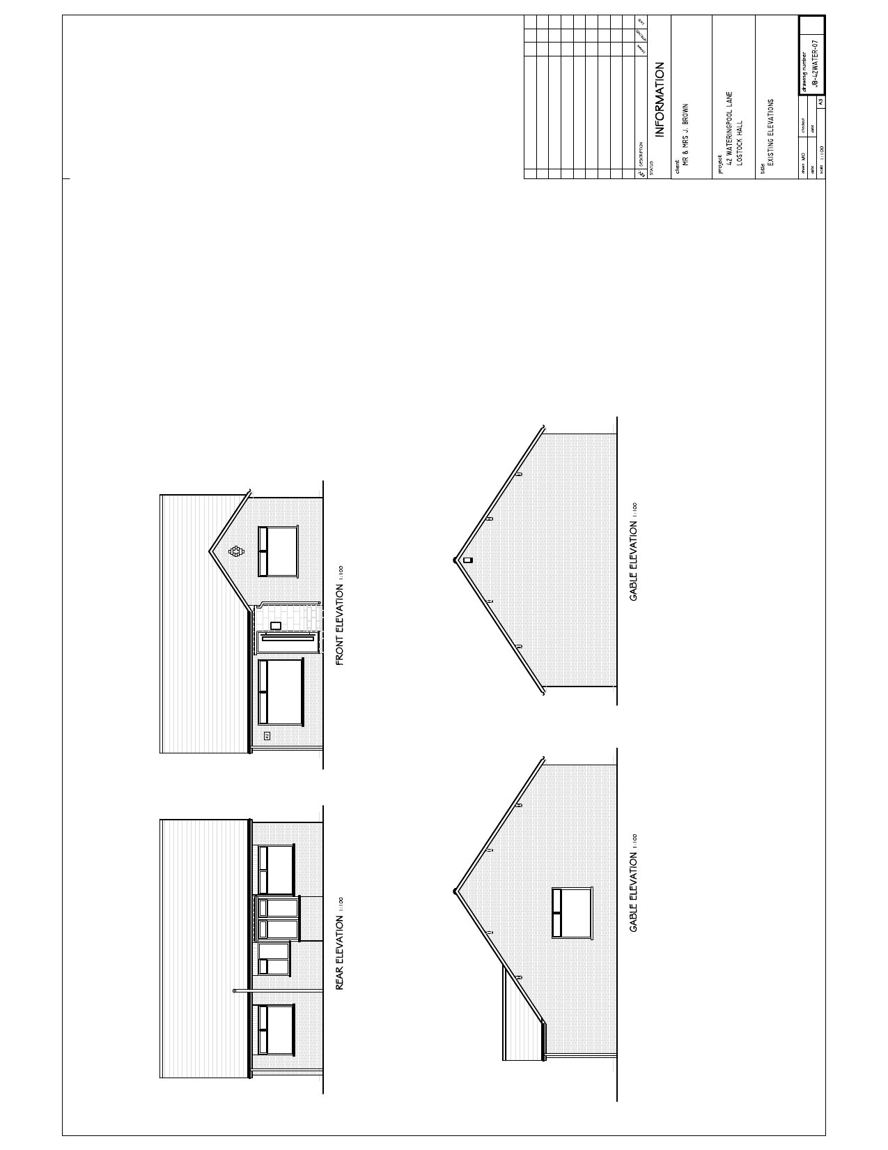
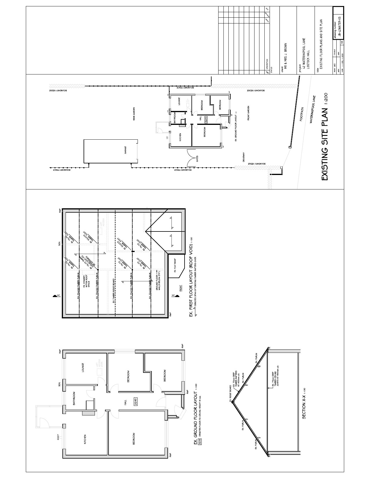
Erection of single storey rear extension and insertion of three velux windows in rear roofscape

Documents

Planning File
Archived · Original link
Drawing
Archived · Original link
Drawing
Archived · Original link
Drawing
Archived · Original link
Drawing
Archived · Original link
Planning File
Archived · Original link
Planning File
Archived · Original link
Planning File
Archived · Original link

Have your say

Your comment matters. Councils must consider every representation that raises material planning considerations.

Write a comment