← Southwark

Status

Under consideration/assessment New housing
Received
24 Jun 2024
New homes
4

Full proposal

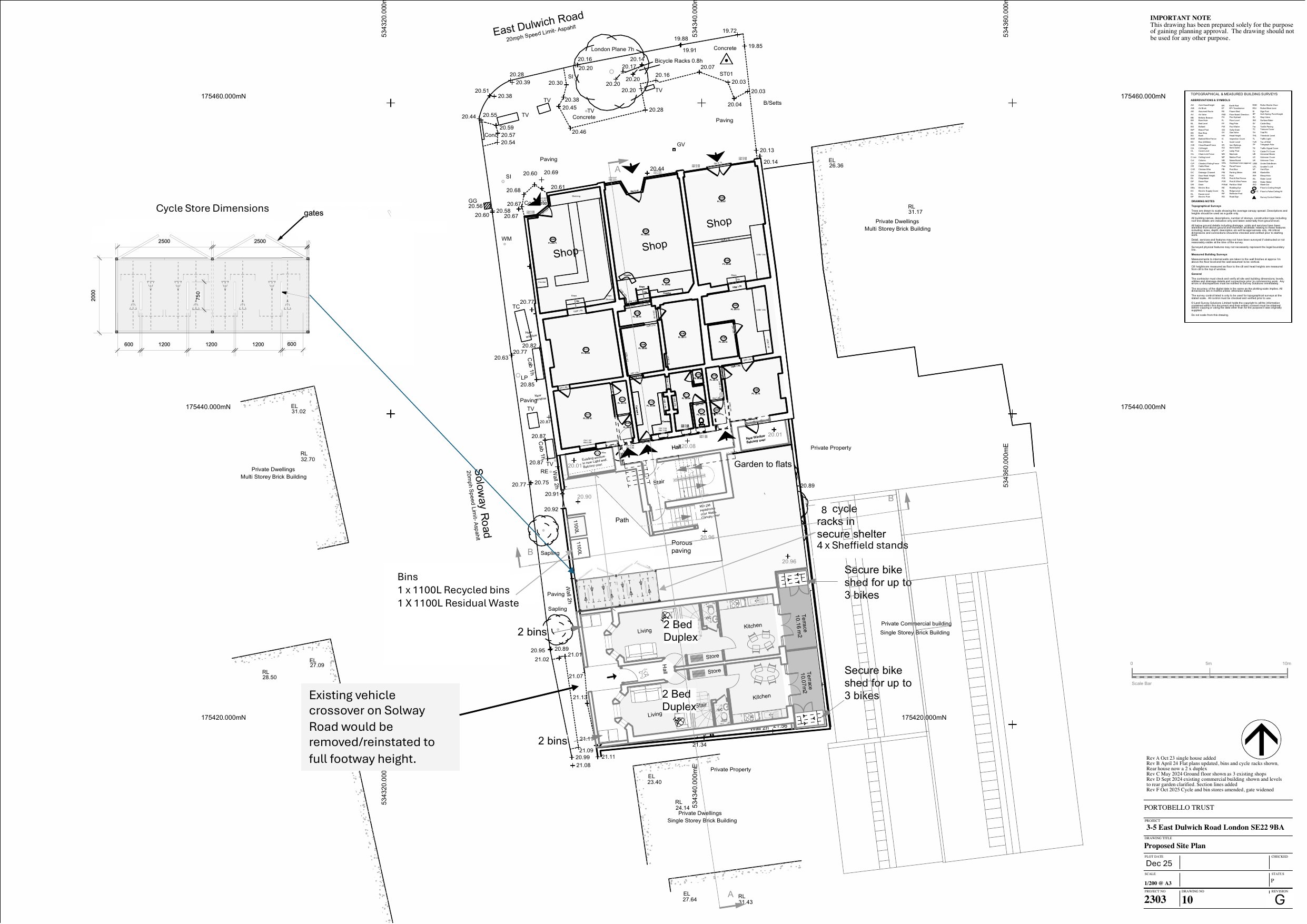
Extensions and alterations to existing building, including mansard roof extension with dormer windows to provide 2no. 1 bedroom flats (Class C3), stair enclosure to rear, balconies to existing and proposed flats and alterations to existing fenestration; demolition of existing garage and construction of 2no. 2 storey 2 bedroom dwellings (Class C3) within rear garden; solar panels; refuse and cycle storage facilities; and all associated works.

Documents

APPENDICES TO VIABILITY REPORT
Viability report
Not yet archived · Original link
APPLICATION FORM - WITHOUT PERSONAL DATA
Application - Form (Without Personal data)
Not yet archived · Original link
BAT EMERGENCE AND RE-ENTRY SURVEYS (BERS) JUNE 2025
Bat Surveys
Not yet archived · Original link
BIODIVERSITY NET GAIN ASSESSMENT 7 OCTOBER 2024
Document - Superseded
Not yet archived · Original link
BIODIVERSITY NET GAIN ASSESSMENT REPORT 17 DECEMBER 2025
Biodiversity survey / ecology assessment
Not yet archived · Original link
BLOCK PLAN
Plan - Superseded
Not yet archived · Original link
BLOCK PLAN
Plan - Amended
Not yet archived · Original link
COMMUNITY INFRASTRUCTURE TEAM
Comment - Consultee
Not yet archived · Original link
CYCLE SHELTER AND BIKE STANDS PRODUCT SPECIFICATION
Document - Superseded
Not yet archived · Original link
DAYLIGHT AND SUNLIGHT IMPACT ASSESSMENT
Daylight/Sunlight assessment
Not yet archived · Original link
DRAINAGE STRATEGY AUGUST 2024
Document - Superseded
Not yet archived · Original link
DRAINAGE STRATEGY REV 1
Drainage strategy
Not yet archived · Original link
EA FLOOD MAP FOR PLANNING
Flood risk assessment
Not yet archived · Original link
ENERGY STATEMENT
Energy statement
Not yet archived · Original link
EXISTING ELEVATIONS 2 (INCLUDING SECTION)
Plan - Existing
Not yet archived · Original link
EXISTING FIRST FLOOR PLAN
Plan - Existing
Not yet archived · Original link
EXISTING GROUND FLOOR PLAN
Plan - Existing
Not yet archived · Original link
EXISTING ROOF PLAN
Plan - Existing
Not yet archived · Original link
EXISTING SECOND FLOOR PLAN
Plan - Existing
Not yet archived · Original link
Plan - Existing
Archived · Original link
EXISTING STREET ELEVATIONS 1
Plan - Existing
Not yet archived · Original link
FILE COPY - NEIGHBOUR NOTIFICATION+LIST
Neighbour Notification List
Not yet archived · Original link
FILE COPY - NEIGHBOUR NOTIFICATION+LIST
Neighbour Notification List
Not yet archived · Original link
FIRE STATEMENT POLICY D12(A)
Document - Superseded
Not yet archived · Original link
FIRE STATEMENT REV 1.2
Fire Statement
Not yet archived · Original link
FLOOD RISK ASSESSMENT AUGUST 2024
Document - Superseded
Not yet archived · Original link
FLOOD RISK ASSESSMENT REV 2
Flood risk assessment
Not yet archived · Original link
HABITAT BASELINE PLAN
Biodiversity survey / ecology assessment
Not yet archived · Original link
INTERNAL SCHEME PERFORMANCE (DAYLIGHT AND SUNLIGHT)
Daylight/Sunlight assessment
Not yet archived · Original link
JJV FINANCIAL VIABILITY ASSESSMENT ADDENDUM 1 JULY 2025
Viability report
Not yet archived · Original link
JJV FINANCIAL VIABILITY ASSESSMENT JUNE 2025
Viability report
Not yet archived · Original link
LOCATION PLAN
Site - Location plan
Not yet archived · Original link
PHASE 1 CONTAMINATED LAND ASSESSMENT AUGUST 2024
Ground investigation report
Not yet archived · Original link
PLANNING, DESIGN AND ACCESS STATEMENT
Design and Access statement
Not yet archived · Original link
POST-DEVELOPMENT HABITAT PLAN
Biodiversity survey / ecology assessment
Not yet archived · Original link
POST-DEVELOPMENT HABITAT PLAN
Document - Superseded
Not yet archived · Original link
PRELIMINARY ECOLOGICAL APPRAISAL AND ROOST ASSESSMENT 3 JULY 2024
Biodiversity survey / ecology assessment
Not yet archived · Original link
PROPOSED CYCLE SHELTER
Plan - Superseded
Not yet archived · Original link
PROPOSED CYCLE SHELTERS AND WHEELIE BINS
Plan - Amended
Not yet archived · Original link
PROPOSED DUPLEX HOUSE PLANS, ELEVATIONS AND SECTION
Plan - Superseded
Not yet archived · Original link
PROPOSED DUPLEX UNITS PLANS AND ELEVATIONS
Plan - Amended
Not yet archived · Original link
PROPOSED ELEVATIONS 2
Plan - Amended
Not yet archived · Original link
PROPOSED ELEVATIONS 2 (INCLUDING SECTION)
Plan - Superseded
Not yet archived · Original link
PROPOSED FIRST FLOOR PLAN
Plan - Proposed
Not yet archived · Original link
PROPOSED GROUND FLOOR PLAN
Plan - Proposed
Not yet archived · Original link
PROPOSED ROOF PLAN
Plan - Amended
Not yet archived · Original link
PROPOSED ROOF PLAN
Plan - Superseded
Not yet archived · Original link
PROPOSED SECOND FLOOR PLAN
Plan - Proposed
Not yet archived · Original link
Plan - Amended
Archived · Original link
Plan - Superseded
Archived · Original link
PROPOSED STREET ELEVATIONS 1
Plan - Superseded
Not yet archived · Original link
PROPOSED STREET ELEVATIONS 1
Plan - Amended
Not yet archived · Original link
PROPOSED THIRD FLOOR PLAN
Plan - Amended
Not yet archived · Original link
PROPOSED THIRD FLOOR PLAN
Plan - Superseded
Not yet archived · Original link
SITE NOTICE
Site notice
Not yet archived · Original link
STATUTORY BNG METRIC
Biodiversity BNG Metrics
Not yet archived · Original link
STATUTORY BNG METRIC
Document - Superseded
Not yet archived · Original link
SUNLIGHT & DAYLIGHT ASSESSMENTS IMPACT ASSESSMENT FEBRUARY 2026
Daylight/Sunlight assessment
Not yet archived · Original link
TIME EXTENSION LETTER
Time Extension - Request
Not yet archived · Original link
TIME EXTENSION LETTER
Time Extension - Request
Not yet archived · Original link
TIME EXTENSION LETTER
Time Extension - Request
Not yet archived · Original link
TIME EXTENSION LETTER
Time Extension - Request
Not yet archived · Original link
TURNER MORUM REBUTTAL JUNE 2025
Viability report
Not yet archived · Original link
TURNER MORUM VIABILITY LETTER NOVEMBER 2025
Viability report
Not yet archived · Original link
VALID APPLICATION LETTER WITH INVOICE
Valid Application Letter
Not yet archived · Original link
VIABILITY STUDY JULY 2024
Viability report
Not yet archived · Original link
VIABILITY STUDY MAY 2025
Viability report
Not yet archived · Original link

Have your say

Your comment matters. Councils must consider every representation that raises material planning considerations.

Write a comment