← Southwark

Status

Awaiting decision Change of use
Received
03 Dec 2024
New homes
1

Summary

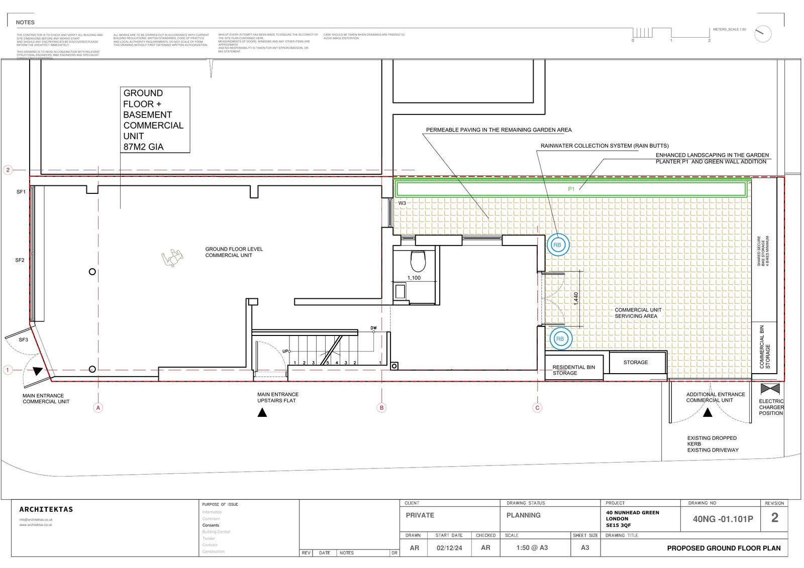
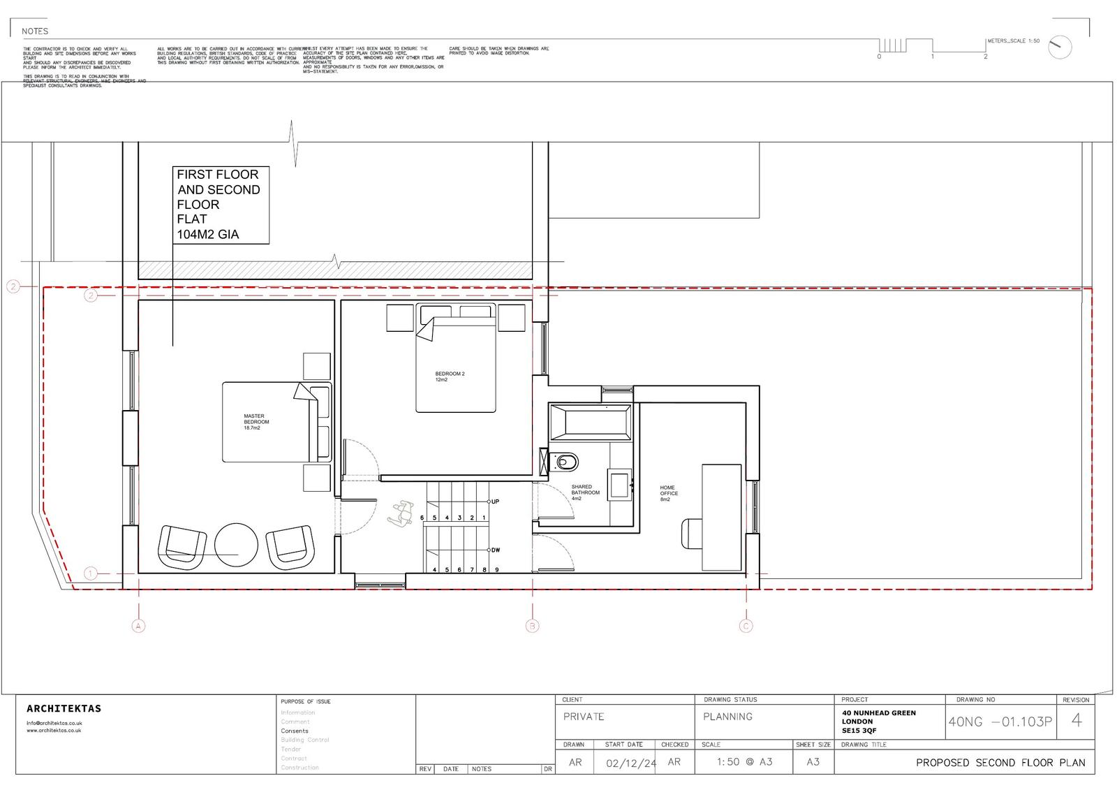
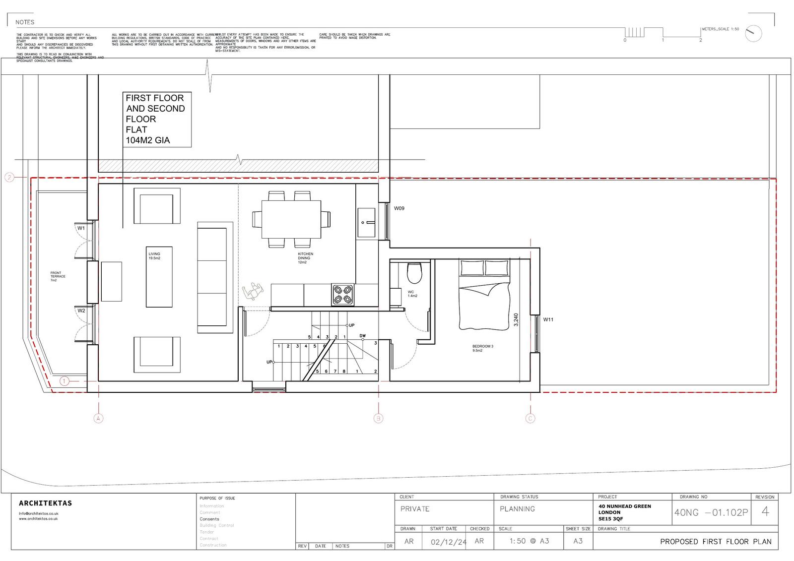
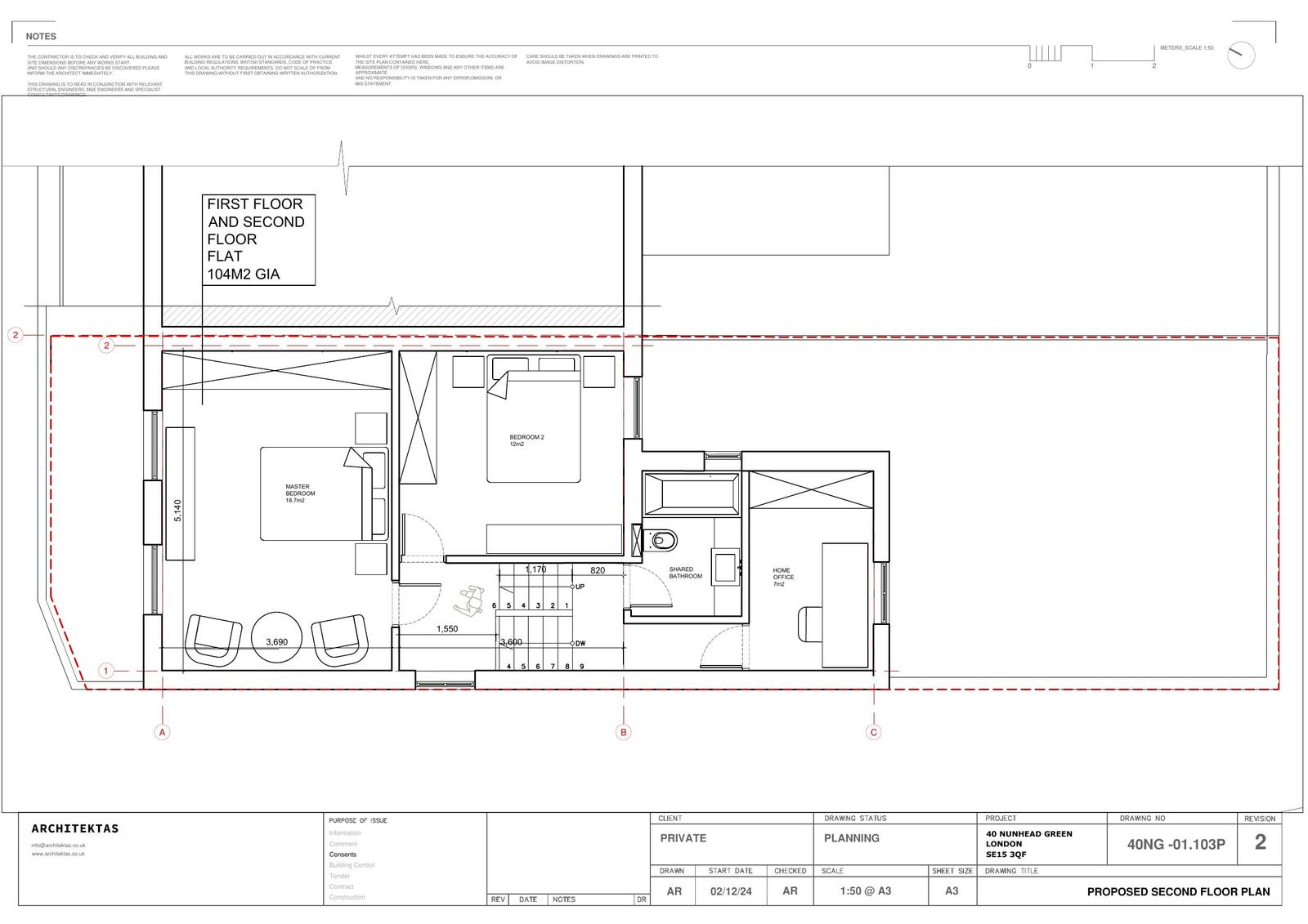
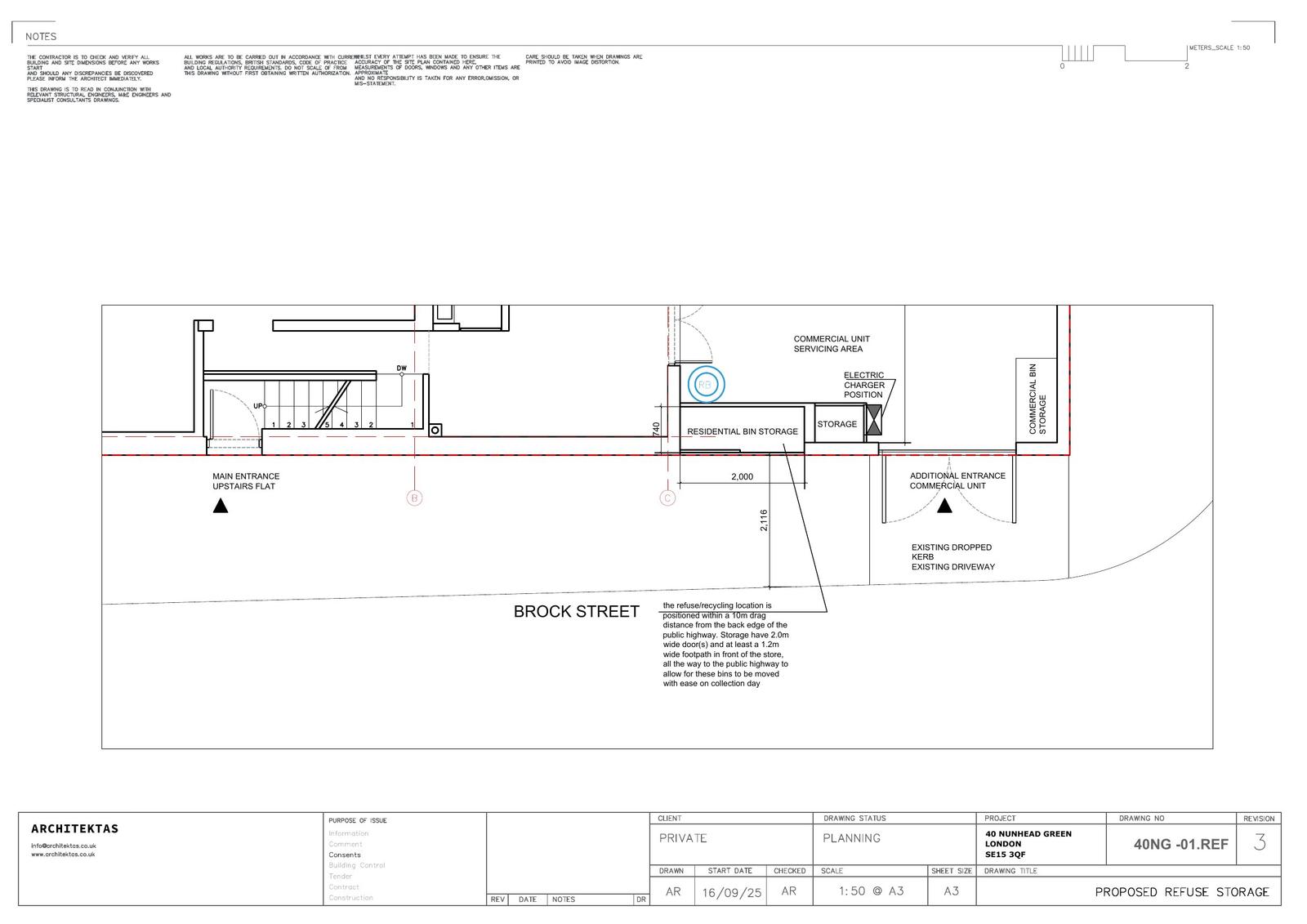
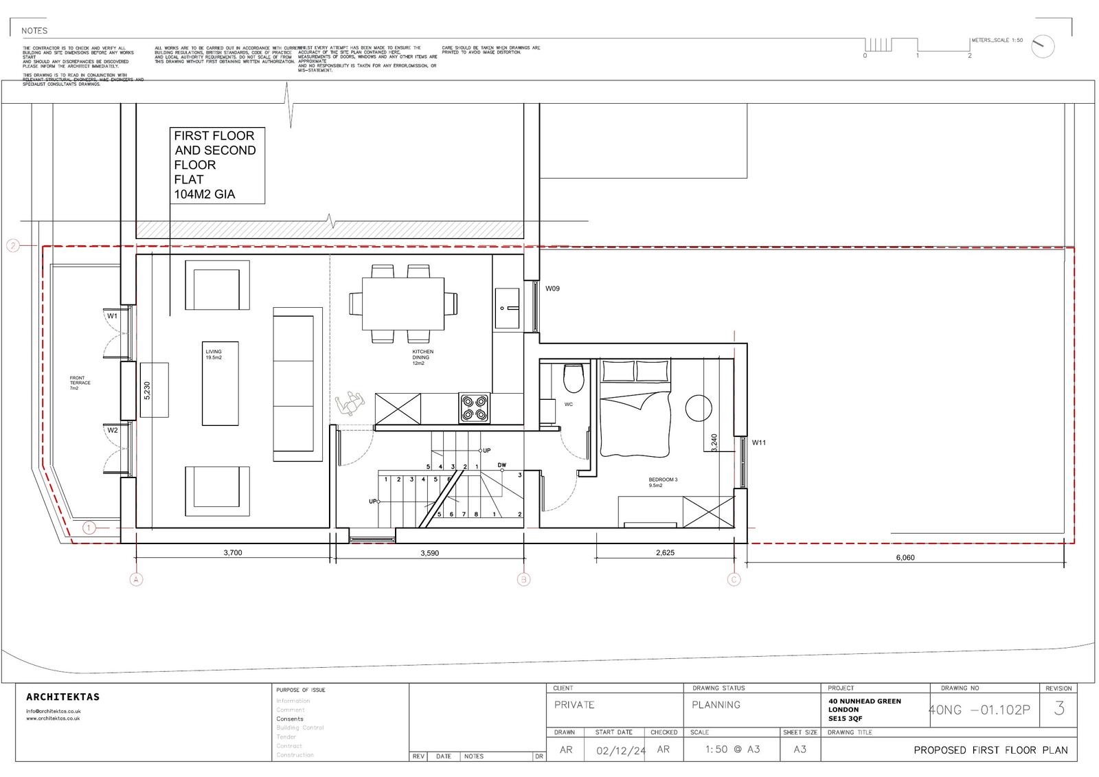
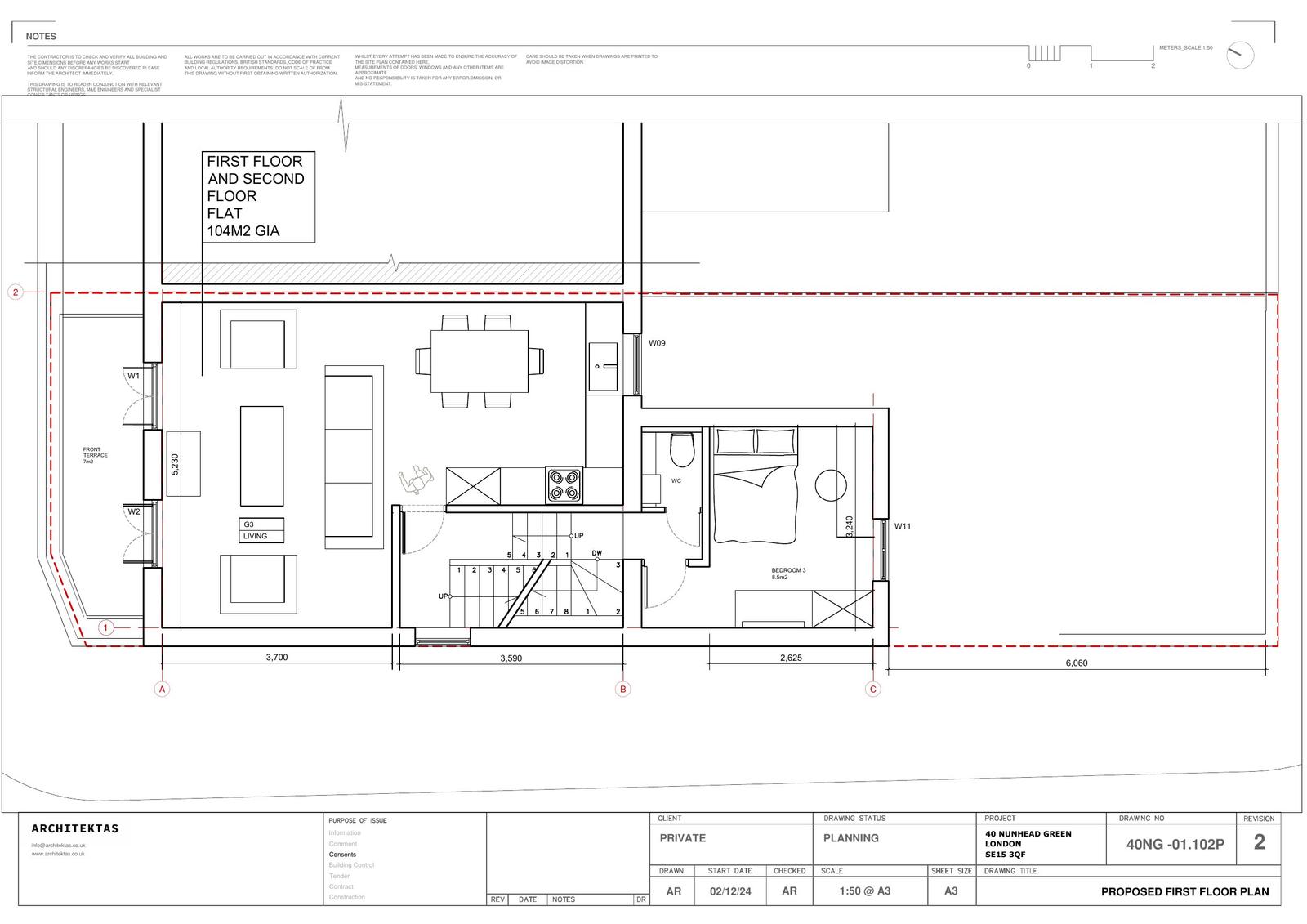
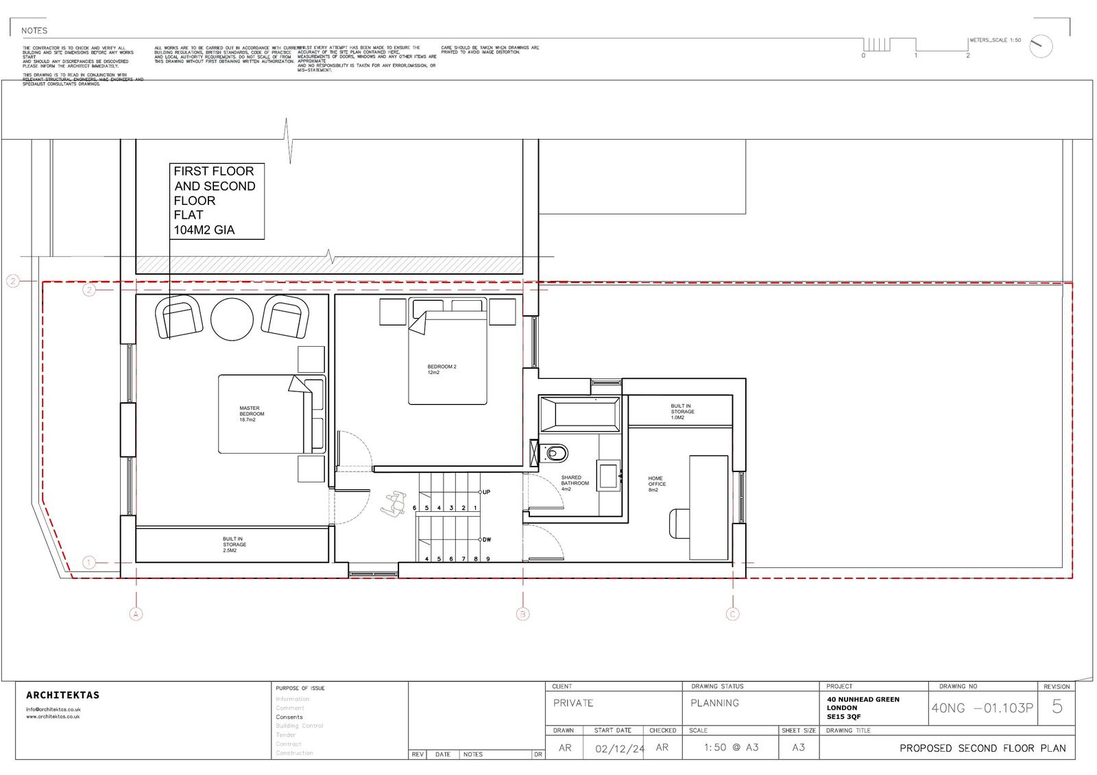
Change of part ground, first and second floors from Class E to one 3/4-bedroom maisonette, with external works.

Full proposal

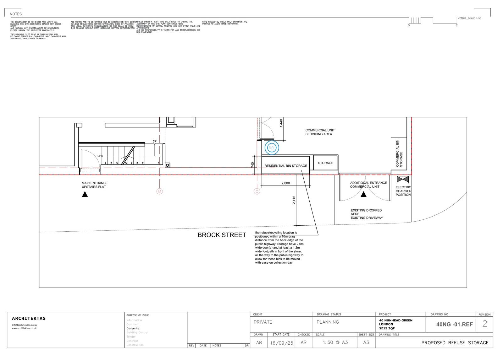
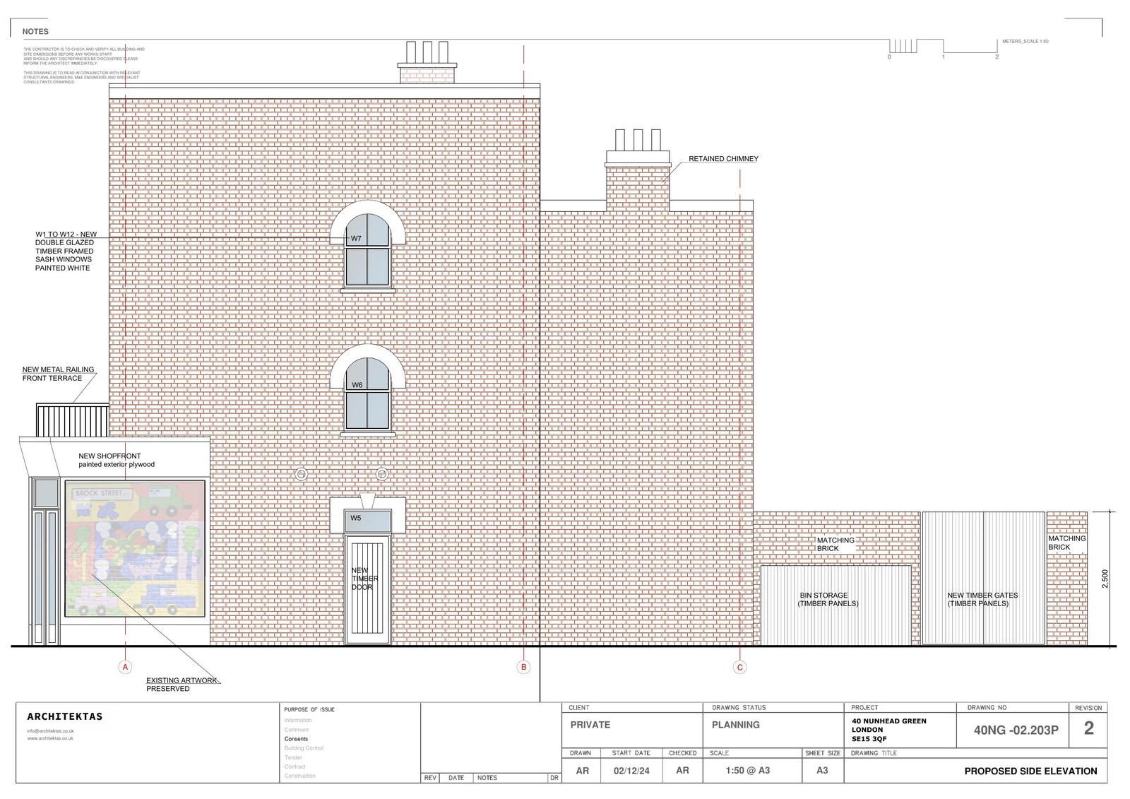
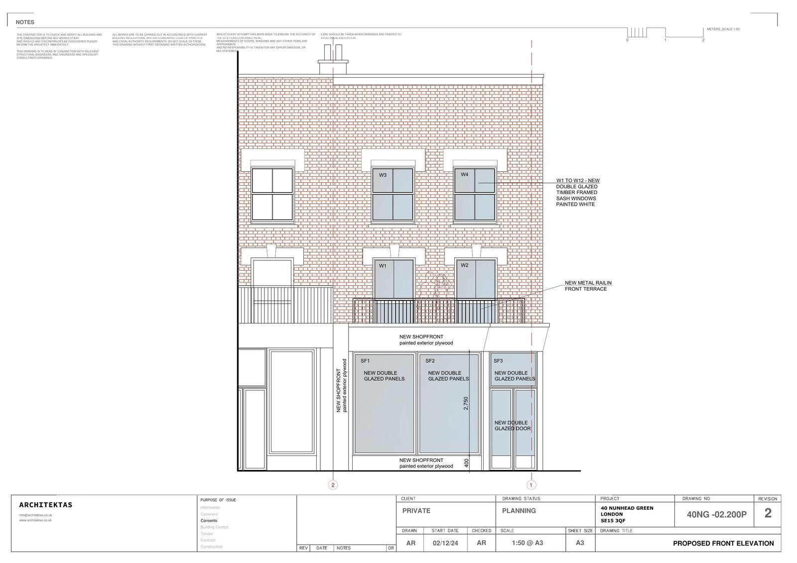
Change of use of part of the ground floor, the first and second floors from Class E (Business) to C3 (Residential) to create 1 x 3/4-bedroom maisonettee external alterations including installation of a new shop front to ground floor shop, replacement of the existing windows and doors with new double glazed timber sash windows and doors , replacement of ground floor side elevation door with a timber door, reconstruction of rear wall, reinstatement of first floor front terrace and refurbishment of rear servicing area including new timber doors/gates.

Documents

Document
Archived · Original link
Plan - Proposed
Archived · Original link
Plan - Amended
Archived · Original link
Application - Form (Without Personal data)
Archived · Original link
Biodiversity BNG Metrics
Archived · Original link
Design and Access statement
Archived · Original link
Viability report
Archived · Original link
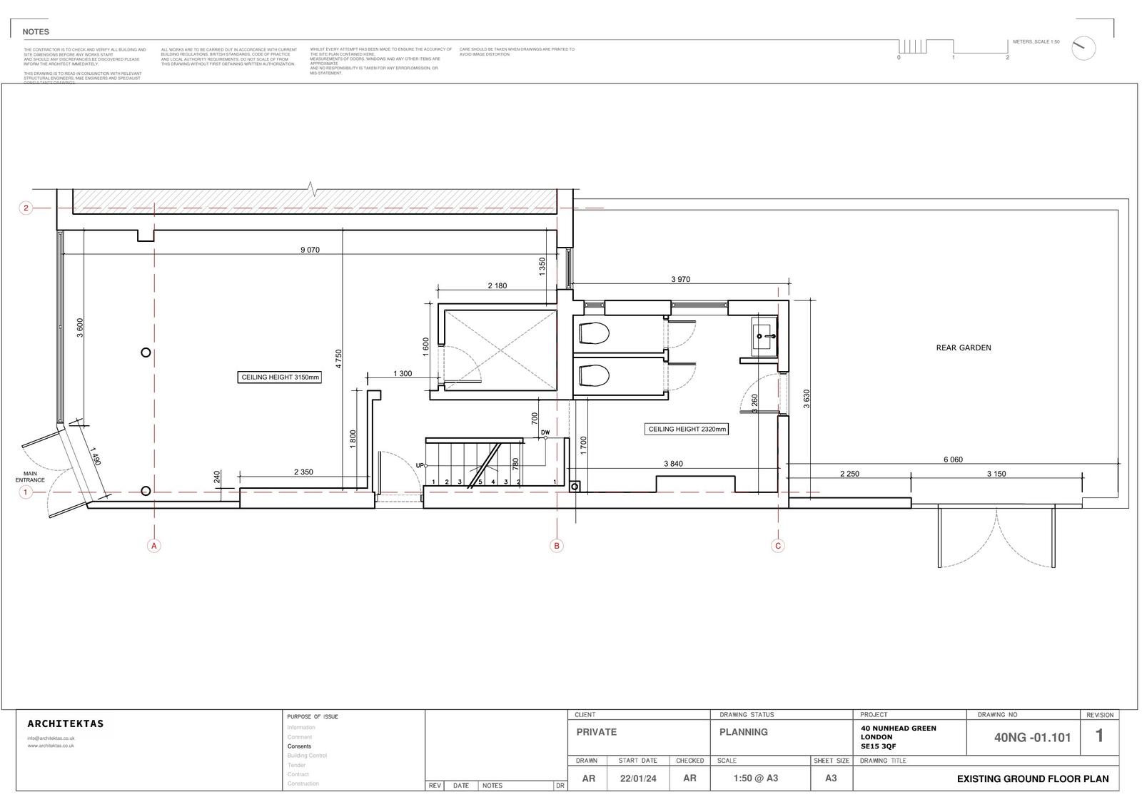
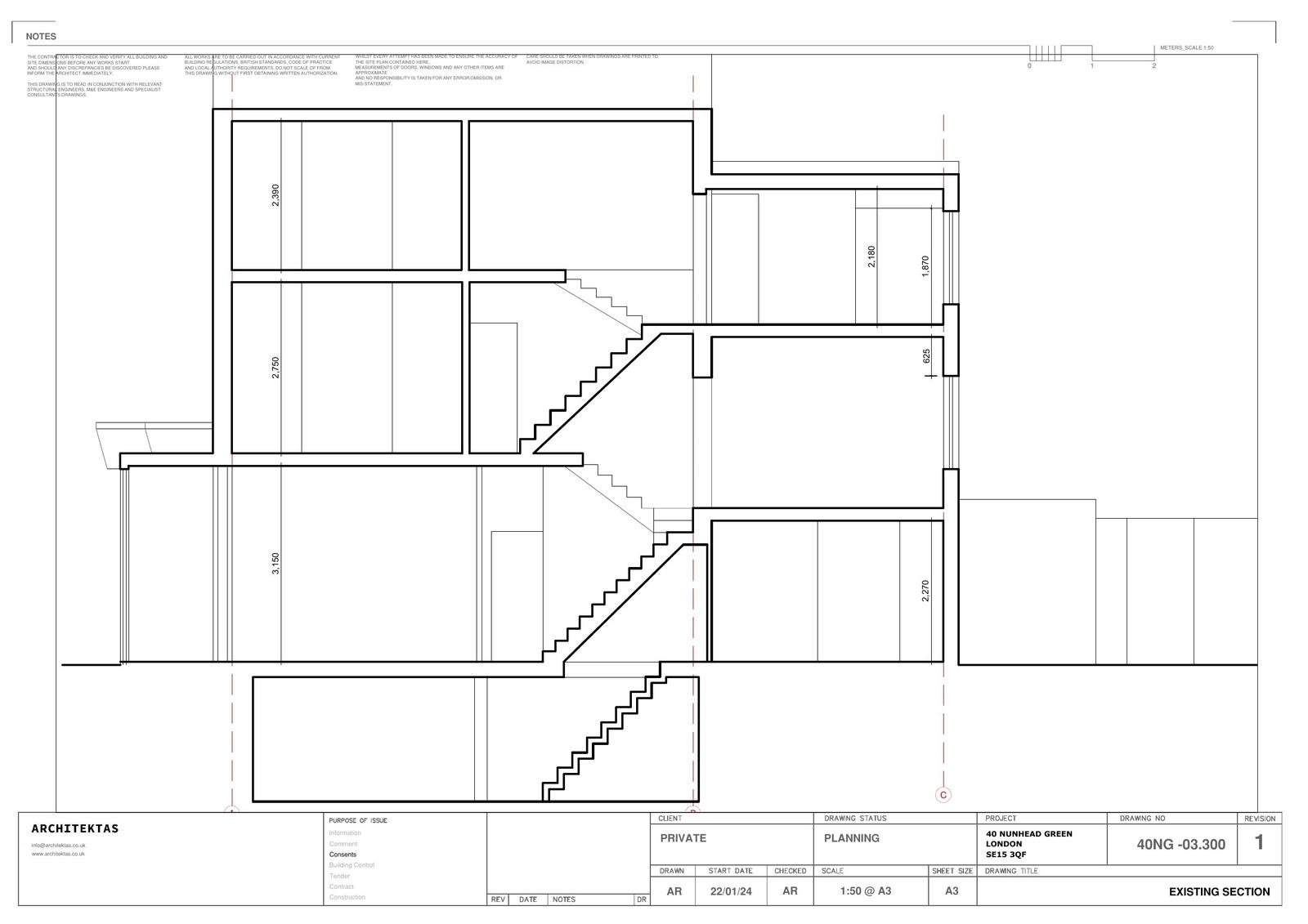
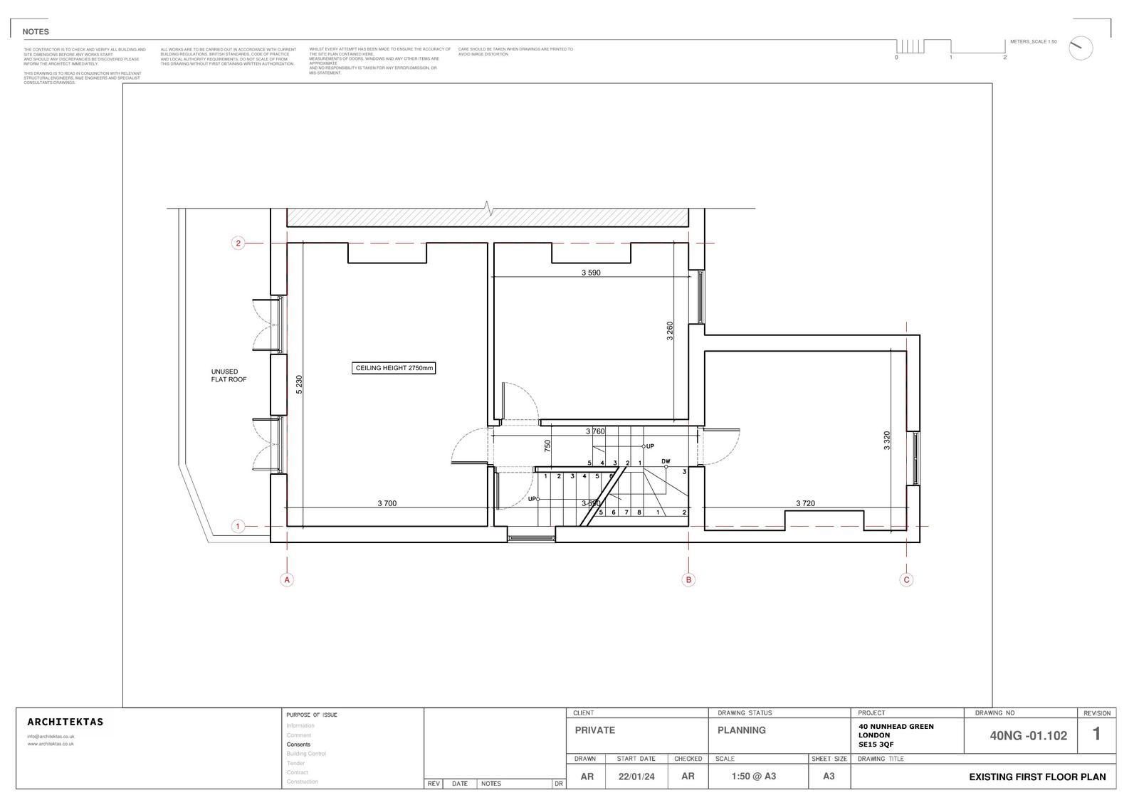
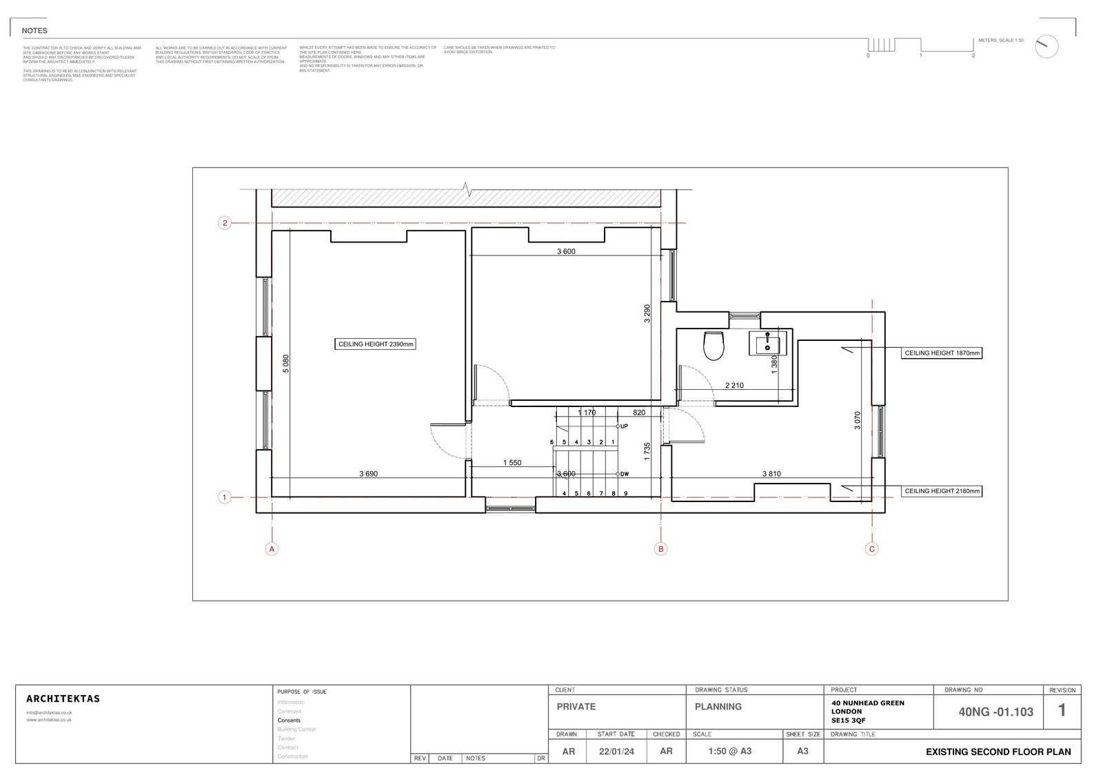
Plan - Existing
Archived · Original link
Plan - Existing
Archived · Original link
Plan - Existing
Archived · Original link
Plan - Existing
Archived · Original link
Plan - Existing
Archived · Original link
Plan - Existing
Archived · Original link
Plan - Existing
Archived · Original link
Plan - Existing
Archived · Original link
Plan - Existing
Archived · Original link
Plan - Existing
Archived · Original link
Plan - Existing
Archived · Original link
Neighbour Notification List
Archived · Original link
Viability report
Archived · Original link
Viability report
Archived · Original link
Fire Statement
Archived · Original link
Site - Location plan
Archived · Original link
Parking Provision
Archived · Original link
Photographs and photomontages
Archived · Original link
Press Notice
Archived · Original link
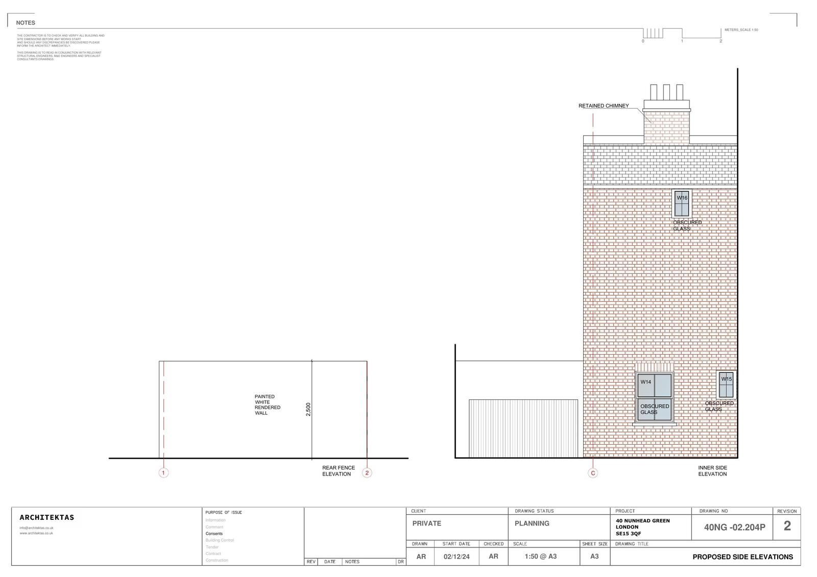
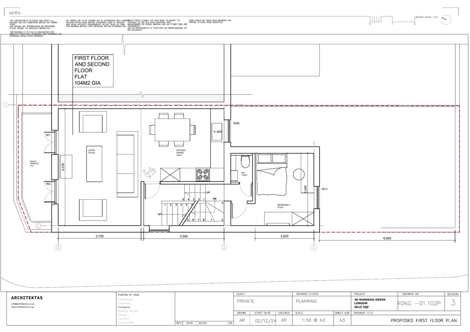
Plan - Proposed
Archived · Original link
Plan - Superseded
Archived · Original link
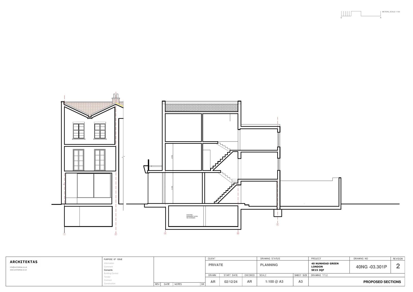
Plan - Proposed
Archived · Original link
Plan - Proposed
Archived · Original link
Plan - Proposed
Archived · Original link
Plan - Proposed
Archived · Original link
Plan - Superseded
Archived · Original link
Plan - Proposed
Archived · Original link
Plan - Proposed
Archived · Original link
Plan - Proposed
Archived · Original link
Plan - Proposed
Archived · Original link
Site notice
Archived · Original link
Time Extension - Request
Archived · Original link
Time Extension - Request
Archived · Original link
Valid Application Letter
Archived · Original link

Have your say

Your comment matters. Councils must consider every representation that raises material planning considerations.

Write a comment