← Southwark

Status

Awaiting decision New housing
Received
05 Dec 2024
New homes
3

Full proposal

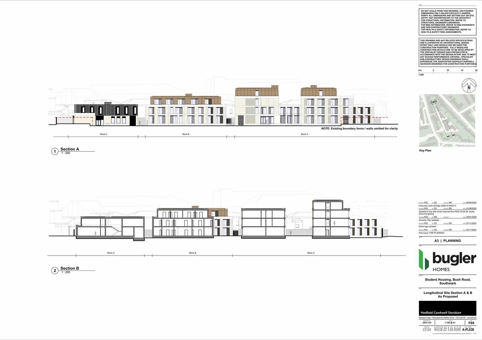
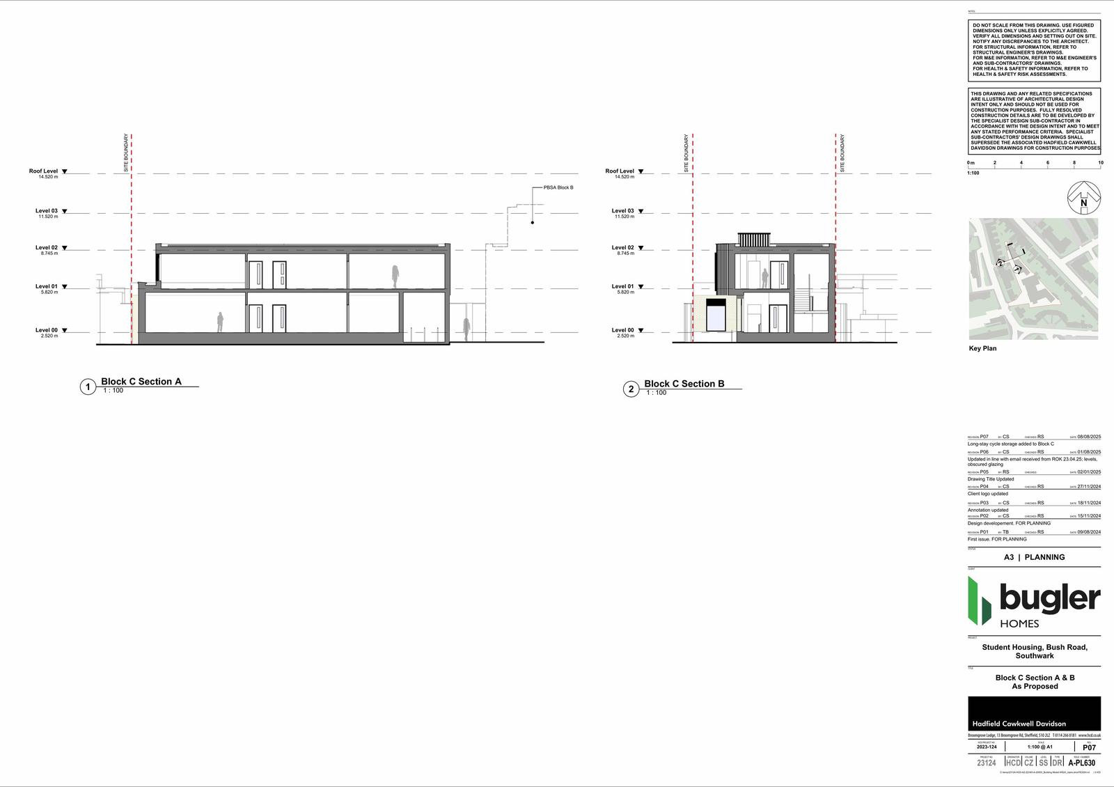
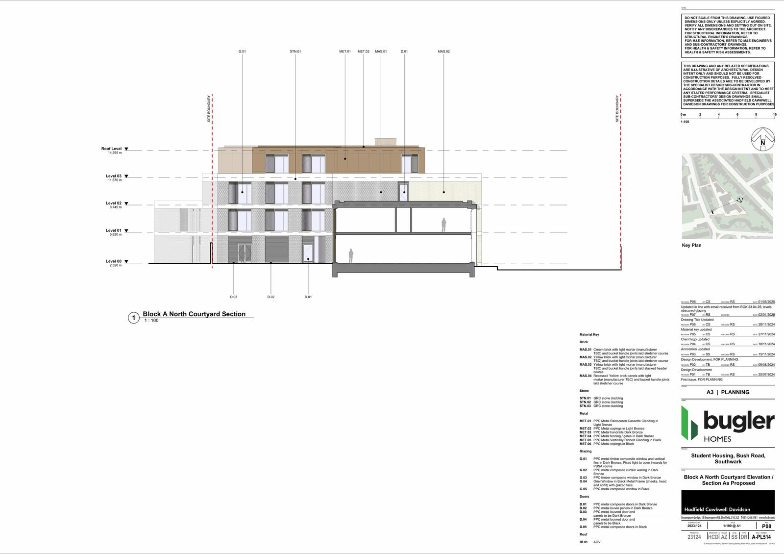
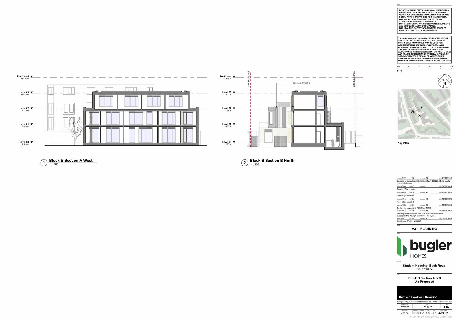
Demolition of all existing buildings and construction of 3no. blocks with heights of one, two, three, and part-four storeys, containing commercial space (Use Class E(g)(i) / E(g)(iii)), purpose-built student accommodation rooms (Use Class Sui Generis), associated landscaping, parking and turning areas.

Documents

6.3
Decision - Officer Report
Archived · Original link
Affordable housing statement
Archived · Original link
Air quality assessment
Archived · Original link
Application - Form (Without Personal data)
Archived · Original link
Biodiversity survey / ecology assessment
Archived · Original link
Biodiversity survey / ecology assessment
Archived · Original link
Document
Archived · Original link
Document
Archived · Original link
Committee - Report
Archived · Original link
Committee - Report
Archived · Original link
Document
Archived · Original link
Daylight/Sunlight assessment
Archived · Original link
Construction Environmental Management Plan CEMP
Archived · Original link
Design and Access statement
Archived · Original link
Design and Access statement
Archived · Original link
Design and Access statement
Archived · Original link
Document
Archived · Original link
Plan - Drawing Register
Archived · Original link
Biodiversity survey / ecology assessment
Archived · Original link
Energy statement
Archived · Original link
Energy statement
Archived · Original link
Statutory consultee replies
Archived · Original link
Document
Archived · Original link
Site - Location plan
Archived · Original link
Plan - General
Archived · Original link
Artificial Lighting assessment
Archived · Original link
Neighbour Notification List
Archived · Original link
Plan - General
Archived · Original link
Travel plan
Archived · Original link
Committee - Report
Archived · Original link
Landscaping details
Archived · Original link
Landscaping details
Archived · Original link
LONDON FIRE BRIGADE
Statutory consultee replies
Not yet archived · Original link
Statutory consultee replies
Archived · Original link
SUDS supporting information
Archived · Original link
Statutory consultee replies
Archived · Original link
Statutory consultee replies
Archived · Original link
Noise impact assessment
Archived · Original link
Comment - Contributor
Archived · Original link
Comment - Contributor
Archived · Original link
Comment - Contributor
Archived · Original link
Comment - Contributor
Archived · Original link
Design and Access statement
Archived · Original link
Design and Access statement
Archived · Original link
Design and Access statement
Archived · Original link
Design and Access statement
Archived · Original link
Design and Access statement
Archived · Original link
Design and Access statement
Archived · Original link
Design and Access statement
Archived · Original link
Design and Access statement
Archived · Original link
Design and Access statement
Archived · Original link
Design and Access statement
Archived · Original link
Planning statement
Archived · Original link
Document
Archived · Original link
Document
Archived · Original link
Ground investigation report
Archived · Original link
Ground investigation report
Archived · Original link
Ground investigation report
Archived · Original link
Ground investigation report
Archived · Original link
Ground investigation report
Archived · Original link
Ground investigation report
Archived · Original link
Ground investigation report
Archived · Original link
Press Notice
Archived · Original link
Plan - Proposed
Archived · Original link
Plan - Proposed
Archived · Original link
Plan - Proposed
Archived · Original link
Plan - Proposed
Archived · Original link
Plan - Proposed
Archived · Original link
Plan - Proposed
Archived · Original link
Plan - Proposed
Archived · Original link
Plan - Proposed
Archived · Original link
Plan - Proposed
Archived · Original link
Plan - Proposed
Archived · Original link
Plan - Proposed
Archived · Original link
Plan - Proposed
Archived · Original link
Plan - Proposed
Archived · Original link
Plan - Proposed
Archived · Original link
Comment - Contributor
Archived · Original link
Plan - Proposed
Archived · Original link
Plan - Proposed
Archived · Original link
Site notice
Archived · Original link
Statement of community involvement
Archived · Original link
Biodiversity BNG Metrics
Archived · Original link
TFL
Statutory consultee replies
Archived · Original link
TFL
Statutory consultee replies
Archived · Original link
Comment - Contributor
Archived · Original link
Statutory consultee replies
Archived · Original link
Plan - Superseded
Archived · Original link
Time Extension - Request
Archived · Original link
Time Extension - Request
Archived · Original link
Time Extension - Request
Archived · Original link
Statutory consultee replies
Archived · Original link
Transport assessment
Archived · Original link
Tree survey or Arboricultural implications
Archived · Original link
Plan - General
Archived · Original link
Plan - General
Archived · Original link
Valid Application Letter
Archived · Original link
Plan - Proposed
Archived · Original link

Have your say

Your comment matters. Councils must consider every representation that raises material planning considerations.

Write a comment