← Southwark

Status

Awaiting decision New housing
Received
09 Dec 2024
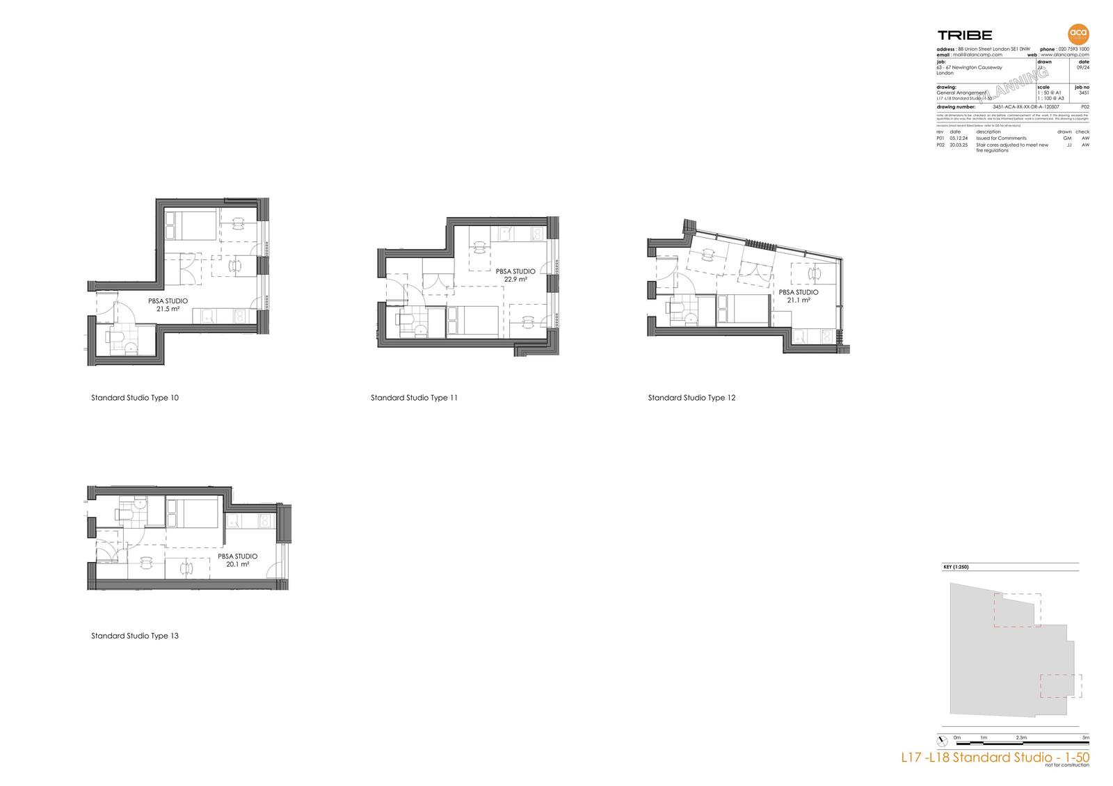
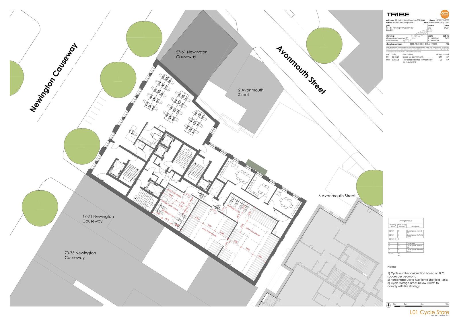
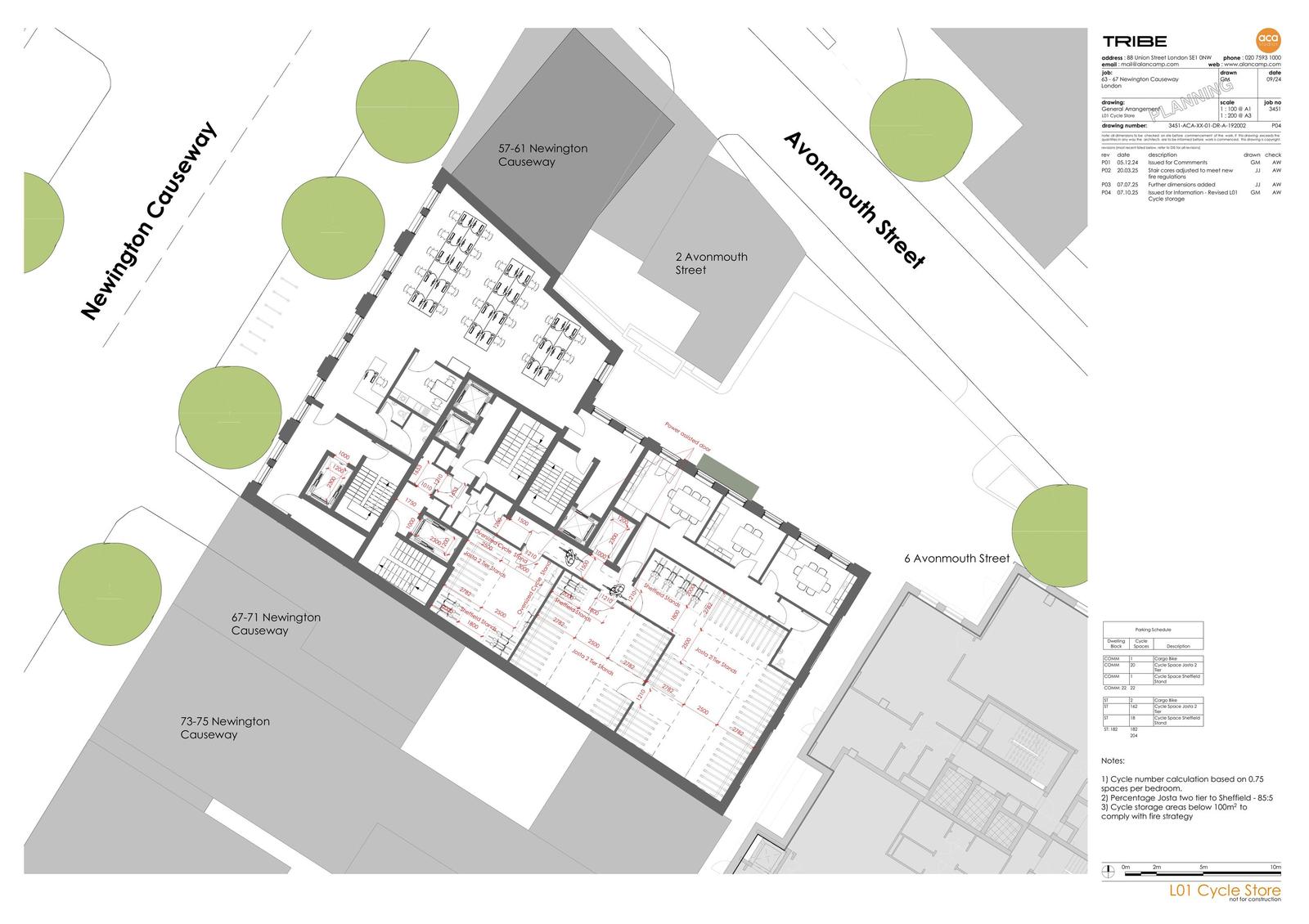
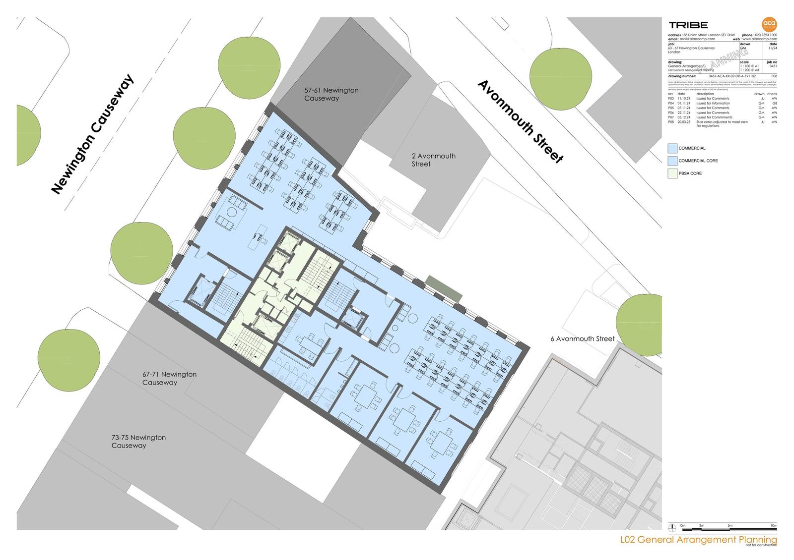
New homes
243

Full proposal

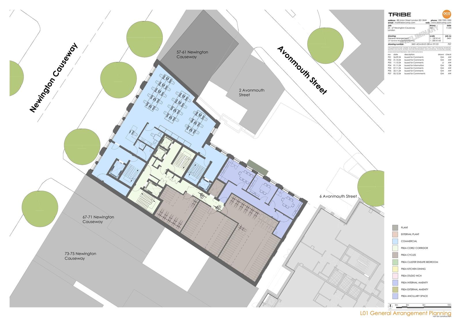
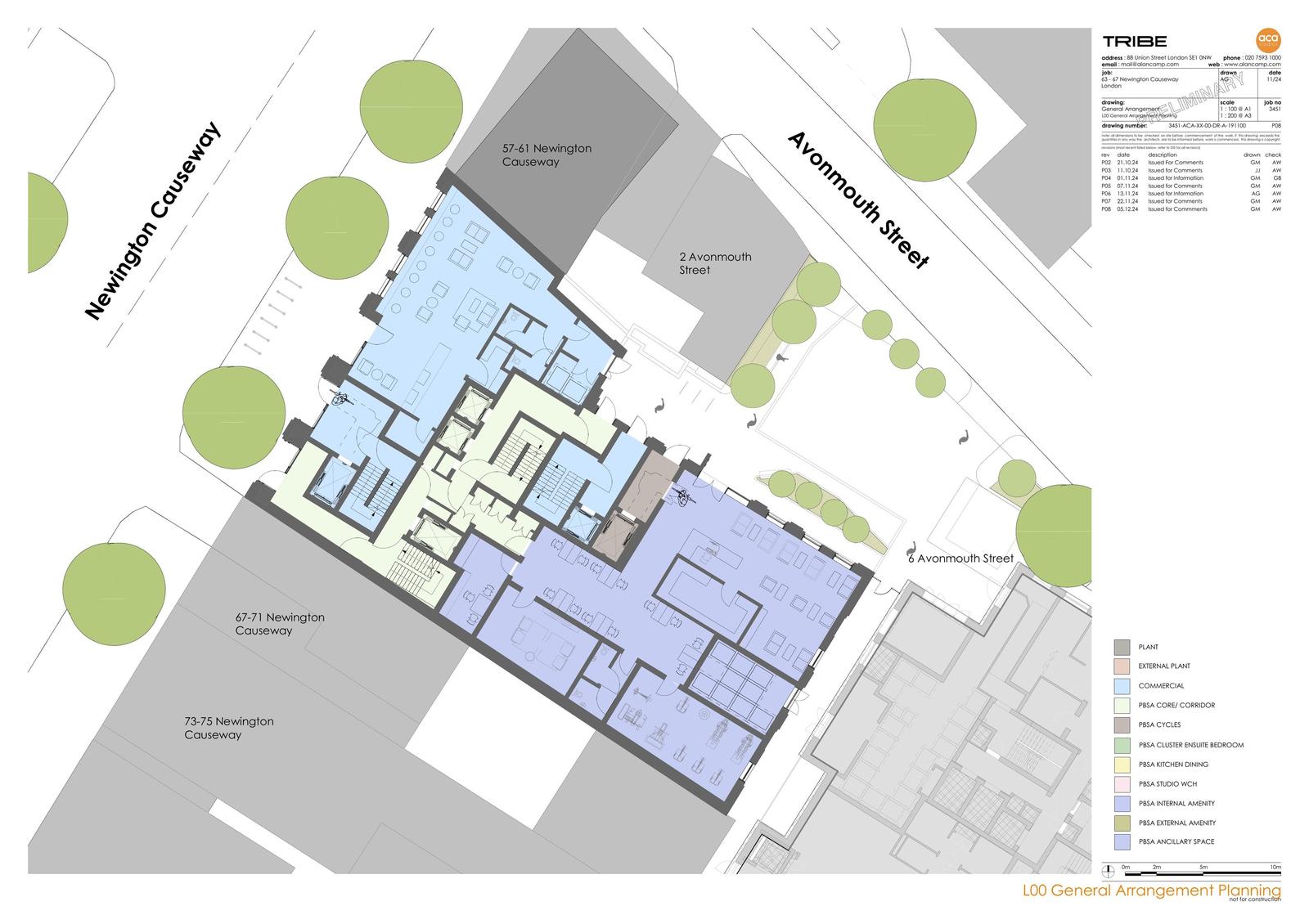
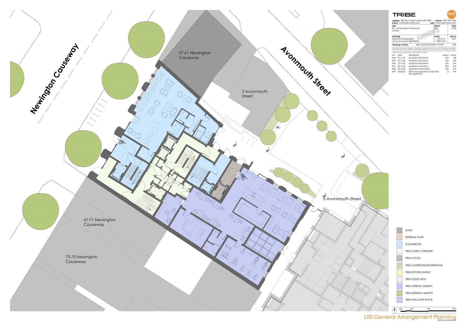
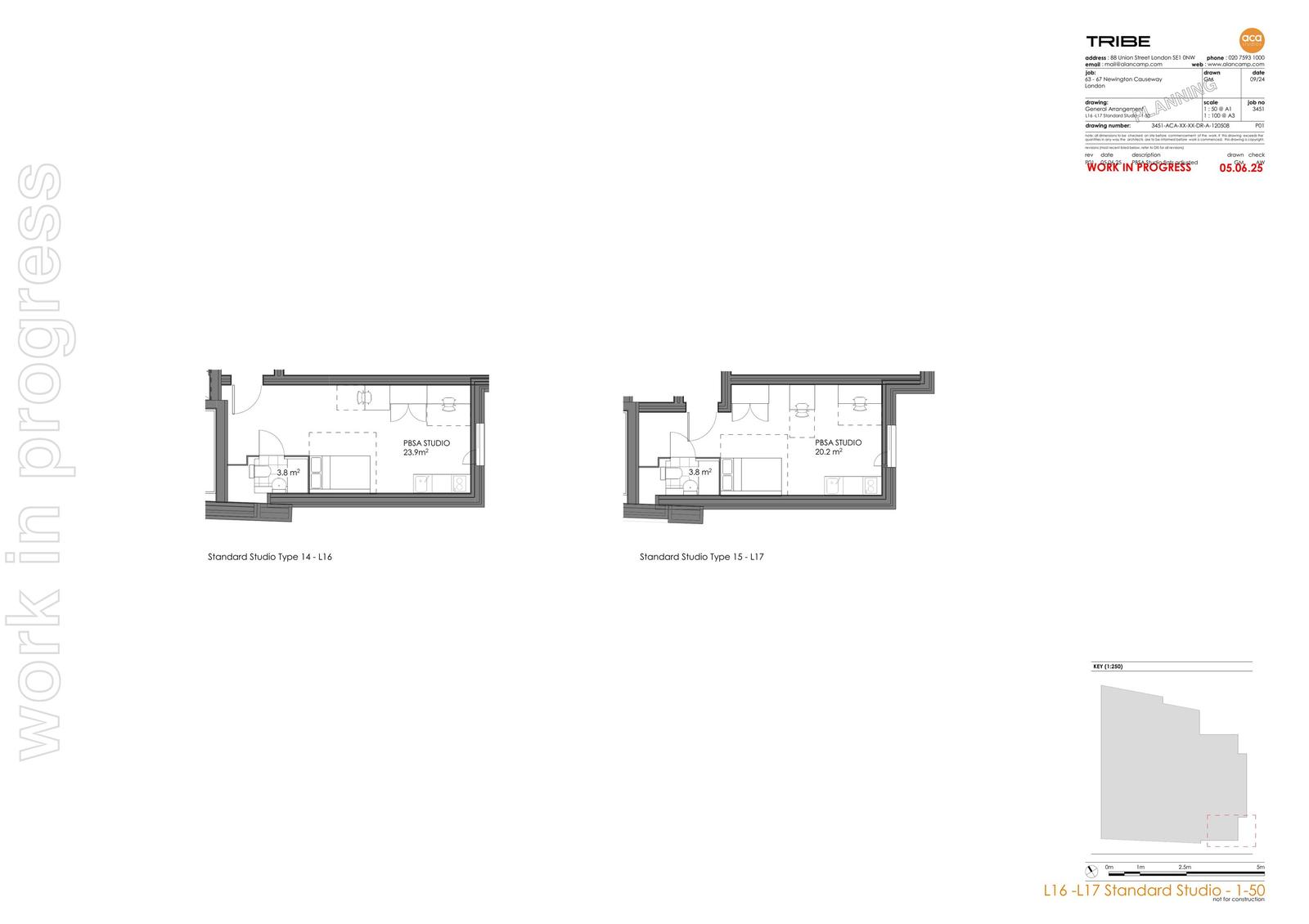
Demolition of existing building and erection of a building comprising commercial floorspace (Class E), Purpose built student accommodation bedrooms and amenity space (sui generis), refuse and bike stores, internal and external plant, and external landscaping. For information: - proposed building is part 19 storeys with additional rooftop lift/overrun/enclosure plus basement (62.8m AOD, 59.9m above ground), part 18 storeys (58.3m AOD, 55.4m above ground) and part 3 storeys (14.7m AOD, 11.8m above ground). The development as a whole comprises: - 243 student bedrooms; - 1,504sqm GIA of flexible commercial, business, service floorspace (Class E)

Documents

Air quality assessment
Archived · Original link
Plan - Amended
Archived · Original link
Air quality assessment
Archived · Original link
Air quality assessment
Archived · Original link
Committee - Report
Archived · Original link
Committee - Report
Archived · Original link
Committee - Report
Archived · Original link
Committee - Report
Archived · Original link
Committee - Report
Archived · Original link
Application - Form (Without Personal data)
Archived · Original link
Tree survey or Arboricultural implications
Archived · Original link
Plan - Amended
Archived · Original link
Plan - Amended
Archived · Original link
Plan - General
Archived · Original link
Plan - Amended
Archived · Original link
Plan - General
Archived · Original link
Plan - General
Archived · Original link
Plan - Amended
Archived · Original link
Plan - Amended
Archived · Original link
Plan - Amended
Archived · Original link
Plan - Amended
Archived · Original link
Plan - Amended
Archived · Original link
Plan - Amended
Archived · Original link
Plan - Amended
Archived · Original link
Plan - Amended
Archived · Original link
Plan - Amended
Archived · Original link
Plan - Amended
Archived · Original link
Document - Superseded
Archived · Original link
Biodiversity BNG Metrics
Archived · Original link
Biodiversity survey / ecology assessment
Archived · Original link
Plan - Amended
Archived · Original link
Plan - Amended
Archived · Original link
Plan - Amended
Archived · Original link
Plan - Amended
Archived · Original link
Document
Archived · Original link
Document
Archived · Original link
Document
Archived · Original link
Document
Archived · Original link
Circular Economy Statement
Archived · Original link
Committee - Report
Archived · Original link
COPY OF LPG - WLCA ASSESSMENT TEMPLATE PLANNING NEWINGTON CAUSEWAY
Document
Not yet archived · Original link
Application - Covering letter
Archived · Original link
Daylight/Sunlight assessment
Archived · Original link
Daylight/Sunlight assessment
Archived · Original link
Daylight/Sunlight assessment
Archived · Original link
Daylight/Sunlight assessment
Archived · Original link
Daylight/Sunlight assessment
Archived · Original link
Construction Environmental Management Plan CEMP
Archived · Original link
Design and Access statement
Archived · Original link
Document - Superseded
Archived · Original link
Document - Superseded
Archived · Original link
Drainage strategy
Archived · Original link
Plan - Drawing Register
Archived · Original link
Economic statement
Archived · Original link
ENERGY
Plan - Amended
Not yet archived · Original link
Plan - Amended
Archived · Original link
Plan - Existing
Archived · Original link
Neighbour Notification List
Archived · Original link
Flood risk assessment
Archived · Original link
Document - Superseded
Archived · Original link
Viability report
Archived · Original link
Viability report
Archived · Original link
Viability report
Archived · Original link
GLA CE MEMO_STAGE 1
Plan - Amended
Not yet archived · Original link
GLA CONSULTATION (STAGE 1) - ENERGY MEMO
Plan - Amended
Not yet archived · Original link
GLA SPREADSHEET
Plan - Amended
Not yet archived · Original link
GLA WLC MEMO
Plan - Amended
Not yet archived · Original link
Document
Archived · Original link
Statutory consultee replies
Archived · Original link
Statutory consultee replies
Archived · Original link
Committee - Report
Archived · Original link
Plan - Existing
Archived · Original link
Plan - General
Archived · Original link
Plan - Amended
Archived · Original link
Plan - Amended
Archived · Original link
Plan - General
Archived · Original link
Plan - Amended
Archived · Original link
Plan - Existing
Archived · Original link
Plan - Amended
Archived · Original link
Plan - General
Archived · Original link
Plan - Amended
Archived · Original link
Plan - Existing
Archived · Original link
Plan - Amended
Archived · Original link
Plan - Amended
Archived · Original link
Plan - Existing
Archived · Original link
Plan - Amended
Archived · Original link
Plan - Amended
Archived · Original link
Plan - Existing
Archived · Original link
Plan - Amended
Archived · Original link
Plan - Amended
Archived · Original link
Plan - Amended
Archived · Original link
Plan - Amended
Archived · Original link
Plan - Amended
Archived · Original link
Plan - Amended
Archived · Original link
Plan - Amended
Archived · Original link
Plan - Amended
Archived · Original link
Plan - Amended
Archived · Original link
Plan - Amended
Archived · Original link
Plan - Amended
Archived · Original link
Plan - Amended
Archived · Original link
Plan - Amended
Archived · Original link
Plan - Amended
Archived · Original link
Plan - Amended
Archived · Original link
Plan - Amended
Archived · Original link
Plan - General
Archived · Original link
Plan - Amended
Archived · Original link
Plan - General
Archived · Original link
Plan - General
Archived · Original link
Plan - Amended
Archived · Original link
Plan - Amended
Archived · Original link
Plan - Amended
Archived · Original link
Plan - Amended
Archived · Original link
Plan - General
Archived · Original link
Plan - Amended
Archived · Original link
Plan - Amended
Archived · Original link
Plan - Amended
Archived · Original link
Plan - Amended
Archived · Original link
Plan - Amended
Archived · Original link
Plan - Amended
Archived · Original link
Plan - Amended
Archived · Original link
Plan - Amended
Archived · Original link
Landscaping details
Archived · Original link
Landscaping details
Archived · Original link
Landscaping details
Archived · Original link
Landscaping details
Archived · Original link
Landscaping details
Archived · Original link
Document
Archived · Original link
Document - Superseded
Archived · Original link
Plan - Existing
Archived · Original link
Statutory consultee replies
Archived · Original link
Fire Statement
Archived · Original link
Statutory consultee replies
Archived · Original link
Statutory consultee replies
Archived · Original link
METROPOLITAN POLICE
Statutory consultee replies
Not yet archived · Original link
METROPOLITAN POLICE
Statutory consultee replies
Not yet archived · Original link
Plan - General
Archived · Original link
Statutory consultee replies
Archived · Original link
Plan - Amended
Archived · Original link
Statutory consultee replies
Archived · Original link
NEWINGTON CAUSEWAY - GLA SPREADSHEET
Document
Not yet archived · Original link
NHS
Statutory consultee replies
Archived · Original link
Noise impact assessment
Archived · Original link
Plan - General
Archived · Original link
Plan - General
Archived · Original link
Plan - General
Archived · Original link
Plan - General
Archived · Original link
Plan - General
Archived · Original link
Plan - General
Archived · Original link
Plan - Amended
Archived · Original link
Comment - Contributor
Archived · Original link
Comment - Contributor
Archived · Original link
Utilities statement
Archived · Original link
Utilities statement
Archived · Original link
Utilities statement
Archived · Original link
Plan - Proposed
Archived · Original link
Plan - Drawing Register
Archived · Original link
Plan - Drawing Register
Archived · Original link
Planning statement
Archived · Original link
Document - Superseded
Archived · Original link
Press Notice
Archived · Original link
Plan - General
Archived · Original link
Plan - Amended
Archived · Original link
Plan - Amended
Archived · Original link
Plan - Amended
Archived · Original link
Plan - Amended
Archived · Original link
Site - Location plan
Archived · Original link
Plan - General
Archived · Original link
Site notice
Archived · Original link
Plan - General
Archived · Original link
Plan - Amended
Archived · Original link
Plan - Amended
Archived · Original link
TFL
Statutory consultee replies
Archived · Original link
Statutory consultee replies
Archived · Original link
Statutory consultee replies
Archived · Original link
Transport assessment
Archived · Original link
Transport assessment
Archived · Original link
Travel plan
Archived · Original link
Comment - Consultee
Archived · Original link
Document
Archived · Original link
Utilities statement
Archived · Original link
Valid Application Letter
Archived · Original link
Viability report
Archived · Original link
Viability report
Archived · Original link
Viability report
Archived · Original link
Statutory consultee replies
Archived · Original link
WHOLE LIFE CARBON TEMPLATE
Document
Not yet archived · Original link

Have your say

Your comment matters. Councils must consider every representation that raises material planning considerations.

Write a comment