← Southwark

Status

Under consideration/assessment Change of use
Received
06 Oct 2025
New homes
0

Full proposal

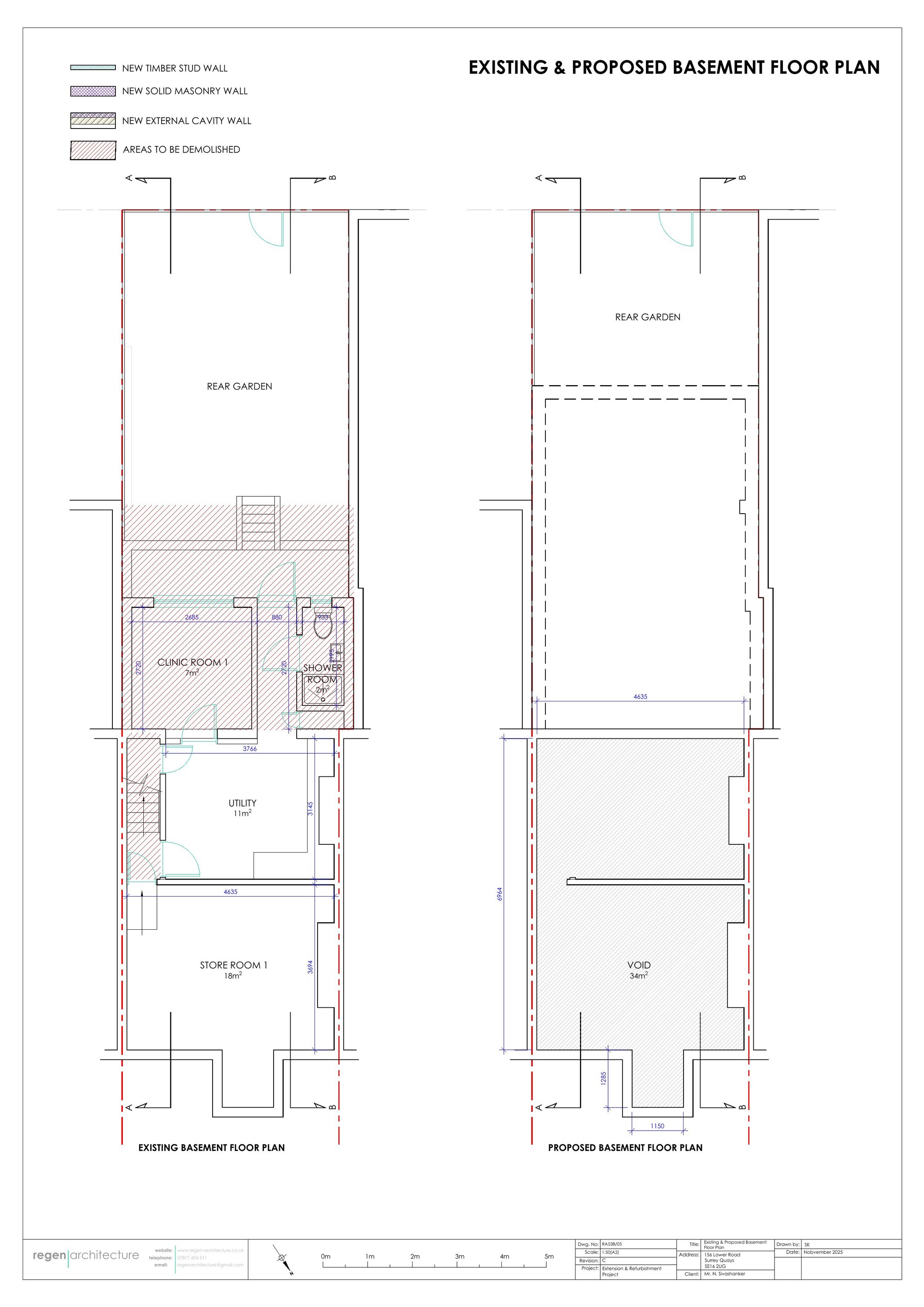
Change of use of the first floor and rear part of the ground floor from veterinary surgery (class E) to larger HMO (sui generis), and construction of a mansard roof extension and three-storey rear extension, to enable the partial conversion of the building to a 5-bed (10 no. person) HMO (Sui Generis), together with the reconfiguration of existing shop at ground and basement levels (Use Class E), changes to fenestration on the front facade, and minor alterations to the shopfront.

Documents

Application - Form (Without Personal data)
Archived · Original link
Daylight/Sunlight assessment
Archived · Original link
Economic statement
Archived · Original link
Plan - Existing
Archived · Original link
Plan - Existing
Archived · Original link
Neighbour Notification List
Archived · Original link
Viability report
Archived · Original link
Fire Statement
Archived · Original link
Flood risk assessment
Archived · Original link
Site - Location plan
Archived · Original link
Noise impact assessment
Archived · Original link
Planning statement
Archived · Original link
Plan - Proposed
Archived · Original link
Plan - Proposed
Archived · Original link
Plan - Proposed
Archived · Original link
Valid Application Letter
Archived · Original link

Have your say

Your comment matters. Councils must consider every representation that raises material planning considerations.

Write a comment