← Southwark

Status

Under consideration/assessment Change of use
Received
24 Dec 2025
New homes
0

Full proposal

Change of use from a live-work to wholly residential (C3) use.

Documents

Application - Form (Without Personal data)
Archived · Original link
Statutory consultee replies
Archived · Original link
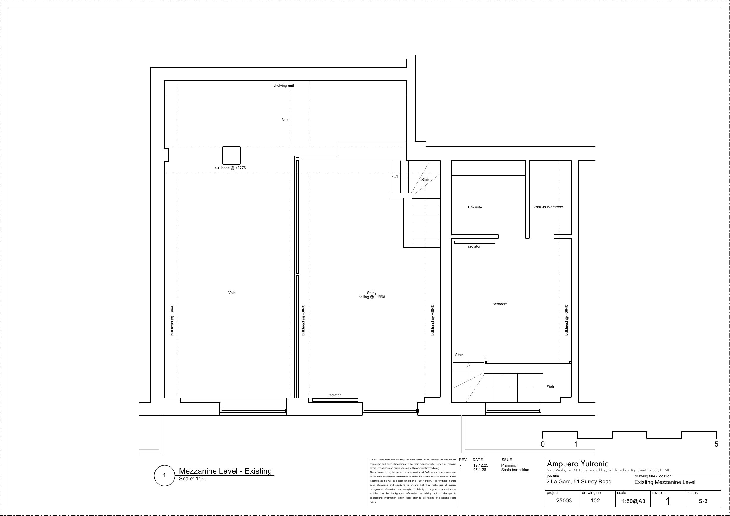
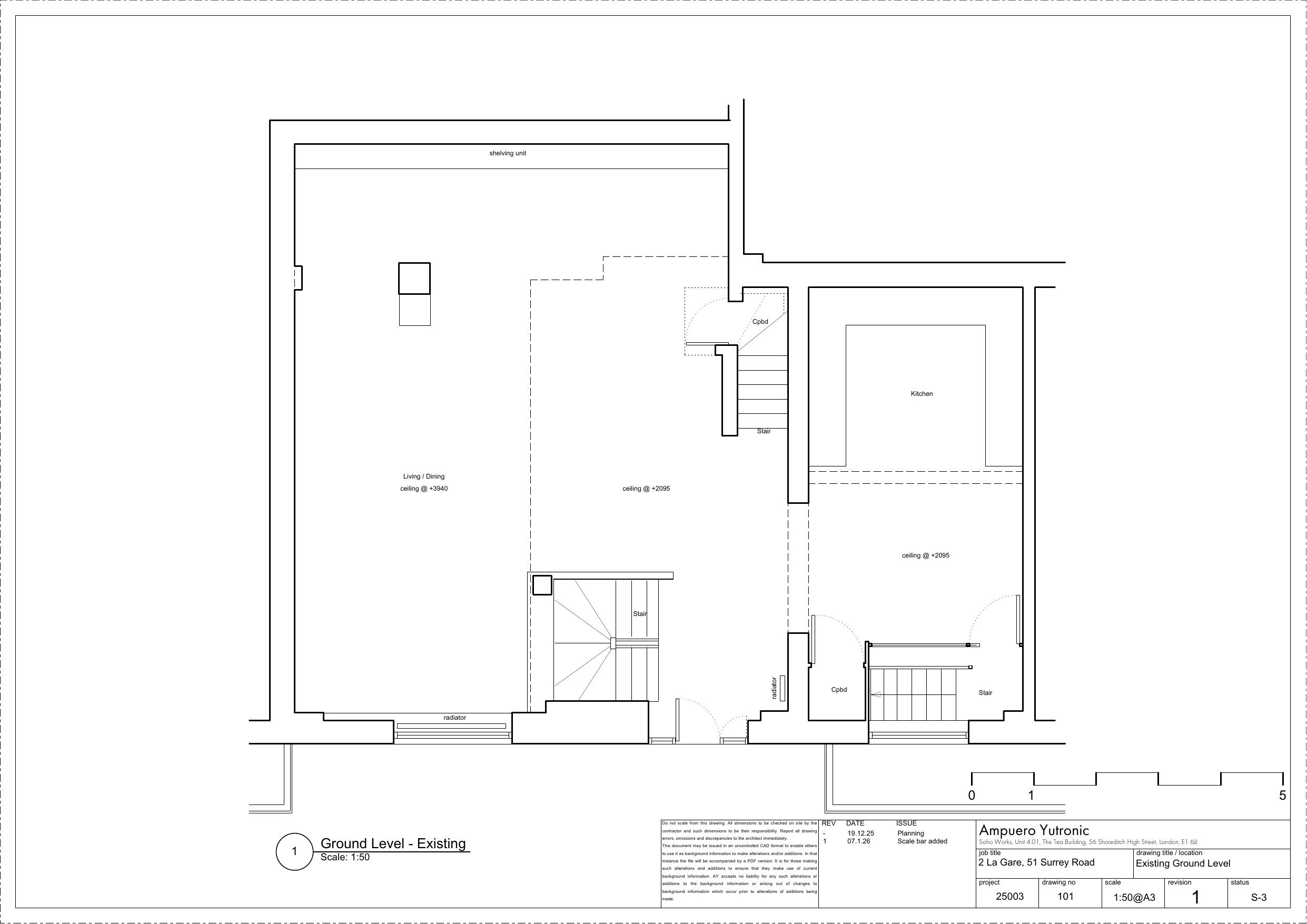
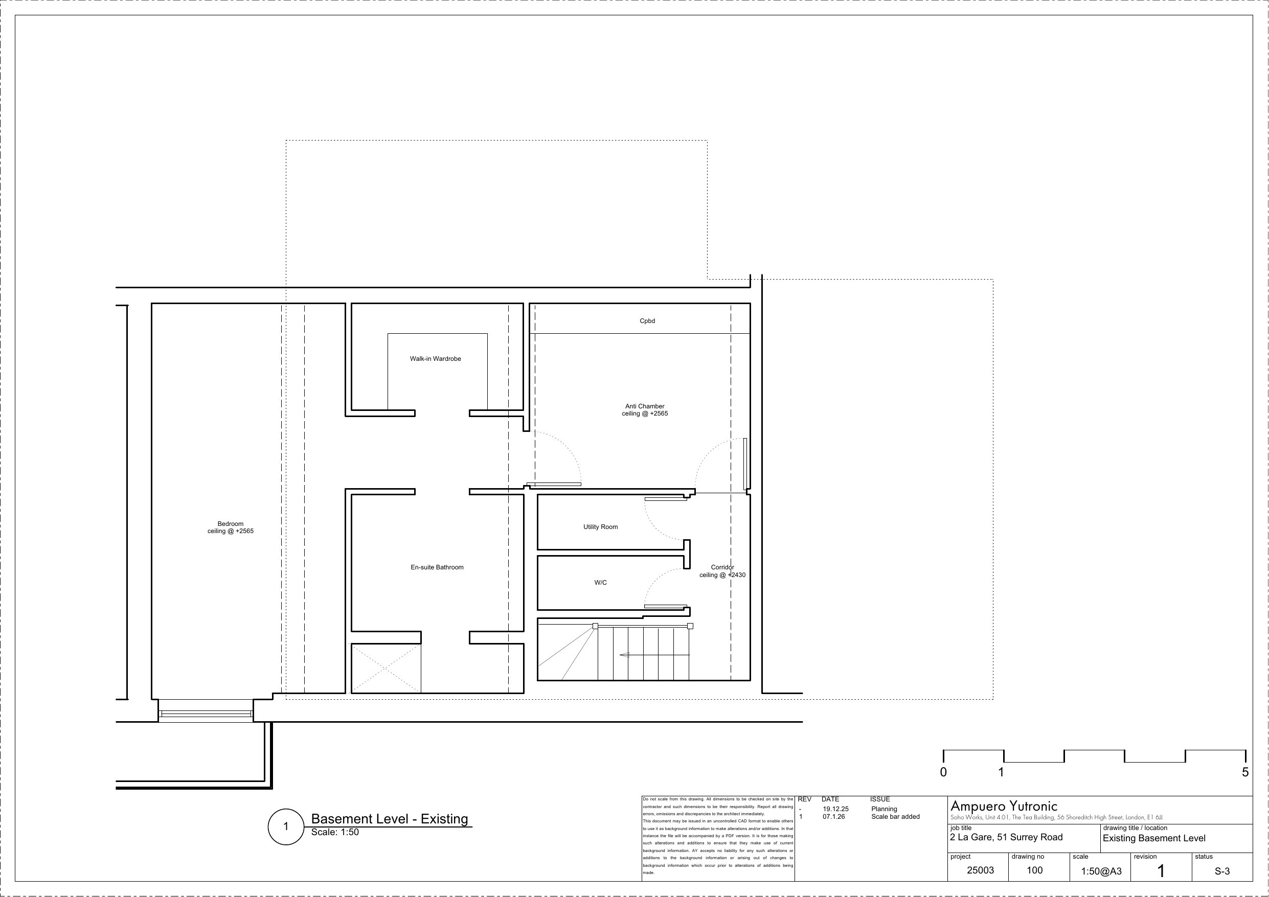
Plan - Existing
Archived · Original link
Plan - Existing
Archived · Original link
Plan - Existing
Archived · Original link
Neighbour Notification List
Archived · Original link
Fire Statement
Archived · Original link
Flood risk assessment
Archived · Original link
Document
Archived · Original link
Planning statement
Planning statement
Not yet archived · Original link
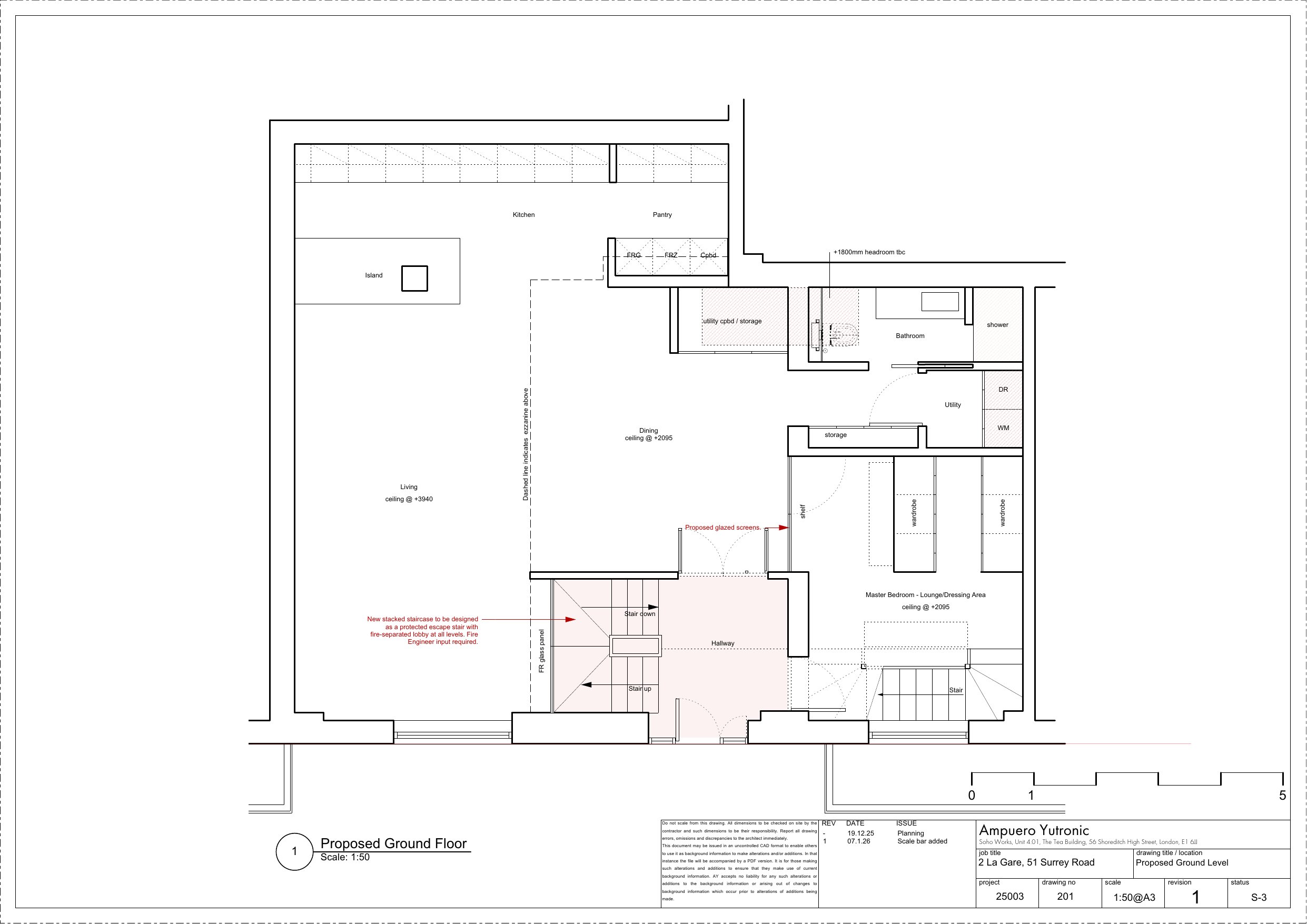
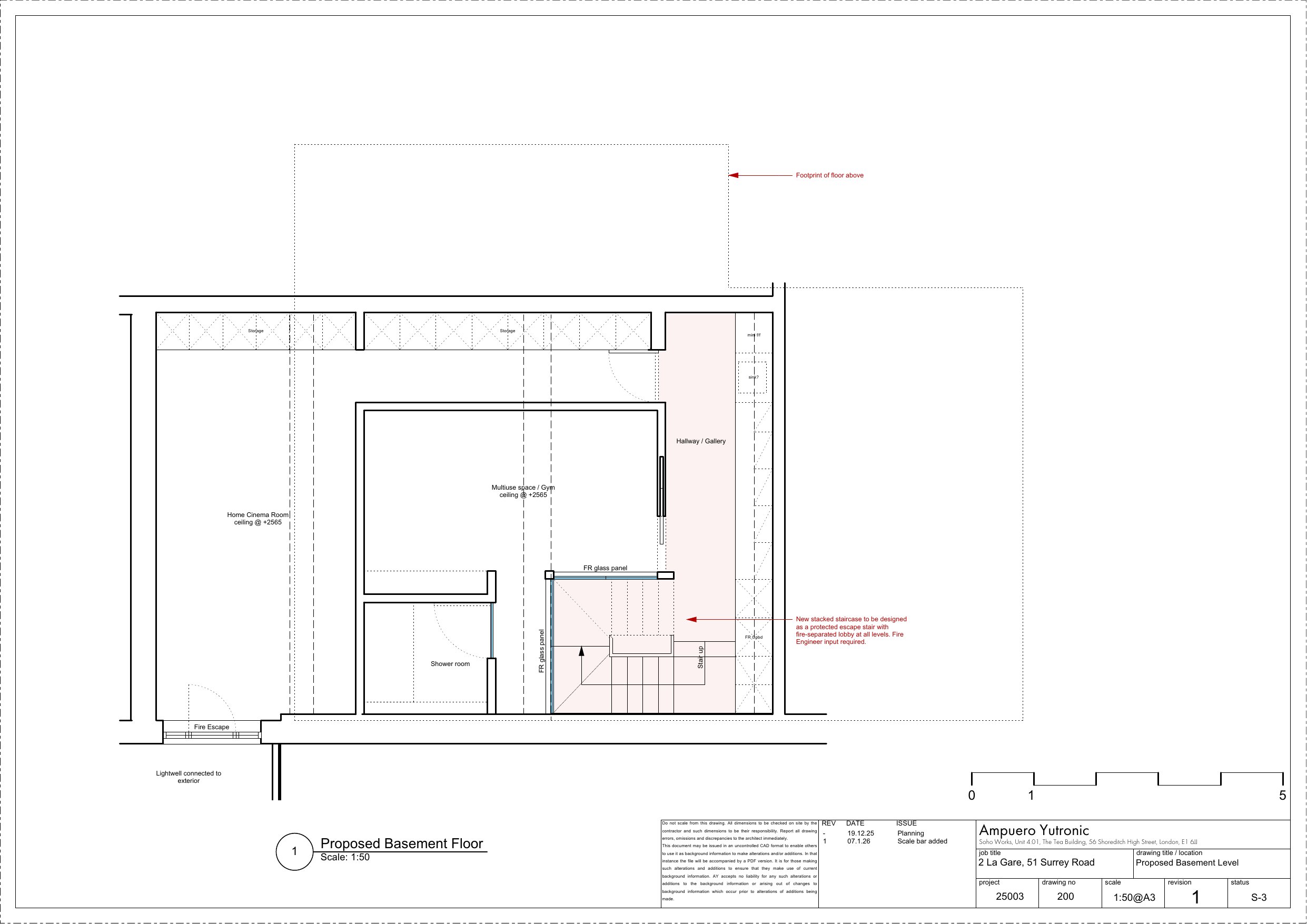
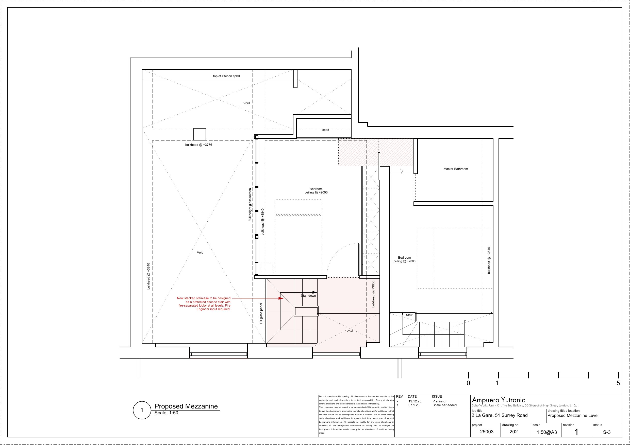
Plan - Proposed
Archived · Original link
Plan - Proposed
Archived · Original link
Plan - Proposed
Archived · Original link
Site - Location plan
Archived · Original link
Site - Block plan
Archived · Original link
Site notice
Archived · Original link
Site notice
Archived · Original link
Valid Application Letter
Archived · Original link

Have your say

Your comment matters. Councils must consider every representation that raises material planning considerations.

Write a comment