← Southwark

Status

Under consideration/assessment House extension
Received
05 Jan 2026
New homes
0

Full proposal

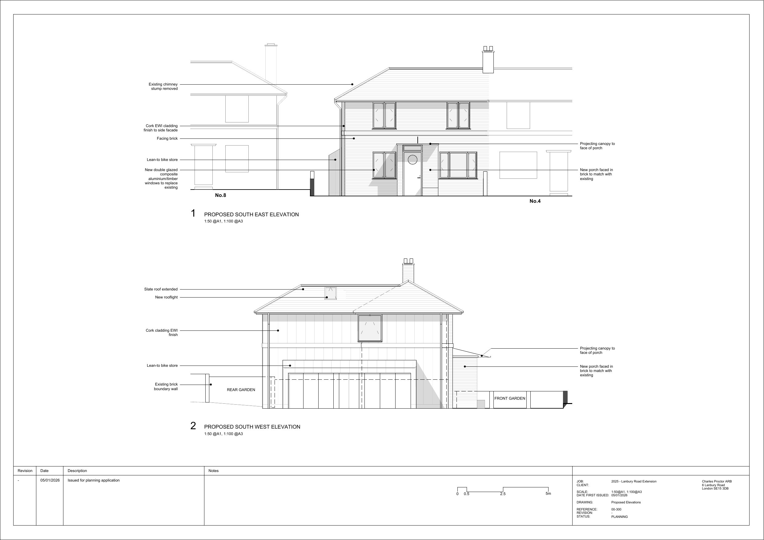
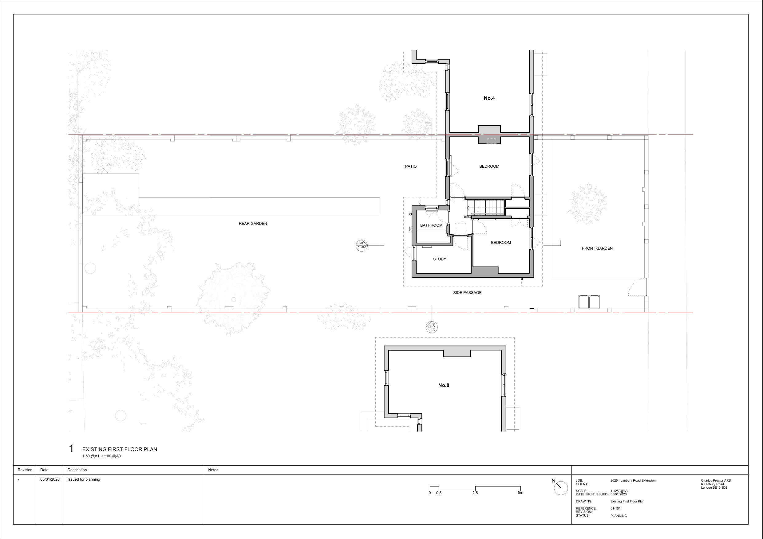
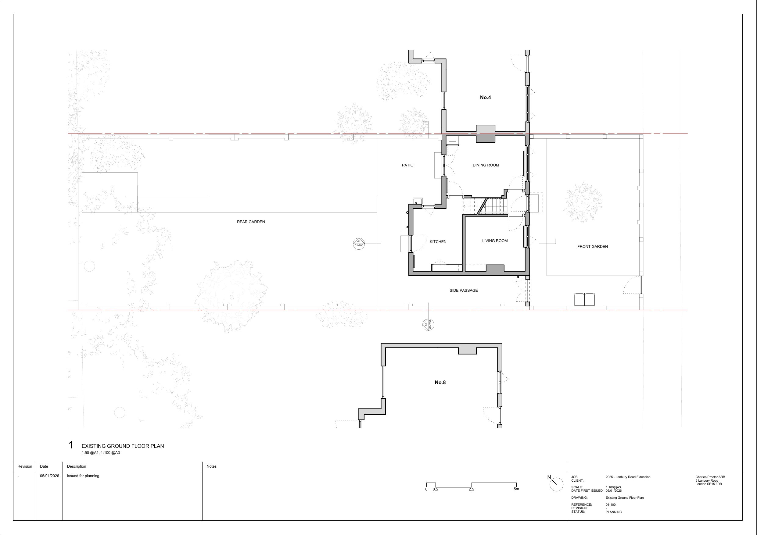
Erection of a two storey rear extension, single storey lean-to side extension, front porch and demolition of remaining single chimney stack.

Documents

Application - Form (Without Personal data)
Archived · Original link
Design and Access statement
Archived · Original link
Plan - Existing
Archived · Original link
Plan - Existing
Archived · Original link
Plan - Existing
Archived · Original link
Plan - Existing
Archived · Original link
Plan - Existing
Archived · Original link
Site - Location plan
Archived · Original link
Neighbour Notification List
Archived · Original link
Parking Provision
Archived · Original link
Plan - Proposed
Archived · Original link
Plan - Proposed
Archived · Original link
Plan - Proposed
Archived · Original link
Plan - Proposed
Archived · Original link
Plan - Proposed
Archived · Original link
Fire Statement
Archived · Original link
Time Extension - Request
Archived · Original link
Valid Application Letter
Archived · Original link

Have your say

Your comment matters. Councils must consider every representation that raises material planning considerations.

Write a comment