← Southwark

Status

Under consideration/assessment Change of use
Received
12 Jan 2026
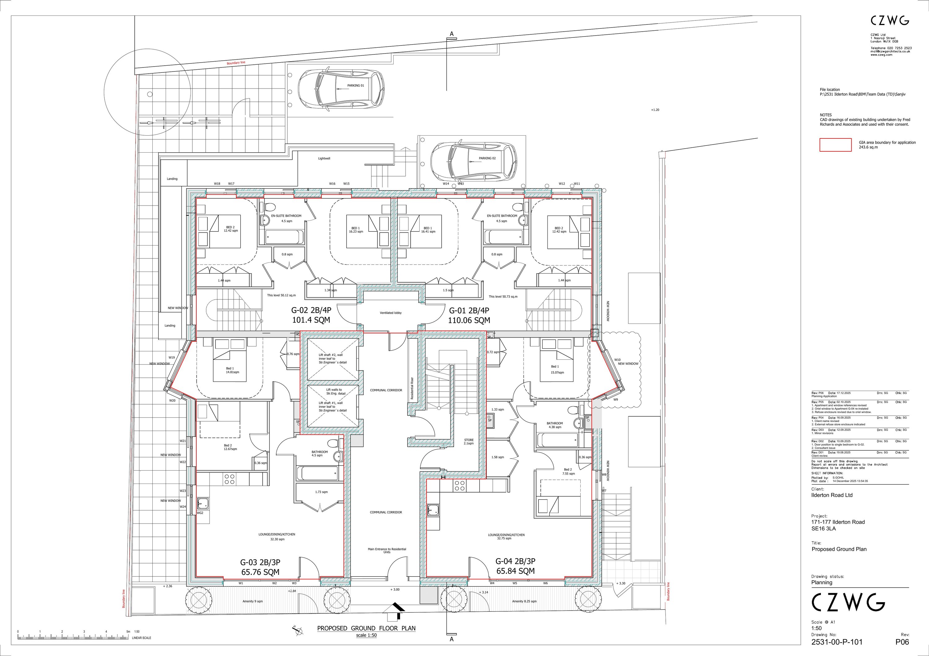
New homes
4

Full proposal

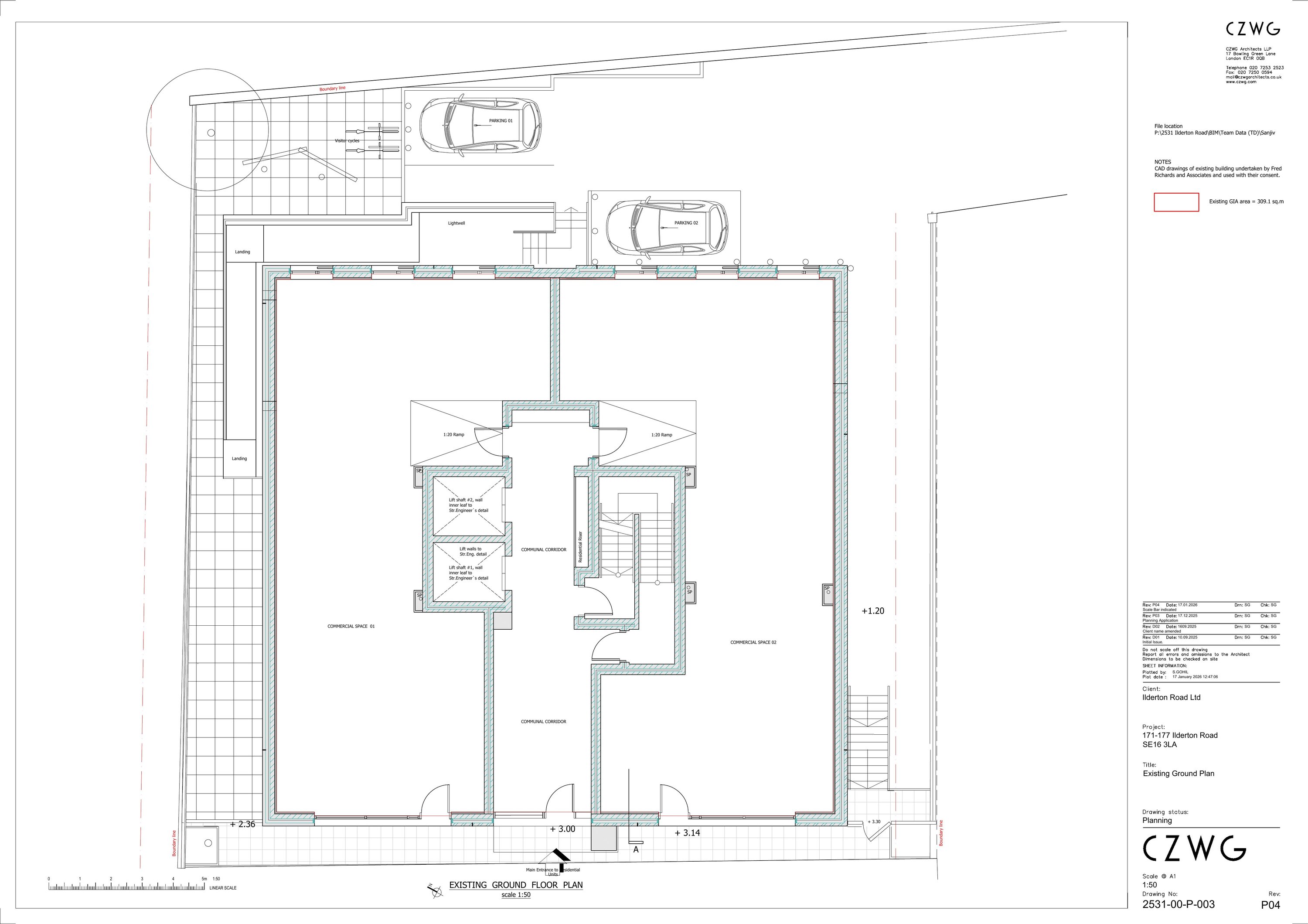
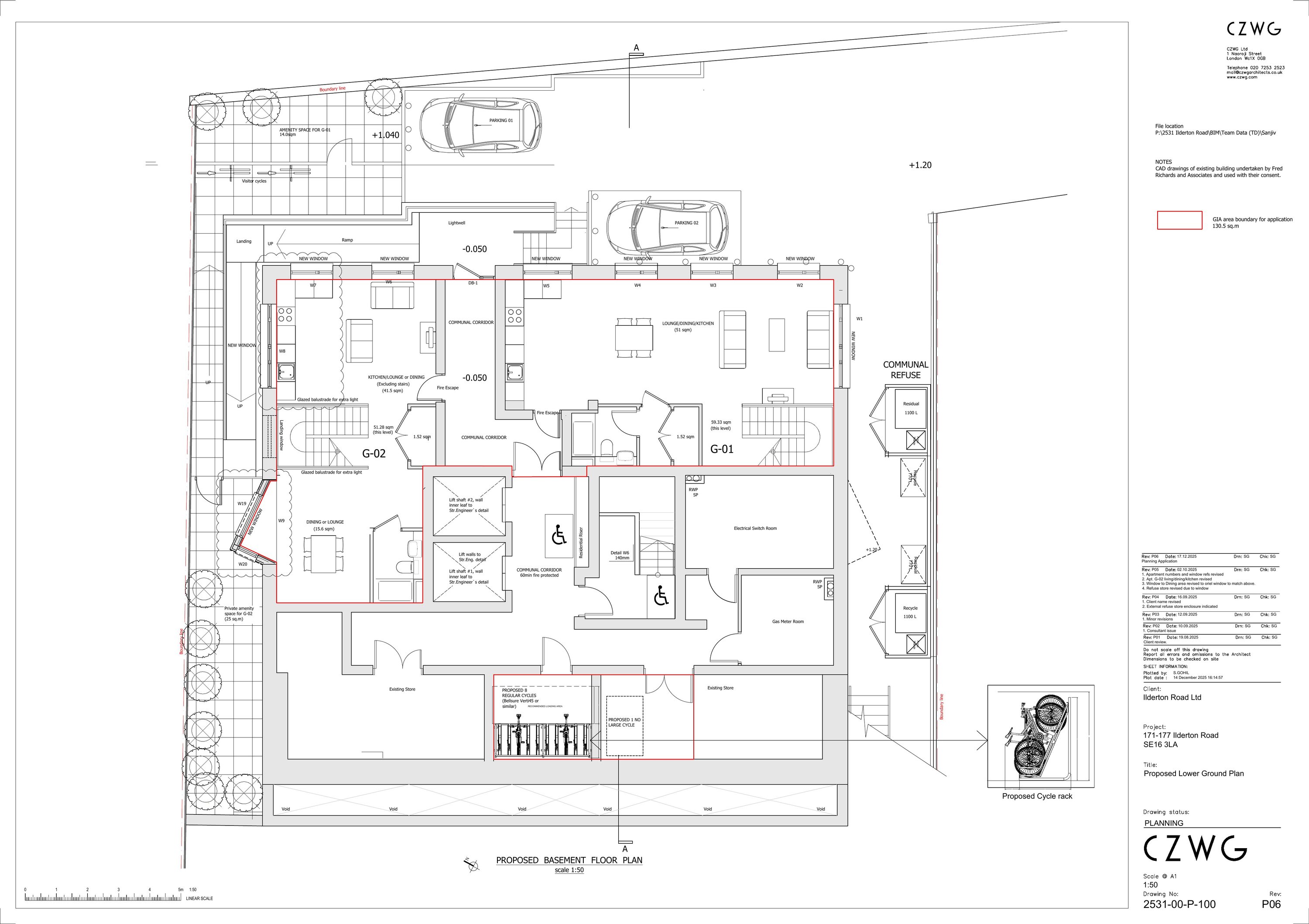
Conversion of part of the non-residential lower ground floor and 2 no. ground floor commercial units into 4 no. flats consisting of 2 no. 2 bed - 4 person duplex units on the ground floor and 2 no. 2 bed- 3 person units on the ground floor.

Documents

Application - Covering letter
Archived · Original link
Application - Form (Without Personal data)
Archived · Original link
CIL - GIA Form
Archived · Original link
Comment - Consultee
Archived · Original link
Design and Access statement
Archived · Original link
Comment - Consultee
Archived · Original link
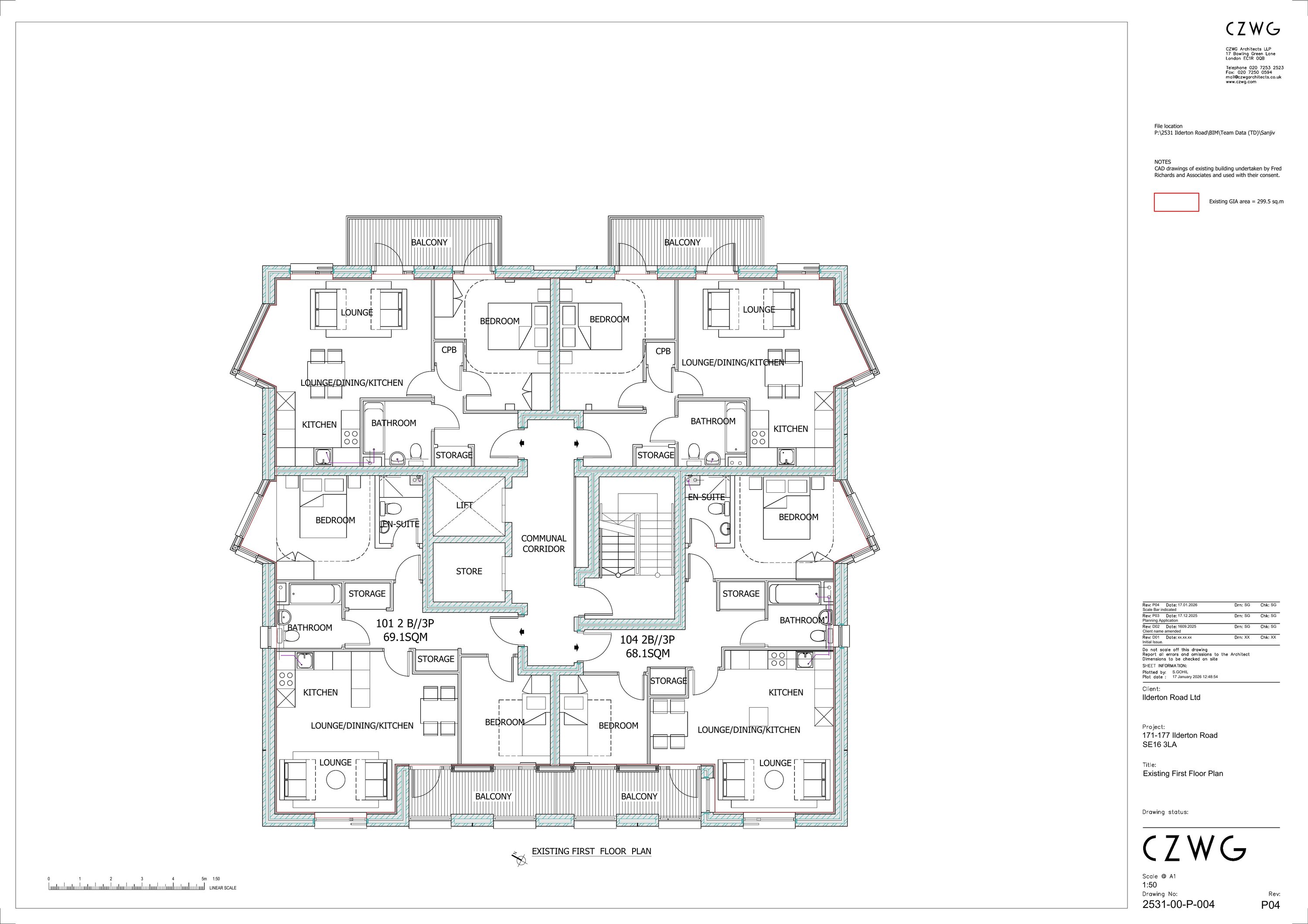
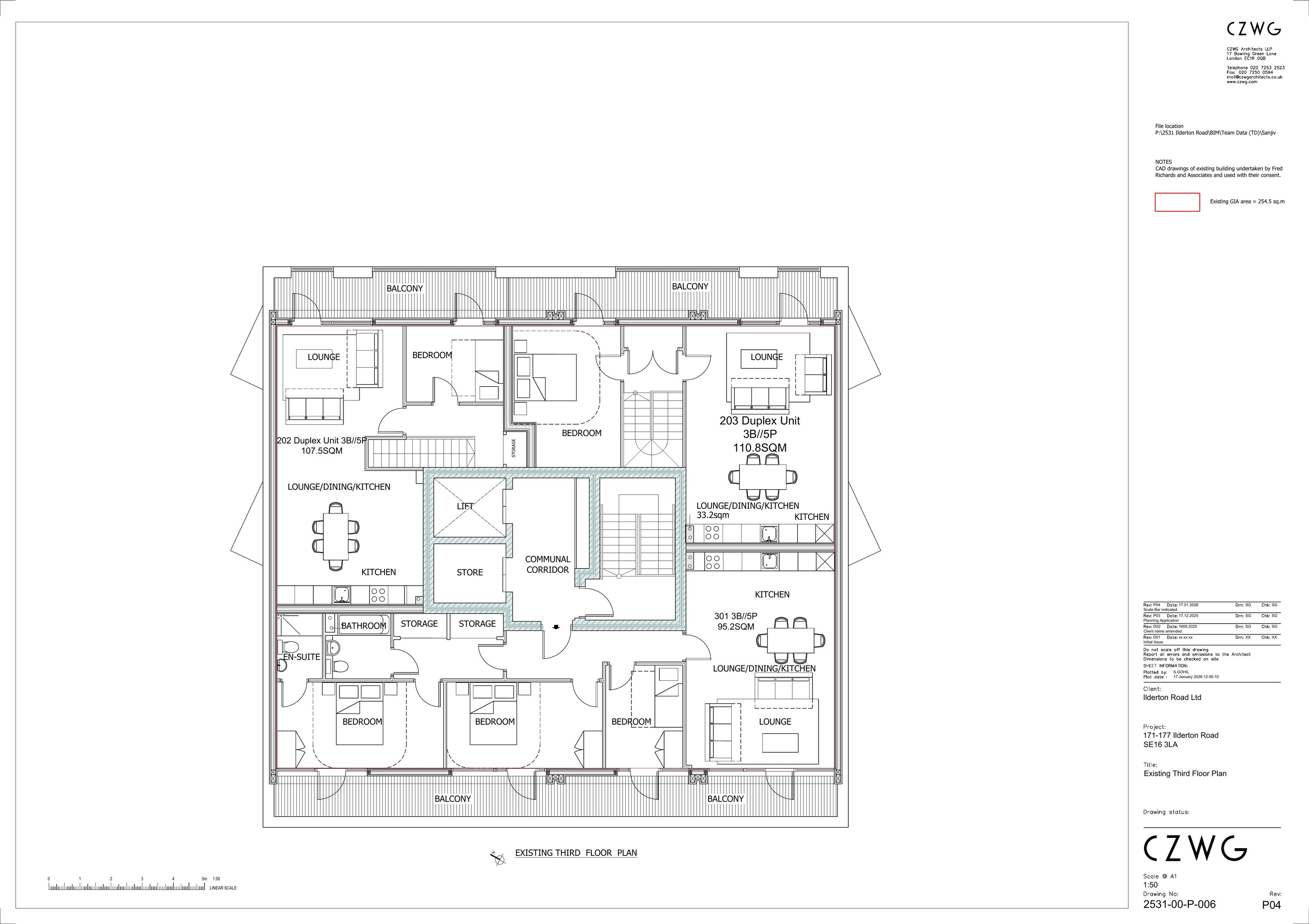
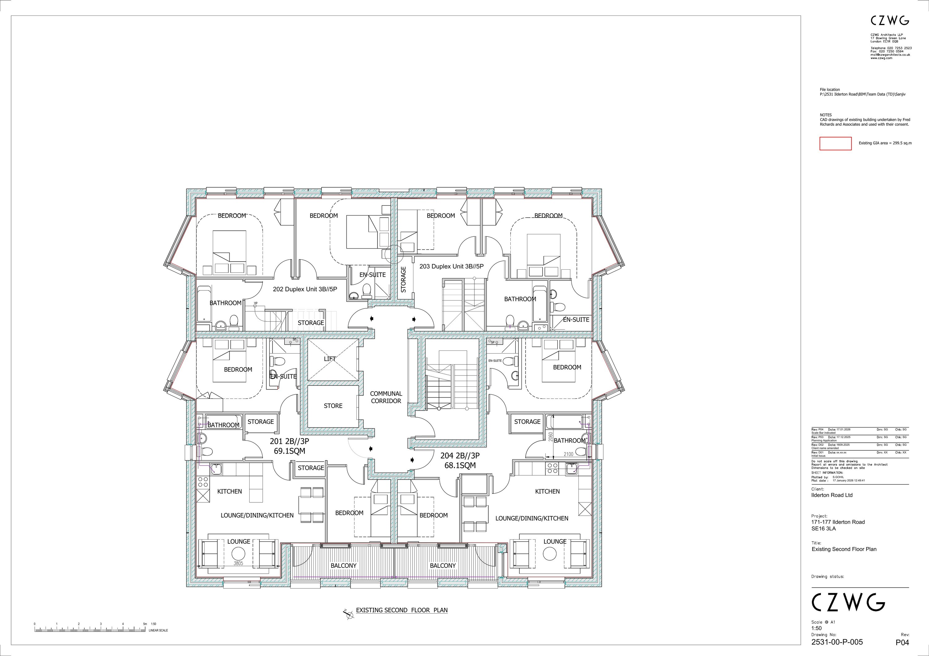
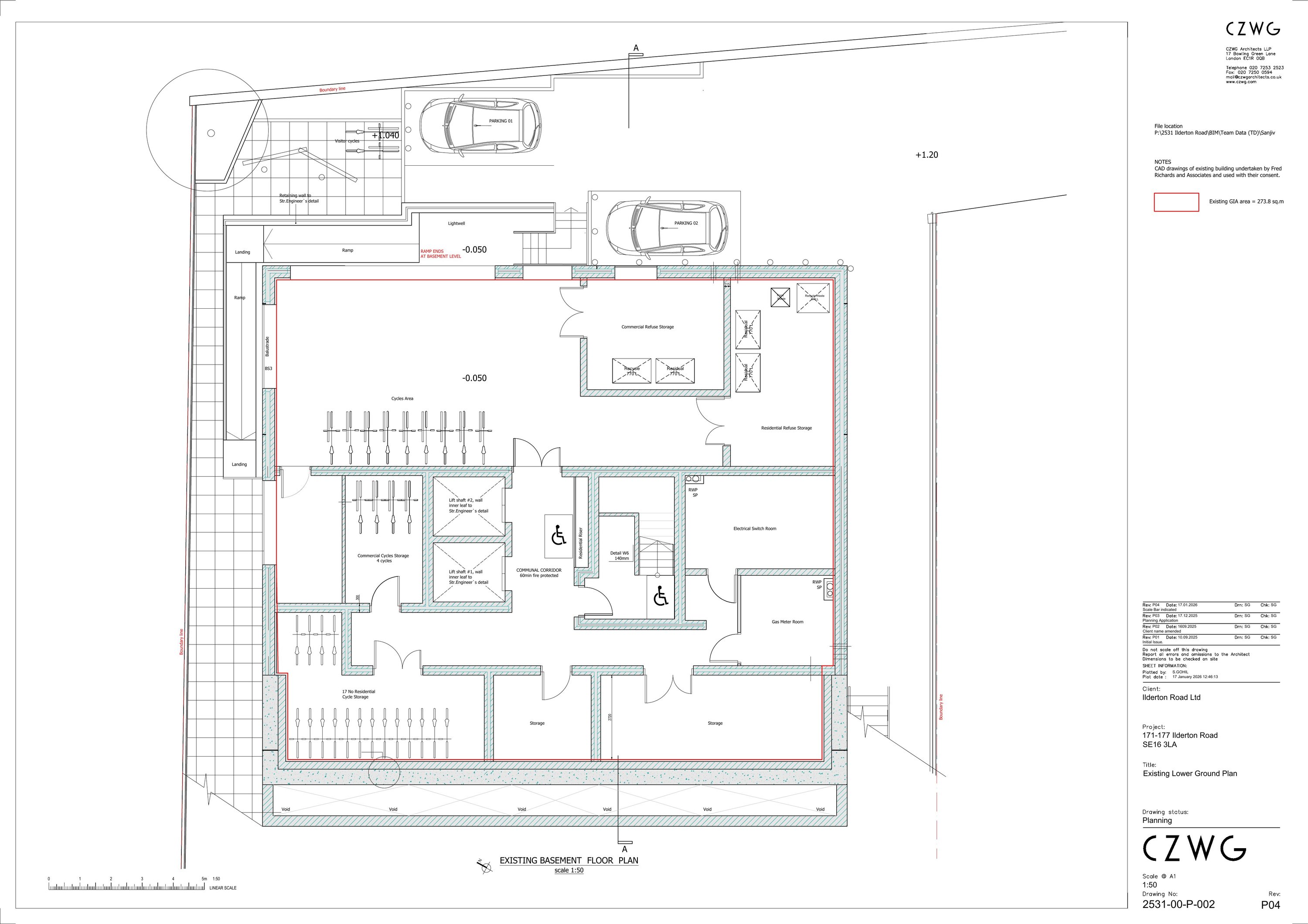
Plan - Existing
Archived · Original link
Plan - Existing
Archived · Original link
Plan - Existing
Archived · Original link
Plan - Existing
Archived · Original link
Plan - Existing
Archived · Original link
Plan - Existing
Archived · Original link
Plan - Existing
Archived · Original link
Plan - Existing
Archived · Original link
Neighbour Notification List
Archived · Original link
Fire Statement
Archived · Original link
Flood risk assessment
Archived · Original link
Flood risk assessment
Archived · Original link
Daylight/Sunlight assessment
Archived · Original link
Photographs and photomontages
Archived · Original link
Photographs and photomontages
Archived · Original link
Photographs and photomontages
Archived · Original link
Photographs and photomontages
Archived · Original link
Photographs and photomontages
Archived · Original link
Photographs and photomontages
Archived · Original link
Photographs and photomontages
Archived · Original link
Photographs and photomontages
Archived · Original link
Plan - Proposed
Archived · Original link
Plan - Proposed
Archived · Original link
Plan - Proposed
Archived · Original link
Plan - Proposed
Archived · Original link
Plan - Proposed
Archived · Original link
Site waste management plan
Archived · Original link
Site - Location plan
Archived · Original link
Site notice
Archived · Original link
Time Extension - Request
Archived · Original link
Valid Application Letter
Archived · Original link

Have your say

Your comment matters. Councils must consider every representation that raises material planning considerations.

Write a comment