← Southwark

Status

Awaiting decision House extension
Received
13 Jan 2026
New homes
0

Full proposal

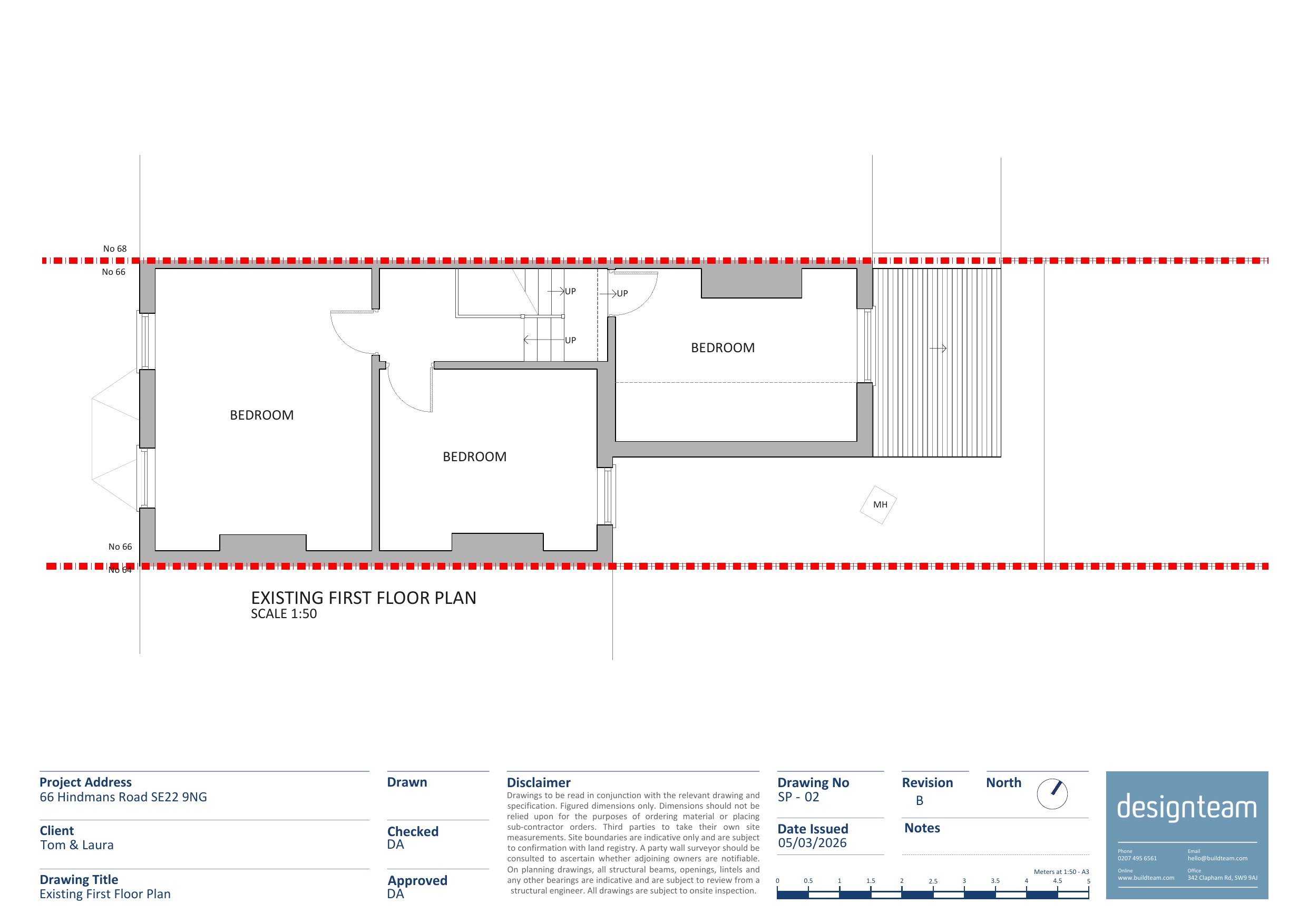
Construction of an L-shaped mansard loft conversion, including an increase in ridge height by 323mm, installation of 3no. rooflights to the front slope of the main roof, removal of chimney stack to rear outrigger roof, and installation of external French doors at ground floor level

Documents

Plan - Existing
Archived · Original link
Plan - Superseded
Archived · Original link
Plan - Existing
Archived · Original link
Plan - Superseded
Archived · Original link
Plan - Existing
Archived · Original link
Plan - Superseded
Archived · Original link
Plan - Existing
Archived · Original link
Plan - Superseded
Archived · Original link
Plan - Superseded
Archived · Original link
Plan - Existing
Archived · Original link
Plan - Existing
Archived · Original link
Plan - Superseded
Archived · Original link
Plan - Superseded
Archived · Original link
Plan - Existing
Archived · Original link
Site - Location plan
Archived · Original link
Plan - Superseded
Archived · Original link
Photographs and photomontages
Archived · Original link
Plan - Superseded
Archived · Original link
Plan - Proposed
Archived · Original link
Plan - Superseded
Archived · Original link
Plan - Proposed
Archived · Original link
Plan - Proposed
Archived · Original link
Plan - Superseded
Archived · Original link
Plan - Proposed
Archived · Original link
Plan - Superseded
Archived · Original link
Plan - Superseded
Archived · Original link
Plan - Proposed
Archived · Original link
Plan - Superseded
Archived · Original link
Plan - Proposed
Archived · Original link
Plan - Superseded
Archived · Original link
Plan - Proposed
Archived · Original link
Plan - Superseded
Archived · Original link
Plan - Proposed
Archived · Original link

Have your say

Your comment matters. Councils must consider every representation that raises material planning considerations.

Write a comment