← Southwark

Status

Under consideration/assessment Other
Received
13 Jan 2026
New homes
0

Full proposal

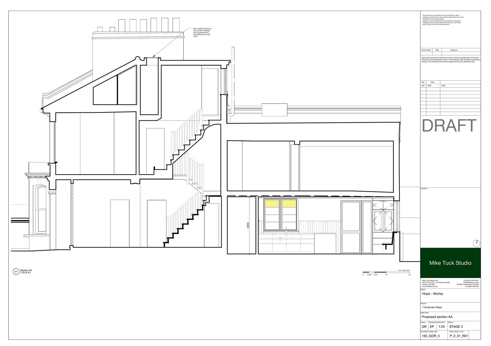
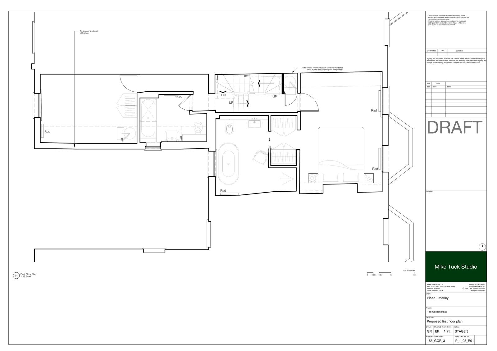
Alterations to windows at the rear of the property, alterations to the existing pergola, and associated minor internal works, including the installation of a rooflight to the flat roof over the second-floor shower room.

Documents

Application - Form (Without Personal data)
Archived · Original link
Design and Access statement
Archived · Original link
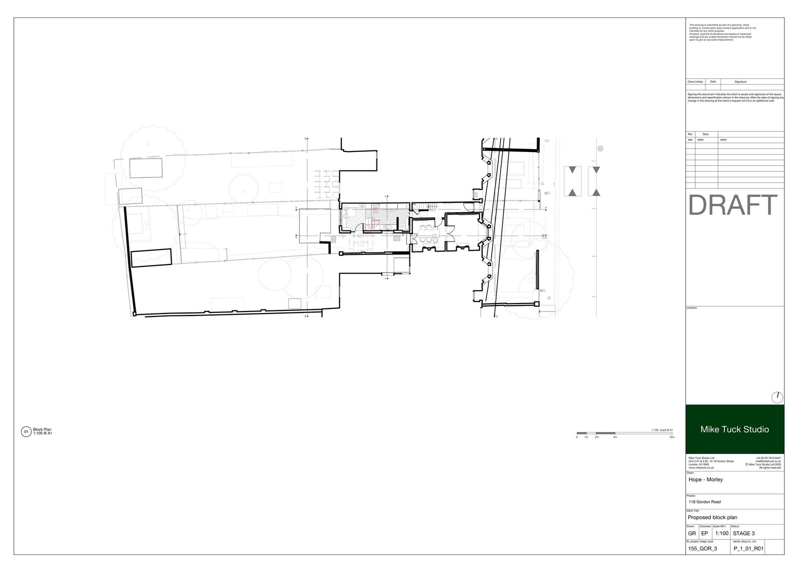
Site - Block plan
Archived · Original link
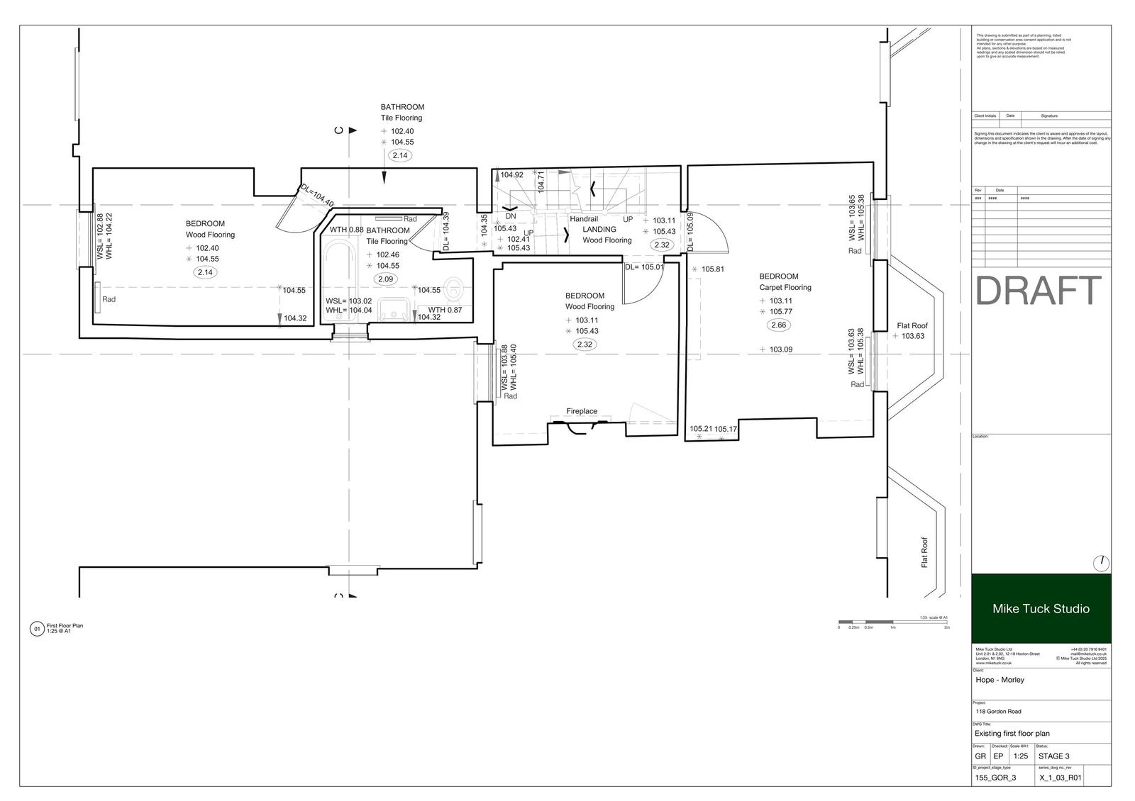
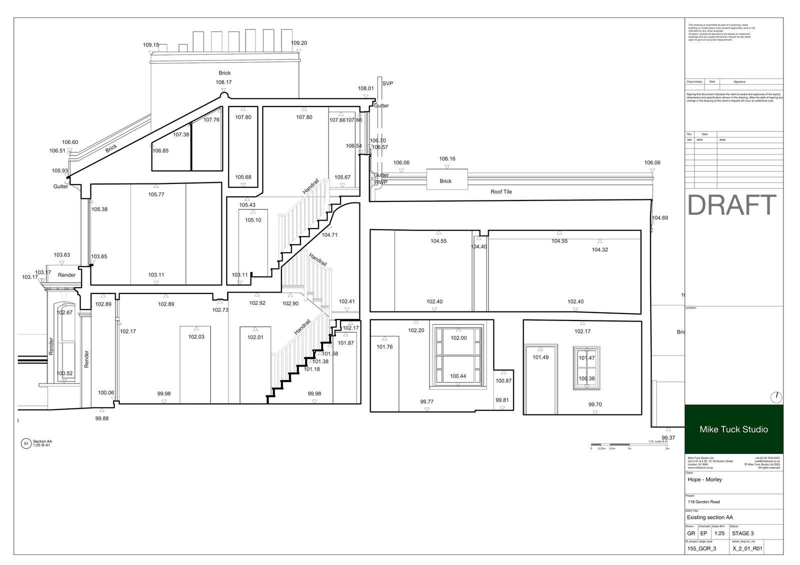
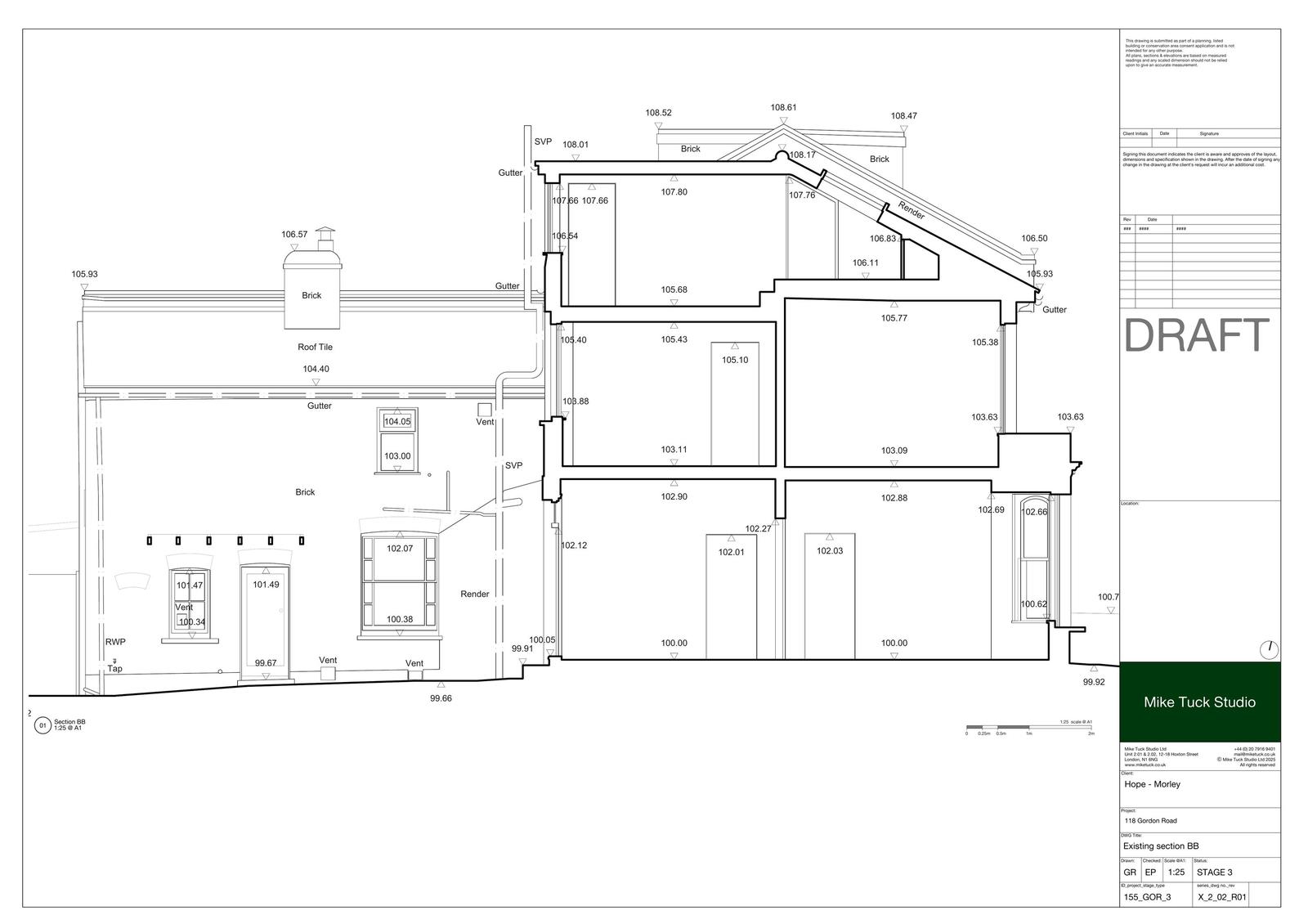
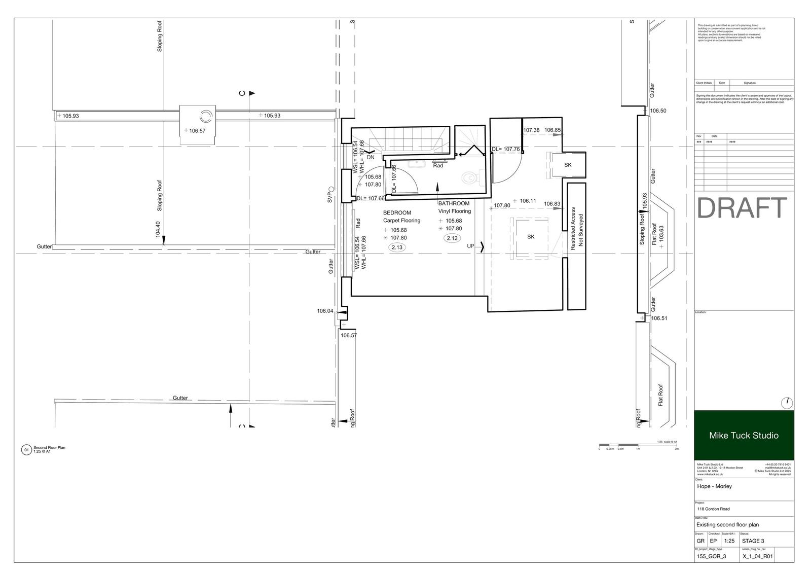
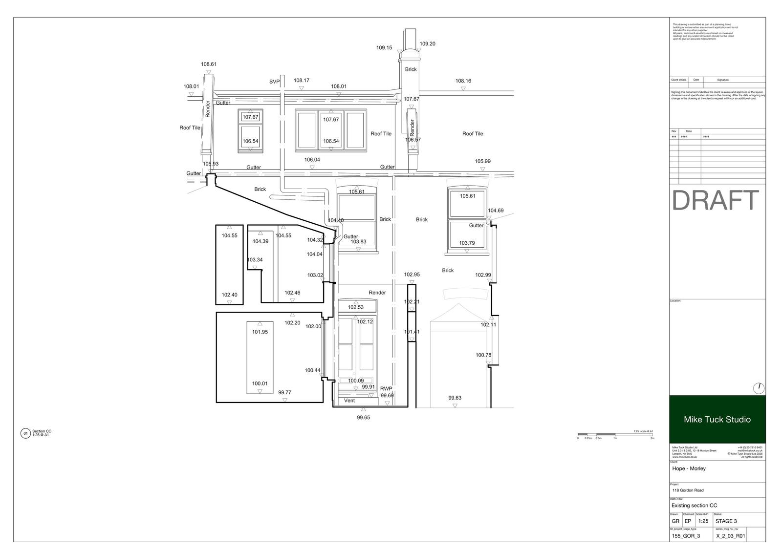
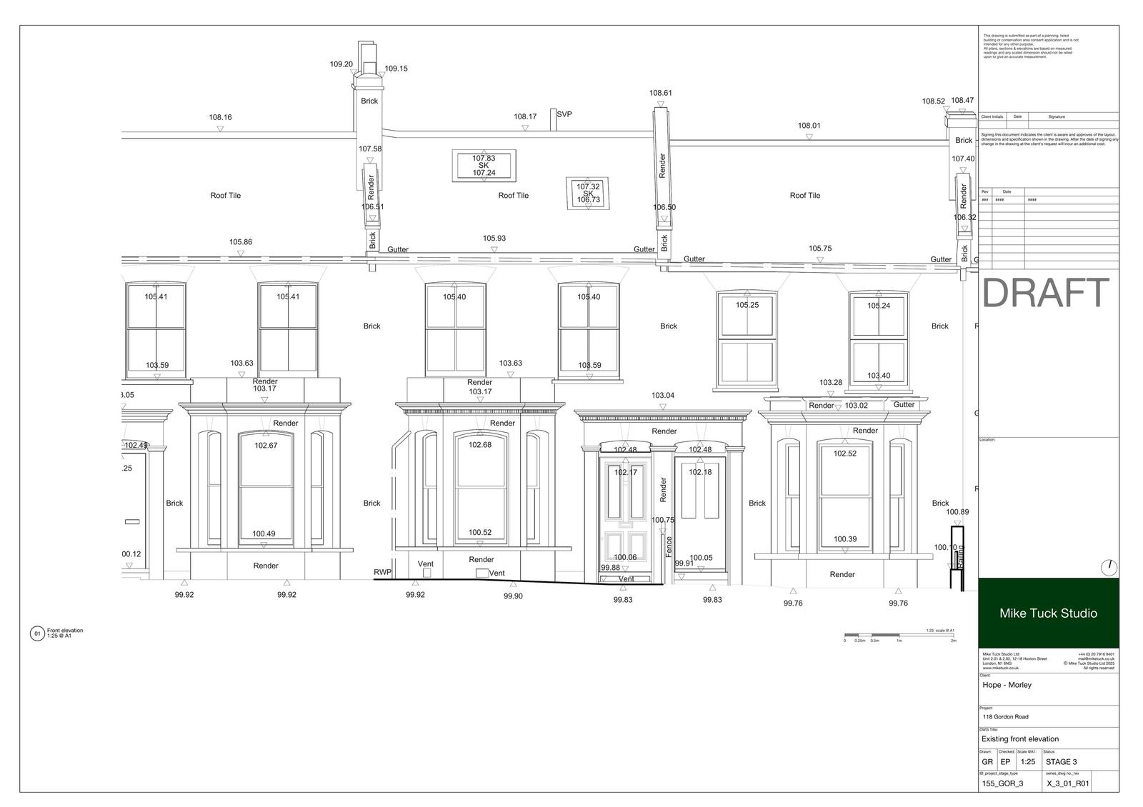
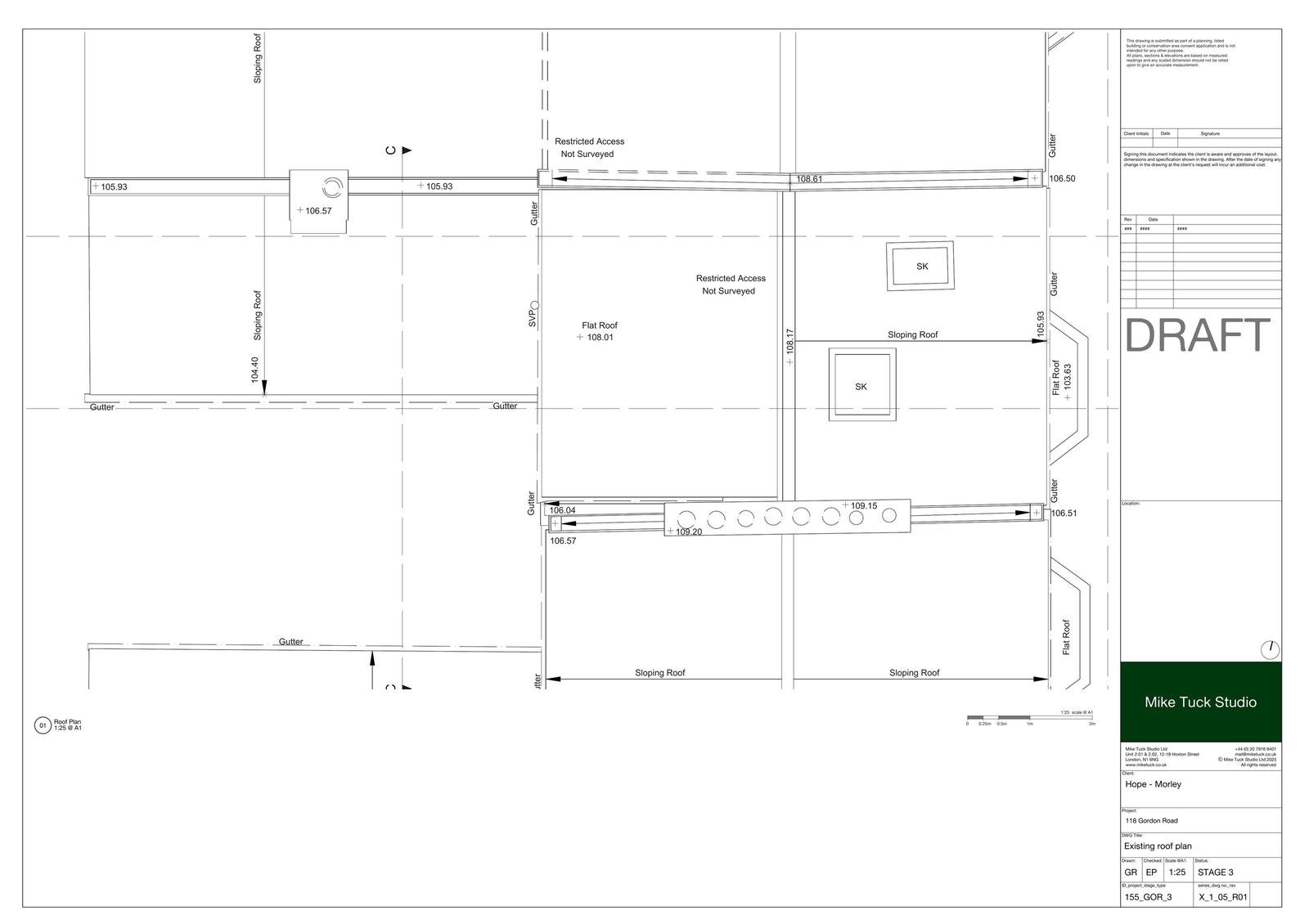
Plan - Existing
Archived · Original link
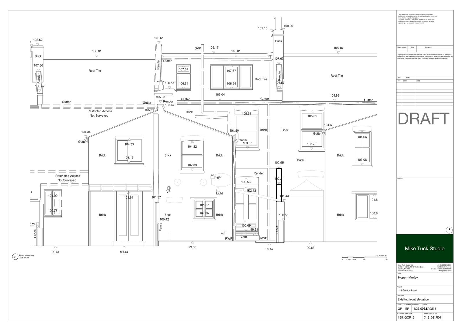
Plan - Existing
Archived · Original link
Plan - Existing
Archived · Original link
Plan - Existing
Archived · Original link
Plan - Existing
Archived · Original link
Plan - Existing
Archived · Original link
Plan - Existing
Archived · Original link
Plan - Existing
Archived · Original link
Plan - Existing
Archived · Original link
Neighbour Notification List
Archived · Original link
Heritage statement
Archived · Original link
Parking Provision
Archived · Original link
Press Notice
Archived · Original link
Site - Block plan
Archived · Original link
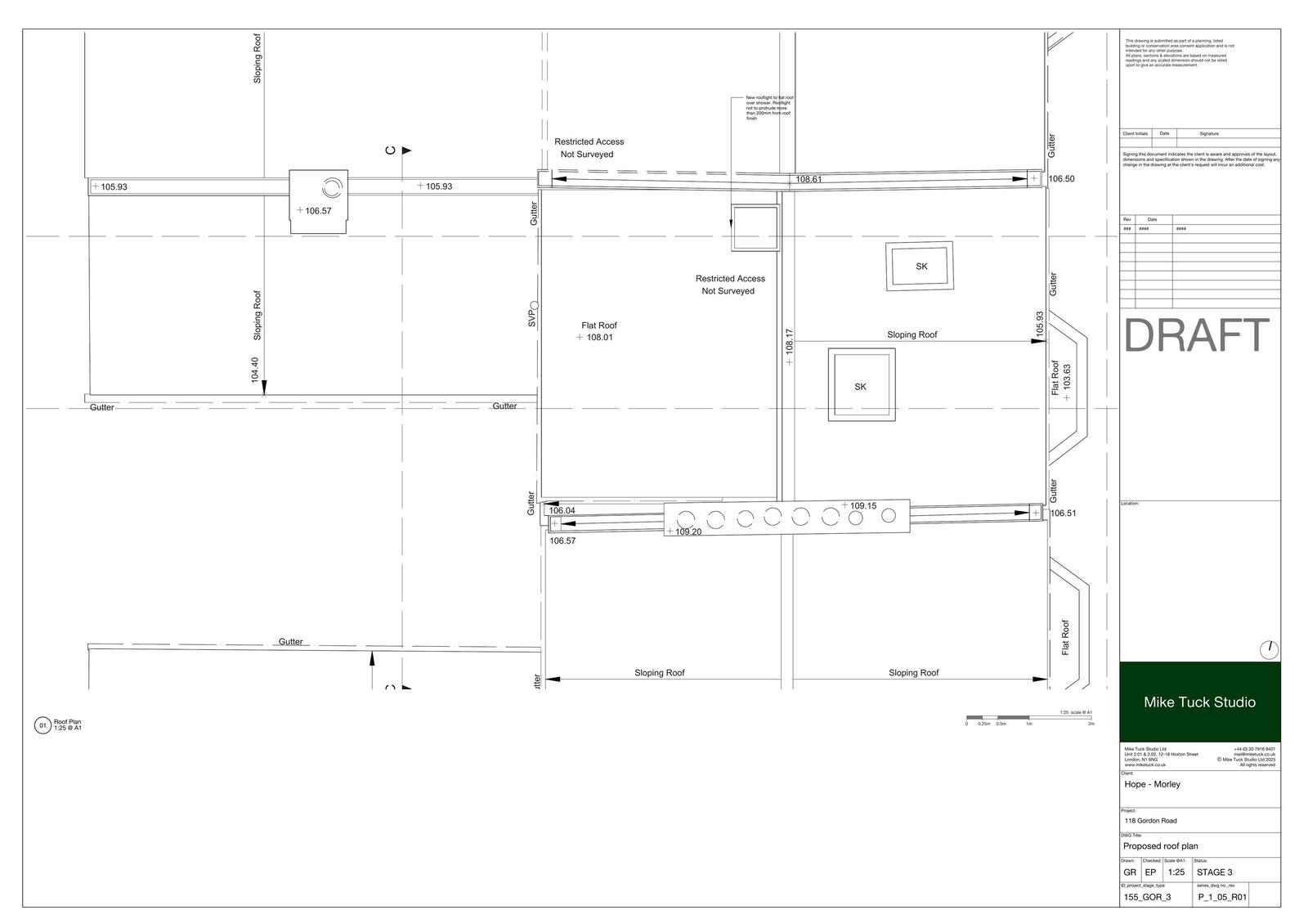
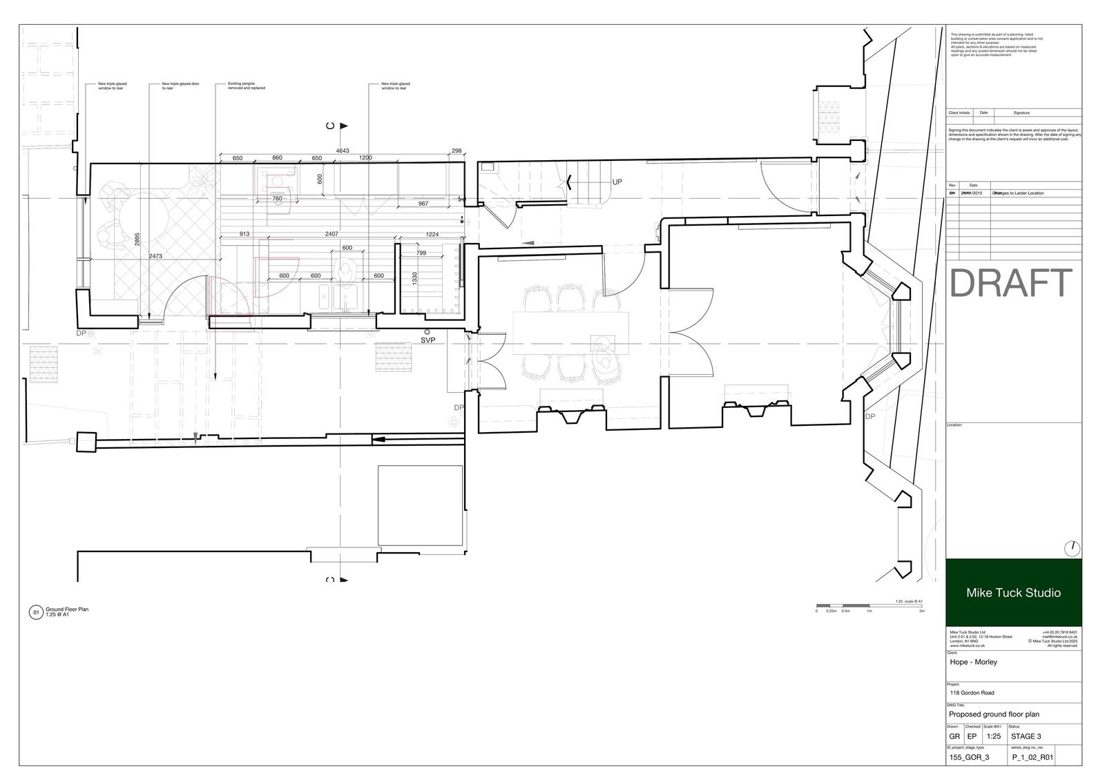
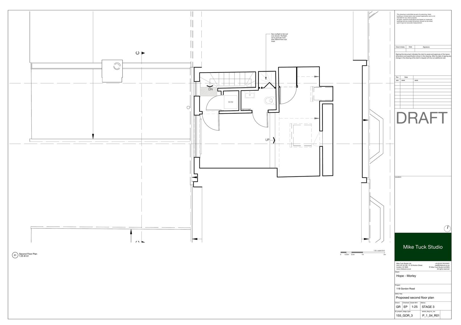
Plan - Proposed
Archived · Original link
Plan - Proposed
Archived · Original link
Plan - Proposed
Archived · Original link
Plan - Proposed
Archived · Original link
Plan - Proposed
Archived · Original link
Plan - Proposed
Archived · Original link
Plan - Proposed
Archived · Original link
Plan - Proposed
Archived · Original link
Site notice
Archived · Original link
Site - Location plan
Archived · Original link
Valid Application Letter
Archived · Original link

Have your say

Your comment matters. Councils must consider every representation that raises material planning considerations.

Write a comment