← Southwark

Status

Under consideration/assessment New housing
Received
14 Jan 2026
New homes
0

Full proposal

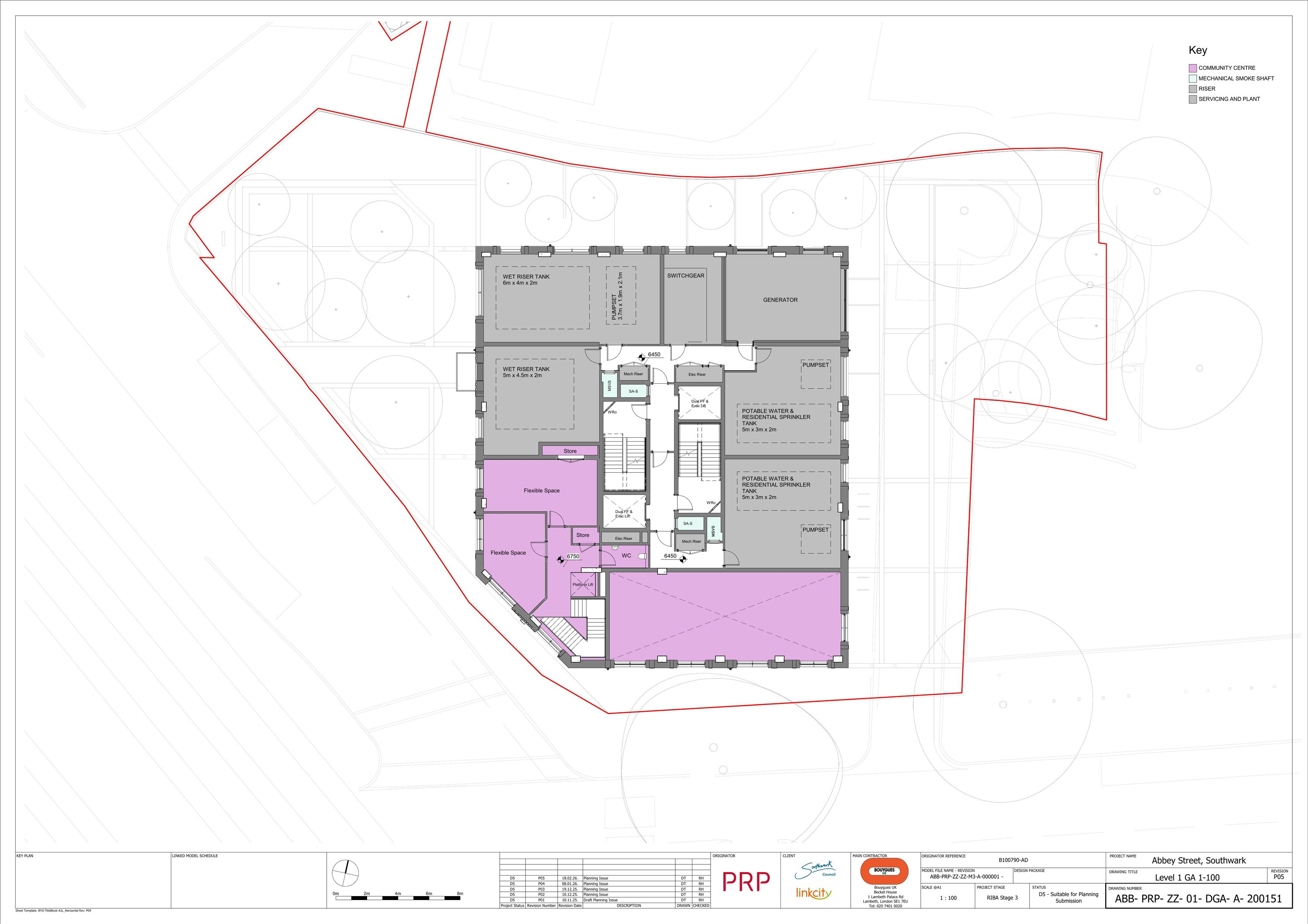
Redevelopment of the site 177 Abbey Street SE1 to provide a tower building comprising a community facility on ground and first floors and key worker homes above; disabled car parking, cycle parking, refuse storage, mechanical plant and associated hard and soft landscaping.

Documents

Air quality assessment
Archived · Original link
Application - Form (Without Personal data)
Archived · Original link
Plan - Proposed
Archived · Original link
Biodiversity survey / ecology assessment
Archived · Original link
Plan - Amended
Archived · Original link
Plan - Amended
Archived · Original link
Circular Economy Statement
Archived · Original link
Document
Archived · Original link
Construction method statement
Archived · Original link
Application - Covering letter
Archived · Original link
Daylight/Sunlight assessment
Archived · Original link
Daylight/Sunlight assessment
Archived · Original link
Development Consultation Charter
Archived · Original link
Design and Access statement
Archived · Original link
Plan - Proposed
Archived · Original link
Drainage strategy
Archived · Original link
Document
Archived · Original link
Statutory consultee replies
Archived · Original link
Development Consultation Charter
Archived · Original link
Plan - Existing
Archived · Original link
Neighbour Notification List
Archived · Original link
Fire Statement
Archived · Original link
Flood risk assessment
Archived · Original link
Utilities statement
Archived · Original link
GLA CARBON EMISSIONS SPREADSHEET
Document
Not yet archived · Original link
Circular Economy Statement
Archived · Original link
GLA WHOLE LIFE CARBON TEMPLATE
Document
Not yet archived · Original link
Plan - Amended
Archived · Original link
Plan - Amended
Archived · Original link
Heritage statement
Archived · Original link
Ground investigation report
Archived · Original link
Ground investigation report
Archived · Original link
Plan - General
Archived · Original link
Plan - Amended
Archived · Original link
Plan - Amended
Archived · Original link
Plan - Amended
Archived · Original link
Plan - Amended
Archived · Original link
Plan - Amended
Archived · Original link
Plan - Amended
Archived · Original link
Artificial Lighting assessment
Archived · Original link
Document
Archived · Original link
Noise impact assessment
Archived · Original link
Comment - Contributor
Archived · Original link
Planning statement
Archived · Original link
Press Notice
Archived · Original link
Plan - Amended
Archived · Original link
Plan - Proposed
Archived · Original link
Fire Statement
Archived · Original link
Plan - Amended
Archived · Original link
Plan - Amended
Archived · Original link
Site - Location plan
Archived · Original link
Site notice
Archived · Original link
Plan - Amended
Archived · Original link
Biodiversity BNG Metrics
Archived · Original link
TFL
Statutory consultee replies
Archived · Original link
Comment - Consultee
Archived · Original link
Comment - Consultee
Archived · Original link
Transport assessment
Archived · Original link
Travel plan
Archived · Original link
Tree survey or Arboricultural implications
Archived · Original link
Valid Application Letter
Archived · Original link
Document
Archived · Original link

Have your say

Your comment matters. Councils must consider every representation that raises material planning considerations.

Write a comment