← Southwark

Status

Under consideration/assessment House extension
Received
16 Jan 2026
New homes
0

Full proposal

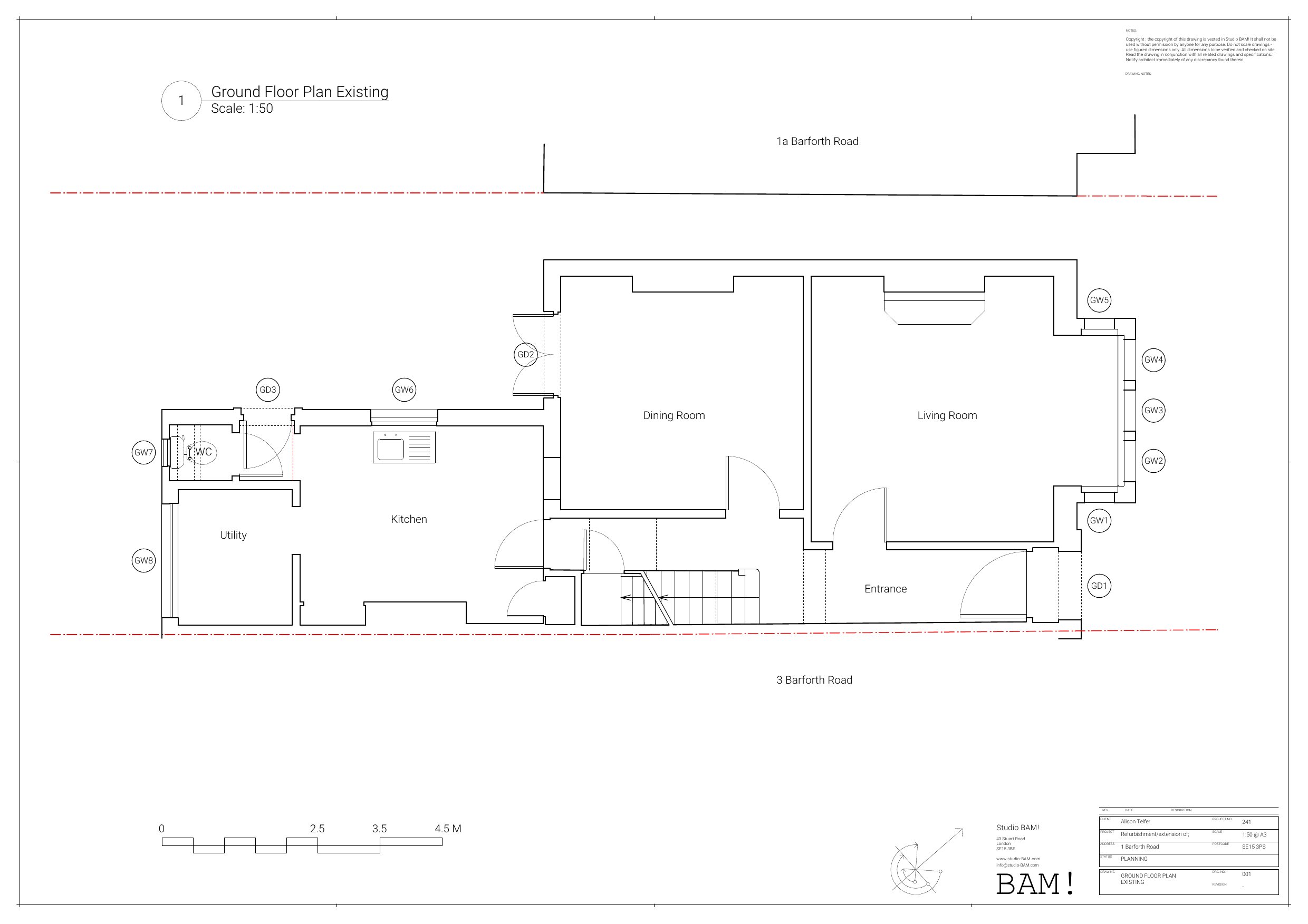
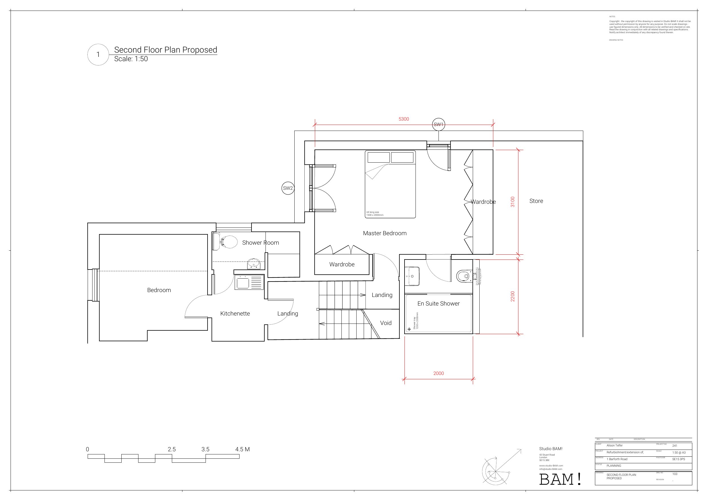
Single storey rear extension on ground floor and loft conversion dormer extension to form new en suite bedroom including new side facing window at loft level and removal of chimney

Documents

Design and Access statement
Archived · Original link
Application - Form (Without Personal data)
Archived · Original link
Plan - Existing
Archived · Original link
Plan - Existing
Archived · Original link
Plan - Existing
Archived · Original link
Plan - Existing
Archived · Original link
Plan - Existing
Archived · Original link
Plan - Existing
Archived · Original link
Neighbour Notification List
Archived · Original link
Press Notice
Archived · Original link
Plan - Proposed
Archived · Original link
Plan - Proposed
Archived · Original link
Plan - Proposed
Archived · Original link
Plan - Proposed
Archived · Original link
Plan - Proposed
Archived · Original link
Plan - Proposed
Archived · Original link
Site - Location plan
Archived · Original link
Site notice
Archived · Original link
Site notice
Archived · Original link
Site notice
Archived · Original link
Valid Application Letter
Archived · Original link

Have your say

Your comment matters. Councils must consider every representation that raises material planning considerations.

Write a comment