← Southwark

Status

Under consideration/assessment House extension
Received
19 Jan 2026
New homes
0

Full proposal

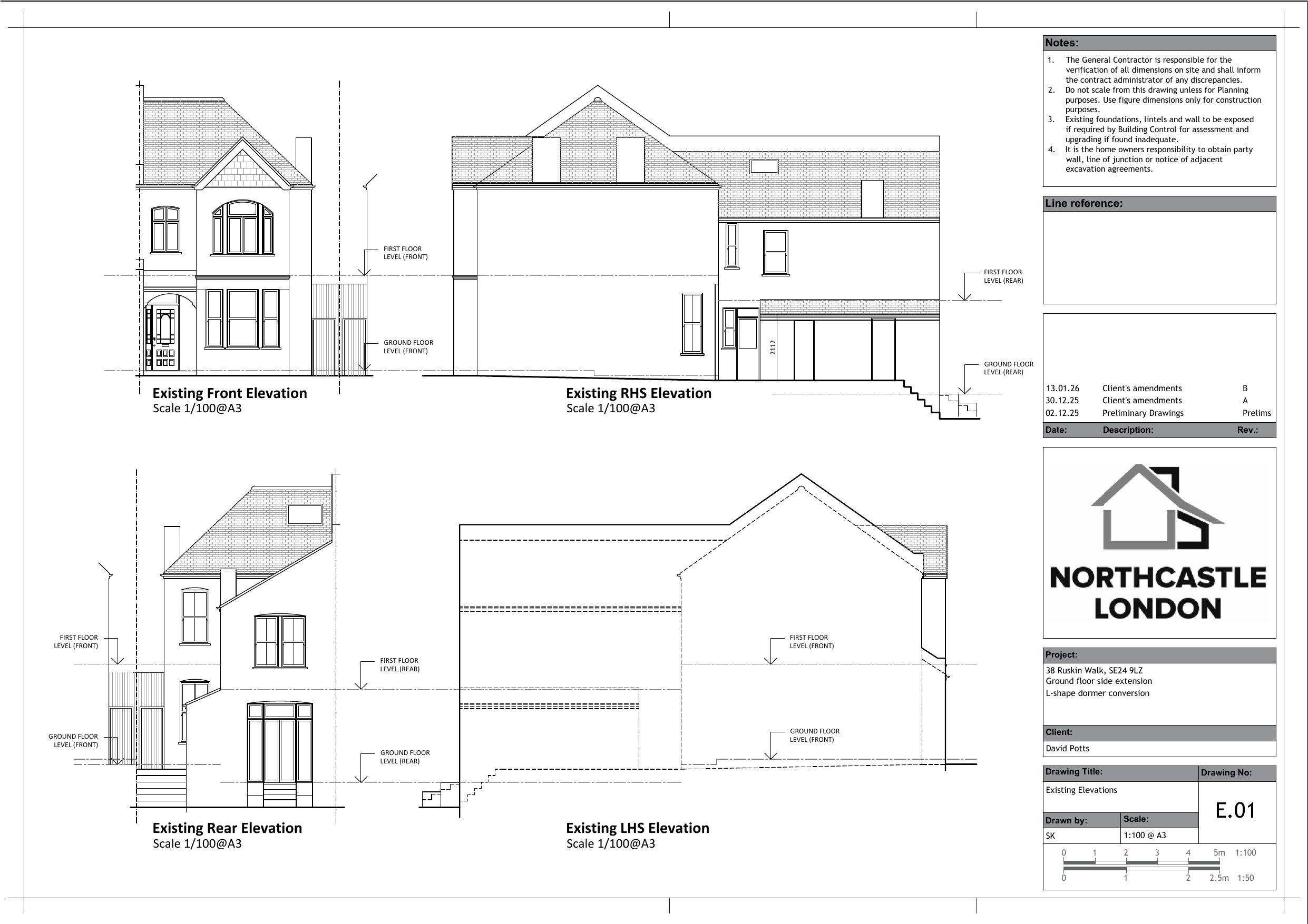
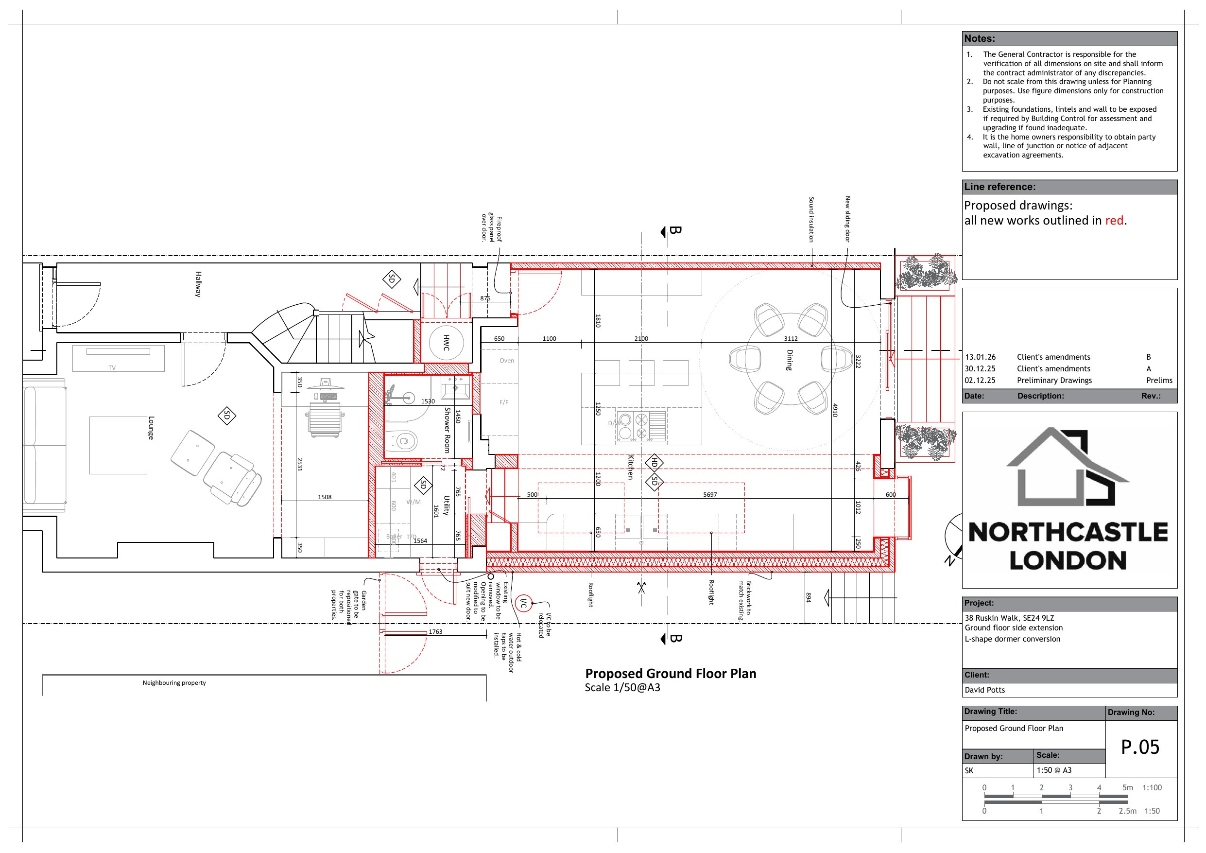
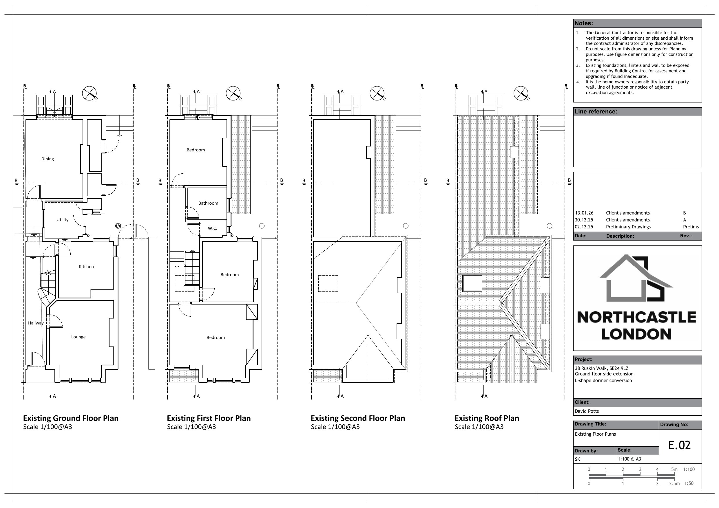
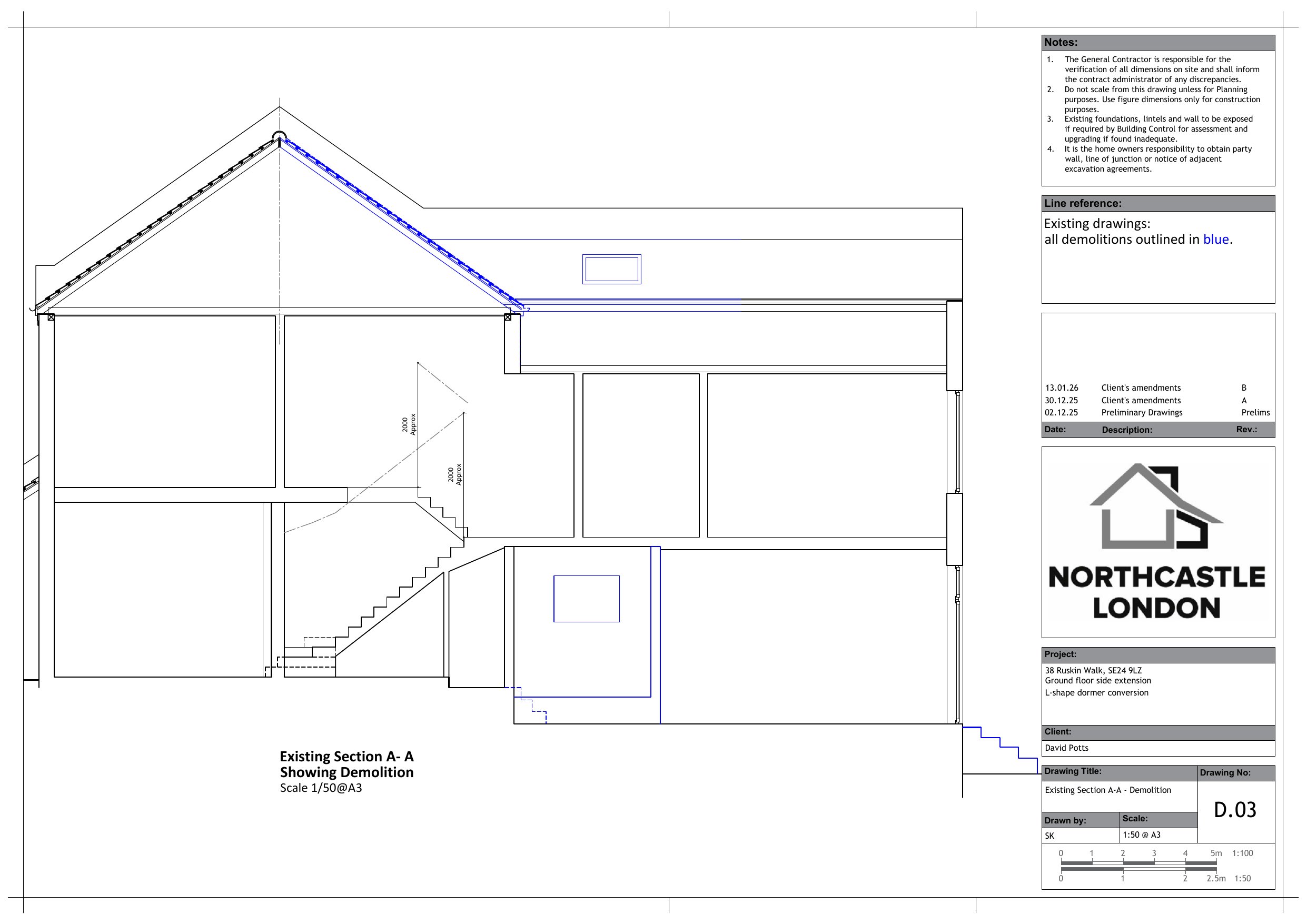
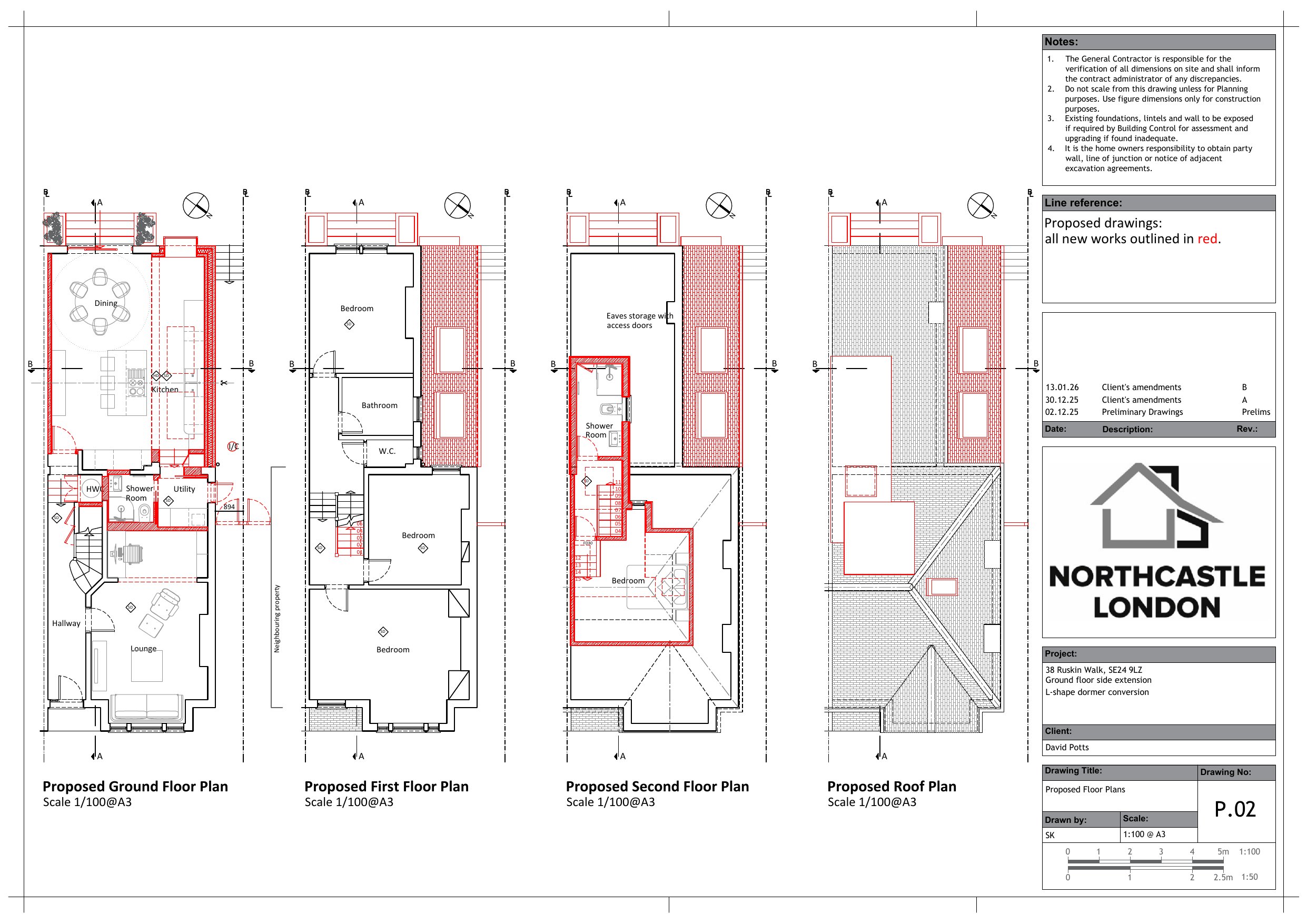
Ground floor single storey side extension and loft conversion with L-shape dormer and the creation of a window on the side elevation and side elevation roof slope

Documents

Application - Form (Without Personal data)
Archived · Original link
Application - Covering letter
Archived · Original link
Design and Access statement
Archived · Original link
Plan - Existing
Archived · Original link
Site - Block plan
Archived · Original link
Site - Block plan
Archived · Original link
Plan - Existing
Archived · Original link
Plan - Existing
Archived · Original link
Plan - Existing
Archived · Original link
Plan - Existing
Archived · Original link
Plan - Existing
Archived · Original link
Plan - Existing
Archived · Original link
Plan - Existing
Archived · Original link
Plan - Existing
Archived · Original link
Plan - Existing
Archived · Original link
Neighbour Notification List
Archived · Original link
Fire Statement
Archived · Original link
Photographs and photomontages
Archived · Original link
Site - Block plan
Archived · Original link
Plan - Proposed
Archived · Original link
Plan - Proposed
Archived · Original link
Plan - Proposed
Archived · Original link
Plan - Proposed
Archived · Original link
Plan - Proposed
Archived · Original link
Plan - Proposed
Archived · Original link
Plan - Proposed
Archived · Original link
Site - Location plan
Archived · Original link
Valid Application Letter
Archived · Original link

Have your say

Your comment matters. Councils must consider every representation that raises material planning considerations.

Write a comment