← Southwark

Status

Under consideration/assessment House extension
Received
20 Jan 2026
New homes
0

Full proposal

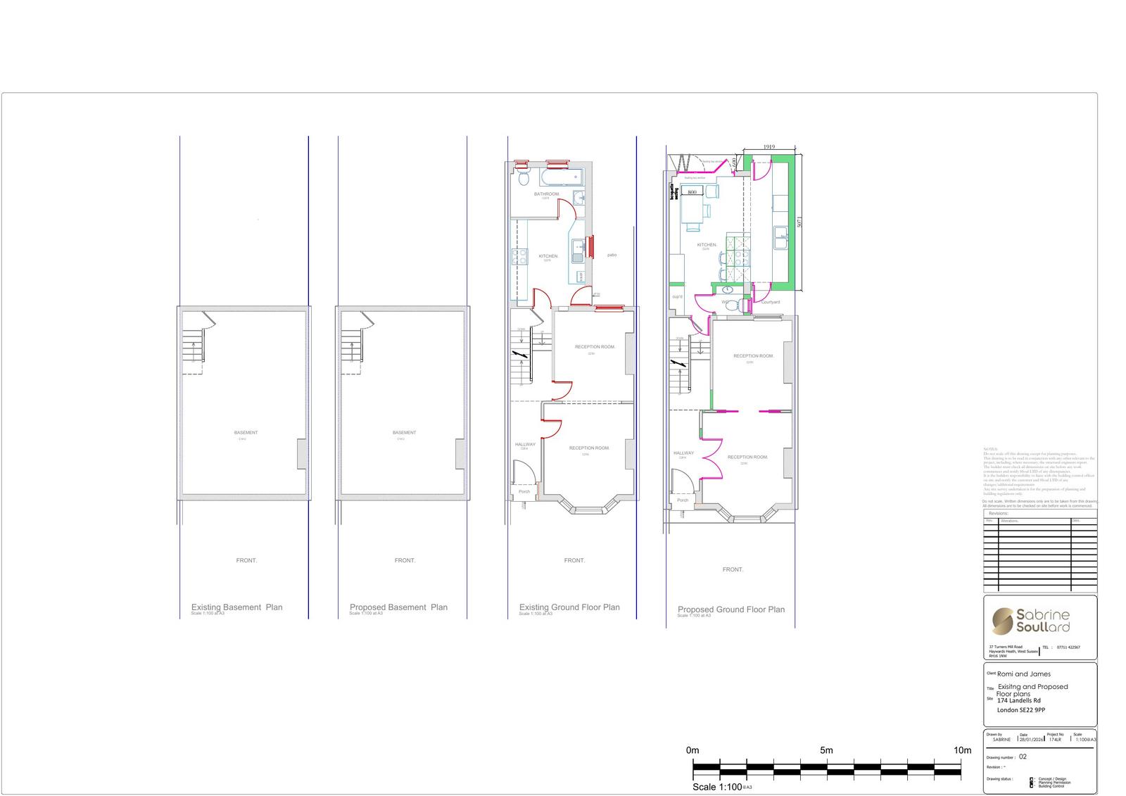
Construction of a single storey side-rear extension and L-shaped rear dormer extension with Juliet balcony, together with the installation of new windows and doors to the side and rear of the property and three rooflights on the front roof slope and one rooflight on the rear outrigger roof slope.

Documents

Biodiversity survey / ecology assessment
Archived · Original link
Design and Access statement
Archived · Original link
Plan - General
Archived · Original link
Neighbour Notification List
Archived · Original link
Fire Statement
Archived · Original link
Flood risk assessment
Archived · Original link
Document
Archived · Original link
Site - Location plan
Archived · Original link
Valid Application Letter
Archived · Original link

Have your say

Your comment matters. Councils must consider every representation that raises material planning considerations.

Write a comment