← Southwark

Status

Awaiting decision House extension
Received
26 Jan 2026
New homes
0

Full proposal

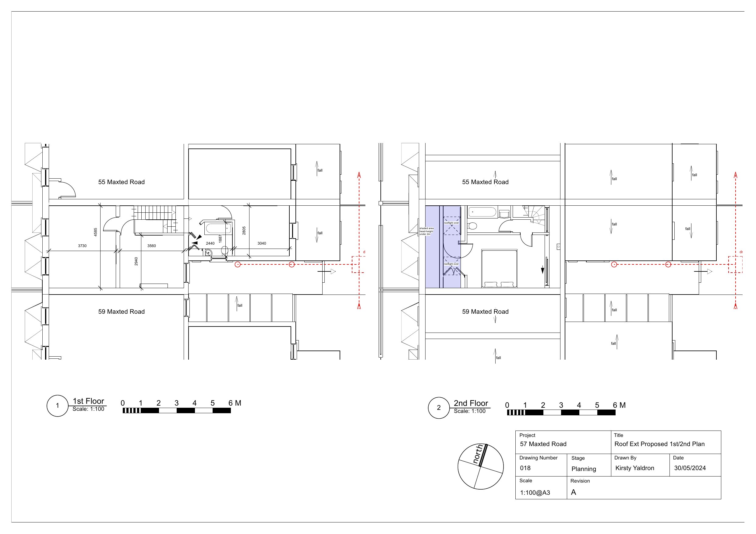
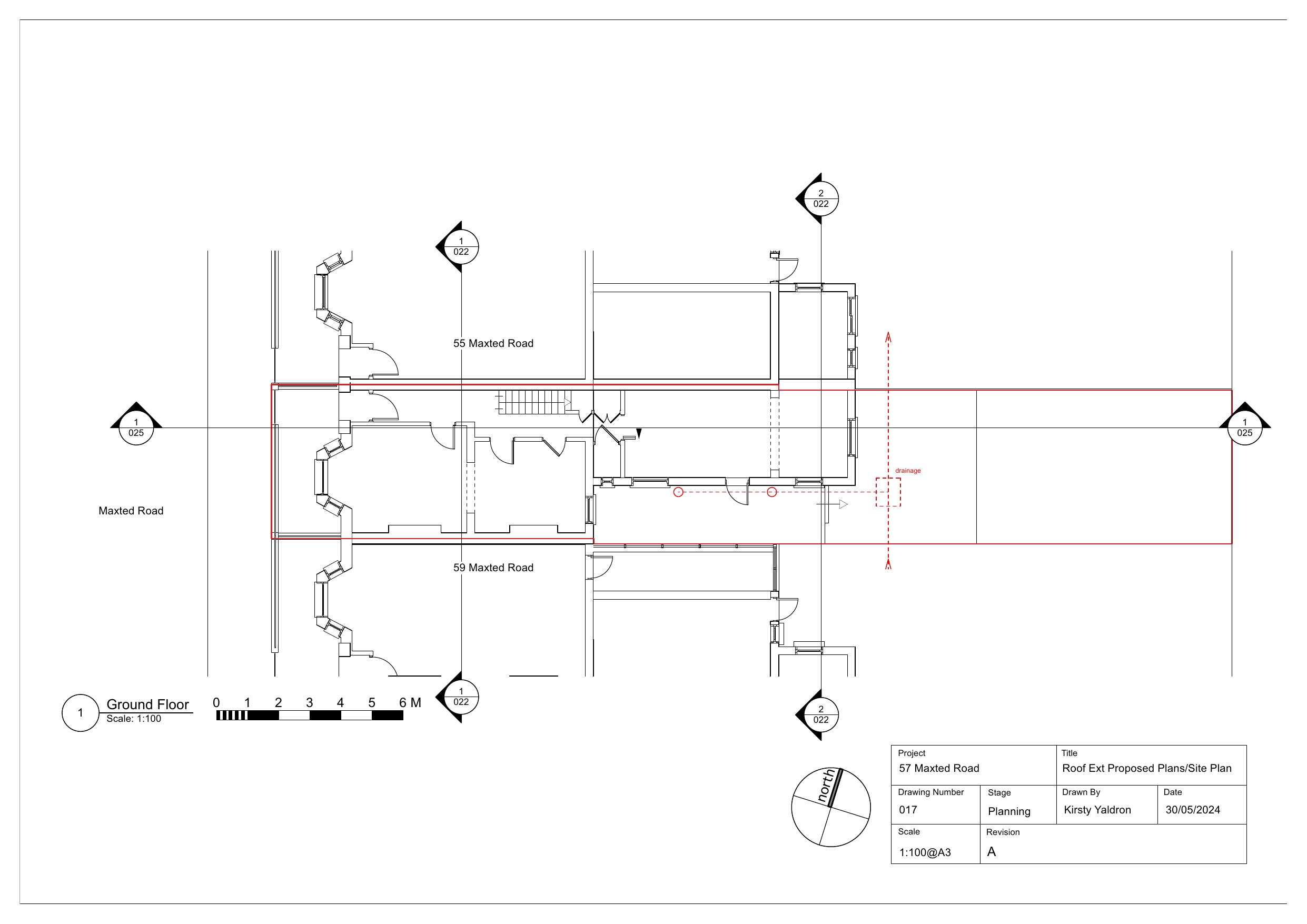
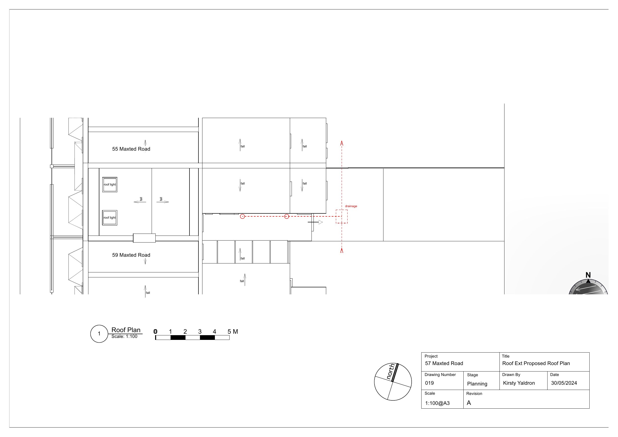
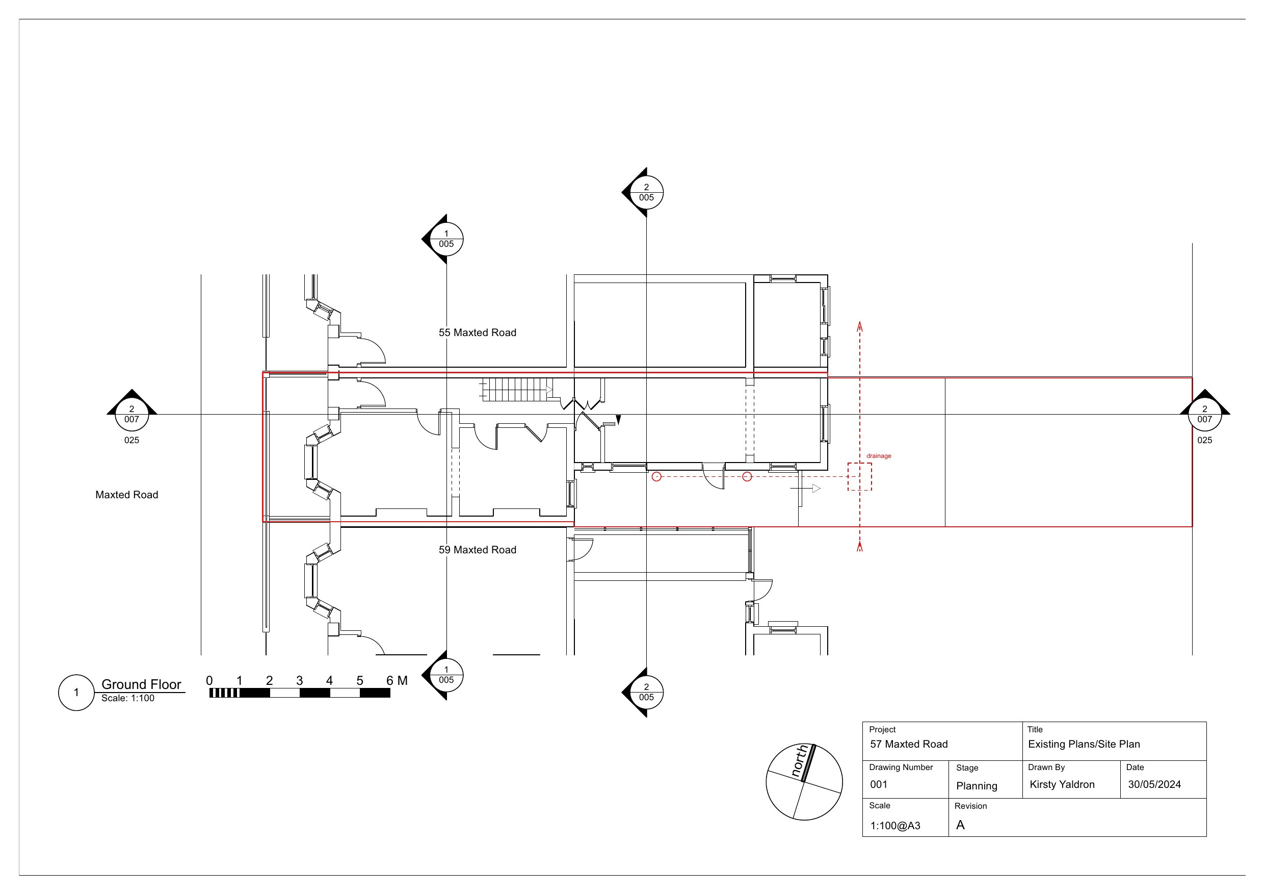
Construction of a single-storey mansard roof extension including re-instatement of the chimney stack.

Documents

Design and Access statement
Archived · Original link
Plan - Existing
Archived · Original link
Plan - Existing
Archived · Original link
Plan - General
Archived · Original link
Plan - Existing
Archived · Original link
Plan - Existing
Archived · Original link
Plan - Existing
Archived · Original link
Neighbour Notification List
Archived · Original link
Plan - General
Archived · Original link
Plan - Proposed
Archived · Original link
Plan - General
Archived · Original link
Plan - General
Archived · Original link
Plan - Proposed
Archived · Original link
Plan - General
Archived · Original link
Site - Location plan
Archived · Original link
Valid Application Letter
Archived · Original link

Have your say

Your comment matters. Councils must consider every representation that raises material planning considerations.

Write a comment