← Southwark

Status

Under consideration/assessment House extension
Received
29 Jan 2026
New homes
0

Full proposal

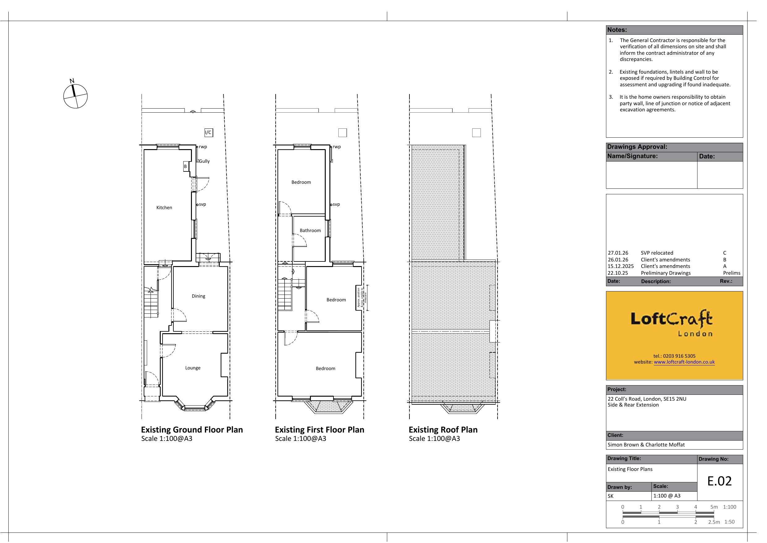
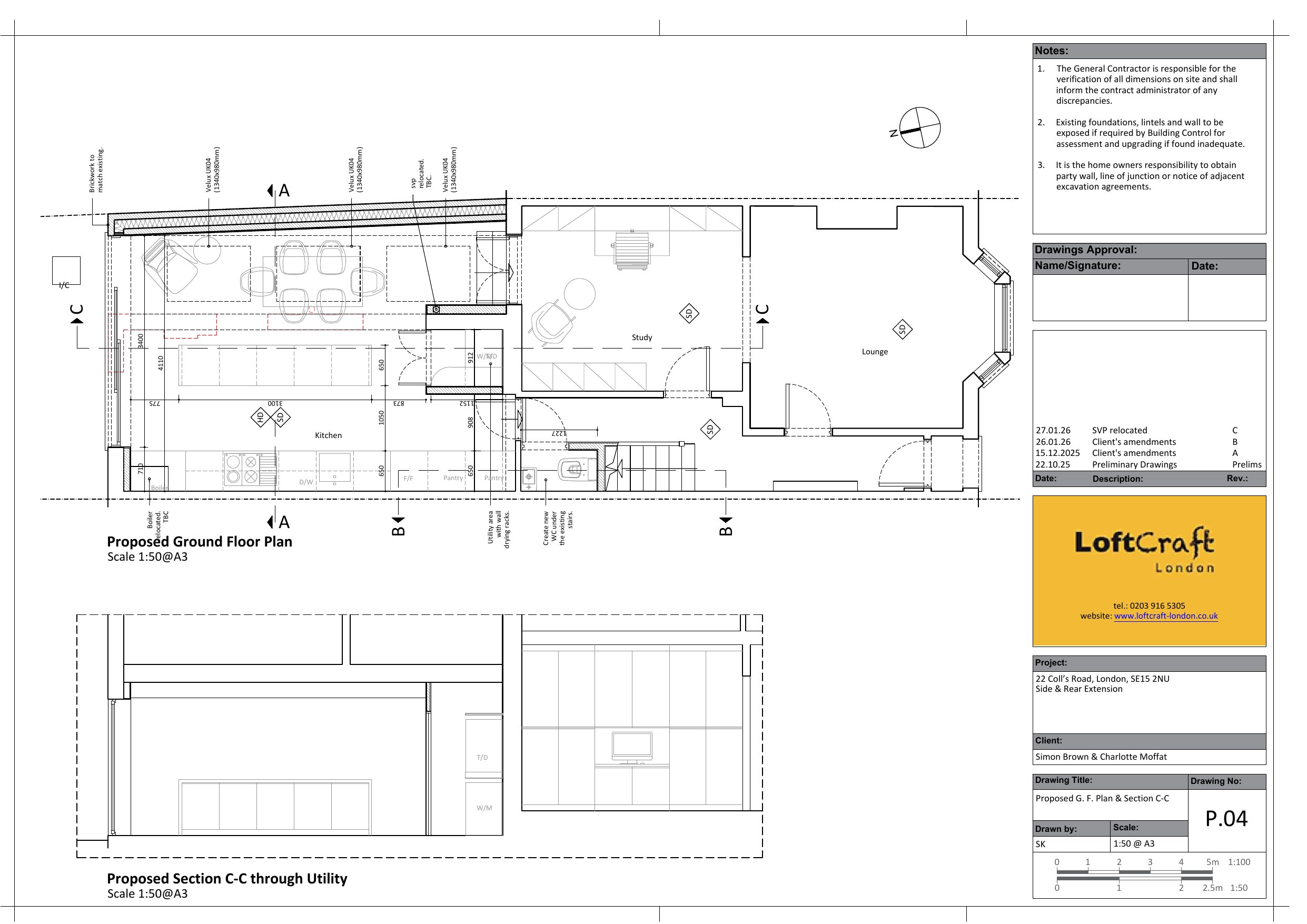
Construction of a ground floor single-storey side infill extension

Documents

Plan - Existing
Archived · Original link
Plan - Existing
Archived · Original link
Plan - Existing
Archived · Original link
Plan - Proposed
Archived · Original link
Plan - Proposed
Archived · Original link
Plan - Proposed
Archived · Original link
Site - Location plan
Archived · Original link

Have your say

Your comment matters. Councils must consider every representation that raises material planning considerations.

Write a comment