← Southwark

Status

Under consideration/assessment House extension
Received
30 Jan 2026
New homes
0

Full proposal

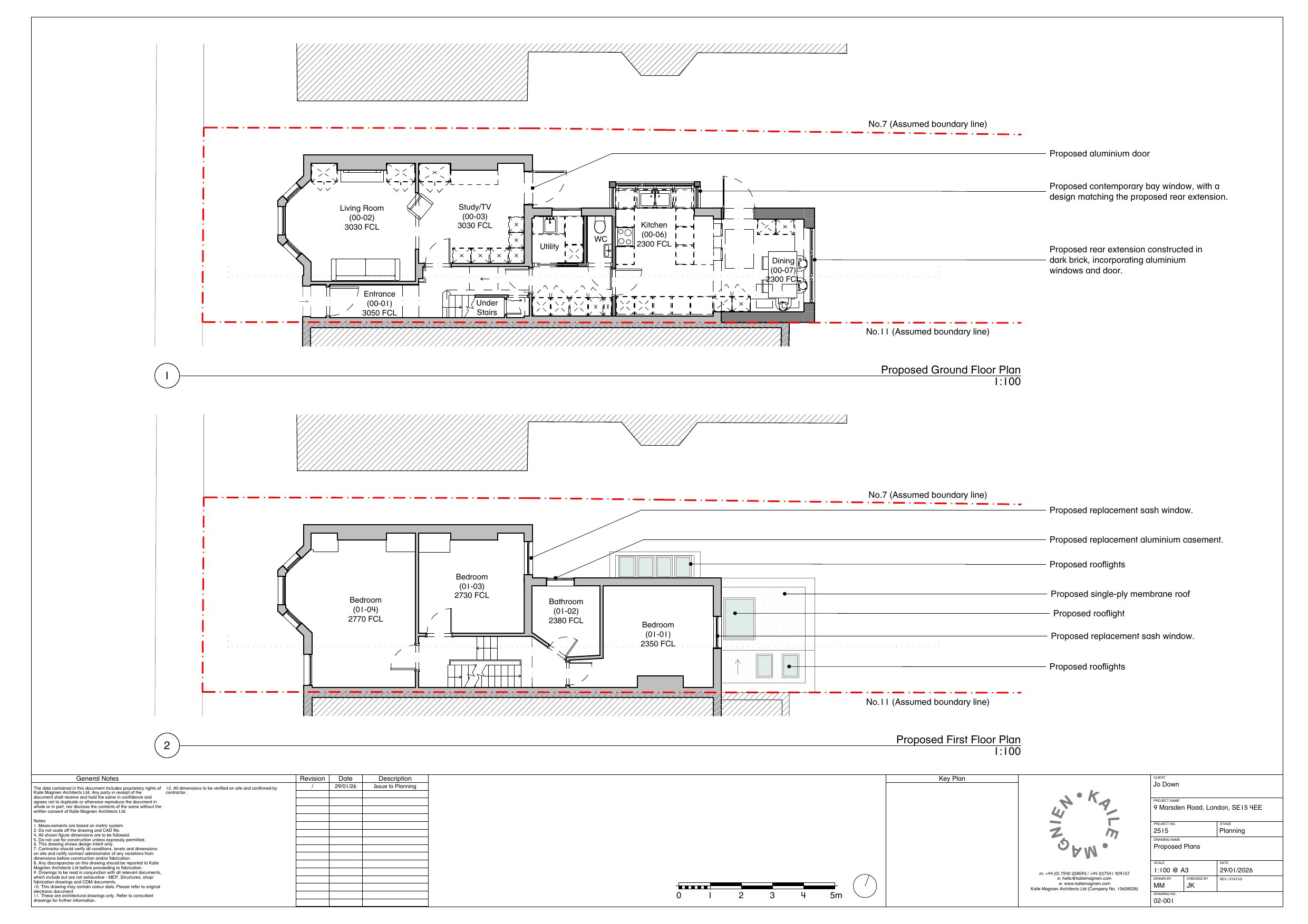
Demolition of the existing rear extension, erection of a single storey rear extension, formation of a new rear side bay window, and replacement of the rear windows.

Documents

Design and Access statement
Archived · Original link
Neighbour Notification List
Archived · Original link
Fire Statement
Archived · Original link
Site - Location plan
Archived · Original link
Parking Provision
Archived · Original link
Plan - General
Archived · Original link
Valid Application Letter
Archived · Original link

Have your say

Your comment matters. Councils must consider every representation that raises material planning considerations.

Write a comment