← Southwark

Status

Under consideration/assessment House extension
Received
02 Feb 2026
New homes
0

Full proposal

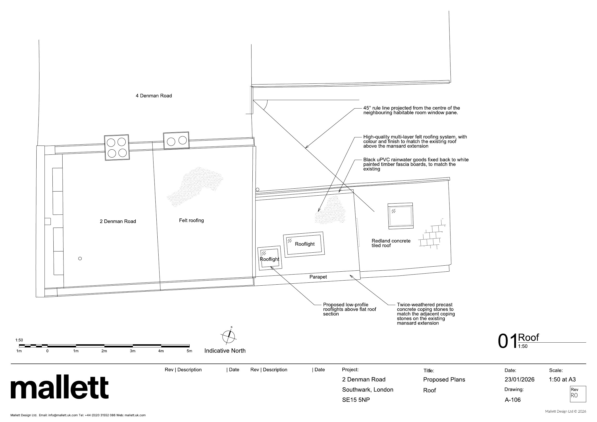
Construction of a pod extension above the existing rear outrigger at second-floor level.

Documents

Application - Form (Without Personal data)
Archived · Original link
Design and Access statement
Archived · Original link
Plan - Existing
Archived · Original link
Plan - Existing
Archived · Original link
Plan - Existing
Archived · Original link
Plan - Existing
Archived · Original link
Plan - Existing
Archived · Original link
Plan - Existing
Archived · Original link
Plan - General
Archived · Original link
Neighbour Notification List
Archived · Original link
Parking Provision
Archived · Original link
Photographs and photomontages
Archived · Original link
Press Notice
Archived · Original link
Plan - Proposed
Archived · Original link
Plan - Proposed
Archived · Original link
Plan - Proposed
Archived · Original link
Plan - Proposed
Archived · Original link
Plan - Proposed
Archived · Original link
Fire Statement
Archived · Original link
Site notice
Archived · Original link
Site - Block plan
Archived · Original link
Site - Location plan
Archived · Original link
Valid Application Letter
Archived · Original link

Have your say

Your comment matters. Councils must consider every representation that raises material planning considerations.

Write a comment