← Southwark

Status

Under consideration/assessment House extension
Received
04 Feb 2026
New homes
0

Full proposal

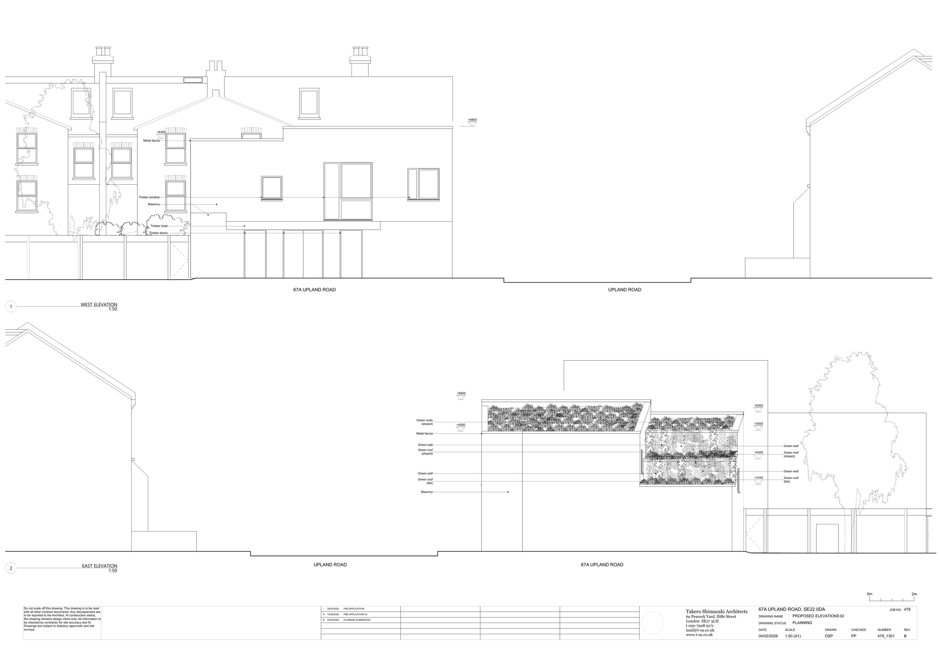
Demolition of the existing garage. Construction of two-storey building to provide ancillary accommodation to the host property (to the rear) at no. 67C, Upland Road.

Documents

Application - Form (Without Personal data)
Archived · Original link
CIL - GIA Form
Archived · Original link
Daylight/Sunlight assessment
Archived · Original link
Design and Access statement
Archived · Original link
Energy statement
Archived · Original link
Plan - Existing
Archived · Original link
Plan - Existing
Archived · Original link
Plan - Existing
Archived · Original link
Plan - Existing
Archived · Original link
Plan - Existing
Archived · Original link
Plan - Existing
Archived · Original link
Plan - Existing
Archived · Original link
Neighbour Notification List
Archived · Original link
Fire Statement
Archived · Original link
Plan - Proposed
Archived · Original link
Plan - Proposed
Archived · Original link
Plan - Proposed
Archived · Original link
Plan - Proposed
Archived · Original link
Plan - Proposed
Archived · Original link
Plan - Proposed
Archived · Original link
Plan - Proposed
Archived · Original link
Plan - Proposed
Archived · Original link
Site - Location plan
Archived · Original link
Site notice
Archived · Original link
Valid Application Letter
Archived · Original link

Have your say

Your comment matters. Councils must consider every representation that raises material planning considerations.

Write a comment