← Southwark

Status

Under consideration/assessment House extension
Received
05 Feb 2026
New homes
0

Full proposal

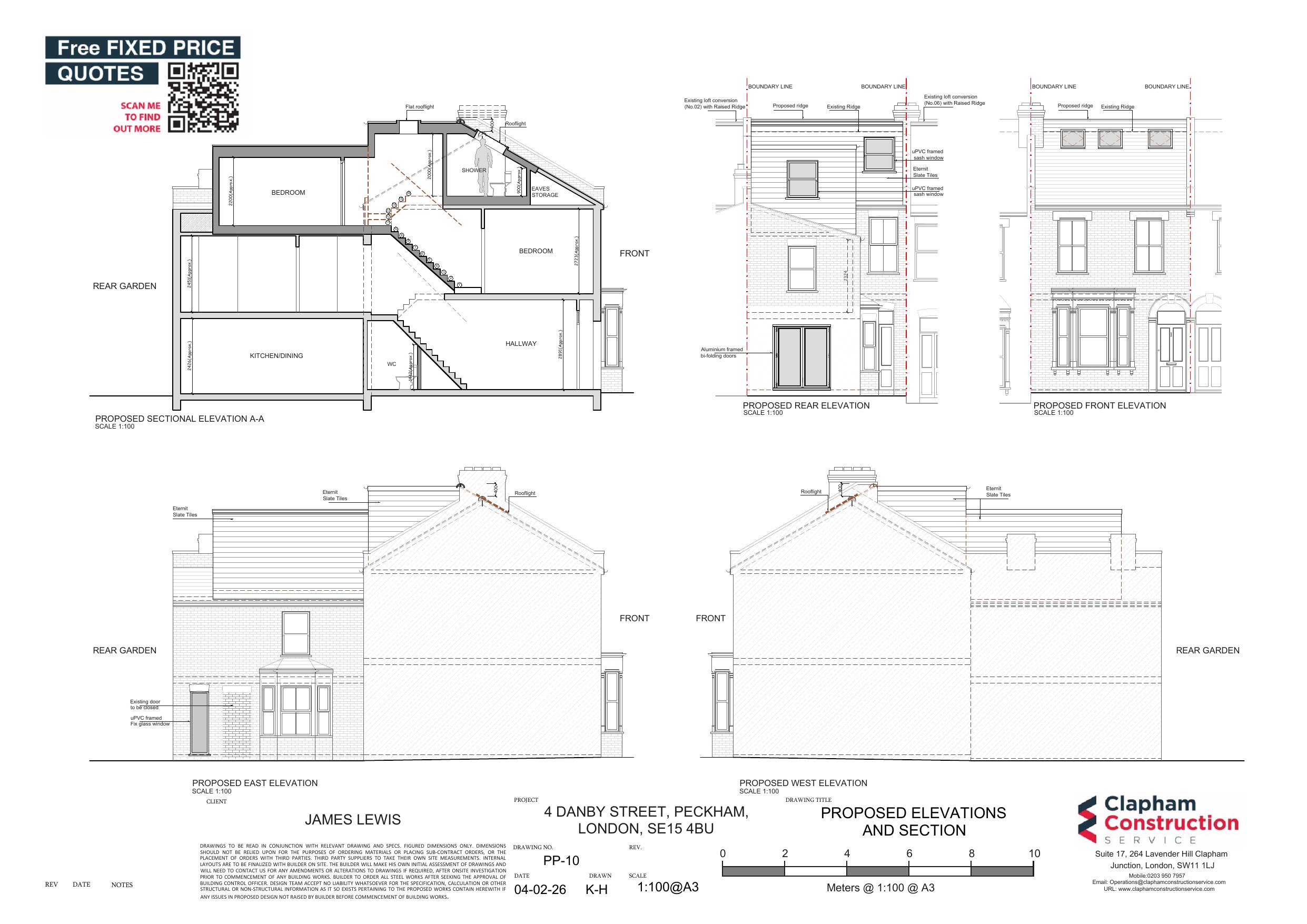
Erection of L-shaped rear roof dormer extension with ridge raised by 400mm and addition of three rooflights to the front roof slope, also alterations proposed to the ground floor rear and side fenestration.

Documents

Application - Form (Without Personal data)
Archived · Original link
Photographs and photomontages
Archived · Original link
Design and Access statement
Archived · Original link
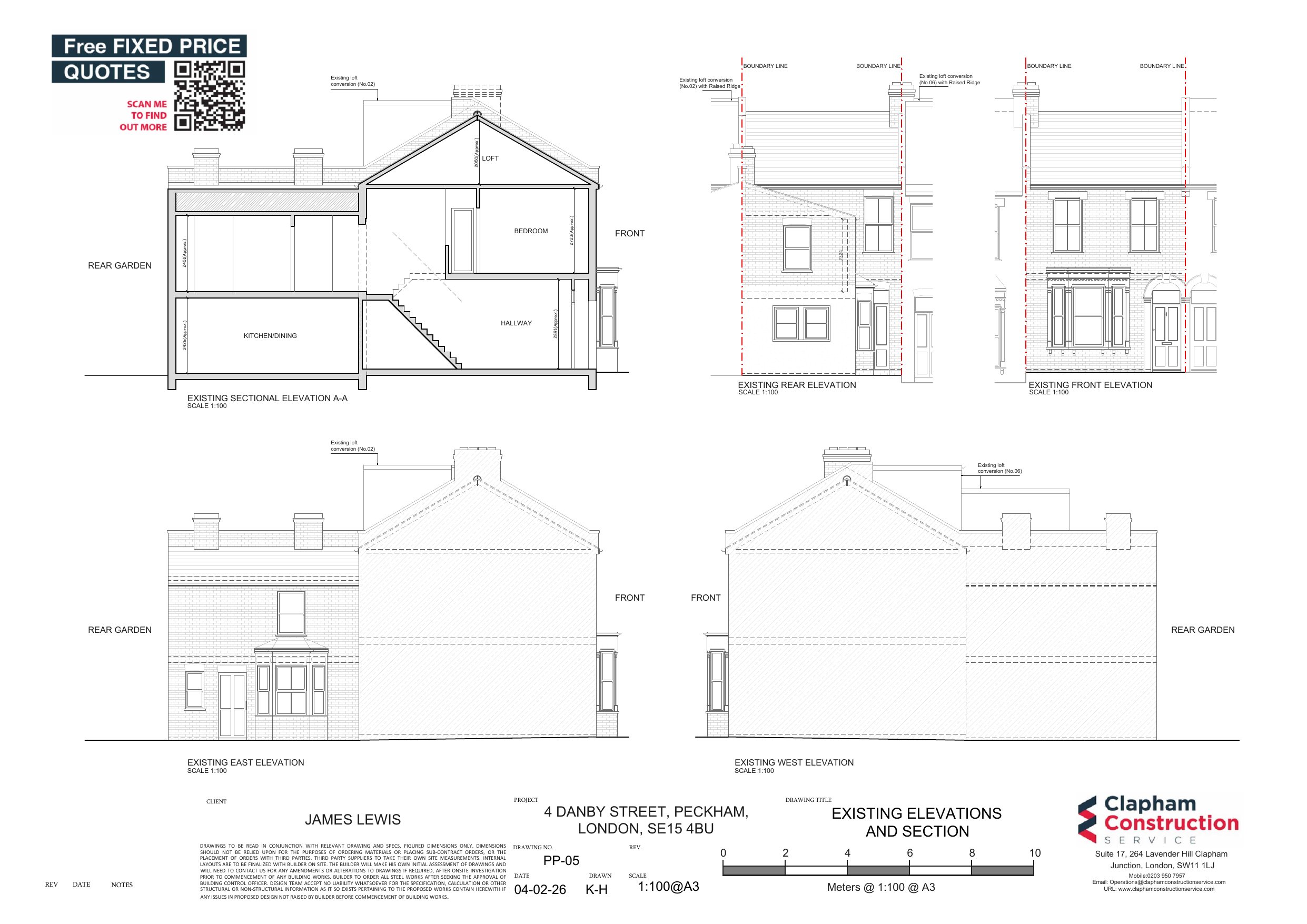
Plan - Existing
Archived · Original link
Plan - Existing
Archived · Original link
Plan - Existing
Archived · Original link
Plan - Existing
Archived · Original link
Plan - Existing
Archived · Original link
Neighbour Notification List
Archived · Original link
Flood risk assessment
Archived · Original link
Site - Location plan
Archived · Original link
Parking Provision
Archived · Original link
Fire Statement
Archived · Original link
Plan - Proposed
Archived · Original link
Plan - Proposed
Archived · Original link
Plan - Proposed
Archived · Original link
Plan - Proposed
Archived · Original link
Plan - Proposed
Archived · Original link
Valid Application Letter
Archived · Original link

Have your say

Your comment matters. Councils must consider every representation that raises material planning considerations.

Write a comment