← Southwark

Status

Under consideration/assessment House extension
Received
Last month
New homes
0

Full proposal

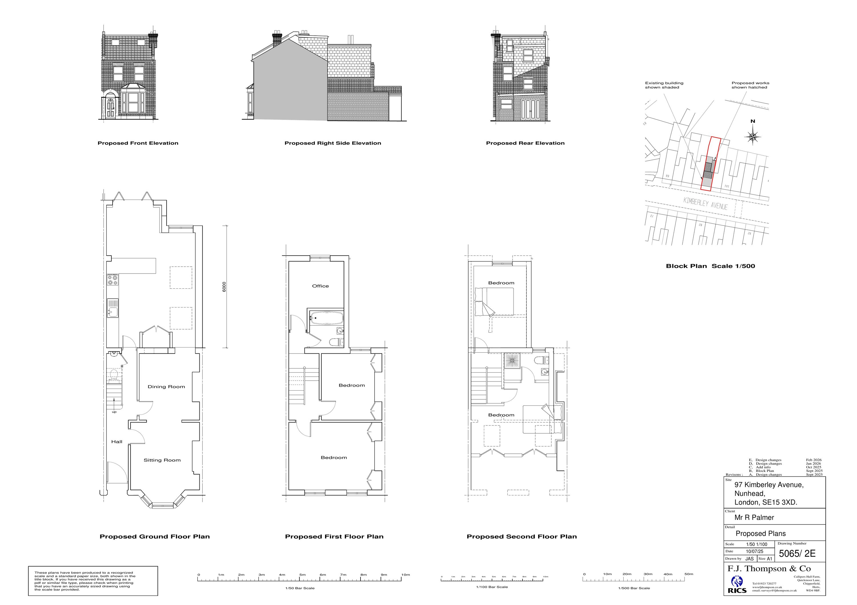
Construction of a single storey rear extension, loft conversion including raising the ridge by 400mm and 2 no. dormers to rear.

Documents

Application - Form (Without Personal data)
Archived · Original link
Plan - Existing
Archived · Original link
Neighbour Notification List
Archived · Original link
Plan - Proposed
Archived · Original link
REASONABLE EXEMTION STATEMENT
Fire Statement
Not yet archived · Original link
Plan - General
Archived · Original link
Plan - General
Archived · Original link
Valid Application Letter
Archived · Original link

Have your say

Your comment matters. Councils must consider every representation that raises material planning considerations.

Write a comment