← Southwark

Status

Under consideration/assessment House extension
Received
Last month
New homes
0

Full proposal

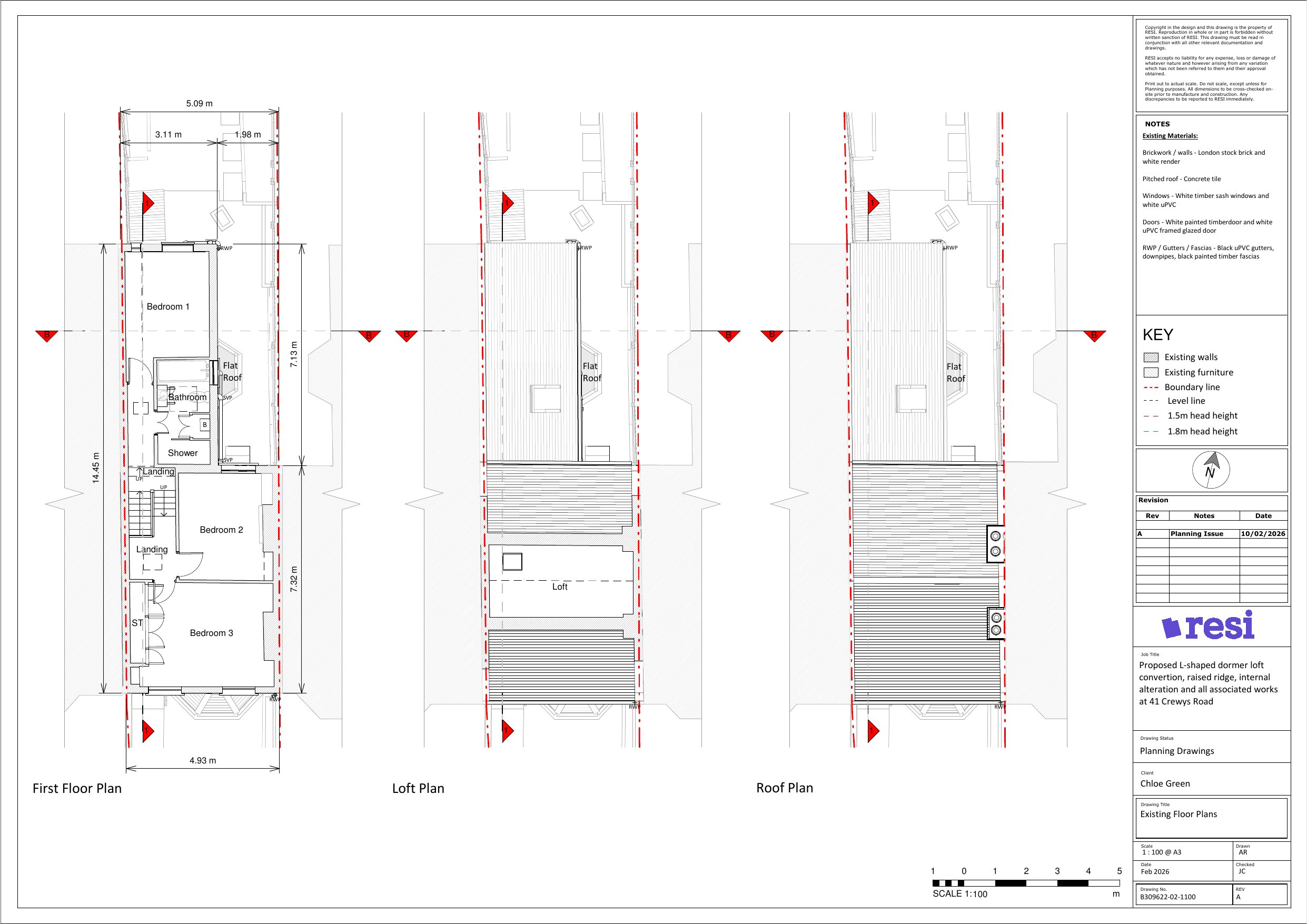
Proposed L-shape dormer loft conversion, with raised ridge by 400mm, two rooflights to front roof slope, internal alterations and all associated works at 41 Crewys Road

Documents

Application - Form (Without Personal data)
Archived · Original link
Site - Block plan
Archived · Original link
Plan - Existing
Archived · Original link
Plan - Existing
Archived · Original link
Plan - Existing
Archived · Original link
Neighbour Notification List
Archived · Original link
Site - Location plan
Archived · Original link
Comment - Contributor
Archived · Original link
Comment - Contributor
Archived · Original link
Comment - Contributor
Archived · Original link
Photographs and photomontages
Archived · Original link
Fire Statement
Archived · Original link
Plan - Proposed
Archived · Original link
Plan - Proposed
Archived · Original link
Plan - Proposed
Archived · Original link
Plan - Proposed
Archived · Original link
Valid Application Letter
Archived · Original link

Have your say

Your comment matters. Councils must consider every representation that raises material planning considerations.

Write a comment