← Southwark

Status

Under consideration/assessment Listed building
Received
Last month
New homes
0

Full proposal

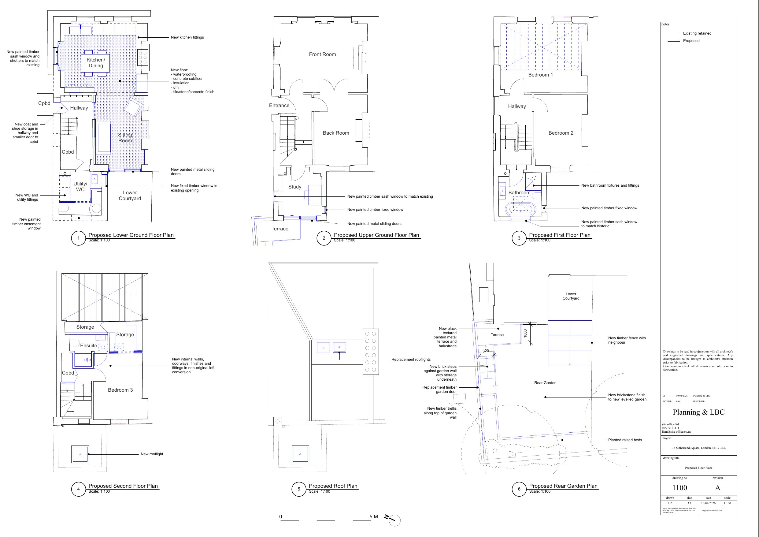
Internal refurbishment and sensitive alterations to a Grade II listed dwelling, including minor internal reconfiguration, repair and replacement of windows, modest alterations to rear openings, and improvements to the rear garden and terraces, with no change to the use of the property as a single-family home.

Documents

APPLICATION FORM - WITHOUT PERSONAL DATA
Application - Form (Without Personal data)
Not yet archived · Original link
EXISTING ELEVATIONS
Plan - Existing
Not yet archived · Original link
EXISTING FLOOR PLANS
Plan - Existing
Not yet archived · Original link
EXISTING SECTIONS
Plan - Existing
Not yet archived · Original link
Plan - Existing
Archived · Original link
Plan - Existing
Archived · Original link
HERITAGE AND DESIGN & ACCESS STATEMENT
Design and Access statement
Not yet archived · Original link
LOCATION PLAN
Site - Location plan
Not yet archived · Original link
PARKING PROVISION STATEMENT
Parking Provision
Not yet archived · Original link
PROPOSED ELEVATIONS
Plan - Proposed
Not yet archived · Original link
Plan - Proposed
Archived · Original link
PROPOSED SECTIONS
Plan - Proposed
Not yet archived · Original link
Plan - Proposed
Archived · Original link
REASONABLE EXCEPTION STATEMENT
Fire Statement
Not yet archived · Original link
Plan - General
Archived · Original link

Have your say

Your comment matters. Councils must consider every representation that raises material planning considerations.

Write a comment