26/AP/0459
Southwark
Status
Under consideration/assessment
House extension
Received
Last month
New homes
0
Full proposal
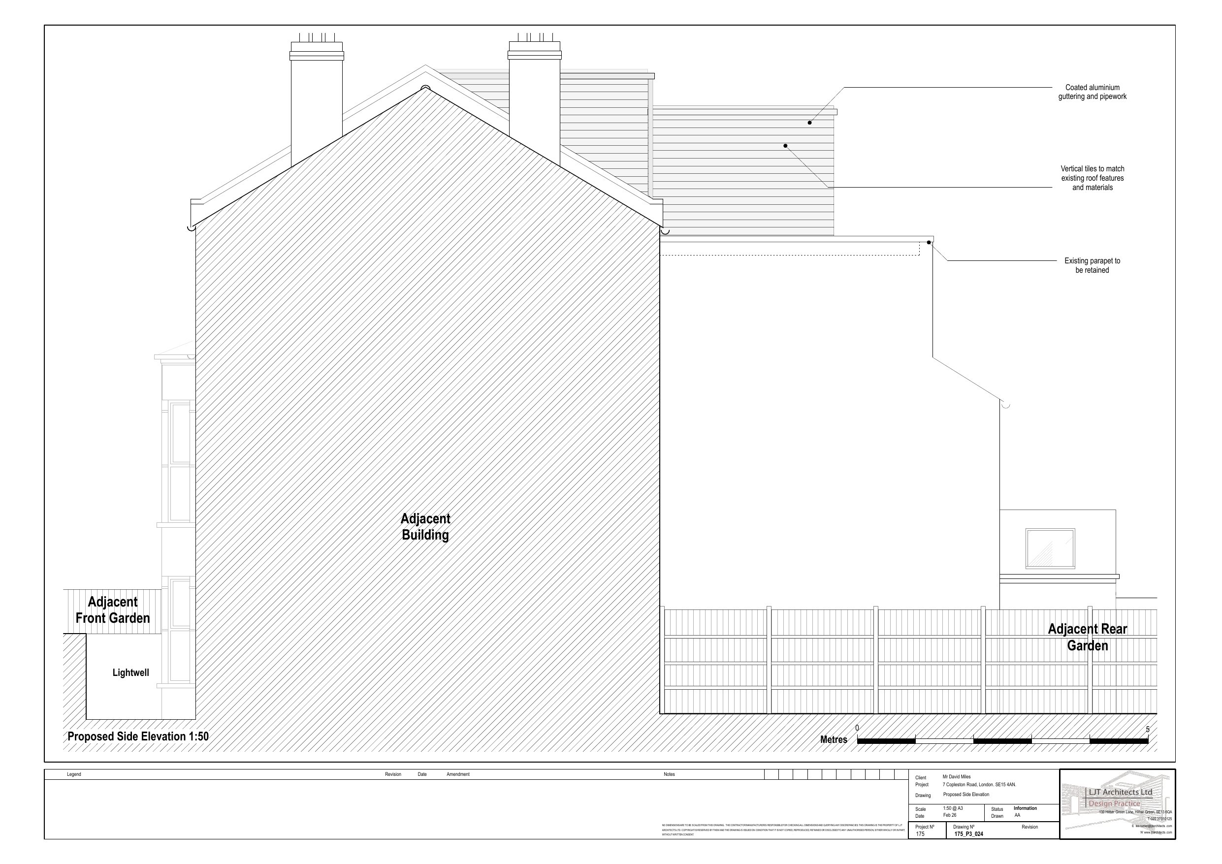
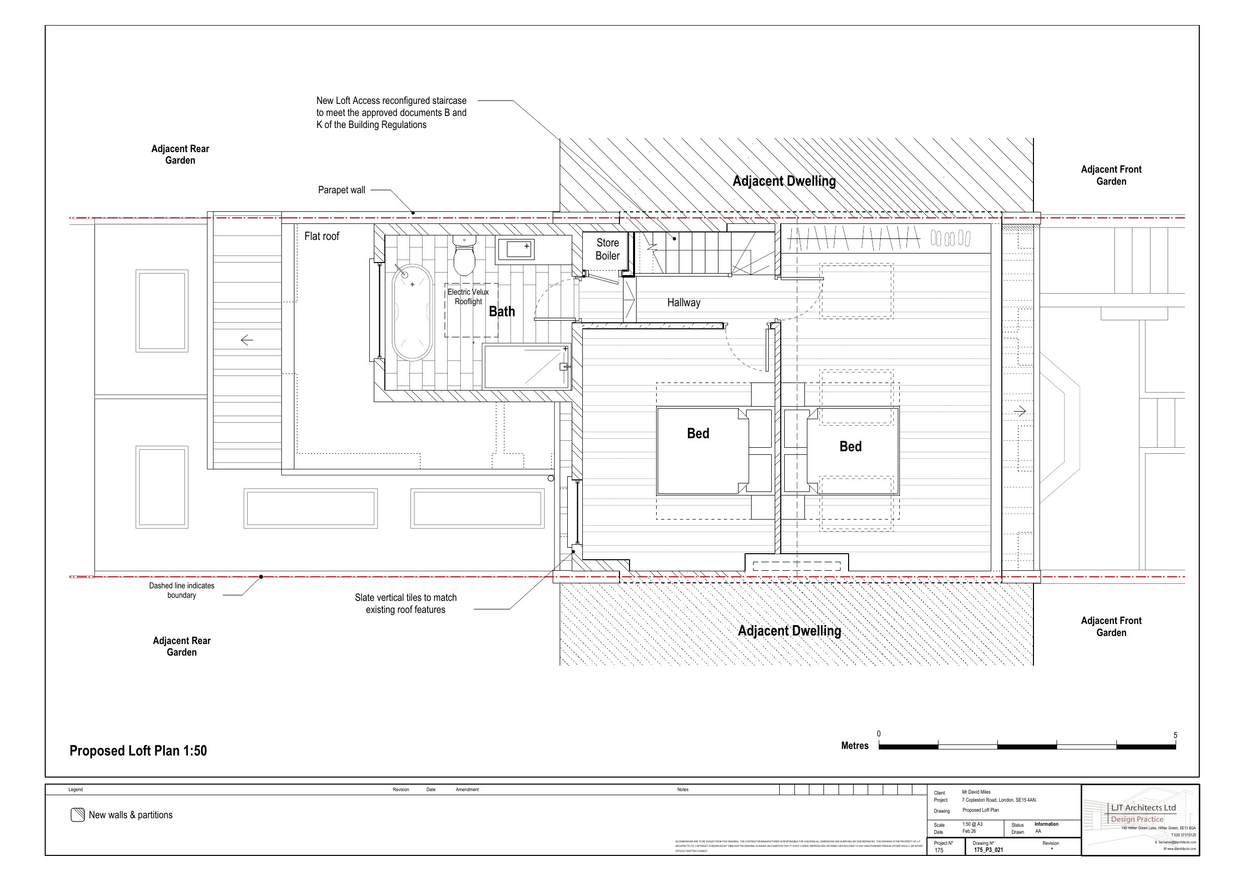
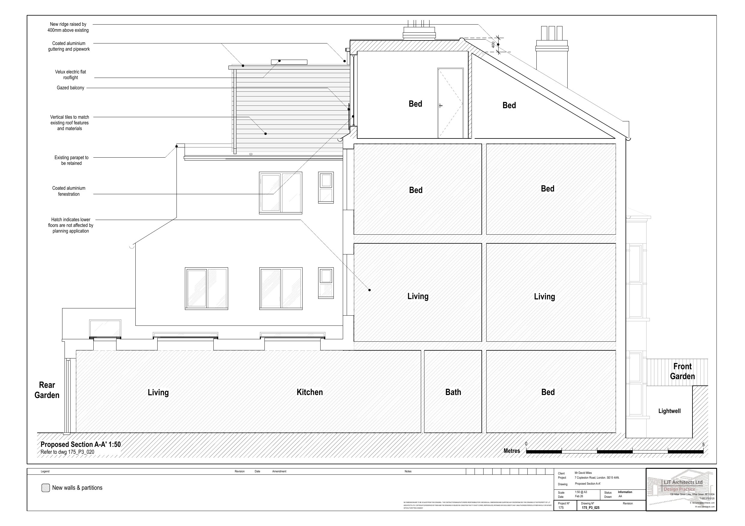
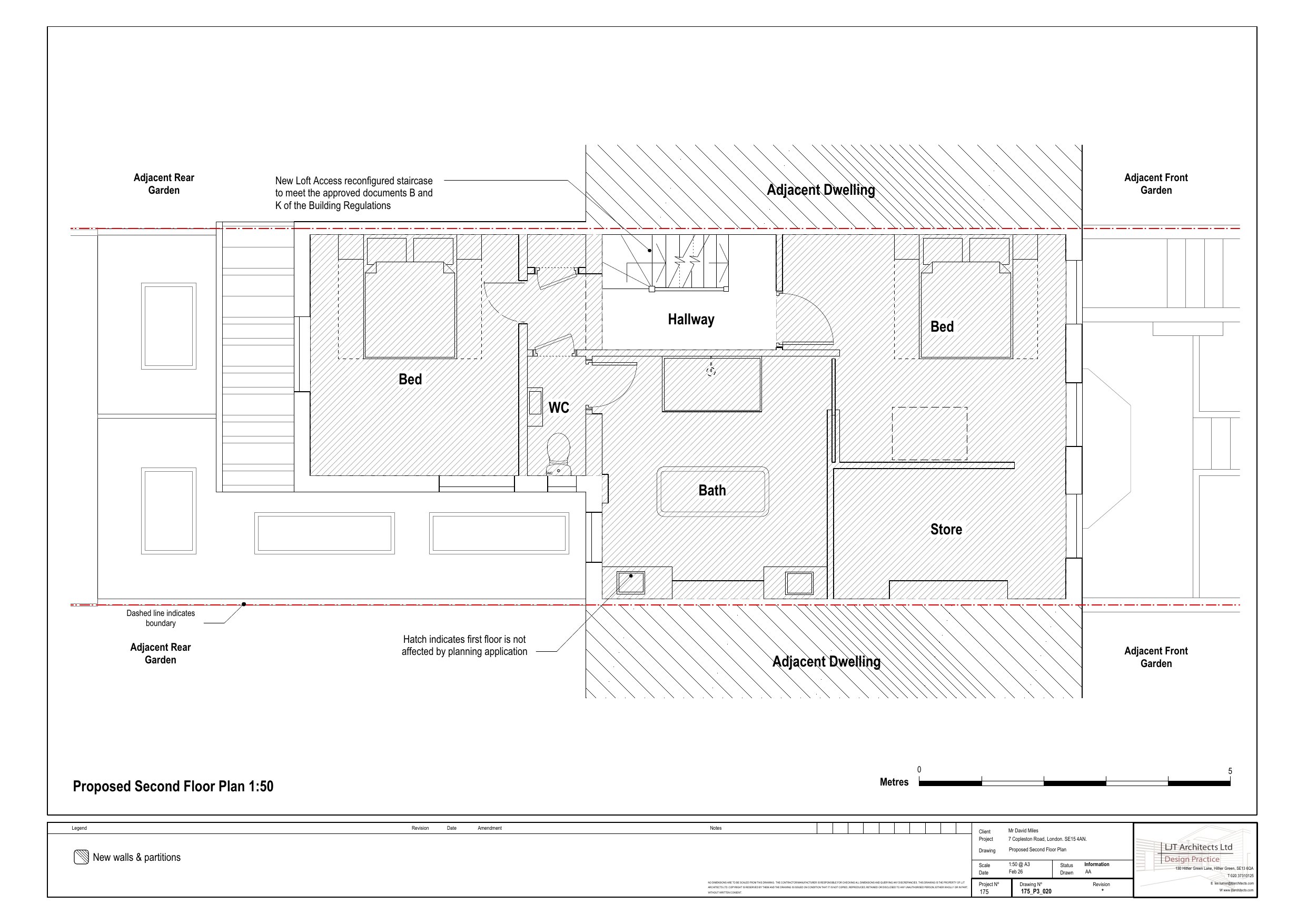
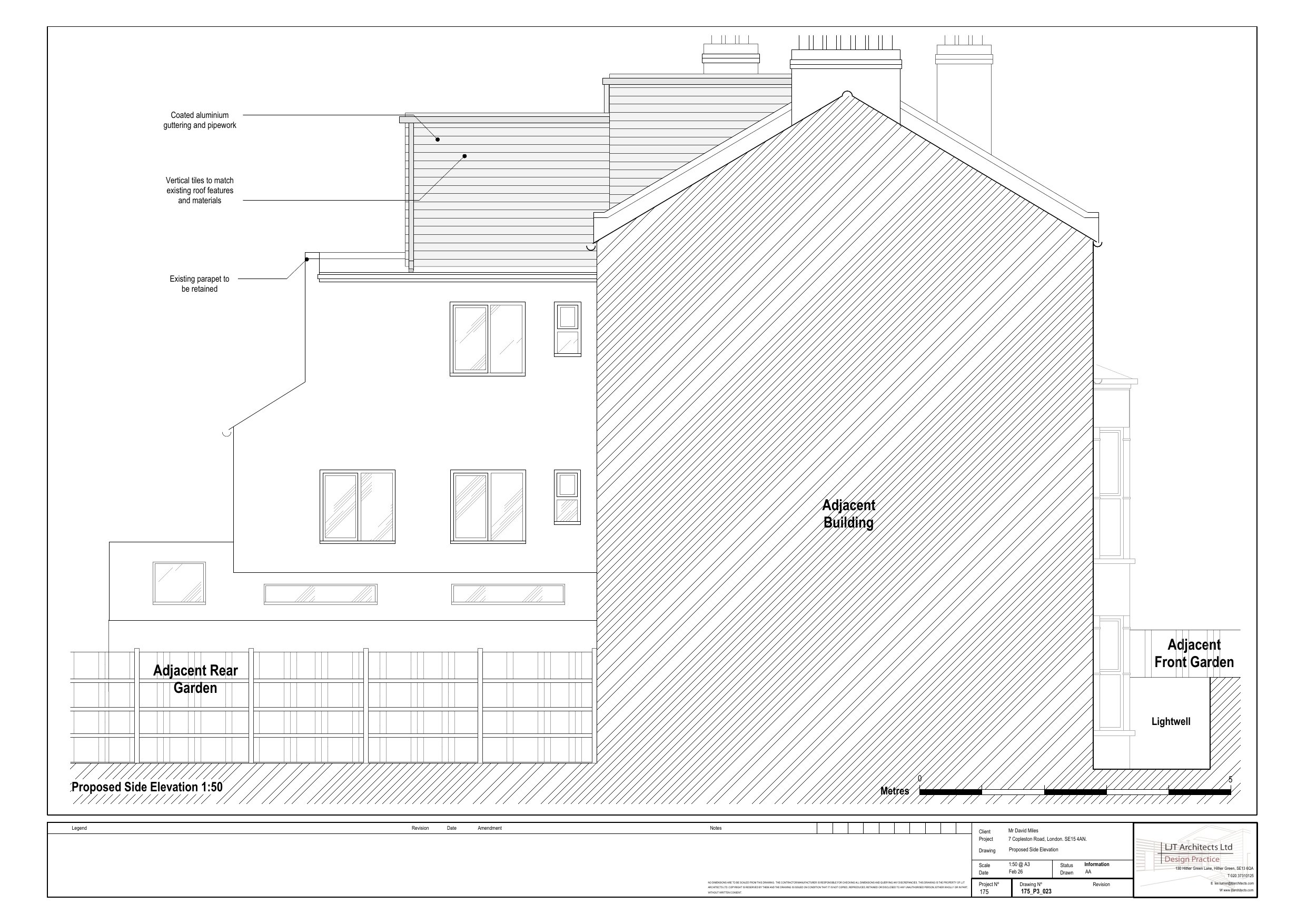
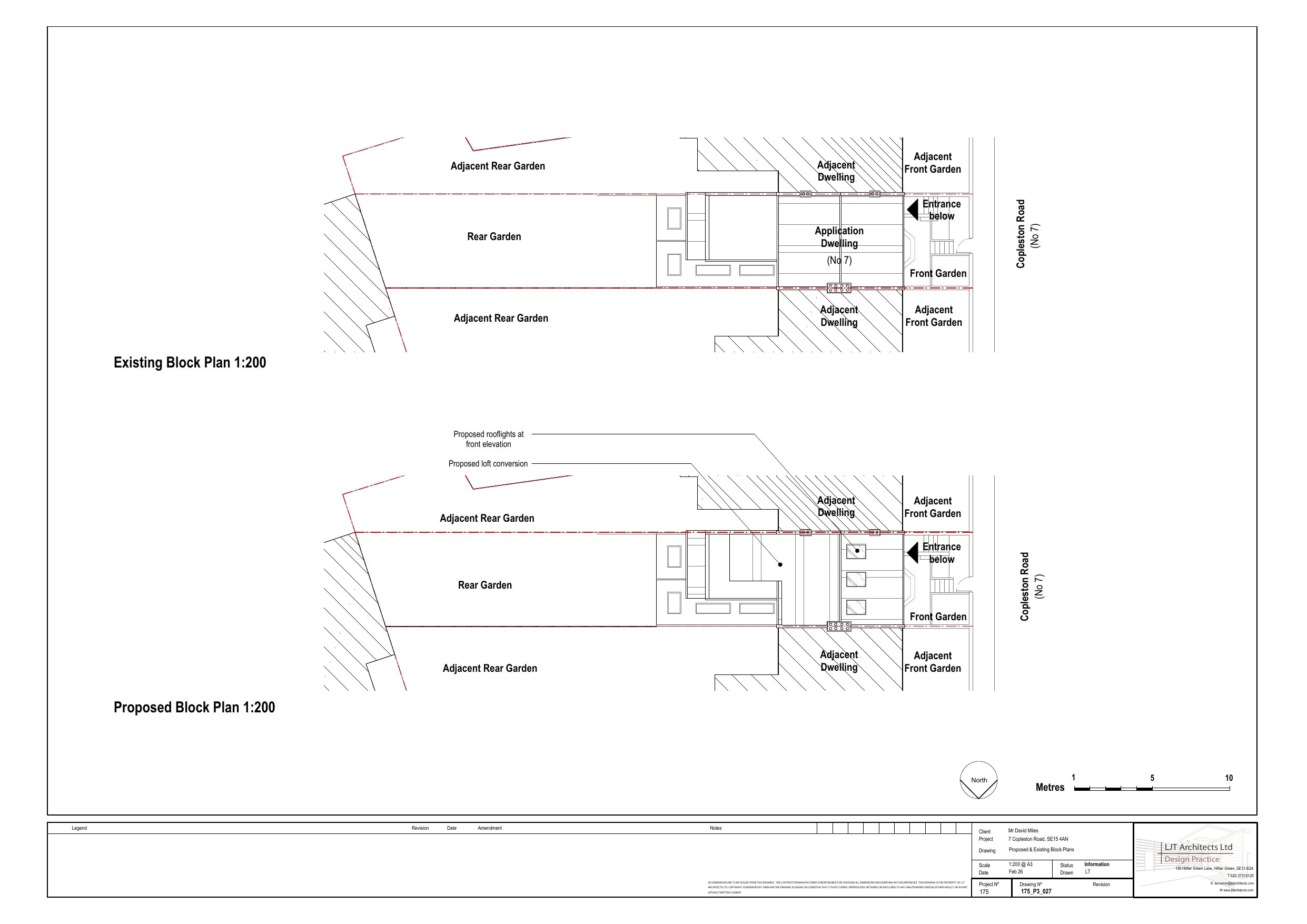
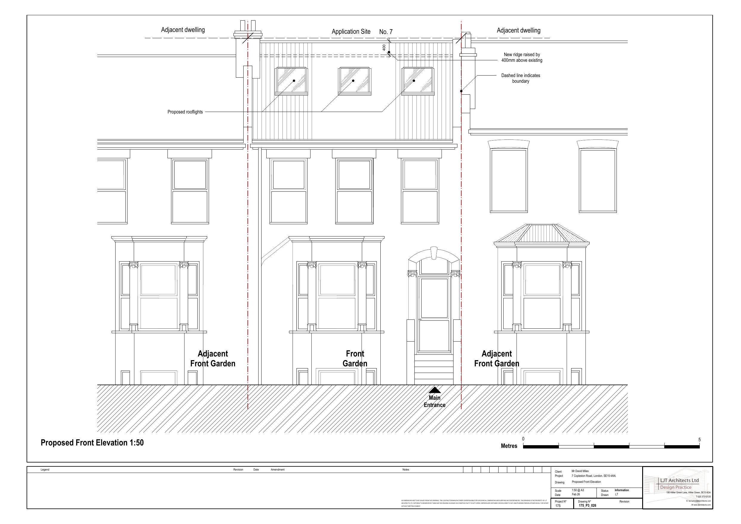
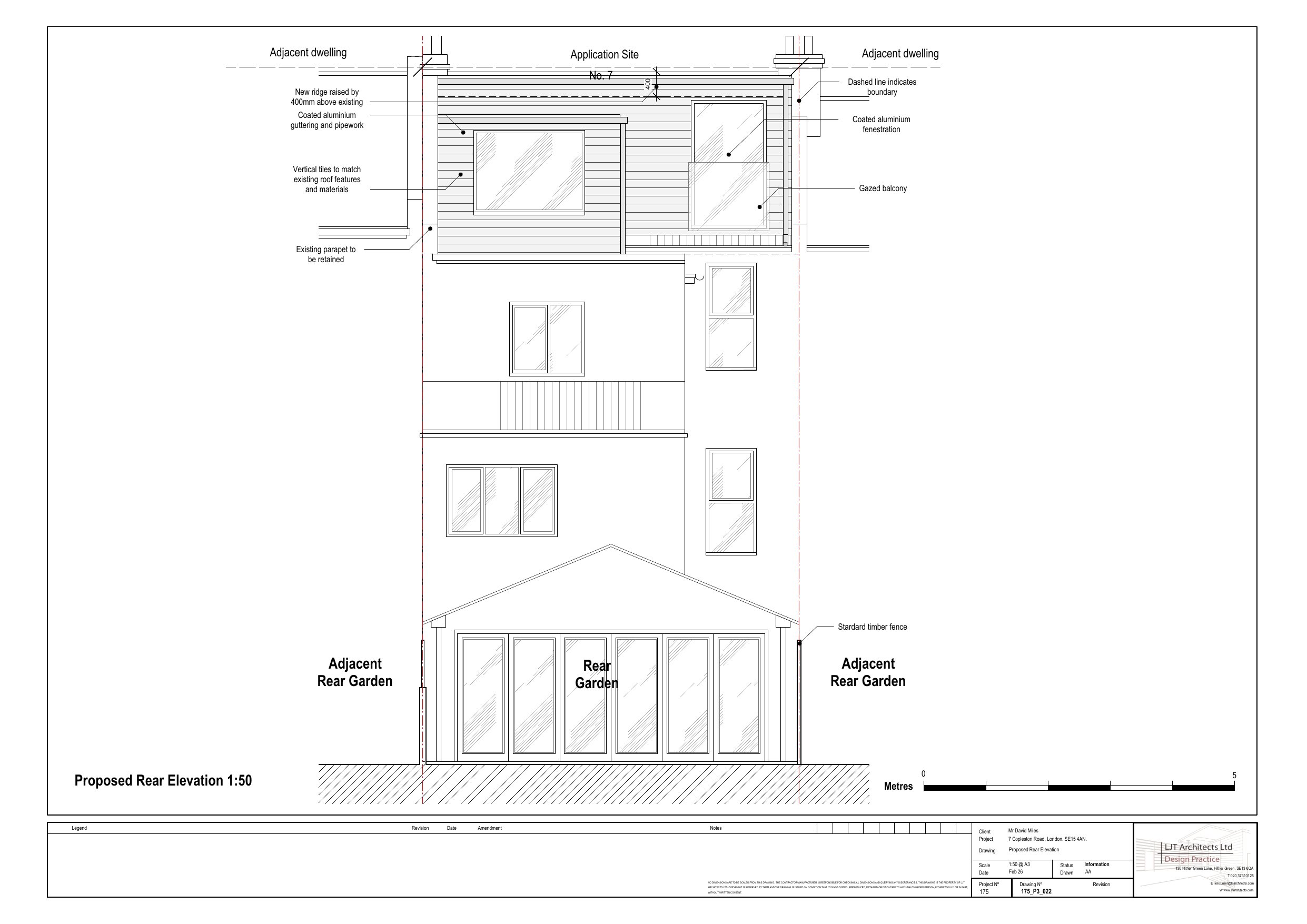
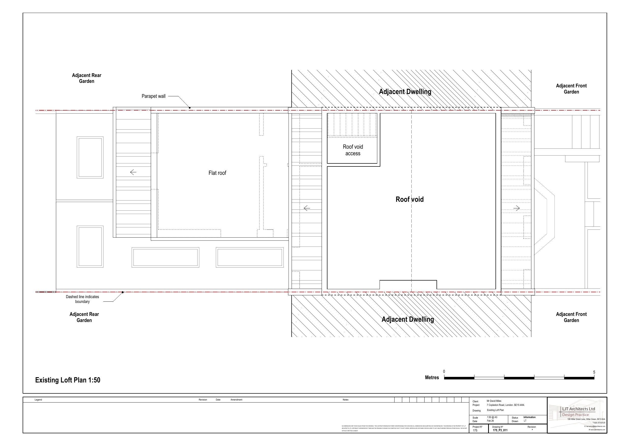
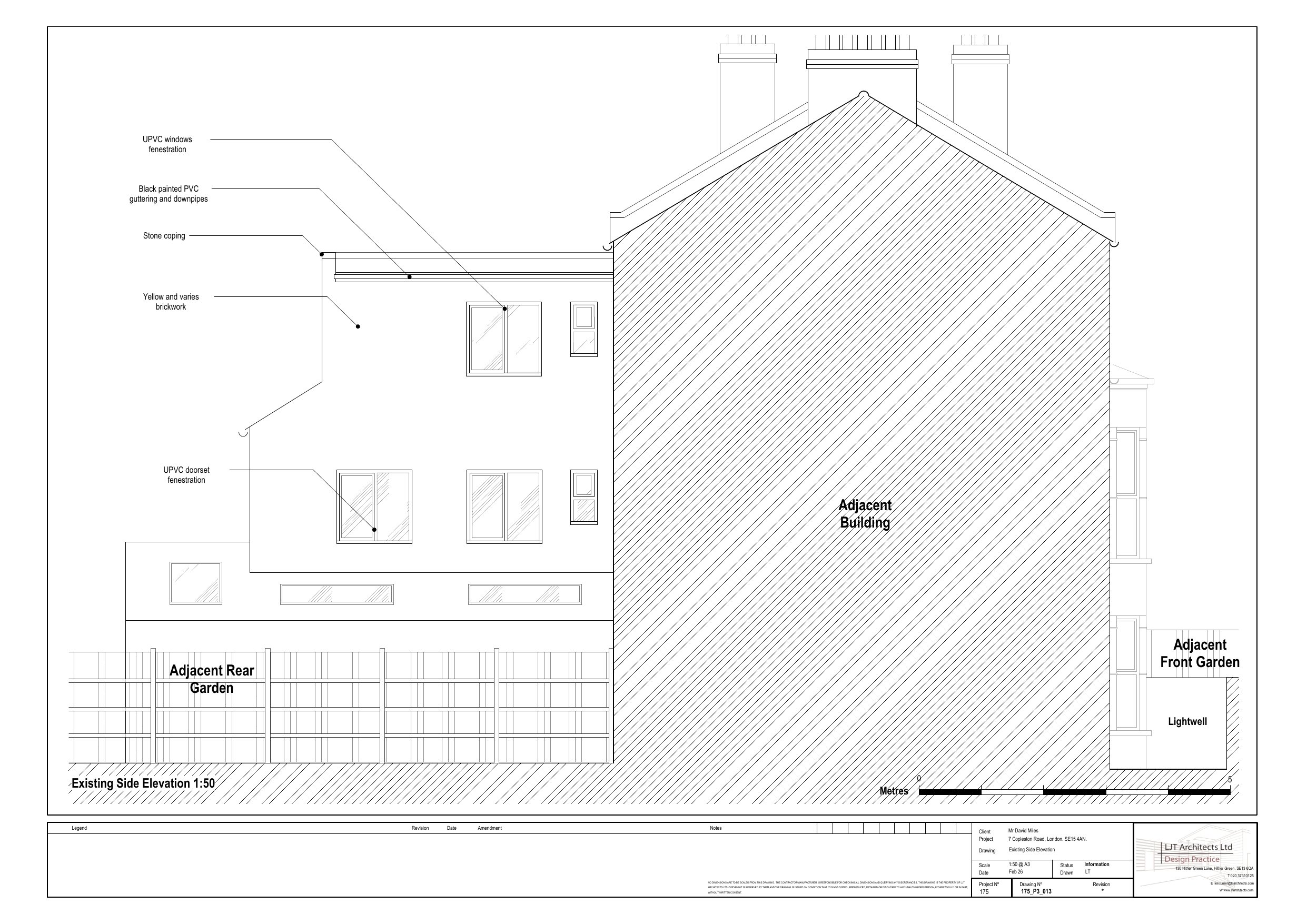
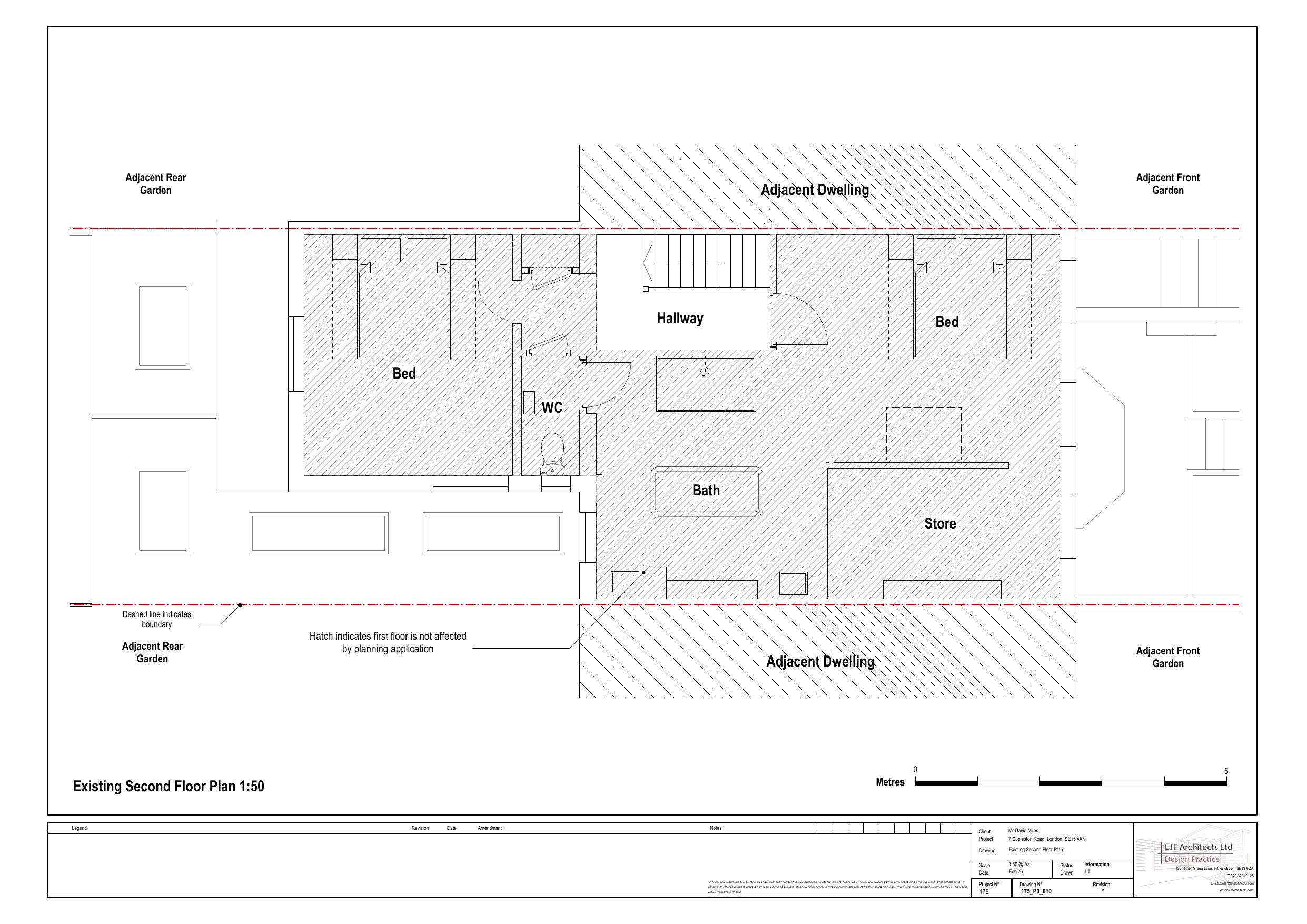
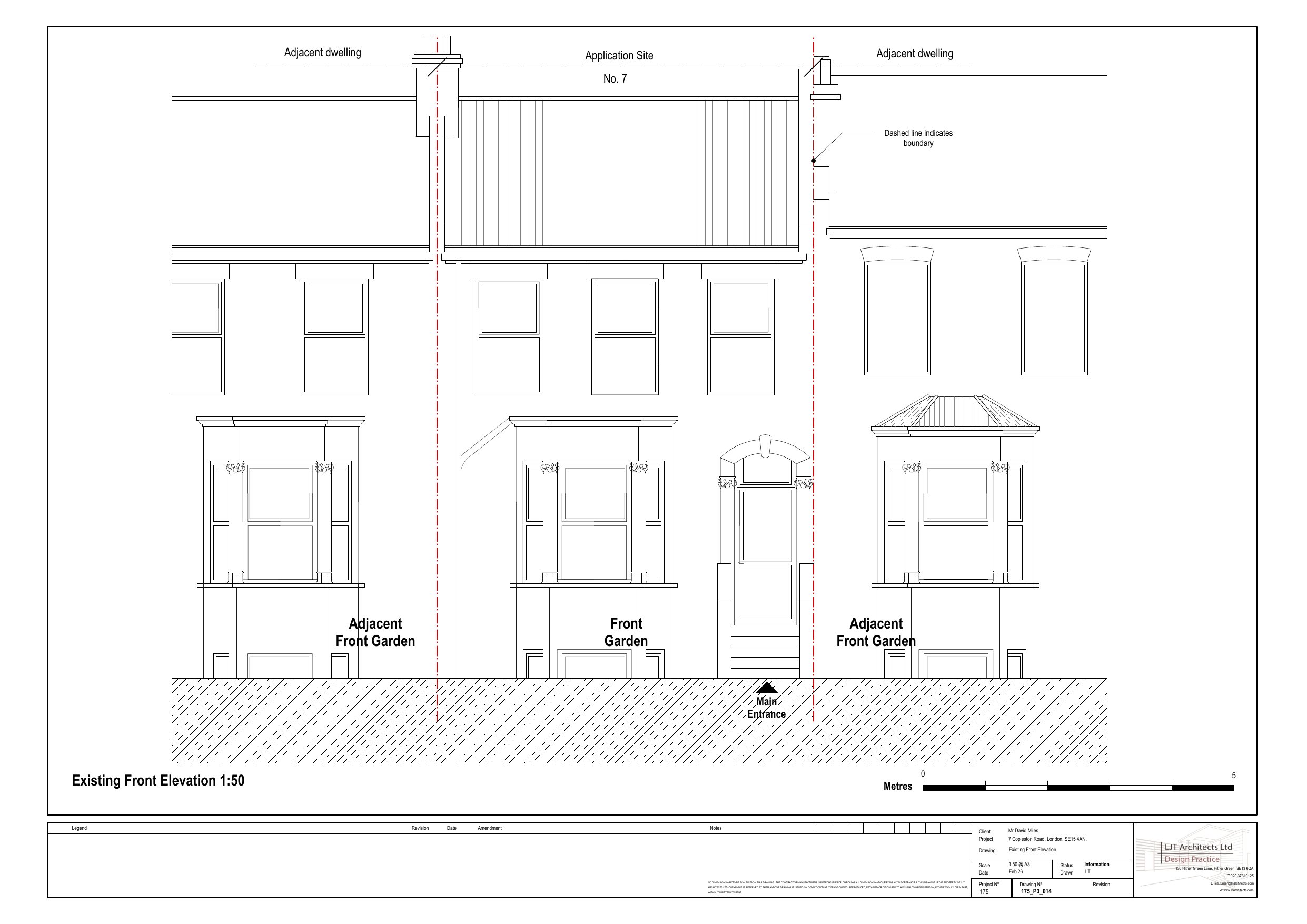
Loft conversion and L-shaped dormer extension, with raised ridgeline by 400mm, and 3no. rooflights installed to the front roof slope
Documents
Have your say
Your comment matters. Councils must consider every representation that raises material planning considerations.