← Southwark

Status

Awaiting decision House extension
Received
Last month
New homes
0

Full proposal

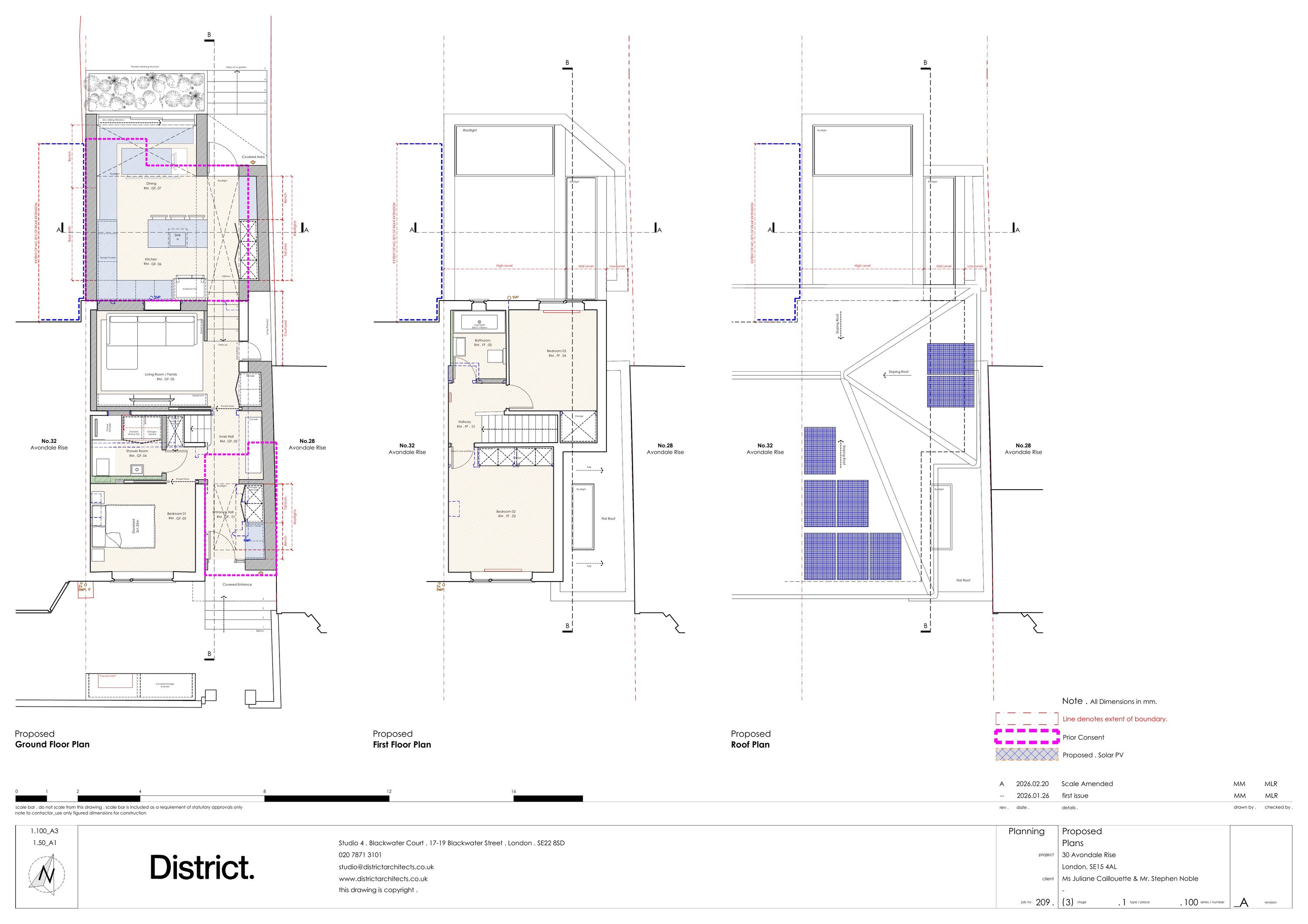
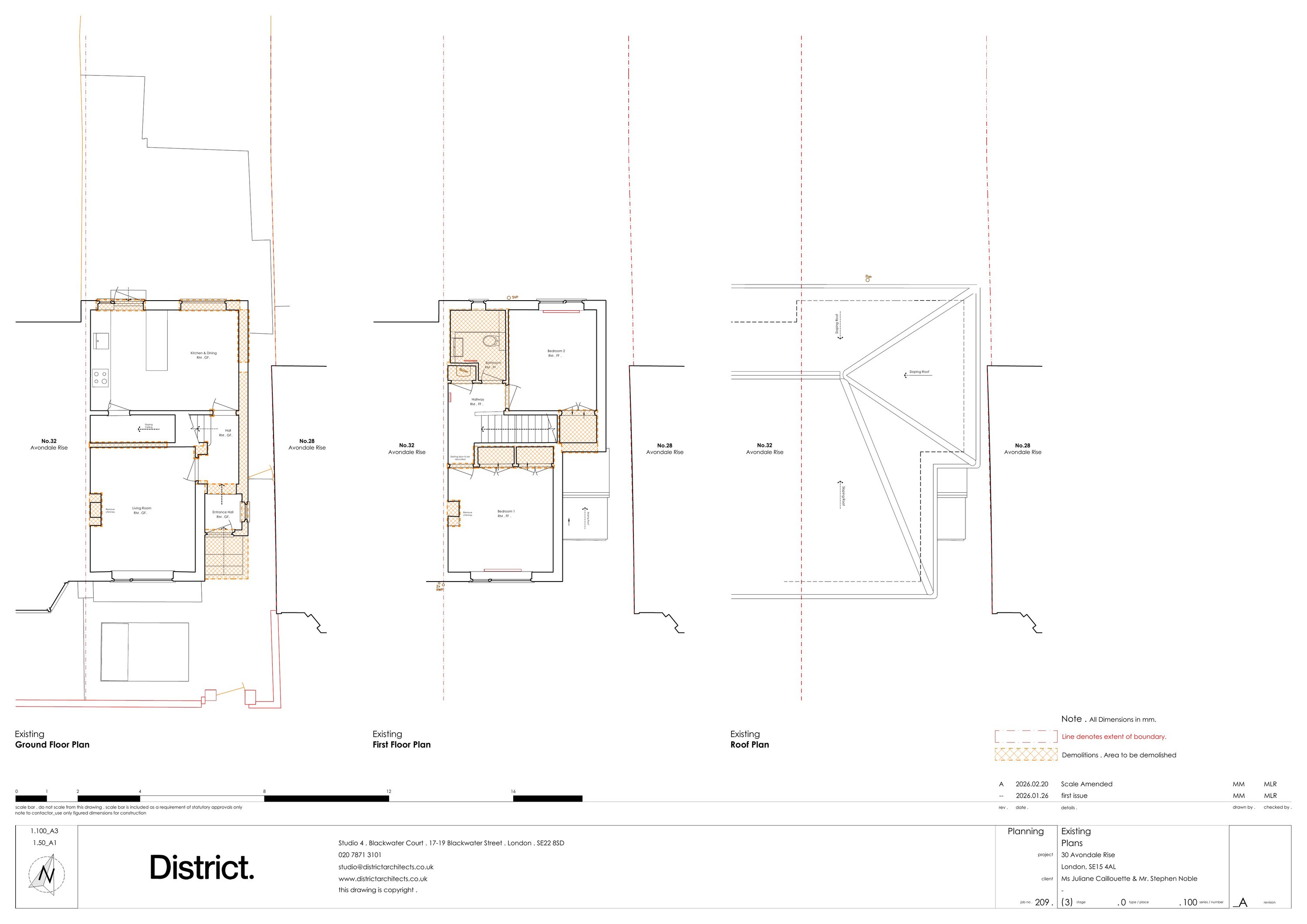
Construction of a ground floor front/side extension including porch with steps and replacement front door; construction of a ground floor rear extension; installation of a side door serving a new courtyard; replacement of front and rear uPVC windows with timber windows of the same design; installation of PV solar panels to the front and side roof slopes; installation of an air source heat pump and bin store in the front garden.

Documents

Application - Form (Without Personal data)
Archived · Original link
Design and Access statement
Archived · Original link
Plan - Existing
Archived · Original link
Plan - Existing
Archived · Original link
Site - Location plan
Archived · Original link
Neighbour Notification List
Archived · Original link
Parking Provision
Archived · Original link
Site - Block plan
Archived · Original link
Plan - Proposed
Archived · Original link
Plan - Proposed
Archived · Original link
Plan - Proposed
Archived · Original link
Plan - Proposed
Archived · Original link
Plan - Proposed
Archived · Original link
Valid Application Letter
Archived · Original link

Have your say

Your comment matters. Councils must consider every representation that raises material planning considerations.

Write a comment