← Southwark

Status

Under consideration/assessment House extension
Received
Last month
New homes
2

Full proposal

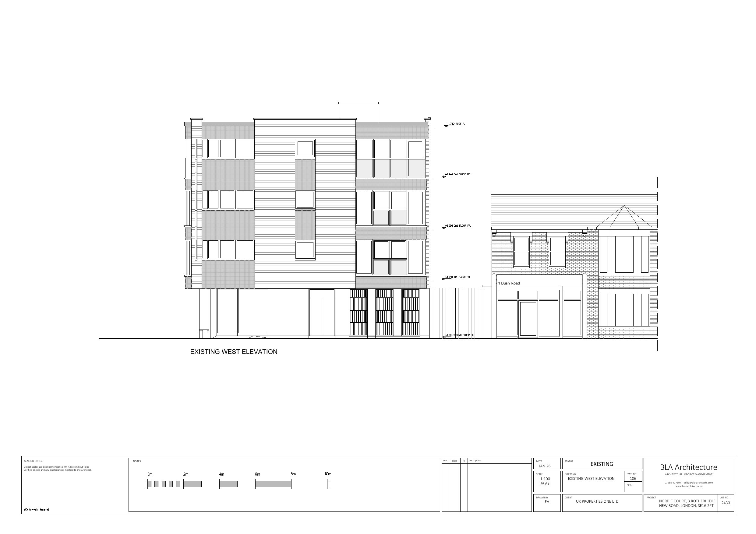
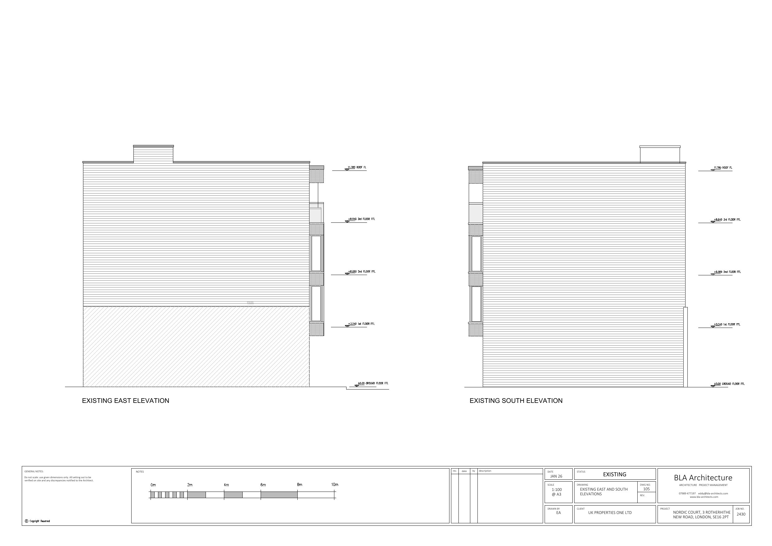
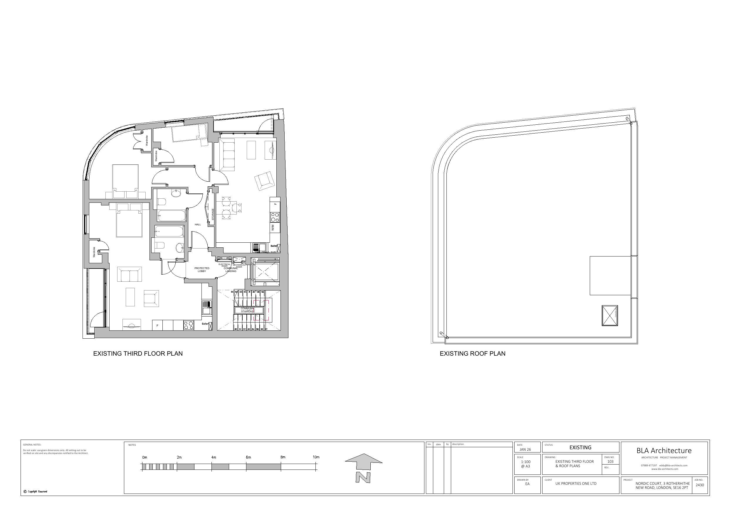
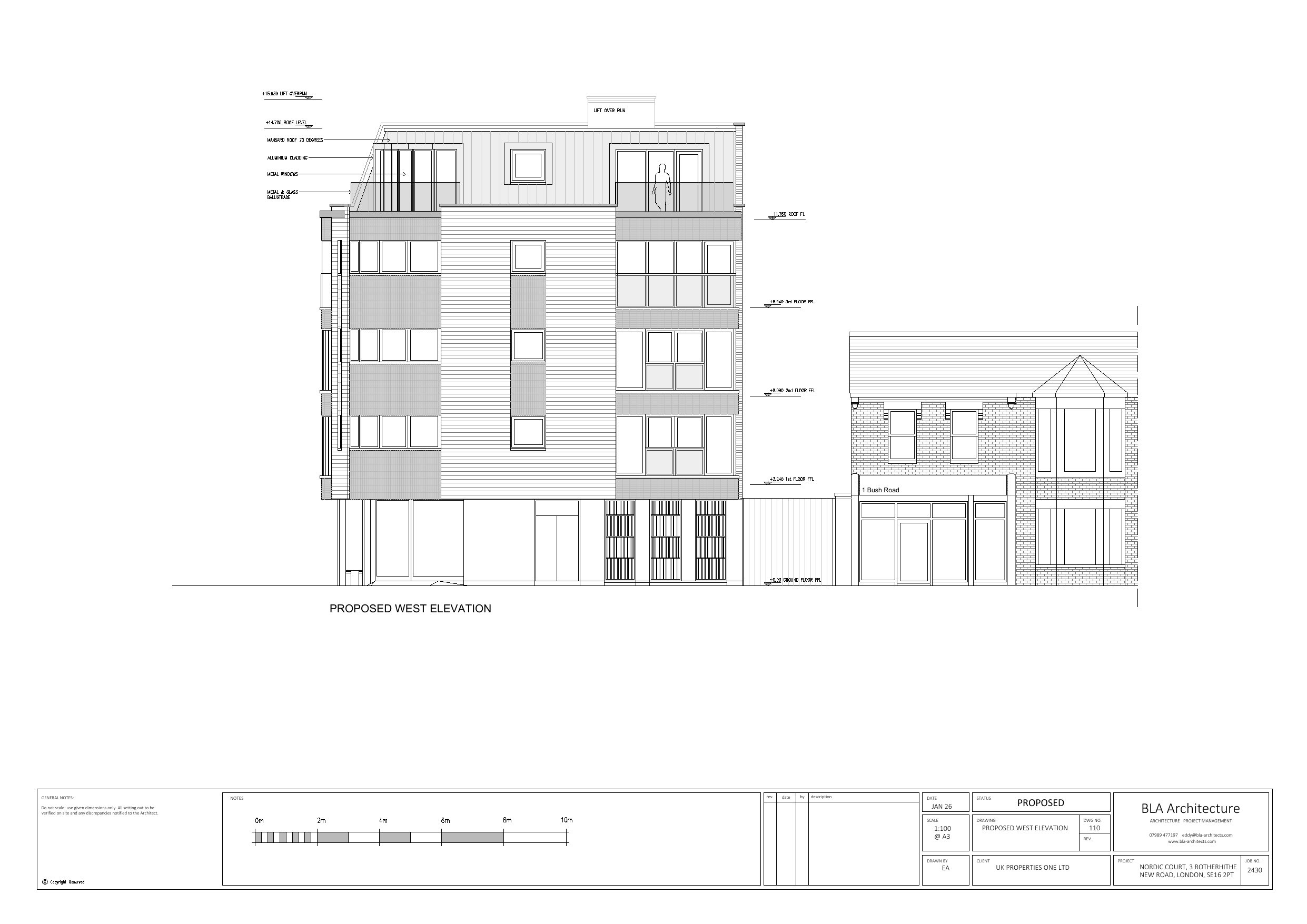
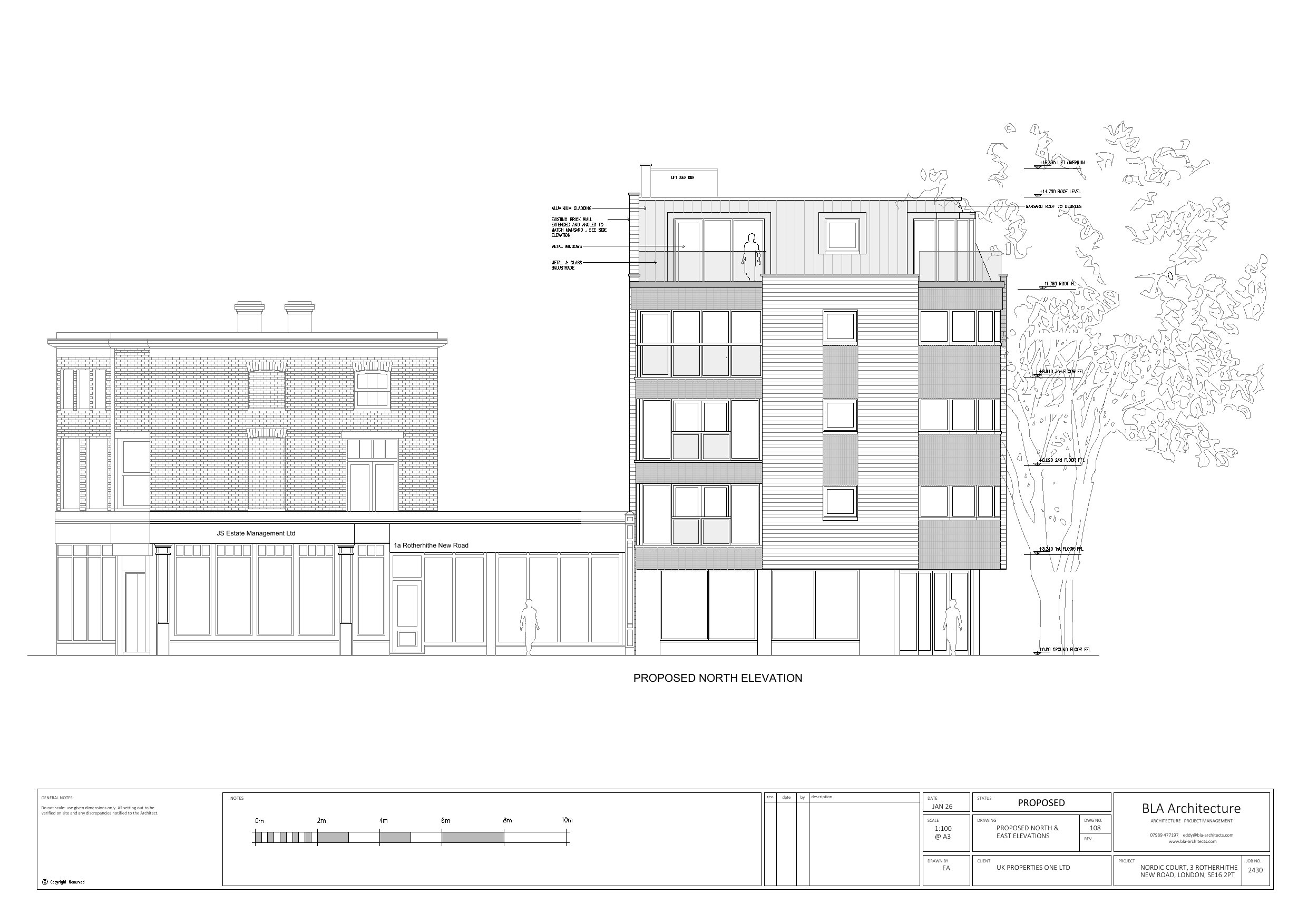
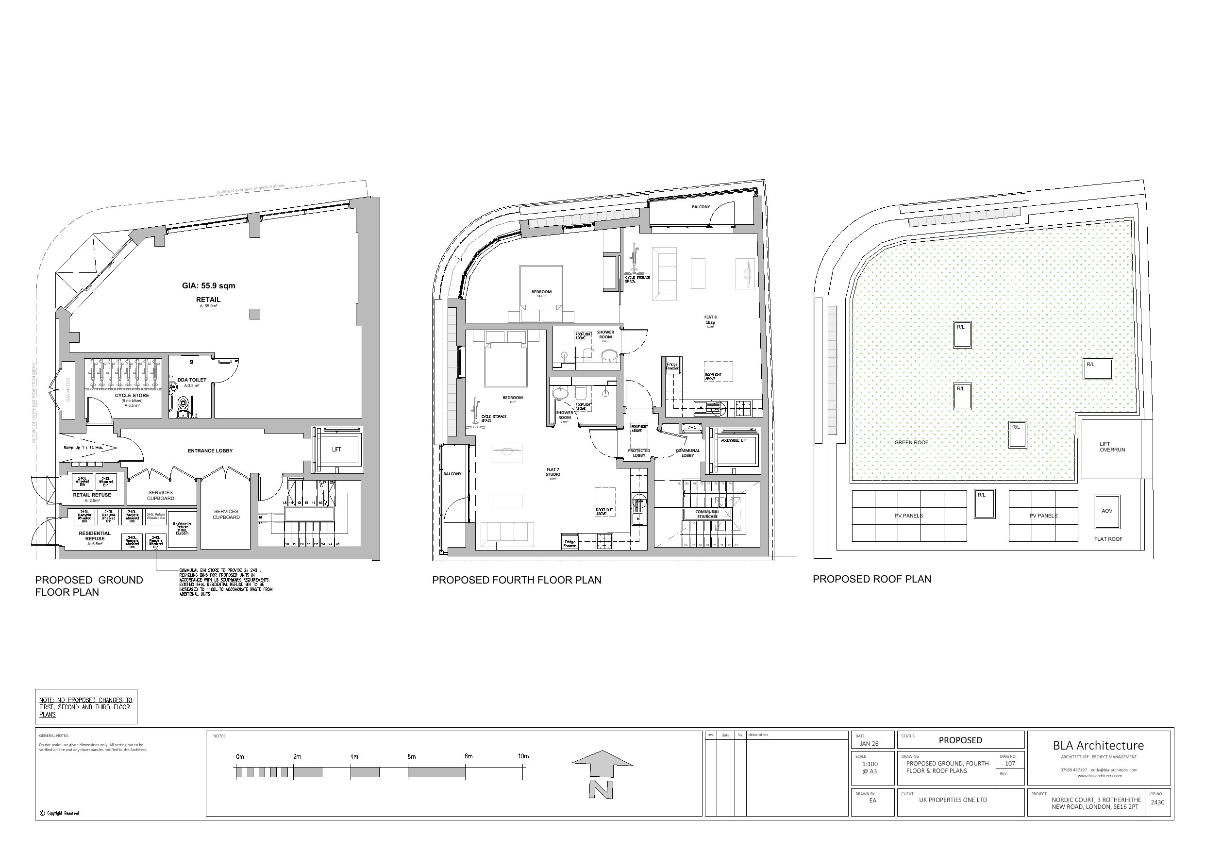
Erection of a rooftop extension set back behind the parapet wall to form fourth-floor residential accommodation comprising one studio and one one-bedroom flat.

Documents

Air quality assessment
Archived · Original link
Application - Form (Without Personal data)
Archived · Original link
Daylight/Sunlight assessment
Archived · Original link
Design and Access statement
Archived · Original link
Energy statement
Archived · Original link
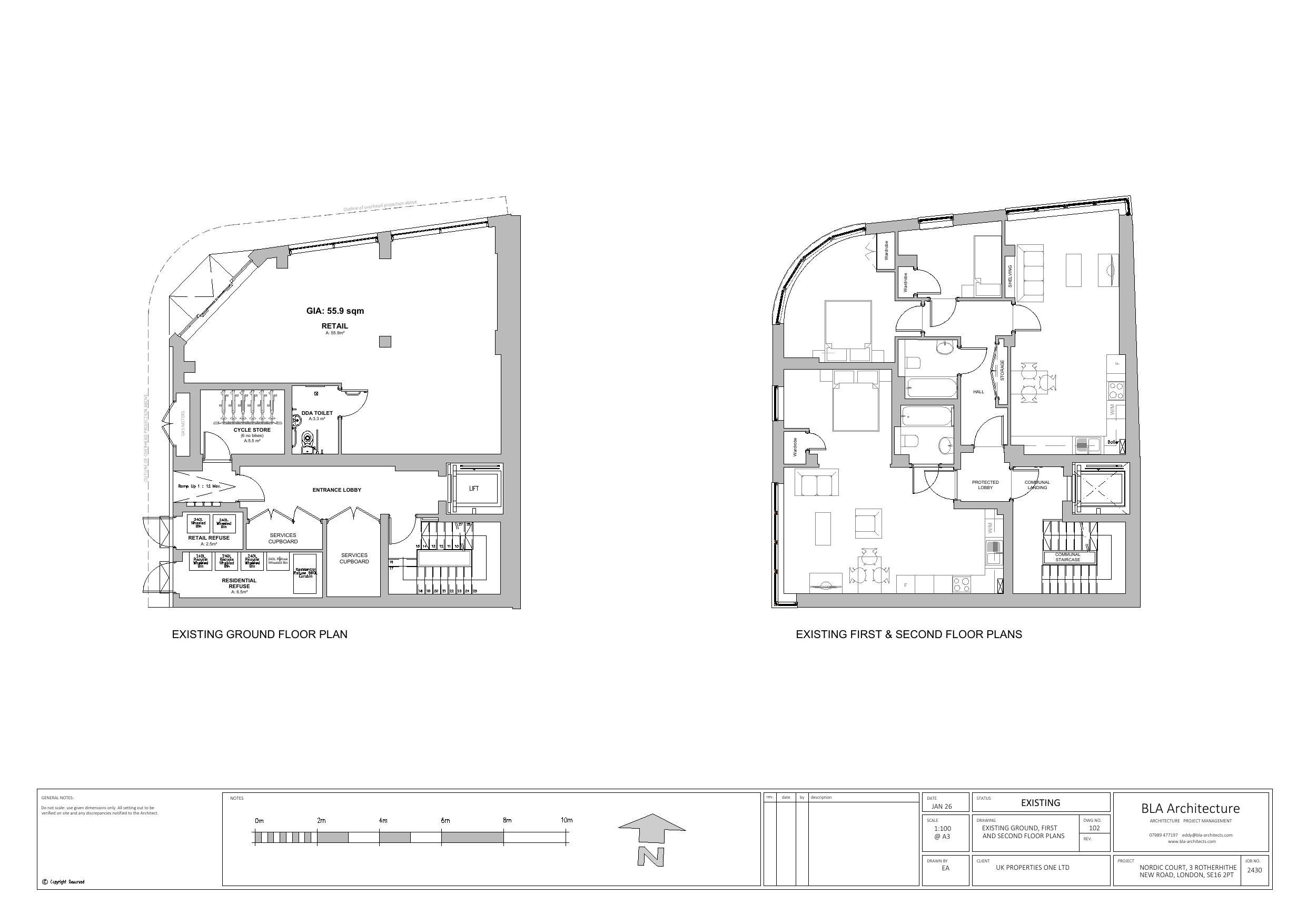
Plan - Existing
Archived · Original link
Plan - Existing
Archived · Original link
Plan - Existing
Archived · Original link
Neighbour Notification List
Archived · Original link
Fire Statement
Archived · Original link
Site - Location plan
Archived · Original link
Biodiversity survey / ecology assessment
Archived · Original link
Photographs and photomontages
Archived · Original link
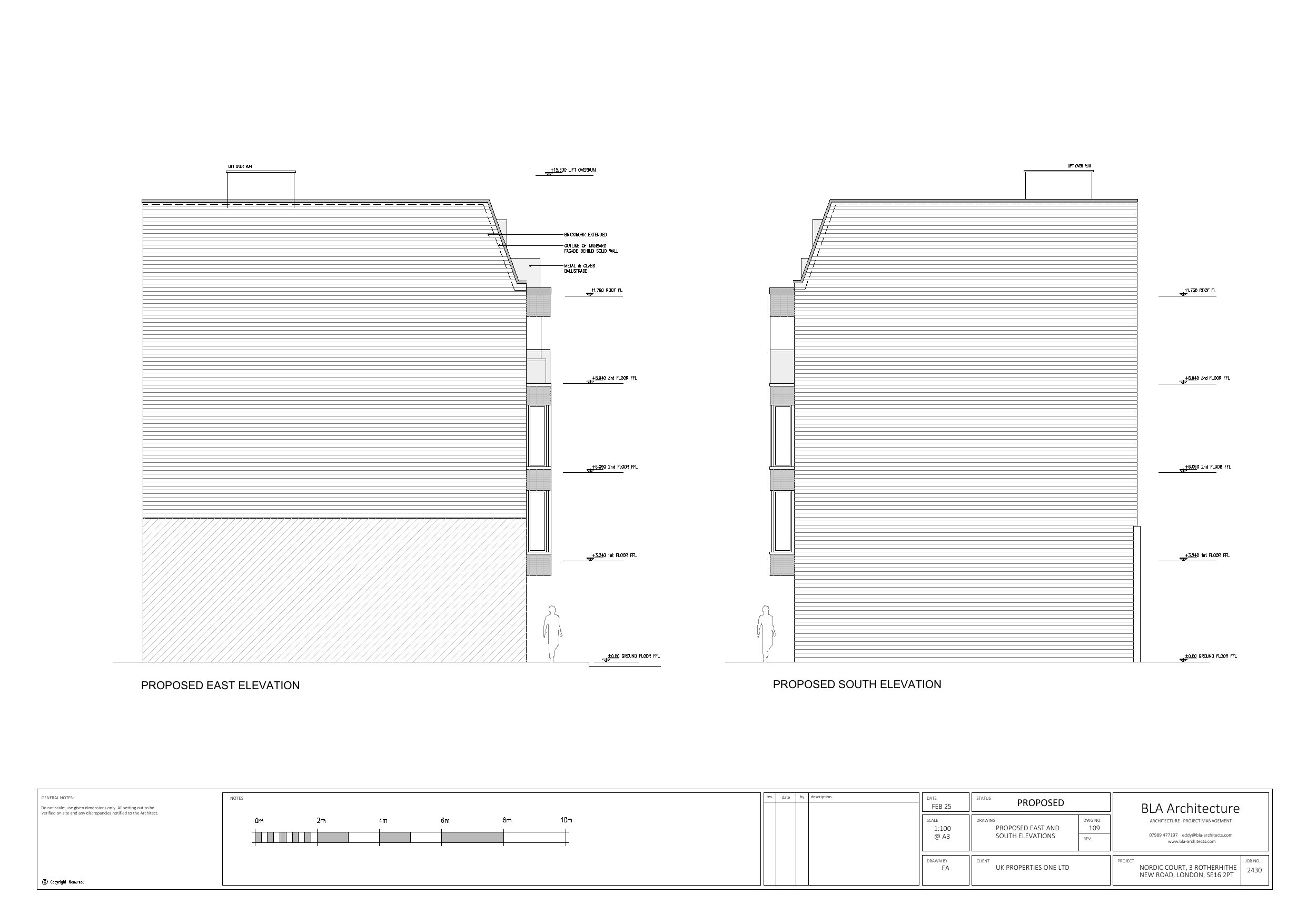
Plan - Proposed
Archived · Original link
Plan - Proposed
Archived · Original link
Plan - Proposed
Archived · Original link
Site - Location plan
Archived · Original link
Valid Application Letter
Archived · Original link
Viability report
Archived · Original link

Have your say

Your comment matters. Councils must consider every representation that raises material planning considerations.

Write a comment