← Southwark

Status

Under consideration/assessment House extension
Received
Last month
New homes
0

Full proposal

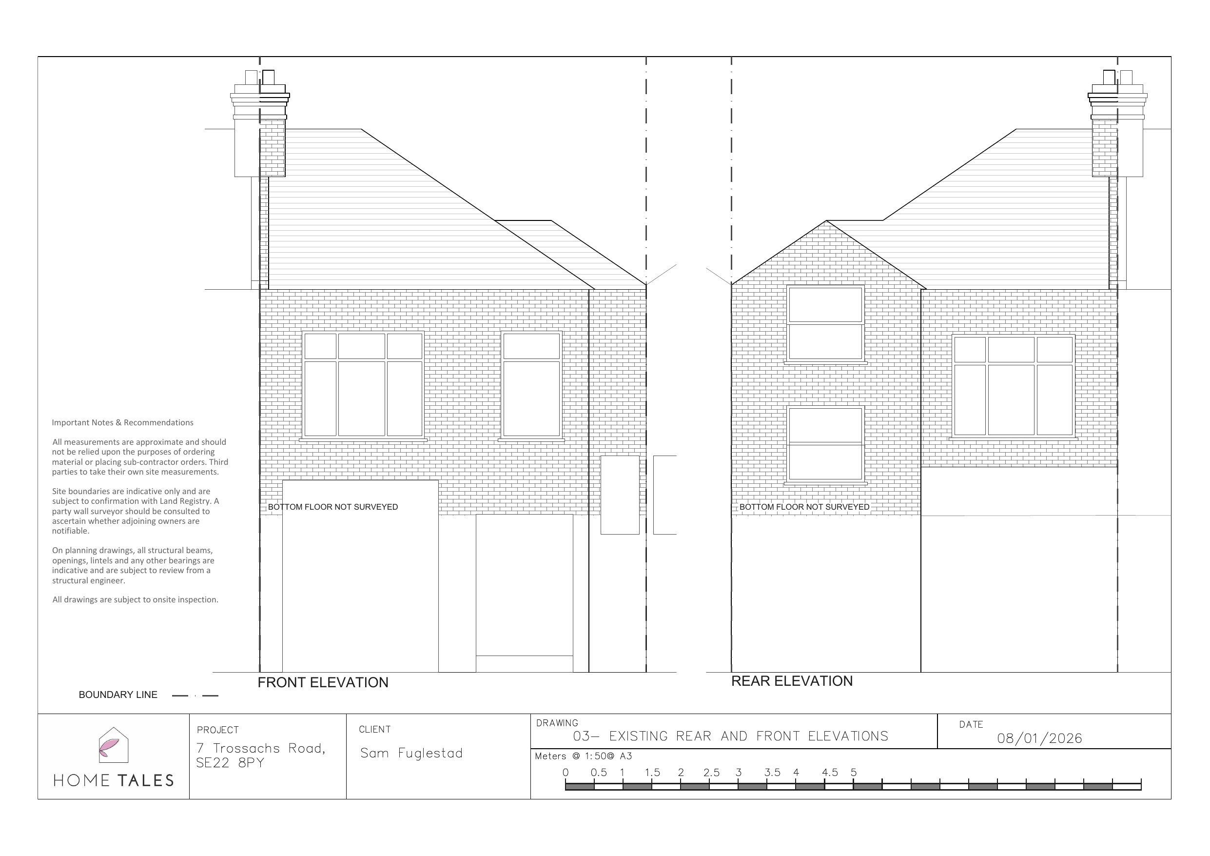
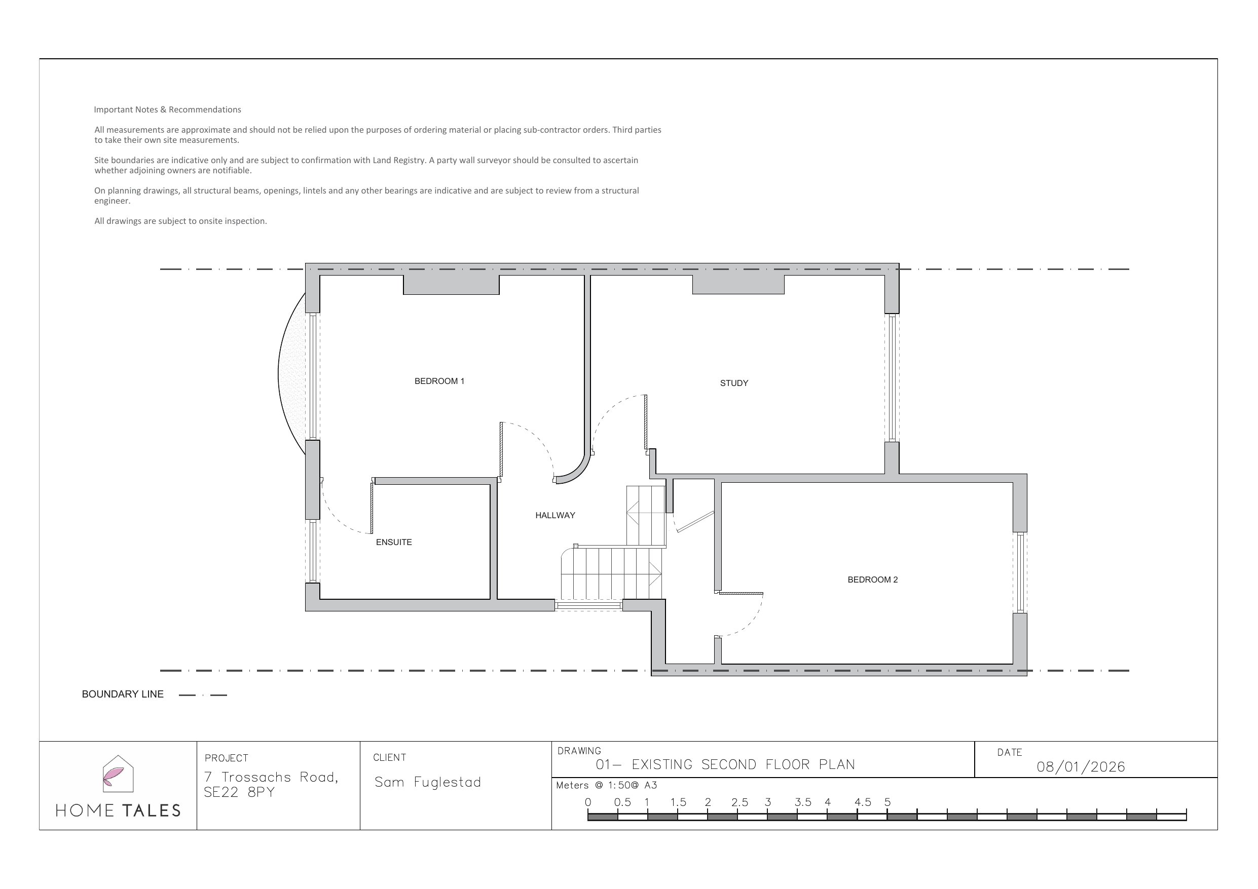
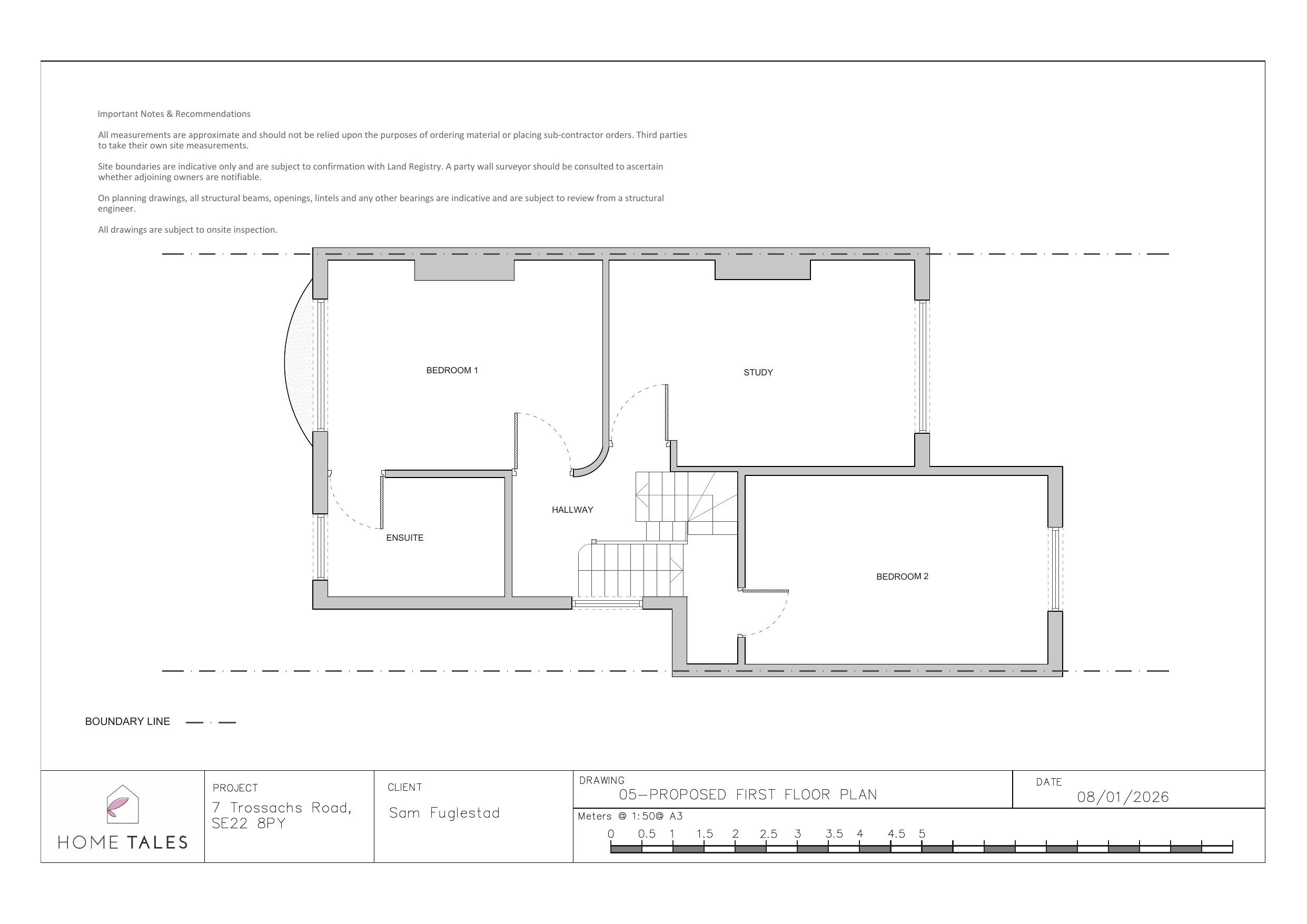
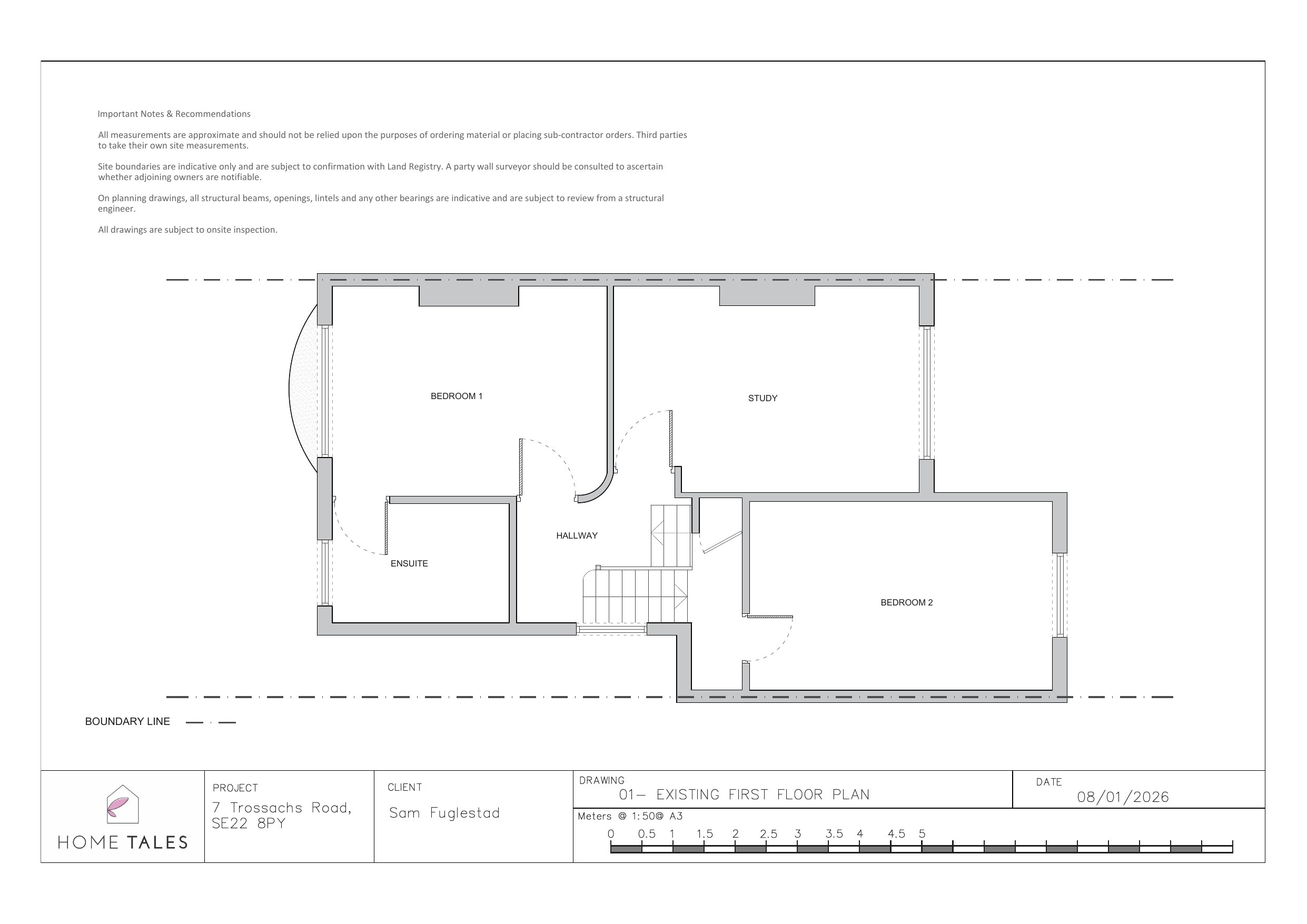
Hip to gable roof extension and erection of a rear roof dormer. Installation of solar panels to the front roof slope and to the flat roof of the rear dormer. Installation of three rooflights to the front roof slope. Installation of a Juliet balcony to the rear dormer.

Documents

Application - Form (Without Personal data)
Archived · Original link
Plan - General
Archived · Original link
Plan - Existing
Archived · Original link
Plan - Existing
Archived · Original link
Plan - Existing
Archived · Original link
Plan - Existing
Archived · Original link
Neighbour Notification List
Archived · Original link
Plan - Proposed
Archived · Original link
Plan - Proposed
Archived · Original link
Plan - Proposed
Archived · Original link
Plan - Proposed
Archived · Original link
Site - Location plan
Archived · Original link
Valid Application Letter
Archived · Original link

Have your say

Your comment matters. Councils must consider every representation that raises material planning considerations.

Write a comment