← Southwark

Status

Under consideration/assessment Change of use
Received
Last month
New homes
0

Full proposal

Change of use for a temporary period of three years of the approved residential units at first to third floor levels at 54-58 Union Street and the dwelling at 60 Union Street from Use Class C3 to serviced apartments for managed short-stay visitor accommodation within Use Class C1.

Documents

Application - Covering letter
Archived · Original link
Application - Form (Without Personal data)
Archived · Original link
Design and Access statement
Archived · Original link
Design and Access statement
Archived · Original link
Neighbour Notification List
Archived · Original link
Fire Statement
Archived · Original link
Fire Statement
Archived · Original link
Noise impact assessment
Archived · Original link
Planning statement
Archived · Original link
Press Notice
Archived · Original link
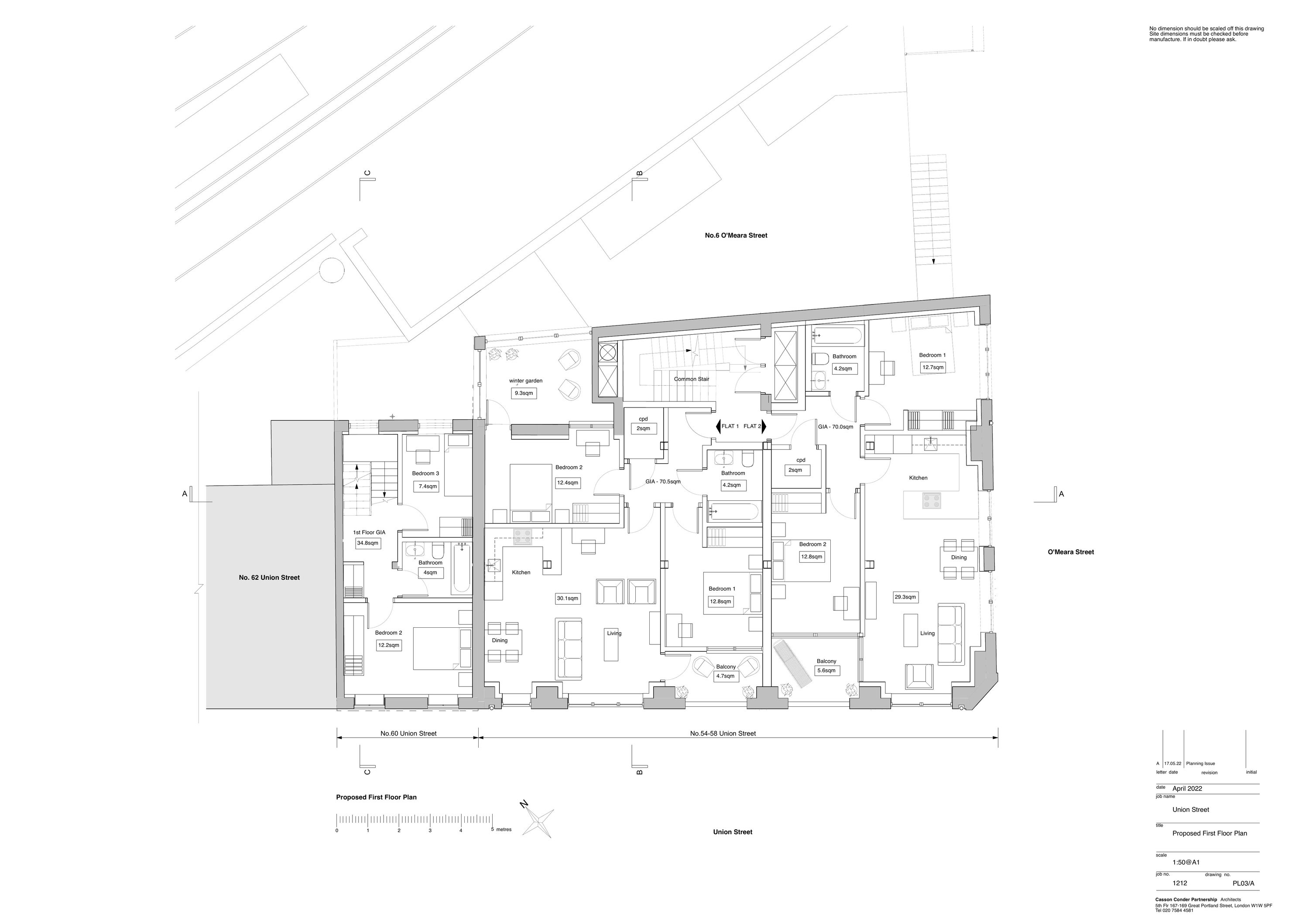
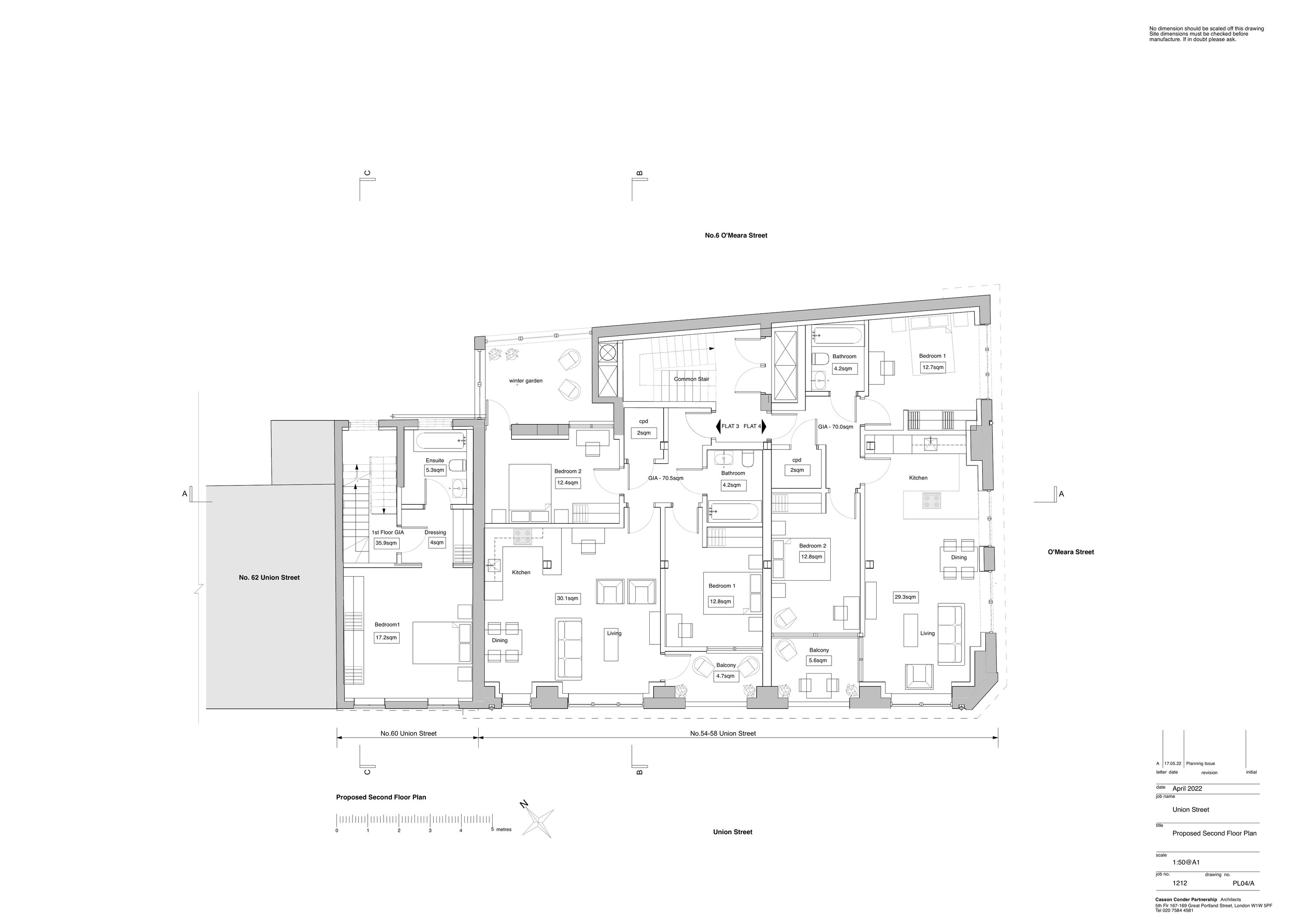
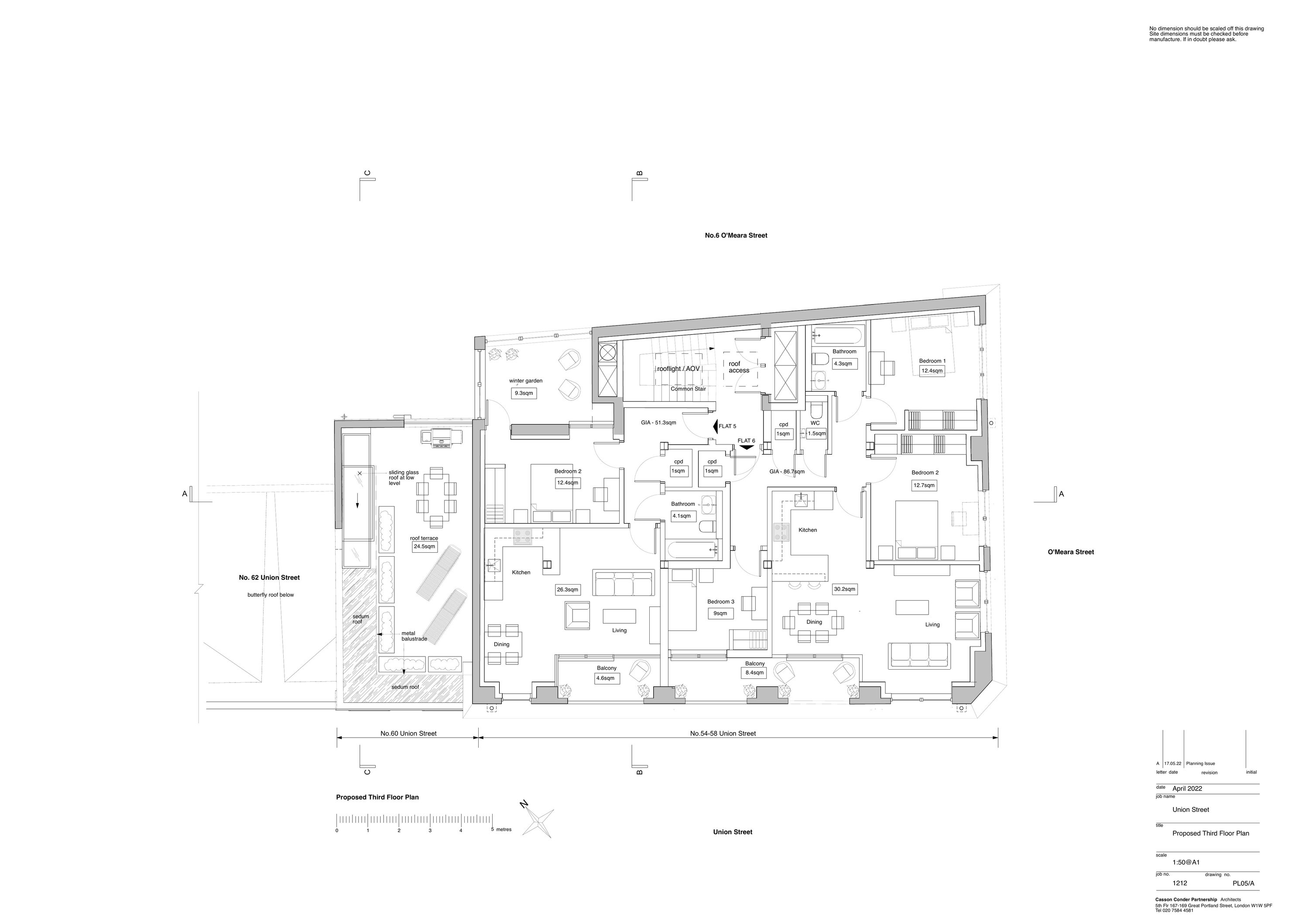
Plan - Proposed
Archived · Original link
Plan - Proposed
Archived · Original link
Plan - Proposed
Archived · Original link
Site - Location plan
Archived · Original link
Transport assessment
Archived · Original link
Valid Application Letter
Archived · Original link

Have your say

Your comment matters. Councils must consider every representation that raises material planning considerations.

Write a comment