← Southwark

Status

Under consideration/assessment House extension
Received
Last month
New homes
0

Full proposal

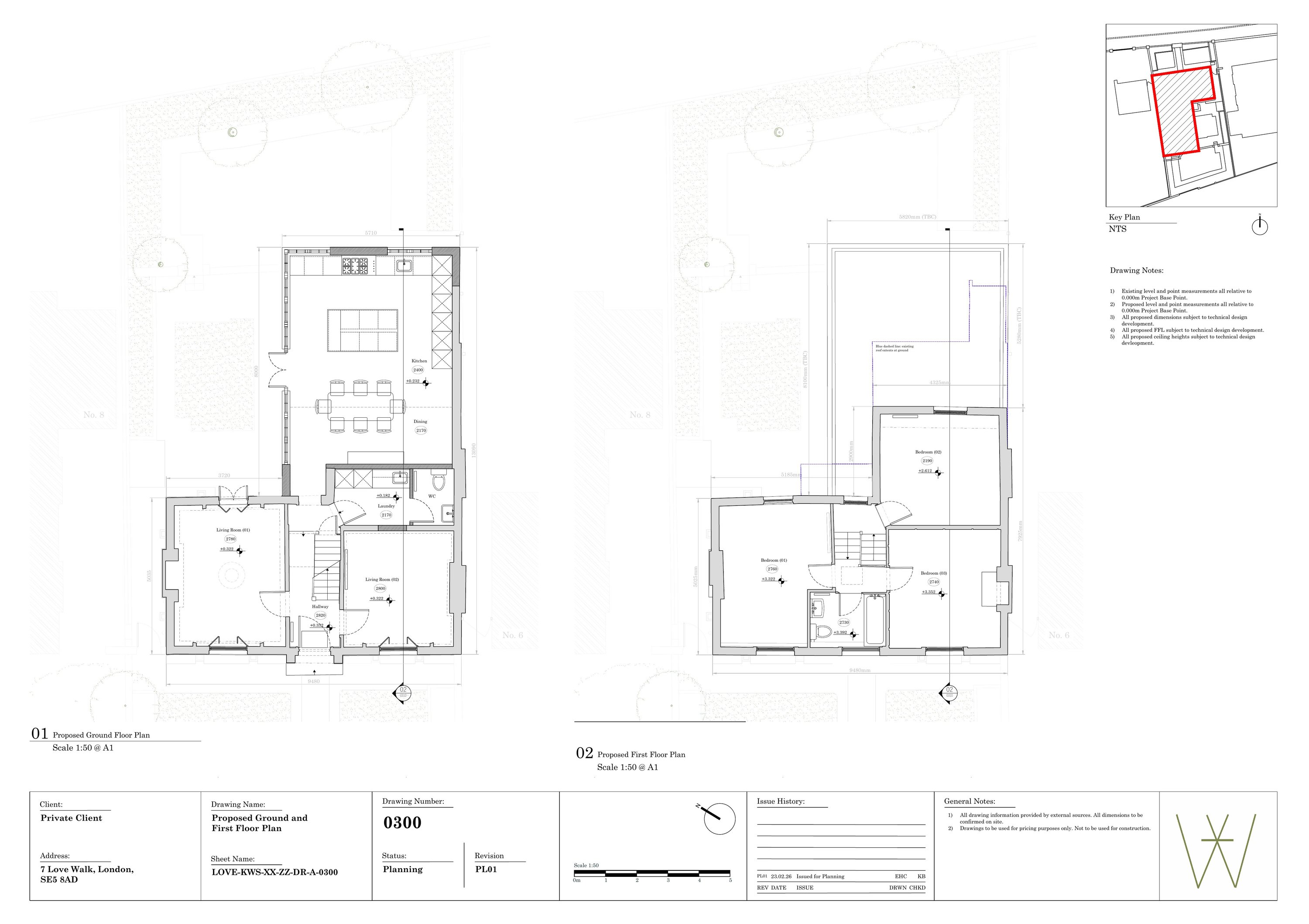
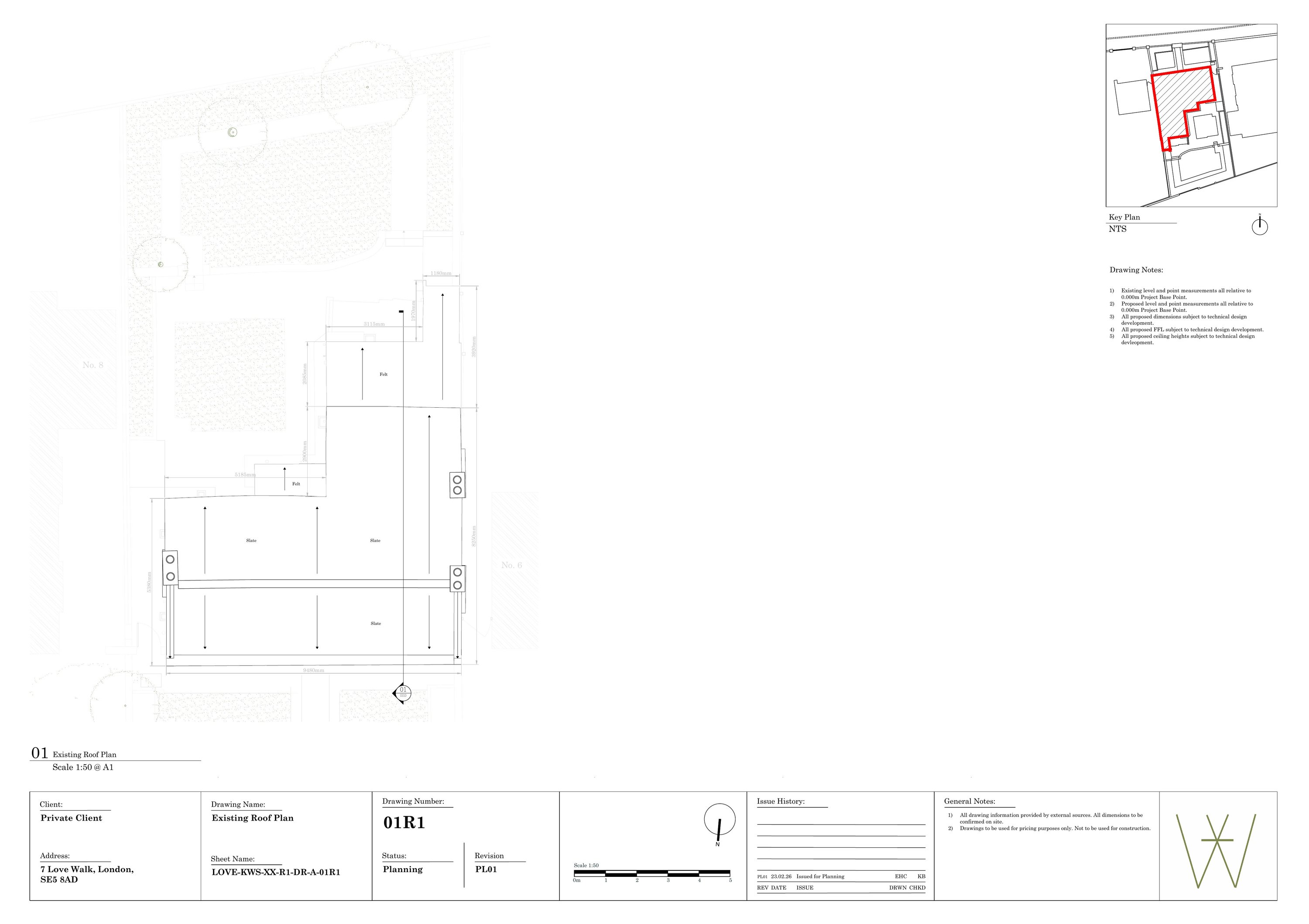
Demolition of existing single storey volume at rear of the building containing an undersized kitchen, dining area and external store area. Demolition of existing single storey volume at rear of the building containing undersized shower room. Extension to rear of the building containing open plan kitchen/dining with feature glazing. Internal reworking to replace existing downstairs WC and provide laundry area.

Documents

Plan - General
Archived · Original link
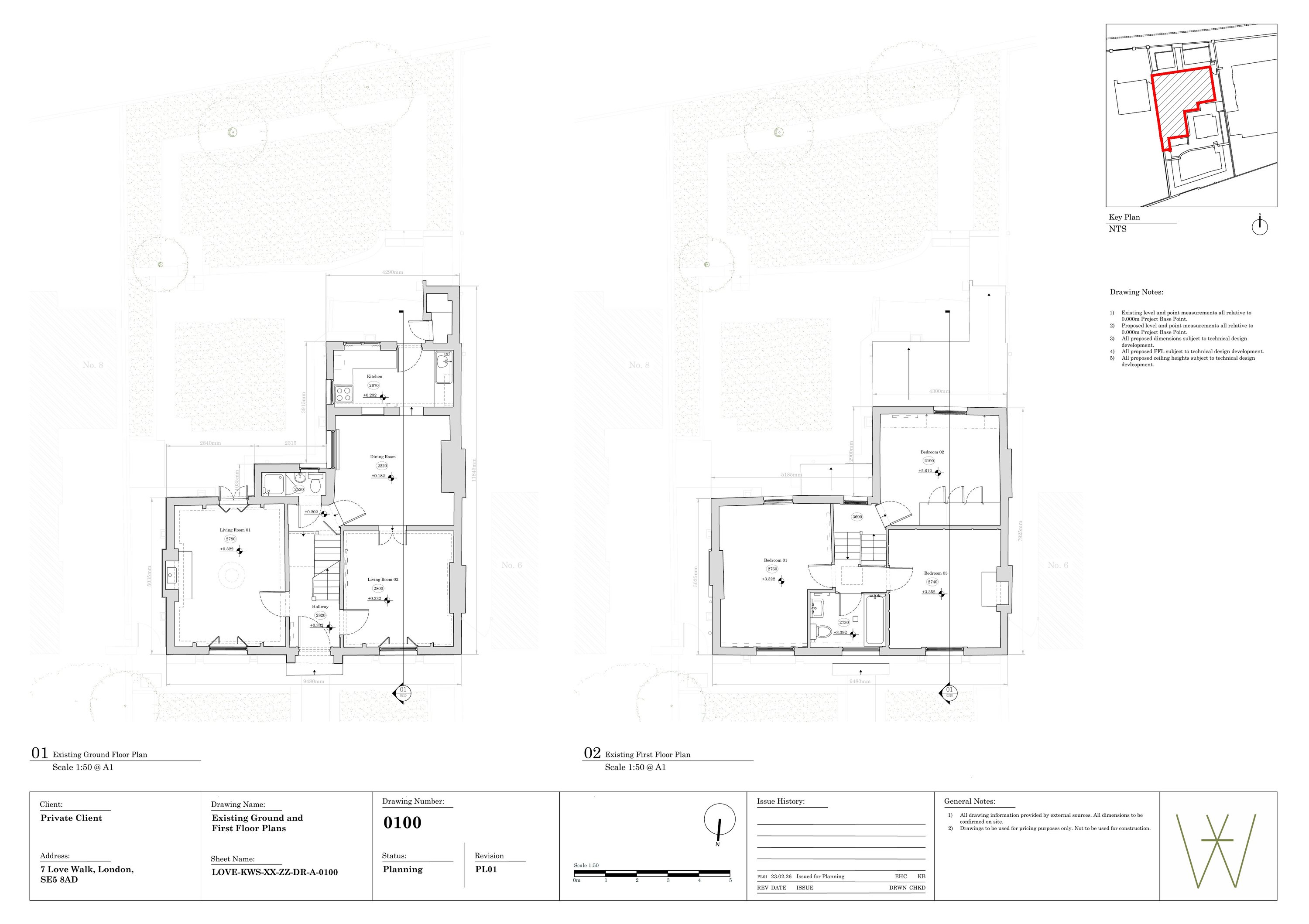
Plan - Existing
Archived · Original link
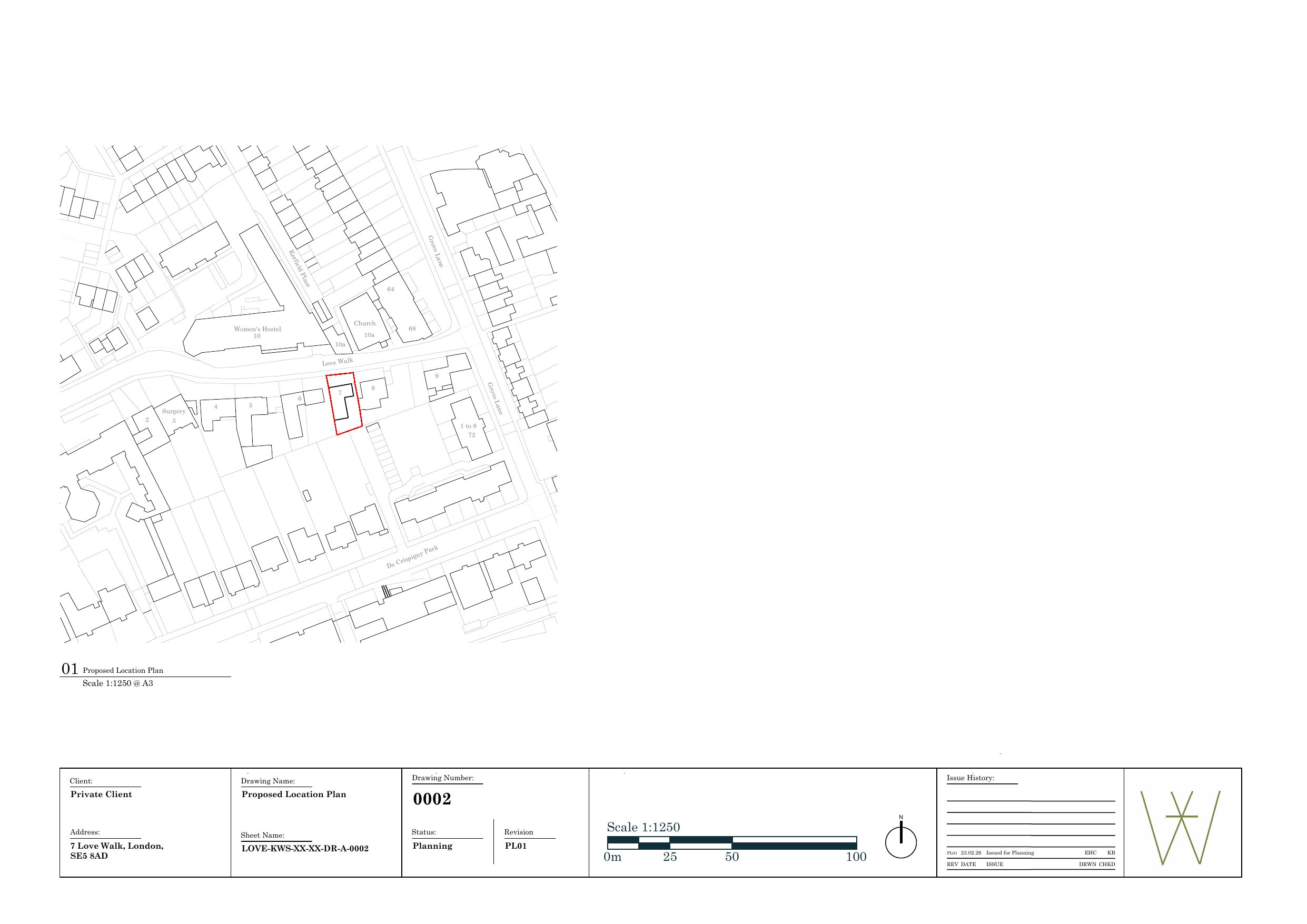
Site - Location plan
Archived · Original link
Plan - Existing
Archived · Original link
Site - Block plan
Archived · Original link
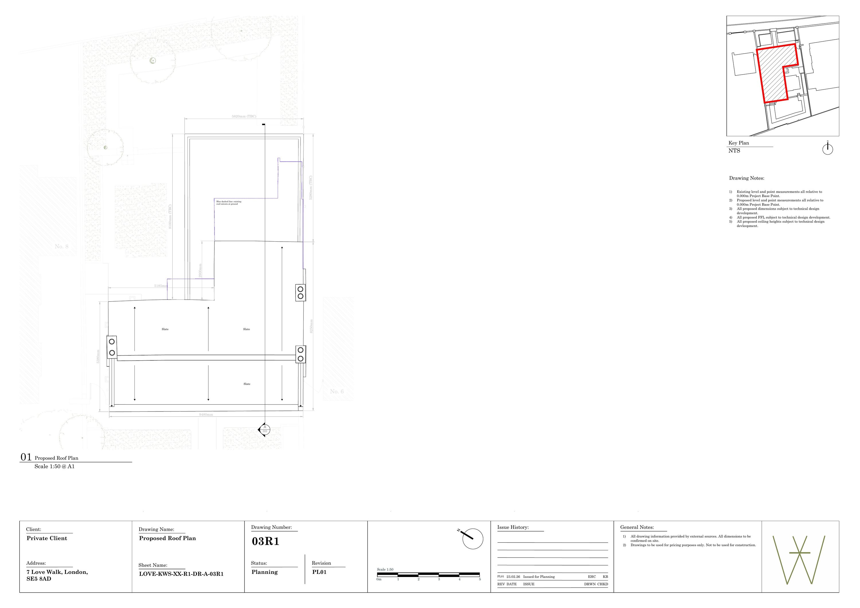
Plan - Proposed
Archived · Original link
Site - Location plan
Archived · Original link
Plan - Proposed
Archived · Original link
Plan - Proposed
Archived · Original link

Have your say

Your comment matters. Councils must consider every representation that raises material planning considerations.

Write a comment