← Southwark

Status

Under consideration/assessment House extension
Received
Last month
New homes
0

Full proposal

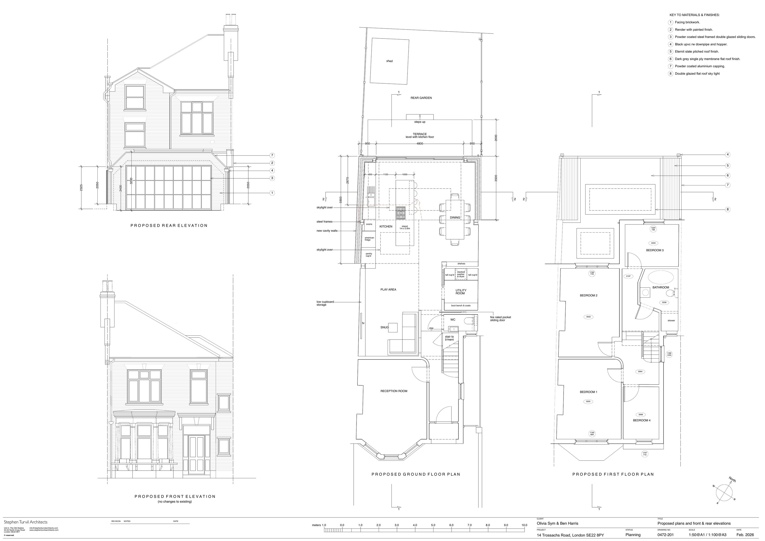
Demolition of existing rear extension and construction of a new single storey rear extension

Documents

Application - Form (Without Personal data)
Archived · Original link
Design and Access statement
Archived · Original link
Neighbour Notification List
Archived · Original link
Fire Statement
Archived · Original link
Parking Provision
Archived · Original link
Photographs and photomontages
Archived · Original link
Site - Location plan
Archived · Original link
Valid Application Letter
Archived · Original link

Have your say

Your comment matters. Councils must consider every representation that raises material planning considerations.

Write a comment