← Southwark

Status

Under consideration/assessment House extension
Received
Last month
New homes
0

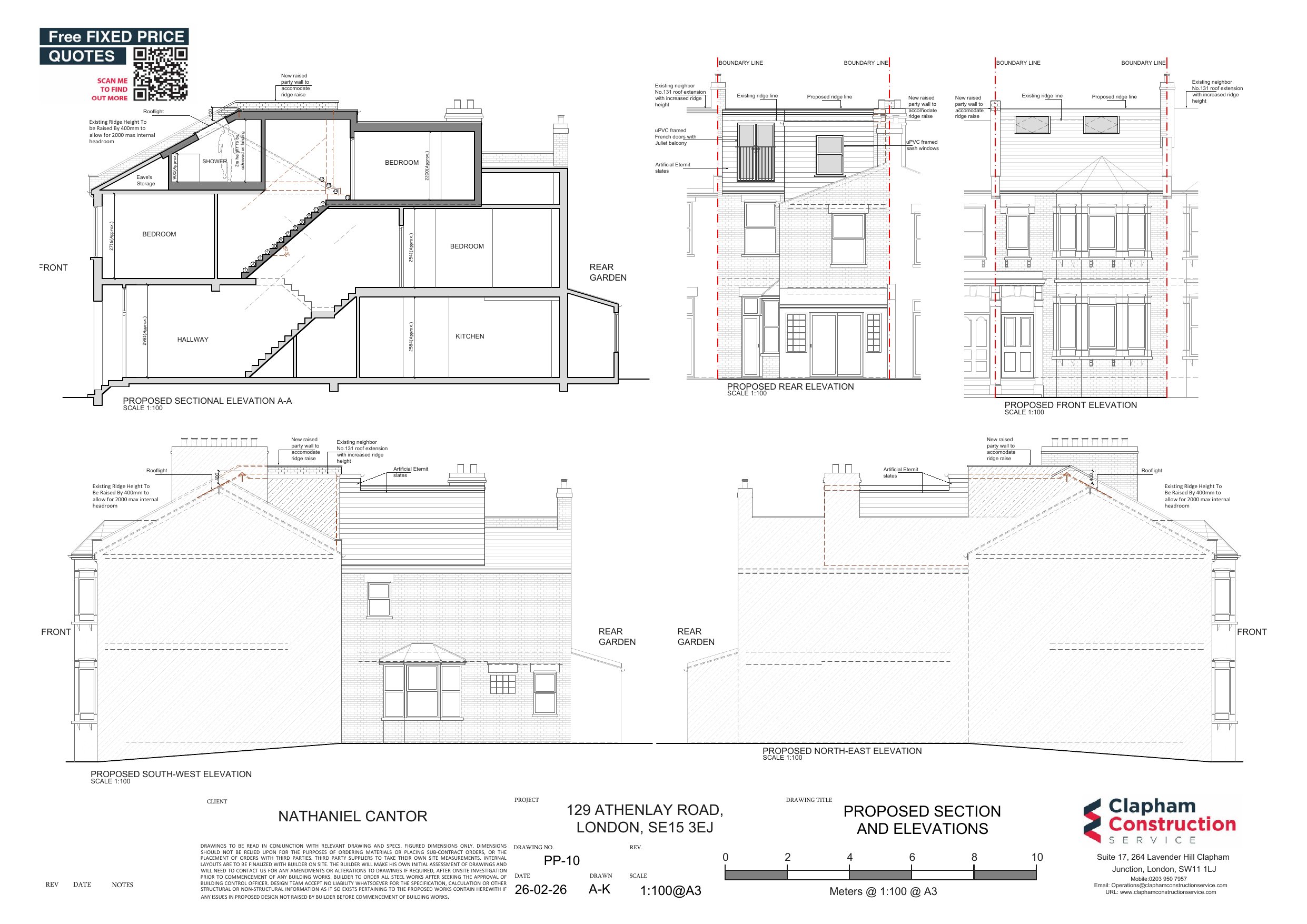
Full proposal

Erection of an L-Shaped rear roof dormer extension with increase in the ridge height by 400mm; installation of two rooflights to the front roof slope.

Documents

Application - Form (Without Personal data)
Archived · Original link
CIL - GIA Form
Archived · Original link
Design and Access statement
Archived · Original link
Plan - General
Archived · Original link
Plan - Existing
Archived · Original link
Plan - Existing
Archived · Original link
Plan - Existing
Archived · Original link
Plan - Existing
Archived · Original link
Neighbour Notification List
Archived · Original link
Parking Provision
Archived · Original link
Fire Statement
Archived · Original link
Plan - Proposed
Archived · Original link
Plan - Proposed
Archived · Original link
Plan - Proposed
Archived · Original link
Plan - Proposed
Archived · Original link
Site - Location plan
Archived · Original link
Valid Application Letter
Archived · Original link

Have your say

Your comment matters. Councils must consider every representation that raises material planning considerations.

Write a comment