← Southwark

Status

Under consideration/assessment House extension
Received
Last month
New homes
0

Full proposal

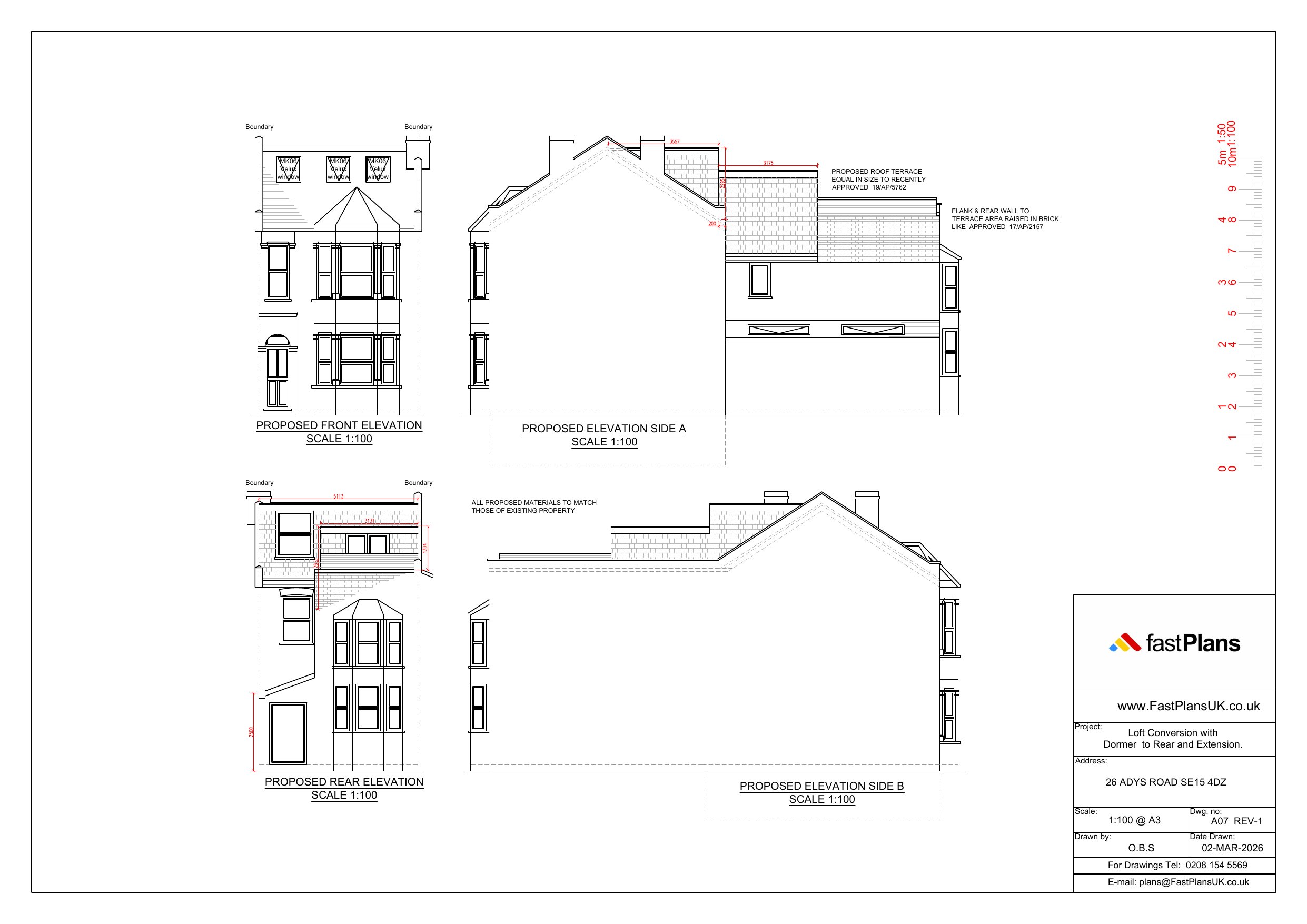
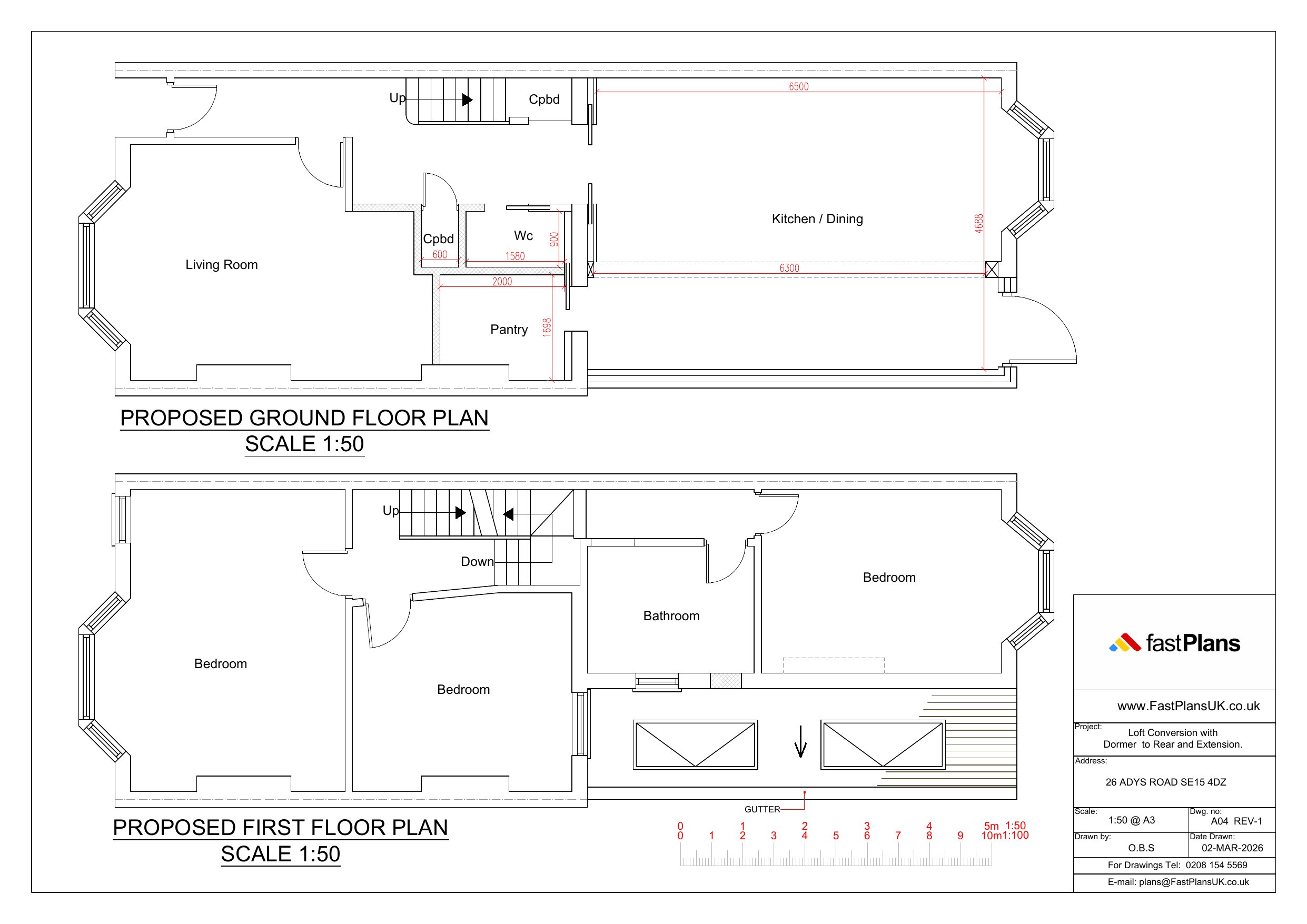
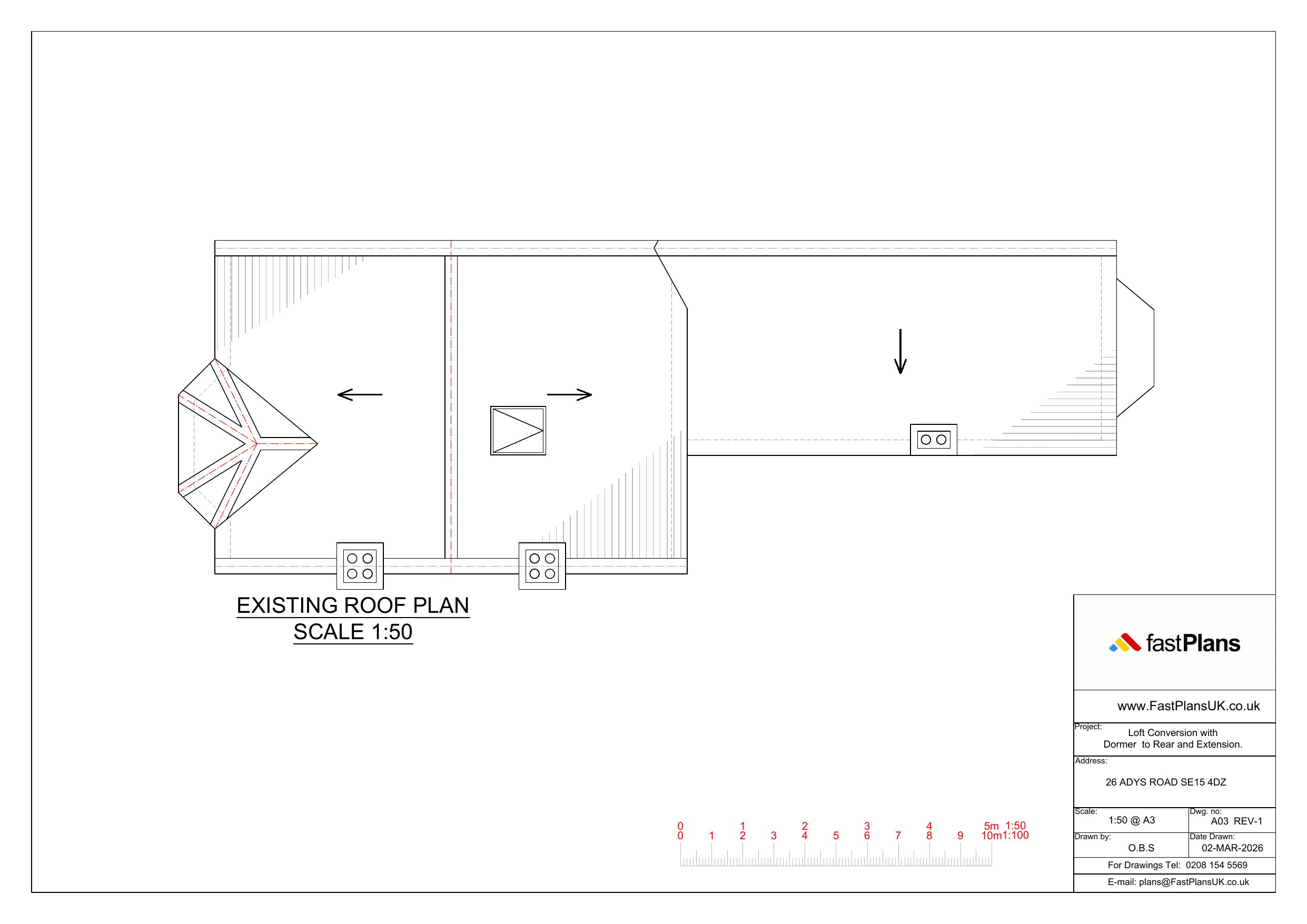
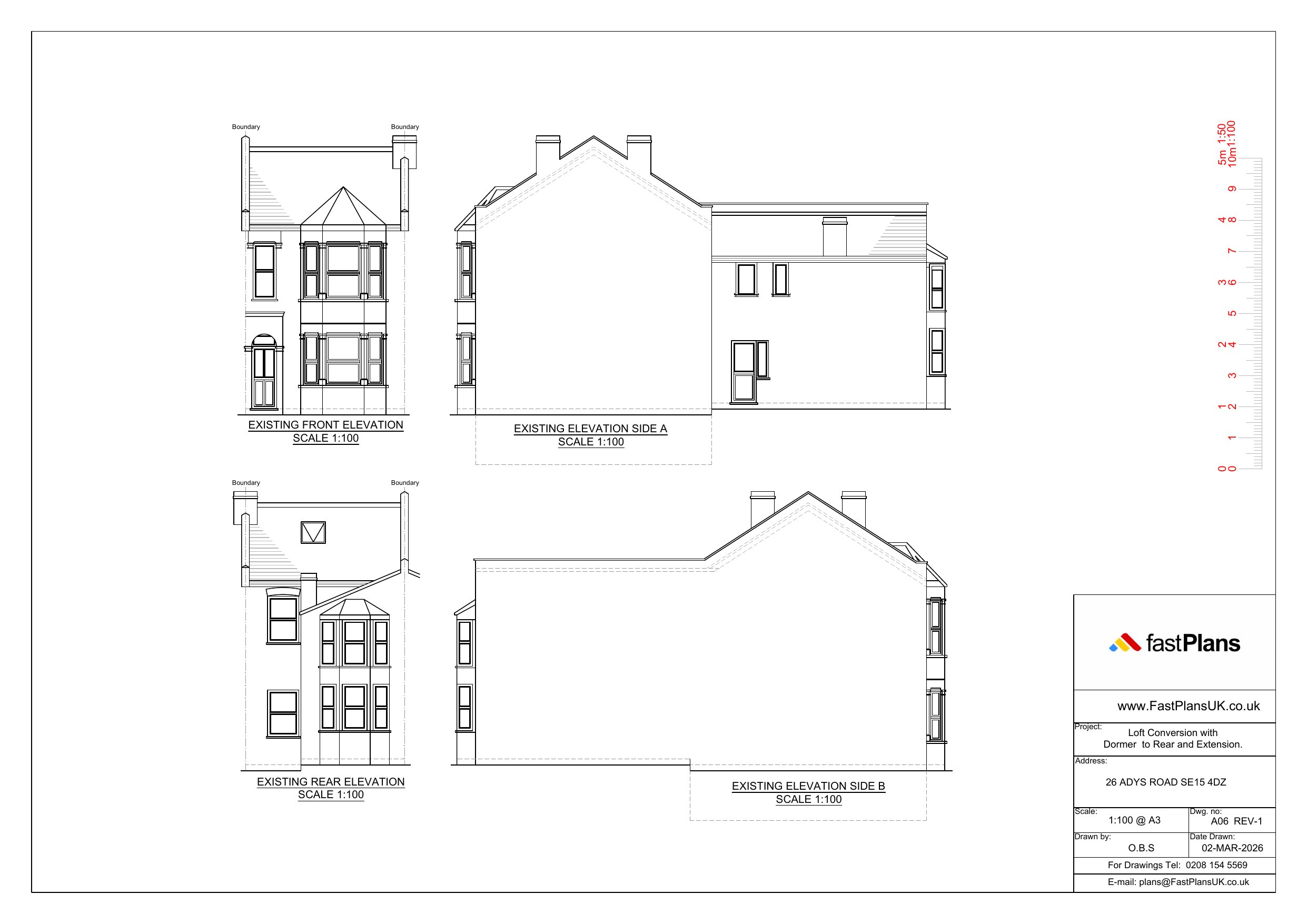
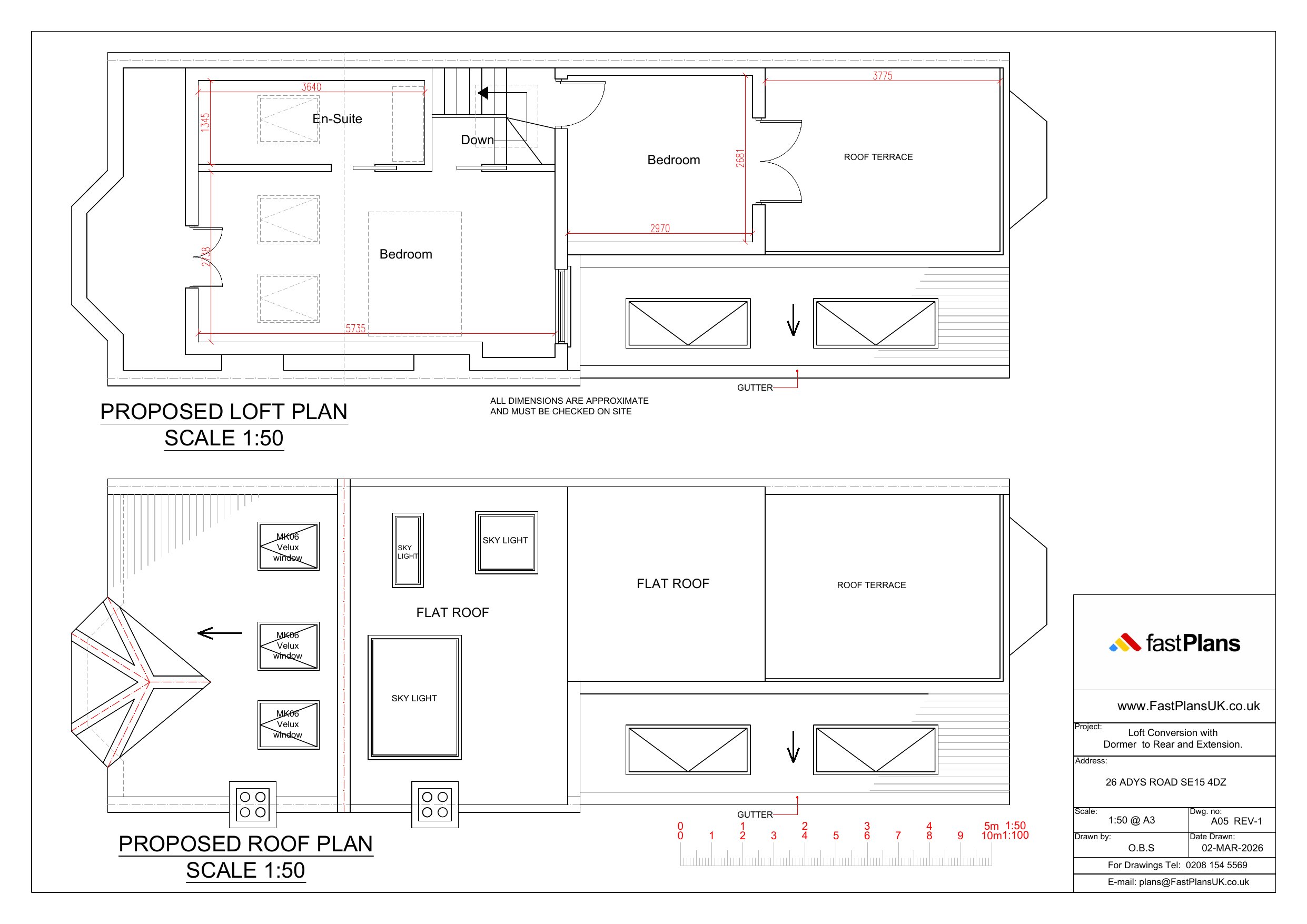
Constuction of a rear L-shaped dormer with roof lights on the front slope, a roof terrace over part of the rear addition roof, and a single-storey ground-floor side extension to the rear of the property.

Documents

Application - Form (Without Personal data)
Archived · Original link
Site - Location plan
Archived · Original link
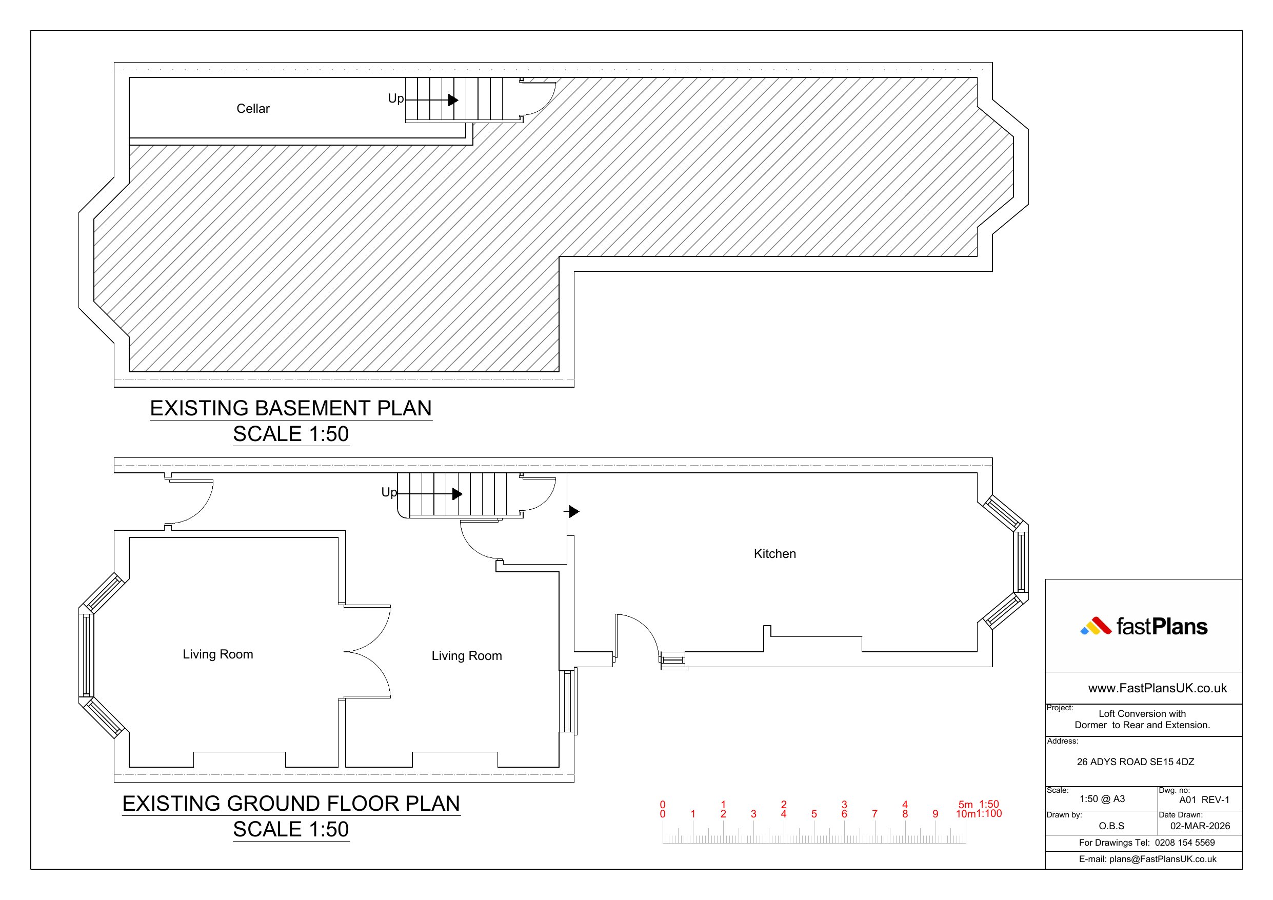
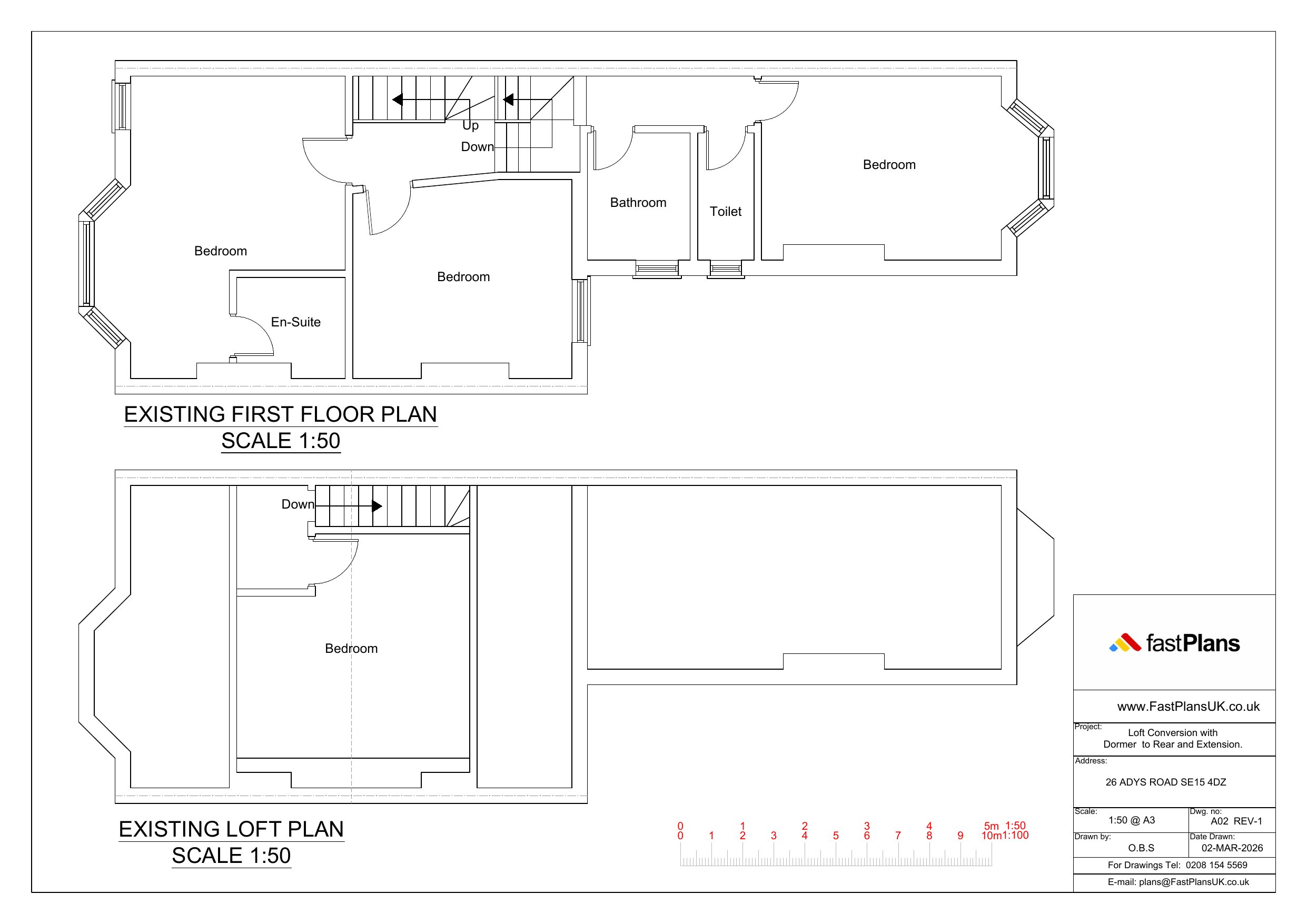
Plan - Existing
Archived · Original link
Plan - Existing
Archived · Original link
Plan - Existing
Archived · Original link
Fire Statement
Archived · Original link
Flood risk assessment
Archived · Original link
Plan - Proposed
Archived · Original link
Plan - Proposed
Archived · Original link
Plan - Proposed
Archived · Original link
Photographs and photomontages
Archived · Original link

Have your say

Your comment matters. Councils must consider every representation that raises material planning considerations.

Write a comment