← Southwark

Status

Under consideration/assessment New housing
Received
Last month
New homes
1

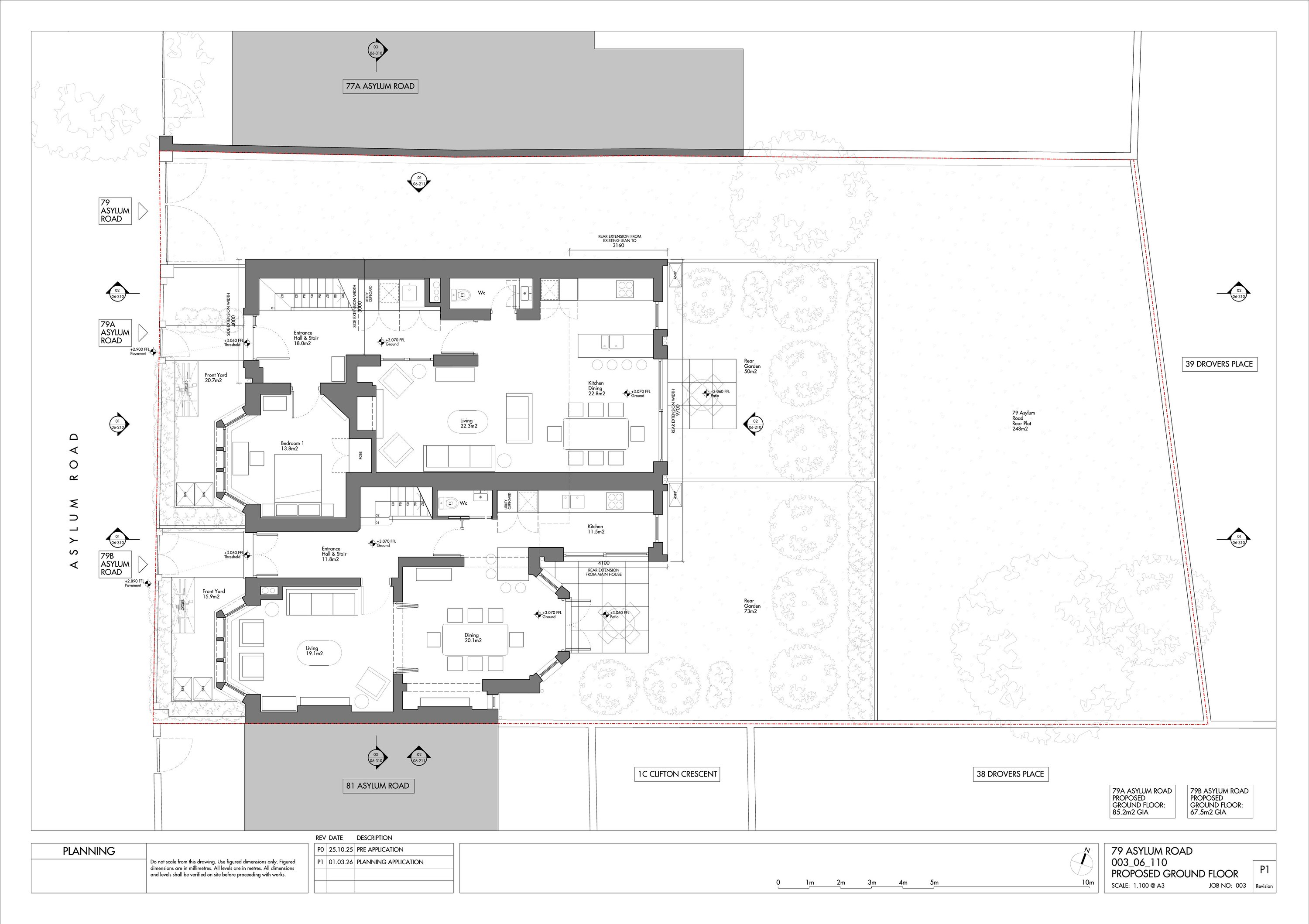
Full proposal

Two storey side extension, single storey rear extension and loft dormer extension to create an additional dwelling, with subdivision of the land to create a separate rear plot.

Documents

Application - Form (Without Personal data)
Archived · Original link
Tree survey or Arboricultural implications
Archived · Original link
BIODIVERSITY METRIC CALCULATION TOOL
Biodiversity BNG Metrics
Not yet archived · Original link
Biodiversity BNG Metrics
Archived · Original link
Design and Access statement
Archived · Original link
ELEVATION (FRONT) - EXISTING
Plan - Existing
Not yet archived · Original link
ELEVATION (SIDE) - EXISTING
Plan - Existing
Not yet archived · Original link
Plan - Existing
Archived · Original link
Plan - Existing
Archived · Original link
Plan - Existing
Archived · Original link
Plan - Existing
Archived · Original link
Plan - Existing
Archived · Original link
Plan - Existing
Archived · Original link
Plan - Existing
Archived · Original link
Fire Statement
Archived · Original link
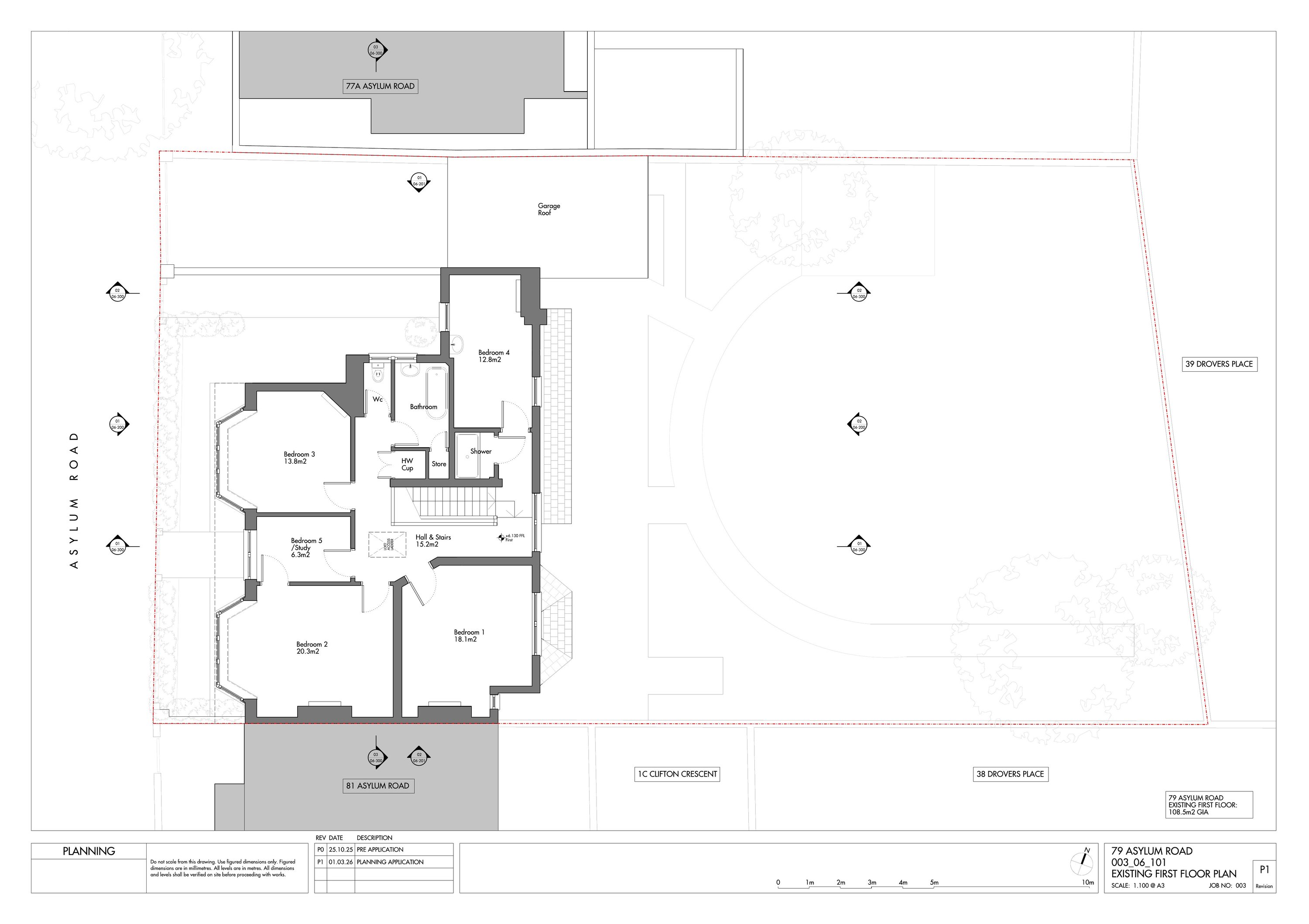
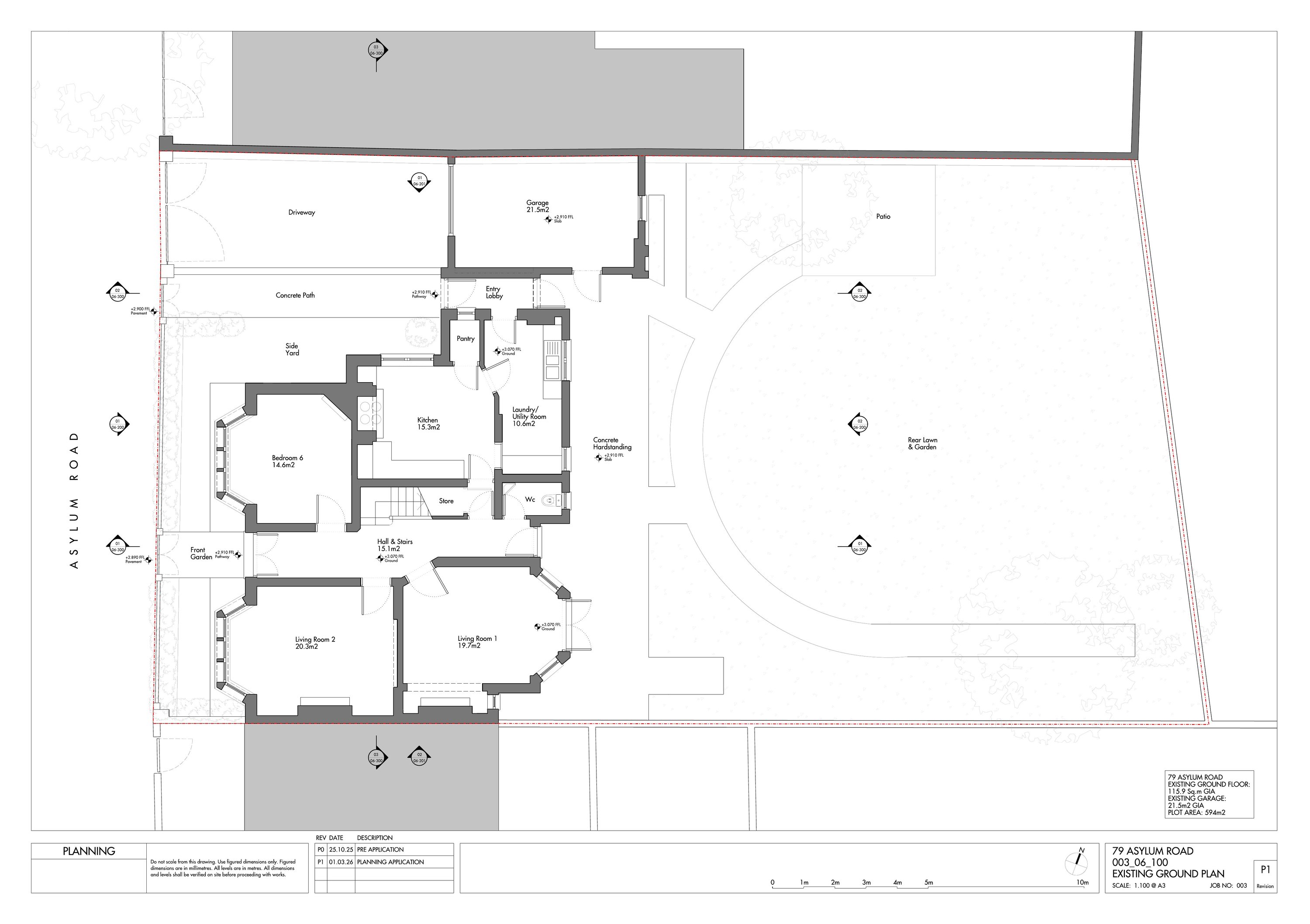
FLOOR PLAN - EXISTING
Plan - Existing
Not yet archived · Original link
FLOOR PLAN - EXISTING
Plan - Existing
Not yet archived · Original link
FLOOR PLAN - EXISTING
Plan - Existing
Not yet archived · Original link
Site - Location plan
Archived · Original link
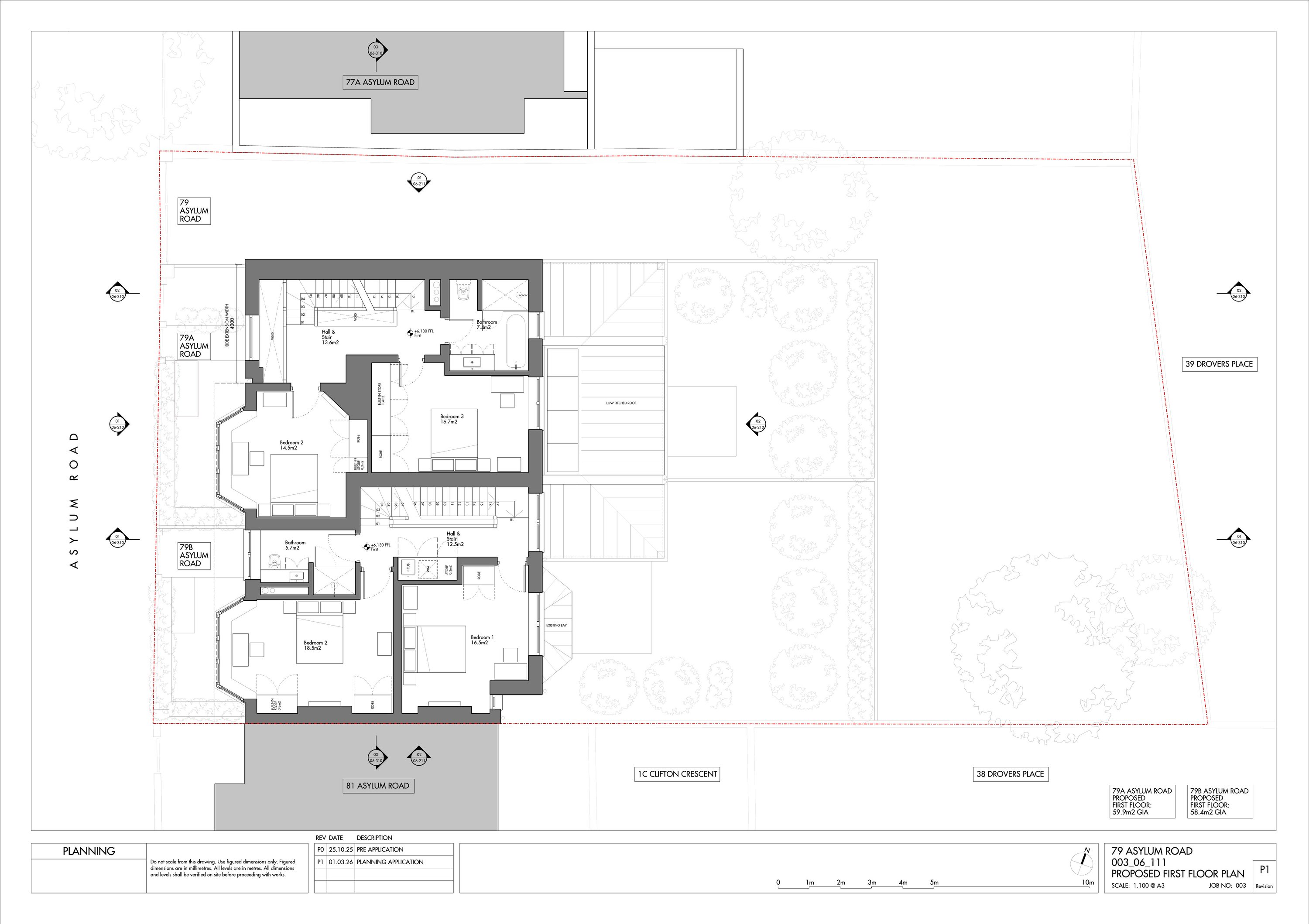
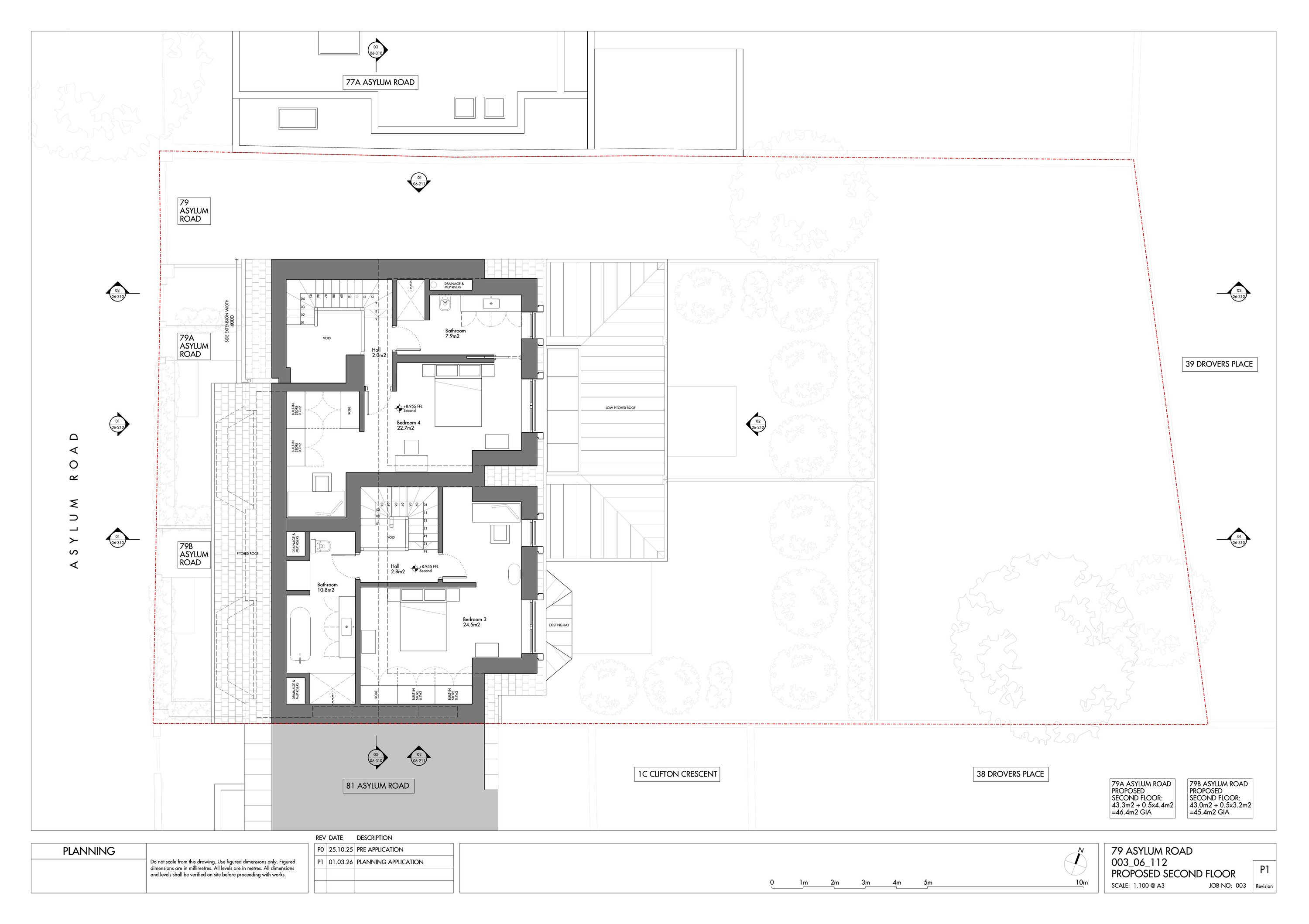
Plan - Proposed
Archived · Original link
Plan - Proposed
Archived · Original link
Plan - Proposed
Archived · Original link
Plan - Proposed
Archived · Original link
Plan - Proposed
Archived · Original link
Plan - Proposed
Archived · Original link
Plan - Proposed
Archived · Original link
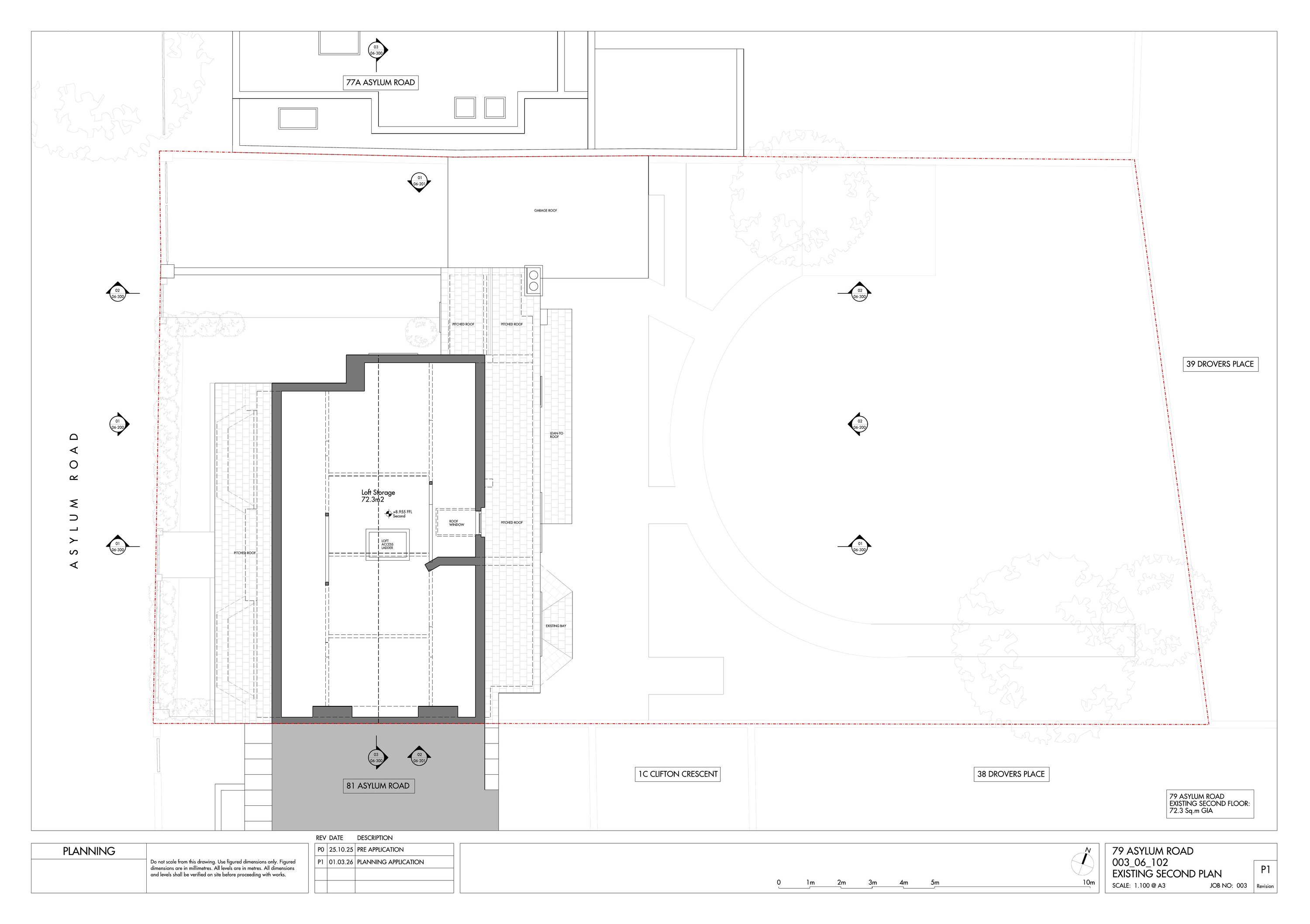
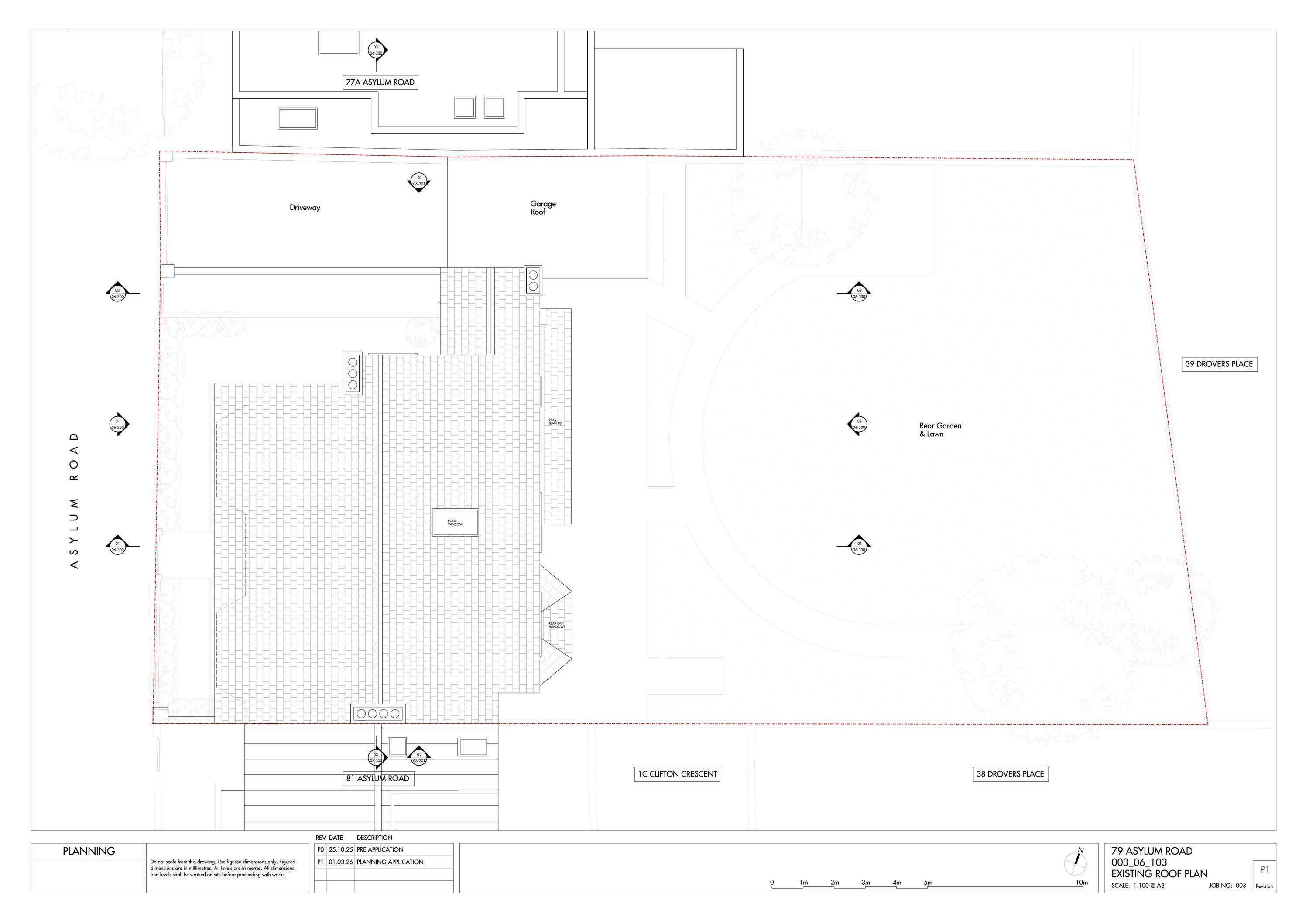
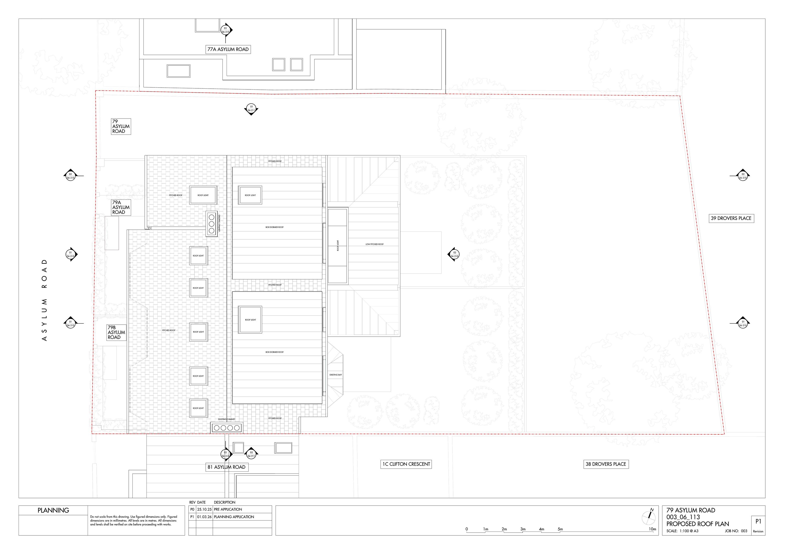
ROOF PLAN - EXISTING
Plan - Existing
Not yet archived · Original link
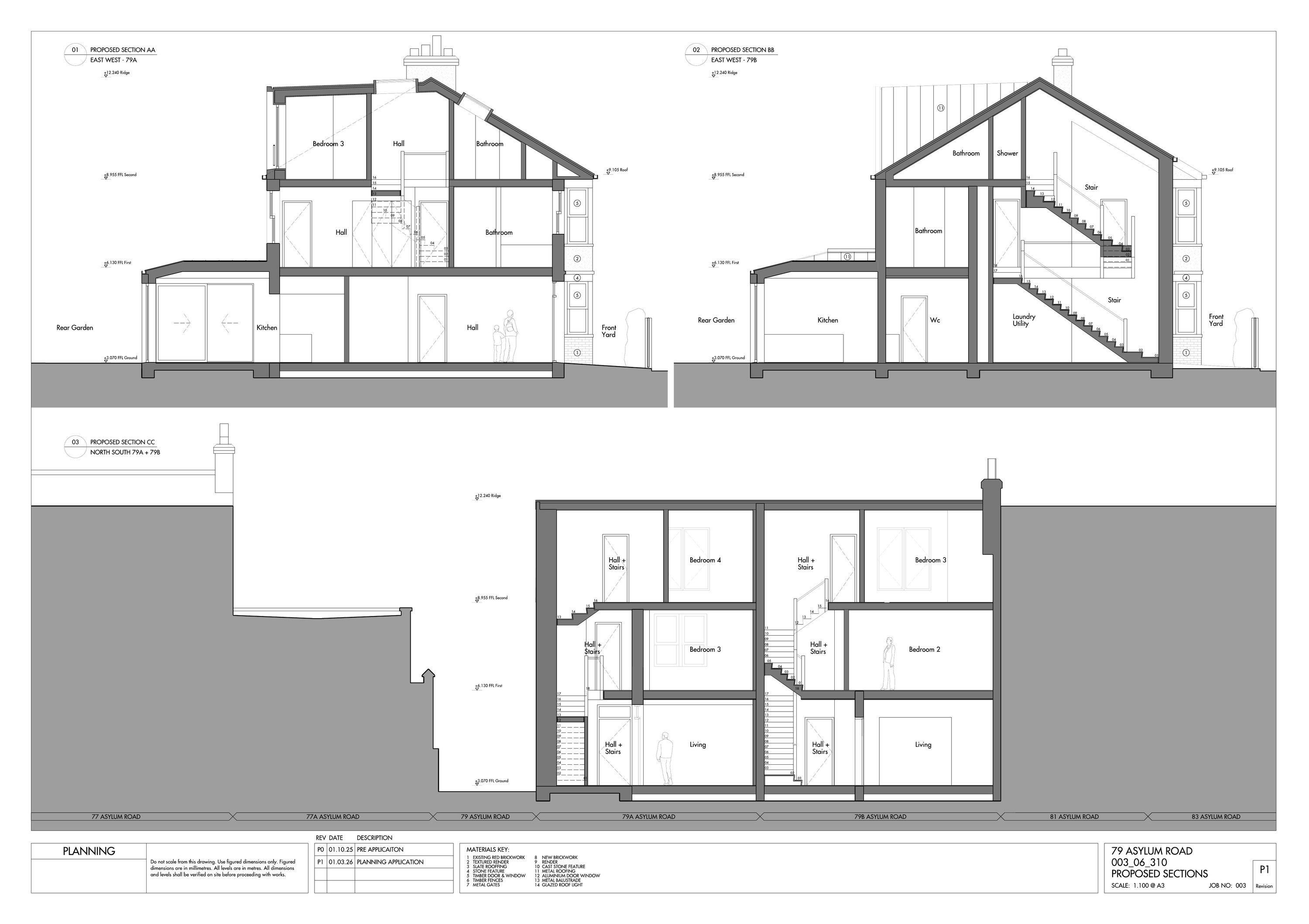
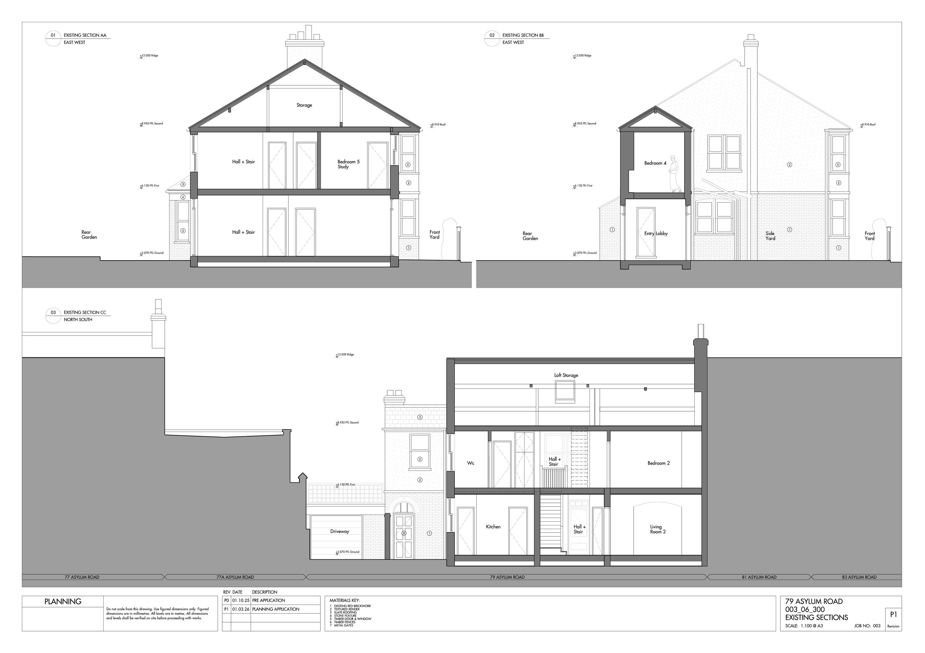
SECTION - EXISTING
Plan - Existing
Not yet archived · Original link
Site - Block plan
Archived · Original link

Have your say

Your comment matters. Councils must consider every representation that raises material planning considerations.

Write a comment