← Southwark

Status

Under consideration/assessment House extension
Received
Last month
New homes
0

Full proposal

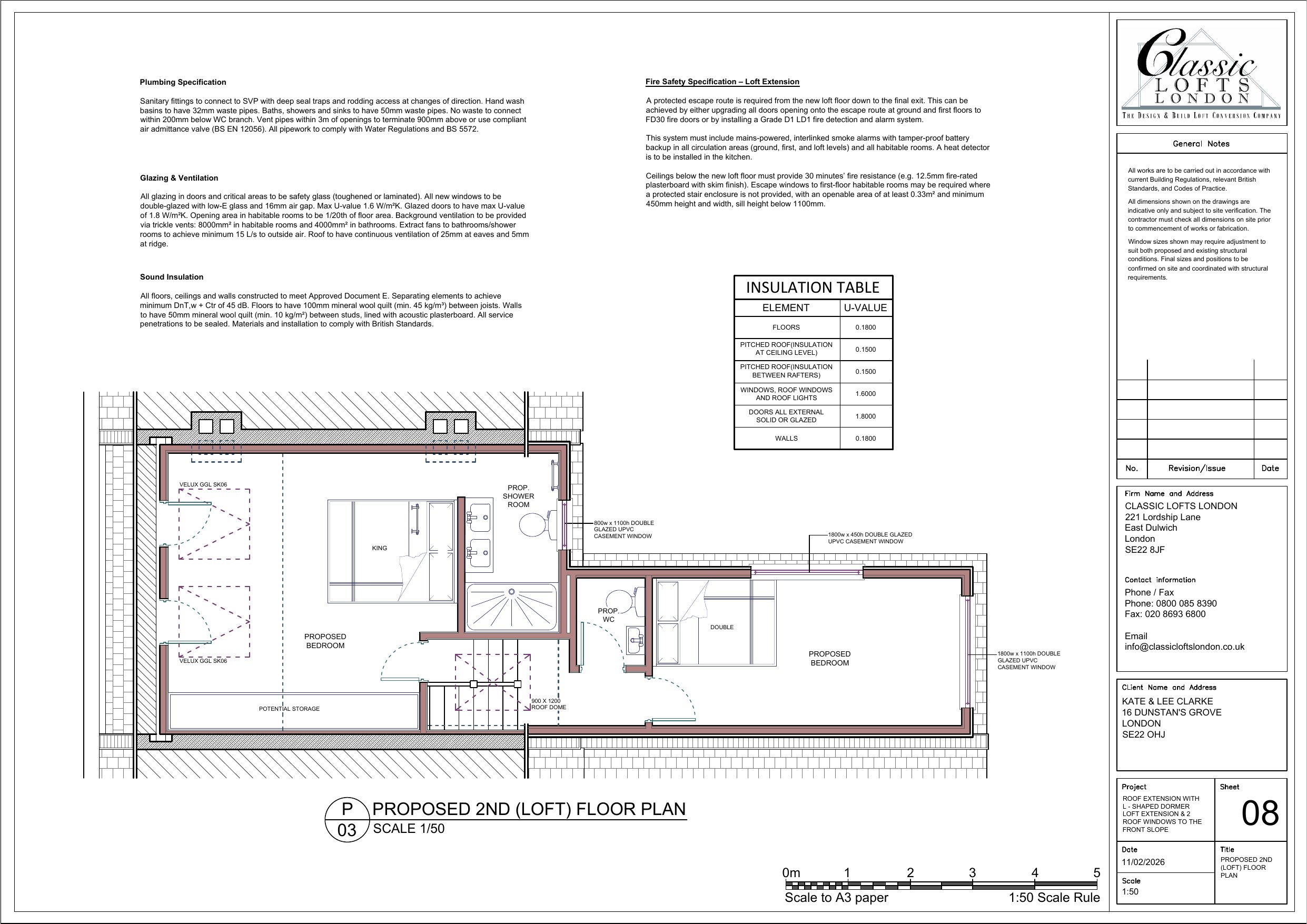
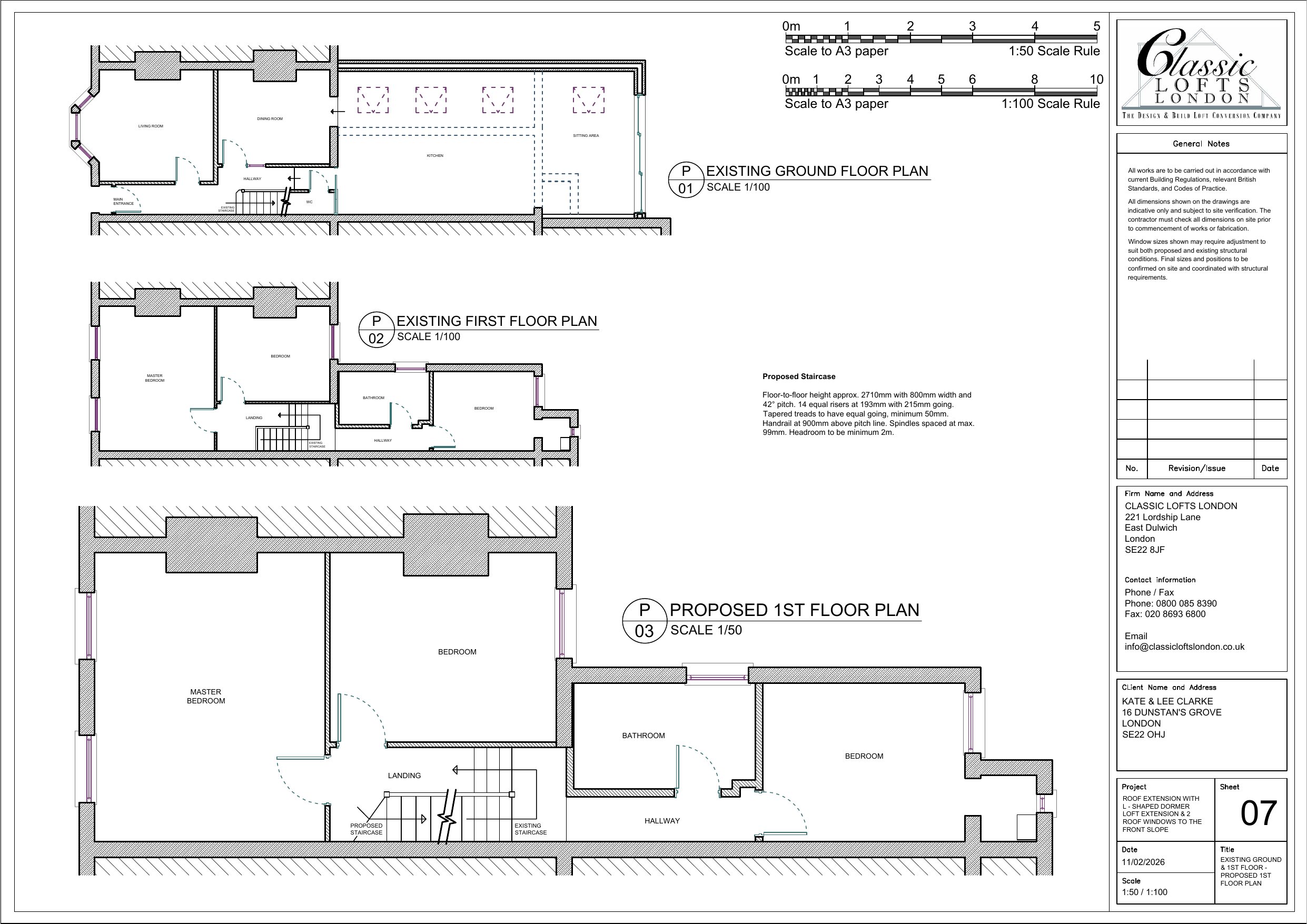
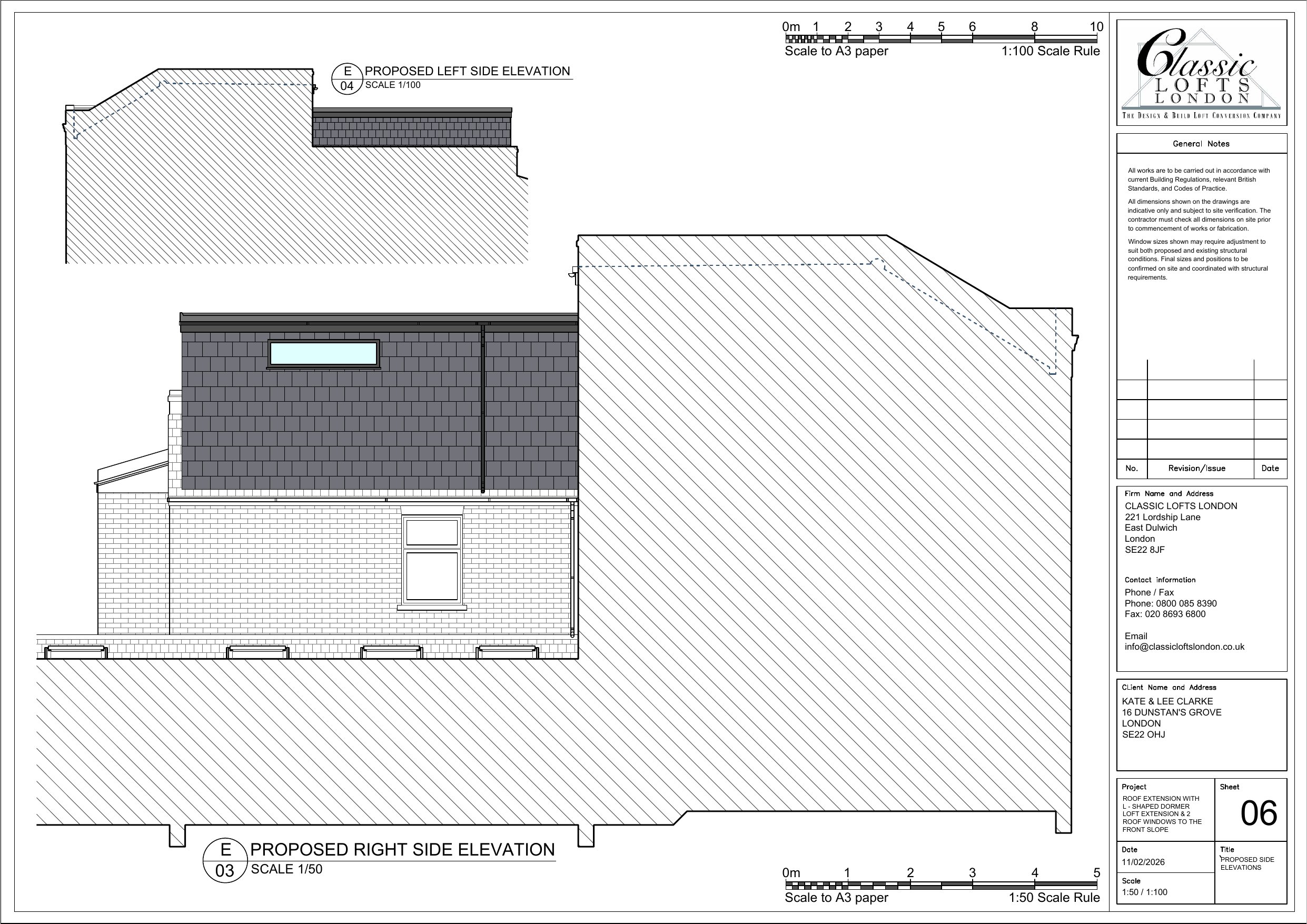
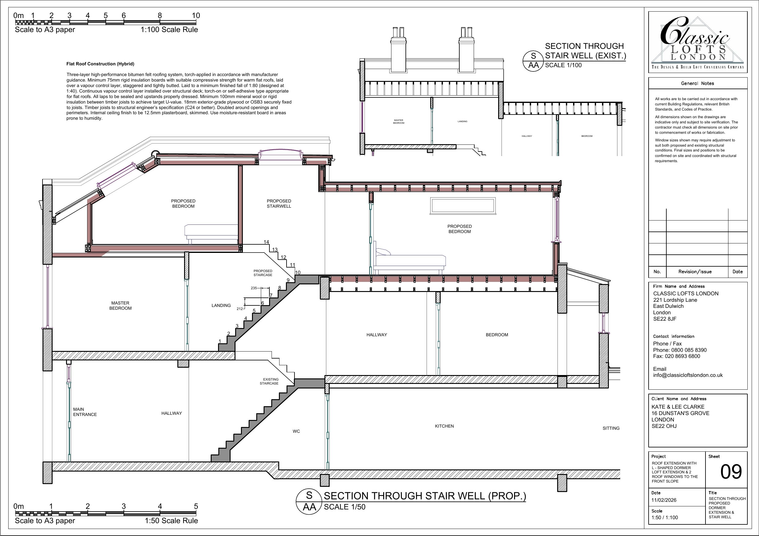
Construction of a pitched roof to the front elevation and a rear L-shape dormer loft extension with two front roof windows

Documents

Application - Form (Without Personal data)
Archived · Original link
Plan - General
Archived · Original link
Plan - Existing
Archived · Original link
Fire Statement
Archived · Original link
Site - Location plan
Archived · Original link
Plan - Proposed
Archived · Original link
Plan - Proposed
Archived · Original link
Plan - General
Archived · Original link
Site - Block plan
Archived · Original link

Have your say

Your comment matters. Councils must consider every representation that raises material planning considerations.

Write a comment