← Southwark

Status

Under consideration/assessment House extension
Received
Last month
New homes
0

Full proposal

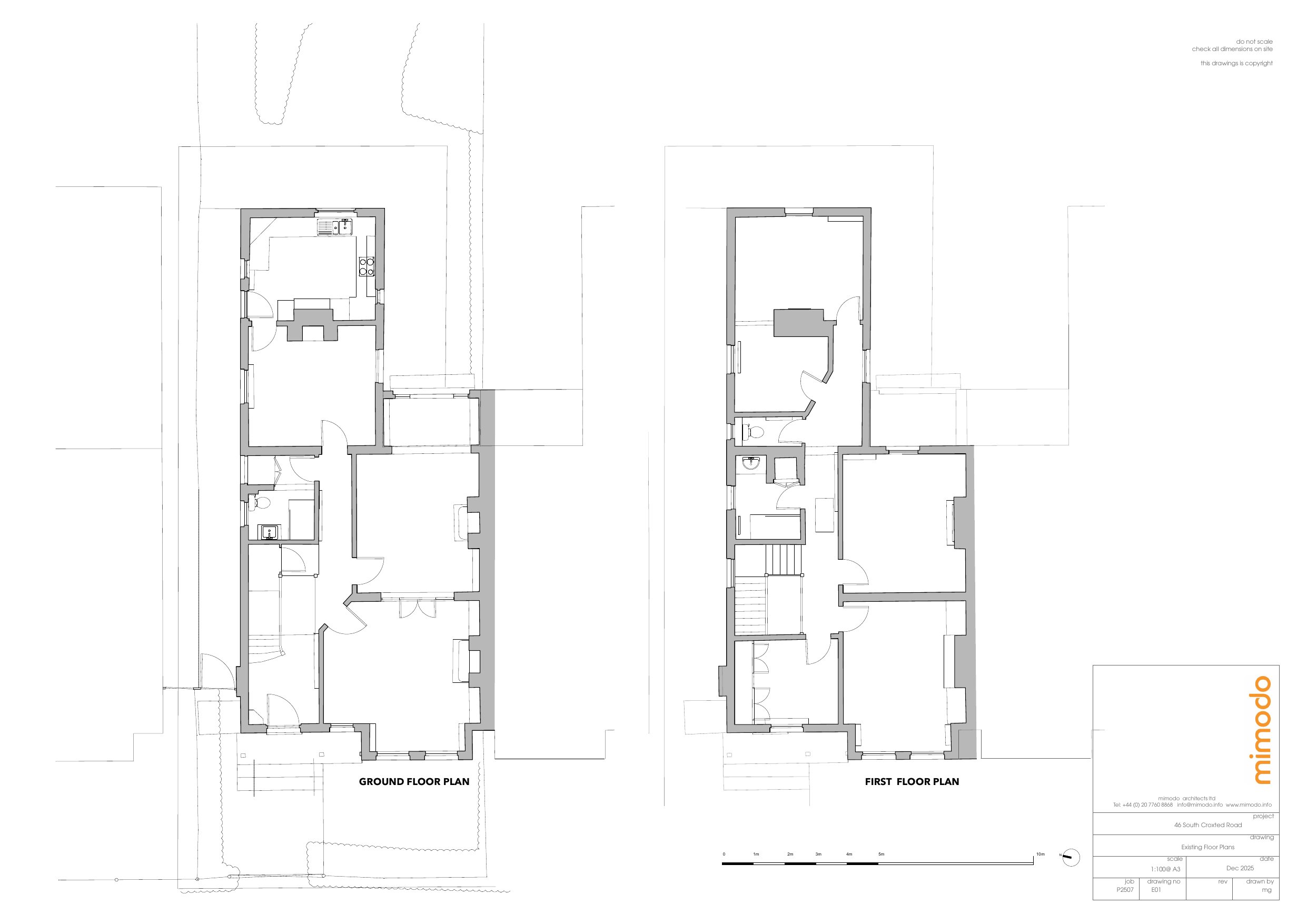
Construction of a roof-lit side infill rear extension, replacement of ground floor rear window to patio doors, enlargement of first-floor window and alterations to windows and doors on the side elevation of the property.

Documents

Application - Form (Without Personal data)
Archived · Original link
Plan - General
Archived · Original link
Design and Access statement
Archived · Original link
Plan - Existing
Archived · Original link
Plan - Existing
Archived · Original link
Plan - Existing
Archived · Original link
Plan - Existing
Archived · Original link
Site - Block plan
Archived · Original link
Neighbour Notification List
Archived · Original link
Fire Statement
Archived · Original link
Parking Provision
Archived · Original link
Plan - Proposed
Archived · Original link
Plan - Proposed
Archived · Original link
Plan - Proposed
Archived · Original link
Plan - Proposed
Archived · Original link
Plan - Proposed
Archived · Original link
Site - Block plan
Archived · Original link
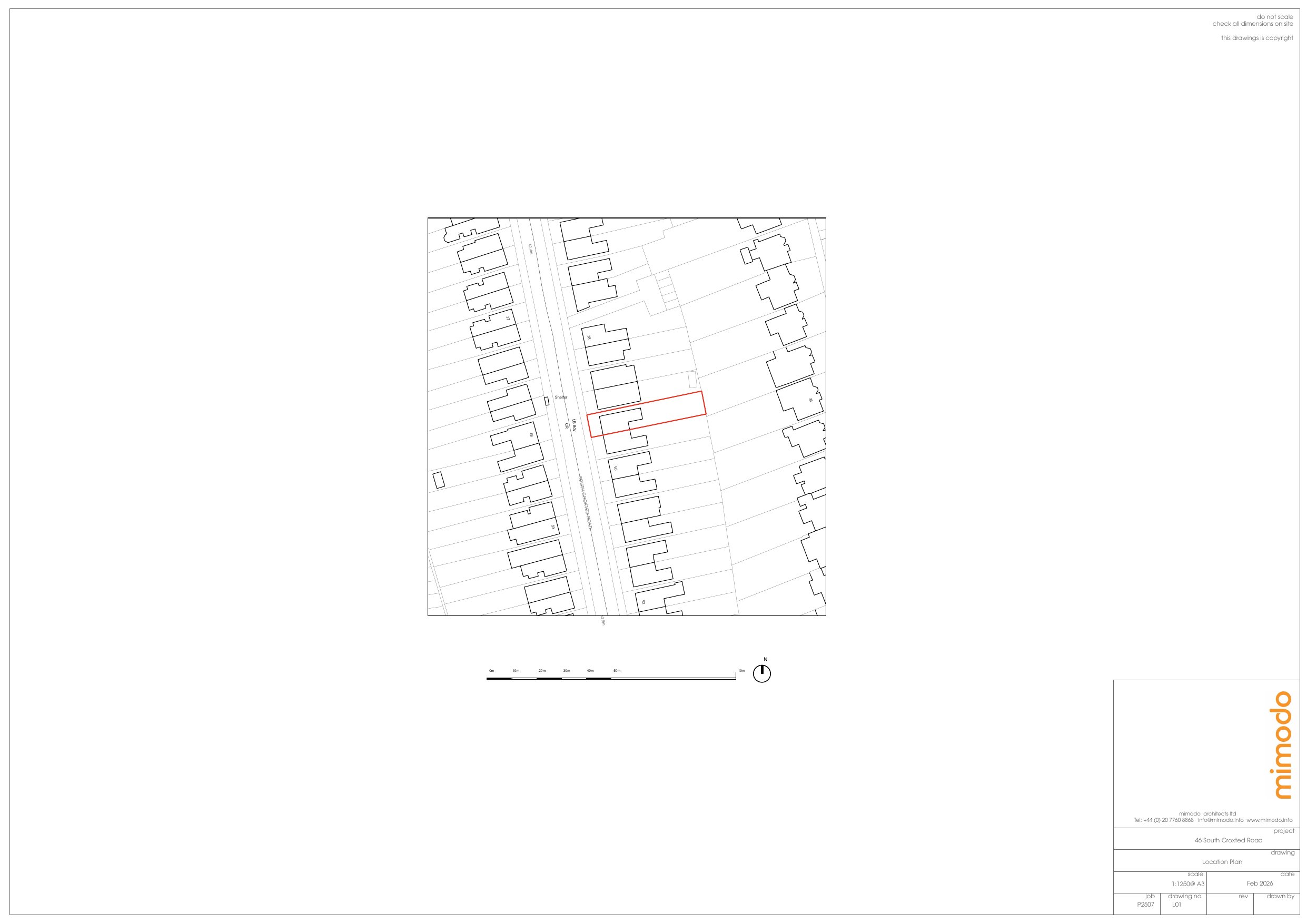
Site - Location plan
Archived · Original link
Valid Application Letter
Archived · Original link

Have your say

Your comment matters. Councils must consider every representation that raises material planning considerations.

Write a comment