← St Helens Borough Council

Status

Awaiting decision Change of use
Received
07 Mar 2025
New homes
14

Full proposal

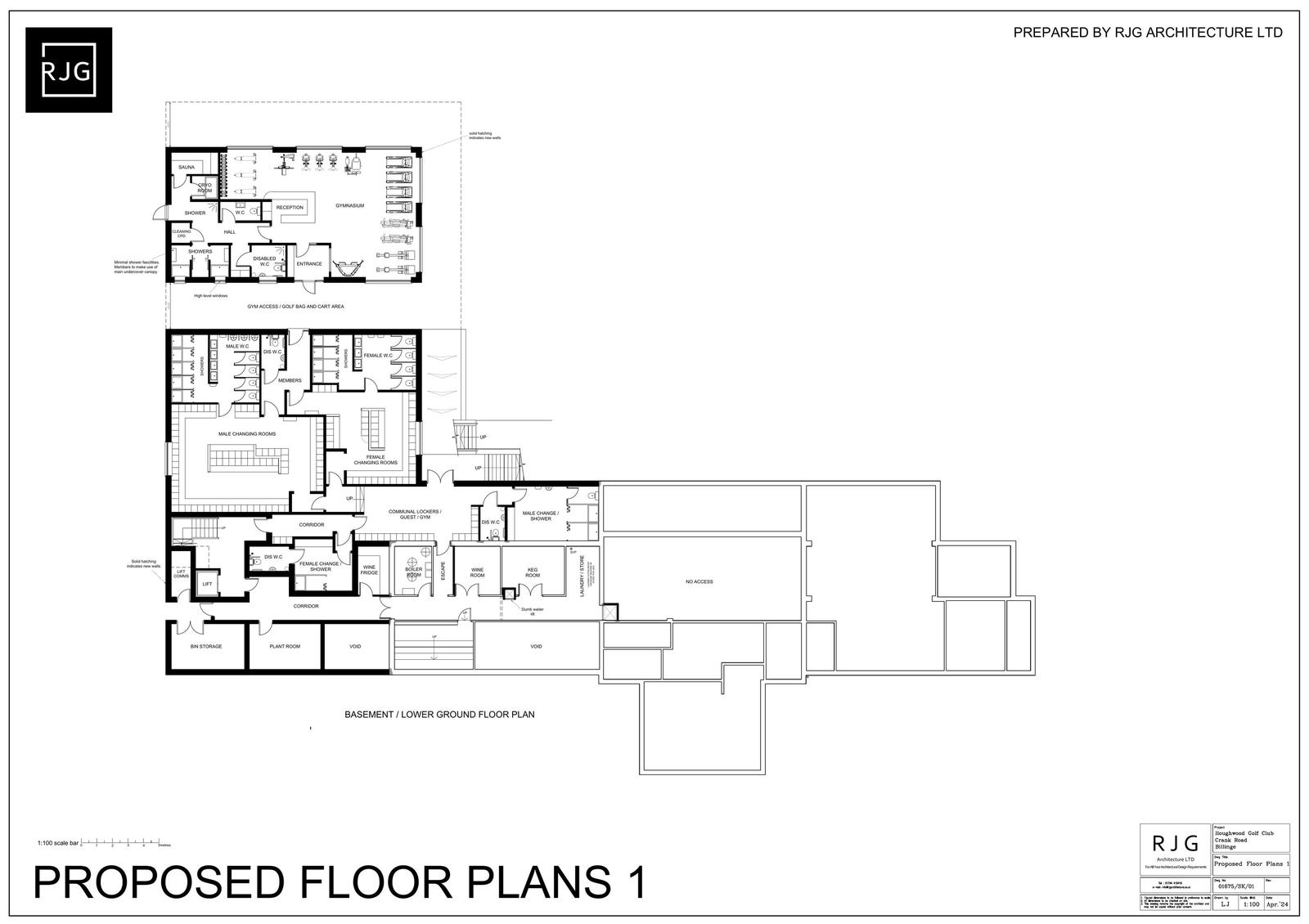
Two storey rear and side extension including basement changing rooms and gym below with roof terrace above, along with conversion of first floor into 14 bedroom hotel and additional parking.

Documents

Consultee Comment
Archived · Original link
Application Form
Archived · Original link
Ecology Information
Archived · Original link
Ecology Information
Archived · Original link
Ecology Information
Archived · Original link
Other
Archived · Original link
Other
Archived · Original link
Coal Authority Response
Archived · Original link
CONTAMINATED LAND OFFICER COMMENTS
Consultee Comment
Not yet archived · Original link
Design & Access Statement
Archived · Original link
Drainage Information
Archived · Original link
Existing Elevations
Archived · Original link
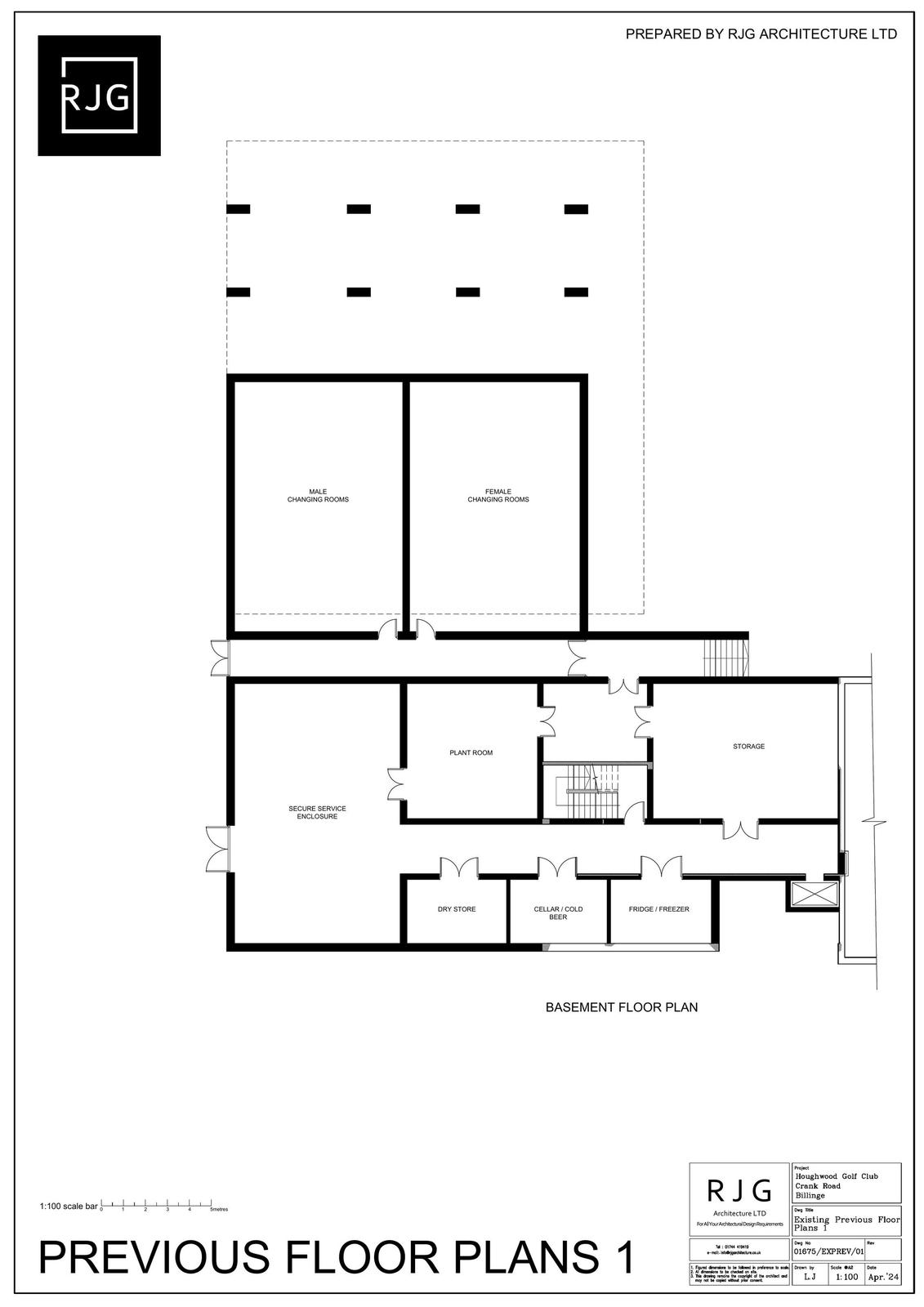
Existing Floor Plan
Archived · Original link
Existing Floor Plan
Archived · Original link
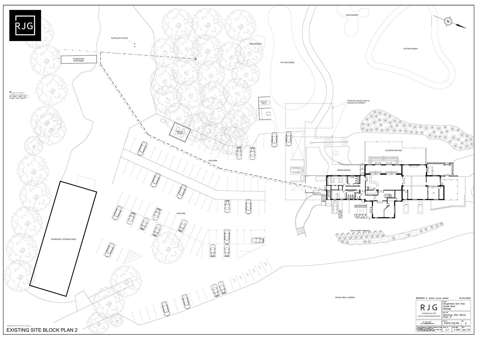
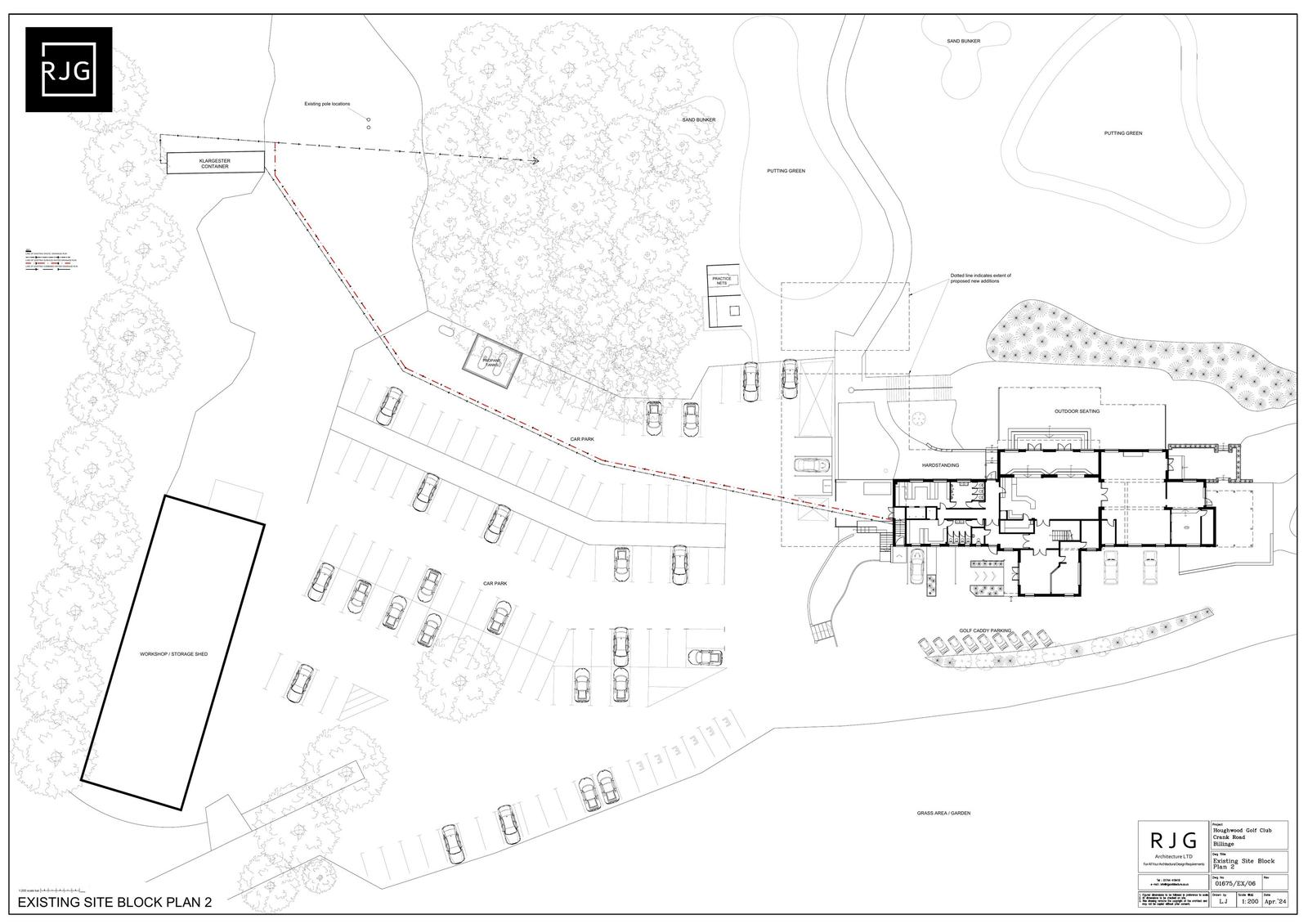
Existing Block Plan
Archived · Original link
Existing Block Plan
Archived · Original link
Other Plan
Archived · Original link
Other Plan
Archived · Original link
Consultee Comment
Archived · Original link
Consultee Comment
Archived · Original link
Consultee Comment
Archived · Original link
Location Plan
Archived · Original link
MEAS COMMENTS
Consultee Comment
Not yet archived · Original link
MEAS RESPONSE
Consultee Comment
Not yet archived · Original link
Consultee Comment
Archived · Original link
Consultee Comment
Archived · Original link
Consultee Comment
Archived · Original link
Public Comment
Archived · Original link
Consultee Comment
Archived · Original link
PEA
Ecology Information
Archived · Original link
Planning Statement
Archived · Original link
Other Plan
Archived · Original link
Other Plan
Archived · Original link
Other Plan
Archived · Original link
Other Plan
Archived · Original link
Other Plan
Archived · Original link
Proposed Elevations
Archived · Original link
Proposed Elevations
Archived · Original link
Proposed Floor Plan
Archived · Original link
Proposed Floor Plan
Archived · Original link
Proposed Floor Plan
Archived · Original link
Revised Drawing
Archived · Original link
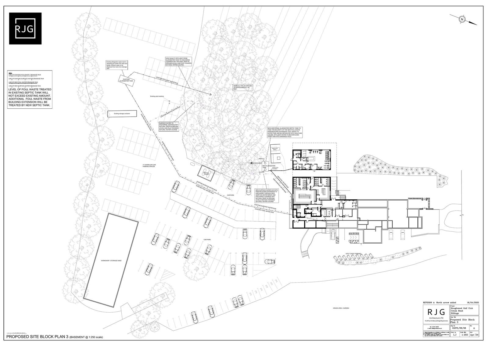
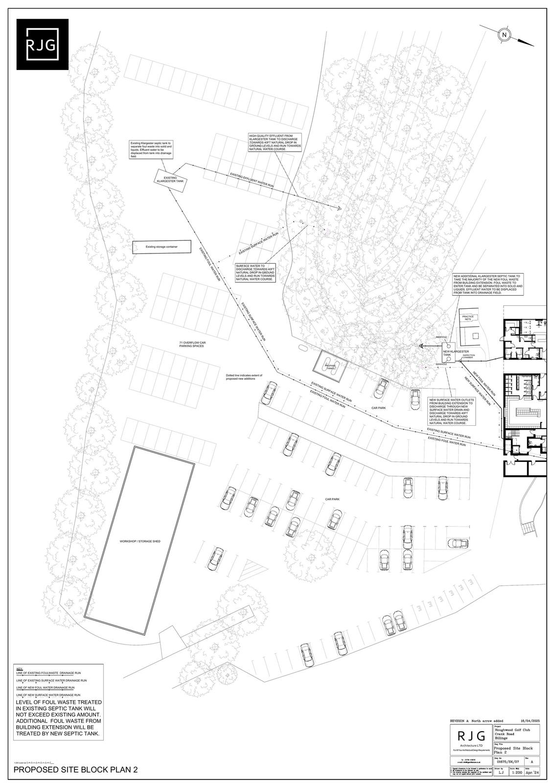
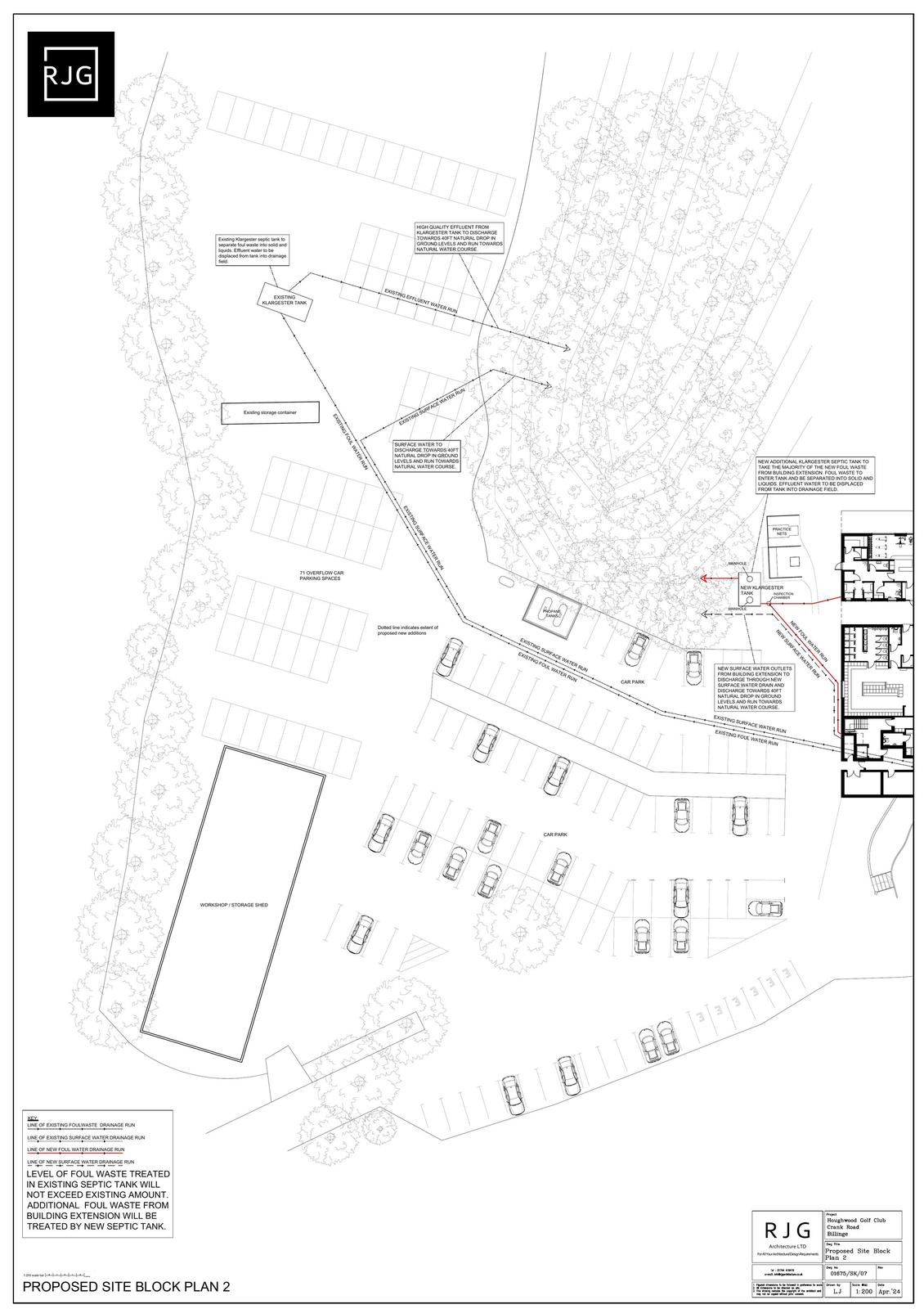
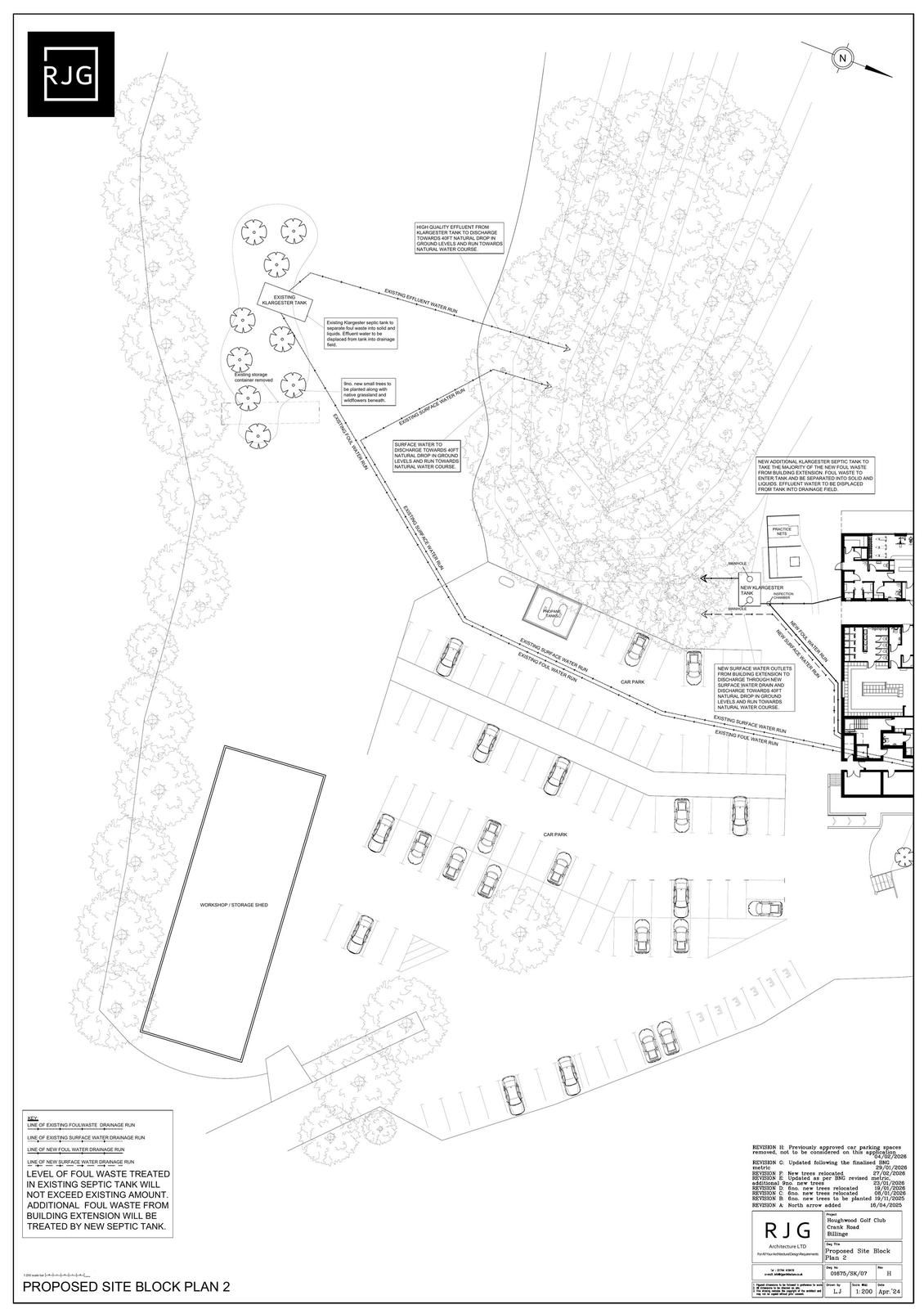
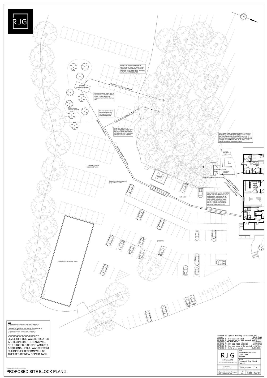
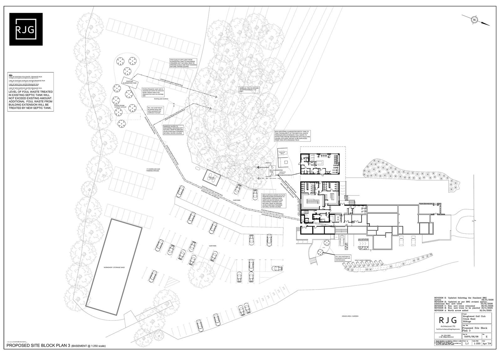
Proposed Block Plan
Archived · Original link
Proposed Block Plan
Archived · Original link
Proposed Block Plan
Archived · Original link
Revised Drawing
Archived · Original link
Other Plan
Archived · Original link
Other Plan
Archived · Original link
Other Plan
Archived · Original link
Other Plan
Archived · Original link
Other Plan
Archived · Original link
Technical Report
Archived · Original link
STATUTORY BIODIVERSITY METRIC - BASELINE
Other
Not yet archived · Original link
Technical Report
Archived · Original link
TREES AND WOODLANDS OFFICER RESPONSE
Consultee Comment
Not yet archived · Original link
United Utilities Response
Archived · Original link
Consultee Comment
Archived · Original link

Have your say

Your comment matters. Councils must consider every representation that raises material planning considerations.

Write a comment